UP Boutique - Pipera Voluntari - APARTAMENT 3 CAMERE finisaje LUX

350.000 € + TVA

Pipera, București

Nr. cam.:
3
Sup. utilă:
88,5 mp
Etaj:
3 / 4
An constr.:
2025 (Finalizată)
  • • Locație aproximativă

Descriere apartament

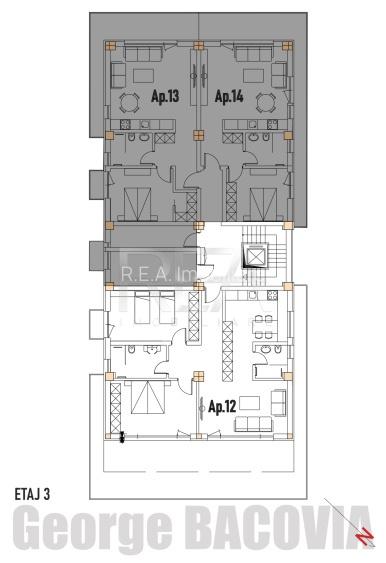
R.E.A. Imobiliare va prezinta spre vanzare un apartament cu o pozitionare strategica in nordul Capitalei, intr-o zona linistita, fara trafic, pe o strada accesibila doar riveranilor, cu un design arhitectural modern, care maximizeaza spatiul de locuit, proiectul UP Boutique imbina toate caracteristicile care definesc conceptul de cladire de tip boutique. UP Boutique este o cladire unica, cu finisaje premium, prietenoasa cu mediul inconjurator, formata din Subsol, parter si 4 etaje respectiv 16 apartamente. Este o reuniune aarhitecturii de designer, situata intr-o zona atractiva, cu scoli, centre medicale, spatii comerciale si de birouri, locuri de joaca, dar si nenumarate optiuni de divertisment. Este locul in care iti doresti sa traiesti si sa creezi amintiri pentru o viata. Este mai mult decat o achizitie imobiliara -este o investitie pentru viitor. Este pentru cei care nu fac compromisuri la calitate. Apartamentul este situat la etajul 3 al imobilului, pe latura de sudestnord, avand o suprafata construita de 107.50 mp si utila de 88.50 mp, la care se adauga o terasa superba cu o suprafata de 58.60 mp si un balcon de 1.60 mp. Acest apartament satisface cele mai exigente cerinte din punct de vedere al confortului si al dotarilor si este compus din: HOL –11.00 MP LIVING –17.30 MP BUCĂTĂRIE –11.80 MP GRUP SANITAR –3.90 MP BAIE –6.80 MP DORMITOR –16.90 MP DORMITOR –16.50 MP TERASĂ –58.60 MP BALCON -1.60 MP Cladirea este prevazuta cu 20 de locuri de parcare, din care 14 in sistem automat de tip Klaus concepute inclusiv pentru SUVuri cu greutate de pana la 2600 kg si inaltime de pana la 2 metri. Pret parcare exterioara(Klaus): 20.000 euro Pret parcare interioara(subsol): 25.000 euro Fie ca vorbim despre exterior sau interior, cladirea este proiectata intr-un stil inovator, dotata cu panouri fotovoltaice care acopera consumul de energie pentru spatiile comune. Finisajele exterioare si interioare sunt din gama PREMIUM: tamplarie SALAMANDER cu geam TRIPAN, gresie si faianta rectificate DELTA STUDIO, incalzire in pardoseala, Module Termo Hidraulice DANFOSS, parchet de 10 mm grosime, usa acces in apartament fonoizolata si blindata, usile din interiorul apartamentului din gama premium cu balamale ascunse si structura plina. Proprietatea este amplasata intr-o cladire sanatoasa si eficienta energetic, conform conceptului european NZEB (Nearly Zero-Energy Building),care reduce semnificativ costurile de intretinere si consumul de energie in spatiile comune. Facturile mici sau chiar inexistente pentru utilitatile comune, inaltimea generoasa a camerelor (2,8 m), incalzirea in pardoseala, suprafetele vitrate ample, terasele spatioase si zonele verzi amenajate cu grija reflecta standardul ridicat utilizat. Designul arhitectural si finisajele de exceptie fac din UP Boutique locul unde vrei sa traiesti si sa aduni amintiri! Pentru mai multe detalii si vizionari, ne puteti contacta telefonic, specificand codul de identificare P7581
Citește mai mult Citește mai puțin
Confort 1 Decomandat Nemobilat 1 Balcon / Terasă / Logie Curte comună Aer condiționat Centrală imobil Încălzire prin pardoseală

Detalii apartament

ID anunț: XDKS106SD Copiat! 264249384 Copiat!
Actualizat în: 05 Februarie 2026
Suprafață construită: 167.7 mp
Nr. bucătării: 1
Nr. băi: 2
Structură rezistență: Beton
Tip imobil: Bloc de apartamente
Regim înălțime: S+P+4E

Utilități

Destinație
Rezidențial
Pereți
Vopsea lavabilă Faianță Tapet
Podele
Parchet Gresie
Ușă intrare
Metal
Uși interior
Celulare Lemn
Izolații termice
Exterior
Ferestre cu geam termopan
Aluminiu
Contorizare
Apometre Contor căldură Contor gaz
Diverse
Telecomandă poartă acces auto
Facilități imobil
Videointerfon Lift
Utilități
Curent Apă Canalizare Gaze CATV Telefon
Amenajare străzi
Asfaltate Iluminat stradal Mijloace de transport în comun
Comision
standard

Certificat energetic:

Clasa energetică: A

Disponibilitate proprietate:

imediat

Puncte de interes

Mijloace transport
tram-station
Statia Gelcap, linia 16, 36
Stații tramvai aprox. 657 m
tram-station
Gelcap
Stații tramvai aprox. 720 m
bus-station
Rocin
Stații autobuz aprox. 943 m
metro-station
Pipera (M2)
Stații metrou aprox. 1373 m
Școală
kindergarten
Echilibria 1
Gradinițe aprox. 1099 m
school
Gradinita Happy Univers
Școli aprox. 1250 m
school
Scoala Nr.3 Voluntari
Școli aprox. 1433 m
kindergarten
Gradinita Zece
Gradinițe aprox. 1640 m
Recreere
restaurant
Q's inn
Restaurant aprox. 519 m
supermarket
Kaufland
Supermarket aprox. 520 m
park
spatiu verde
Parcuri aprox. 827 m
sports-ground
Teren sportiv
Terenuri sport aprox. 1716 m

Detalii despre preț și costuri

Prețul pe piață

Preț cerut: 350.000 €

Preț min. zonă
Preț max. zonă

94% dintre proprietățile similare ca zonă și nr. camere au prețul cerut mai mic. mai multe...

Bine de știut: prețul unei proprietăți este influențat și de alte caracteristici, cum ar fi: vechime, localizare, vecinătăți, suprafață, compartimentare, amenajări, dotări, etc. mai puțin...

Insight premium disponibil după login

Costuri cu achiziția

Fără credit
Credit ipotecar
Noua casă

i

Costuri adiționale mai puțin știute la achiziție: taxe notariale, comisioane etc.

Insight premium disponibil după login

Proprietăți recomandate

Detalii de contact

R.E.A. Imobiliare

Eduard Klaus Broker

R.E.A. Imobiliare
PRO

Abonează-te la newsletter să fii primul care primește cele mai noi recomandări de proprietăți și sfaturi de la experți.

CONTACT

Creează alertă

Salvează căutarea ca să primești pe email ultimele anunțuri publicate

Apartamente noi cu 3 camere de vânzare în zona Pipera, Sector 1