118 mp utili -Apartament de 4 camere tip duplex-Bellemonde

362.800 € + TVA

Pipera, București

Nr. cam.:
4
Sup. utilă:
153 mp
Etaj:
1 / 2
An constr.:
2026 (În construcție)
  • • Comision 0%
  • • Locație exactă

Descriere apartament

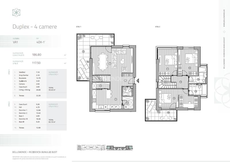
Bellemonde este un proiect gas-free, dotat cu cele mai noi tehnologii și funcțiuni astfel încât să se adapteze cu brio la viața prezentă. Proiectat pentru liniștea ta, întregul cartier este securizat, accesul în interior realizându-se controlat, prin clădirea tip gate house ce folosește ca punct de intrare în complex și acoperă funcțiile administrative. Spațiile comerciale aflate la parterul clădirii de apartamente găzduiesc un restaurant dedicat gurmanzilor din cadrul cartierului și nu numai. Terasa Society Club-ului și piscina în aer liber transformă orice zi obișnuită acasă într-una de vacanță. Aici vei găsi în permanență, pe toată durata anului, un pretext de răsfăț pentru tine și familia ta în zonele de masaj și saună, iar copiii se vor bucura indiferent de vreme de un spațiu de joacă indoor atent construit. Duplexul are 4 camere și o suprafață utilă de 152mp. Suprafețele generoase și finisările interioare, premium, armonizează aspectele estetice cu cele funcționale. Parchetul triplu stratificat, plăcile mari de ceramică și tâmplăria de aluminiu creează un ambient actual, în trend. Vila din care face parte are un regim de înălțime de P+2. Este expresia unui principiu solid de design: beneficiarul și nevoile sale specifice formează un nucleu în jurul căruia gravitează toate activitățile de proiectare. Este dotată cu cele mai noi tehnologii și funcțiuni astfel încât să se adapteze cu brio la viața prezentă: - Pompe de căldură de ultimă generație, - Fatada ventiliată, - Tâmplarie de aluminiu, - Finisaje premium, - Infrastructură pentru panouri fotovoltaice, - Locuri de parcare electificate . Ansamblul se va livra într-o singură fază în a doua parte a anului 2026, iar finalizarea lucrărilor de structură și zidărie va avea loc până la finalul lunii mai 2025 . Pentru a afla toate detaliile care conteaza pentru tine, ai la dispoziție un consultant dedicat, care îți va fi alături și te va ghida în a lua o decizie informată.
Citește mai mult Citește mai puțin
Confort 1 Decomandat 2 Balcoane / Terase / Logii Piscină Ventiloconvectoare Încălzire prin pardoseală

Detalii apartament

ID anunț: XE7Q00008 Copiat! 13013356 Copiat!
Actualizat în: 26 Martie 2026
Suprafață construită: 187 mp
Nr. bucătării: 1
Nr. băi: 3
Structură rezistență: Beton
Tip imobil: Bloc de apartamente
Regim înălțime: P+2E

Utilități

Destinație
Rezidențial
Pereți
Faianță Vopsea lavabilă
Podele
Gresie Parchet
Rulouri/Obloane
Aluminiu
Ușă intrare
Metal
Uși interior
Lemn
Izolații termice
Exterior
Ferestre cu geam termopan
Aluminiu
Contorizare
Apometre
Diverse
Telecomandă poartă garaj
Facilități imobil
Spații agrement Saună
Utilități
Curent Canalizare
Amenajare străzi
Asfaltate Iluminat stradal Mijloace de transport în comun
Servicii imobil
Administrare Pază Supraveghere video
Comision
0%

Certificat energetic:

Clasa energetică: A

Vicii:

Fara vicii

Disponibilitate proprietate:

2026

Puncte de interes

Școală
kindergarten
Kindergarden
Gradinițe aprox. 871 m
school
Happy Children Academy
Școli aprox. 927 m
university
School American Bucharest-Voluntari
Universități aprox. 1602 m
kindergarten
Echilibria 1
Gradinițe aprox. 1929 m
Recreere
park
residential kids park
Parcuri aprox. 600 m
supermarket
Mega Image Pipera Liziera
Supermarket aprox. 979 m
sports-ground
Teren sportiv
Terenuri sport aprox. 1376 m
cafe
Doncafe Brasserie
Cafenea aprox. 1592 m

Detalii despre preț și costuri

Prețul pe piață

Preț cerut: 362.800 €

Preț min. zonă 169.000 €
Preț max. zonă 779.990 €

74% dintre proprietățile similare ca zonă și nr. camere au prețul cerut mai mare. mai multe...

Bine de știut: prețul unei proprietăți este influențat și de alte caracteristici, cum ar fi: vechime, localizare, vecinătăți, suprafață, compartimentare, amenajări, dotări, etc. mai puțin...

Costuri cu achiziția

Fără credit
17.973 RON
Credit ipotecar
20.949 RON
Noua casă
2.377 RON+ taxe notariale

i

Costuri adiționale mai puțin știute la achiziție: taxe notariale, comisioane etc.

Proprietăți recomandate

Detalii de contact

BELLEMONDE PRIVEE

Mia Dweekat Sales Consultant

BELLEMONDE PRIVEE

Abonează-te la newsletter să fii primul care primește cele mai noi recomandări de proprietăți și sfaturi de la experți.

CONTACT

Creează alertă

Salvează căutarea ca să primești pe email ultimele anunțuri publicate

Apartamente cu 4+ camere de vânzare în zona Pipera, Sector 1