14

2 CAMERE | PIPERA | IVORY | INVESTIȚIE | ROND OMV | NORD | PRET + TVA

170.000 € + TVA

Pipera, București

Nr. cam.:
2
Sup. utilă:
67,05 mp
Etaj:
5 / 7
An constr.:
2023
  • • Exclusivitate
  • • Locație aproximativă

Descriere apartament

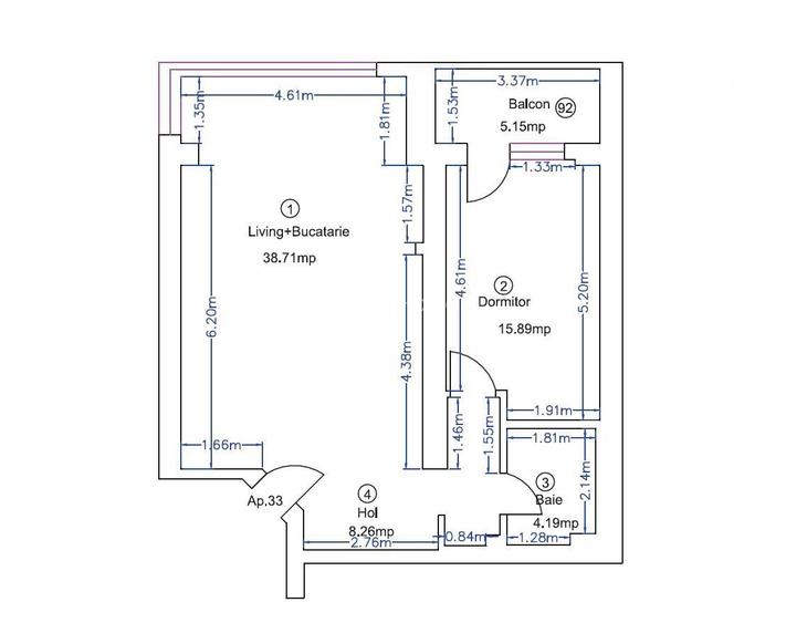
Vă prezentăm aceste apartamente cu 2 camere din ansamblul rezidențial Ivory Residence, Pipera, cu o amenajare interioara realizata de un designer de interior profesionist. Aceste proprietăți reprezintă o oportunitate excelentă pentru un cuplu aflat la început de drum sau pentru investitori interesați de piața imobiliară din această zonă de prestigiu. Caracteristici: Apartamentele sunt situate la etajele 5 sau 7. Au o suprafață utilă totală de 72.2 mp și sunt finisate, utilate și mobilate identic. Compartimentarea este structurată astfel: -Living spațios și lumios - Bucătărie utilată, mobilată complet - Un dormitor spațios , aer condiționat - O baie modernă - Balcon închis - Boxă de depozitare ( se poate achiziționa separat) - Locuri de parcare de achiziționat la alegere: afară, subteran, suprateran. Localizare premium - zona rond OMV Pipera: o Aproape de: LIDL, Kaufland, Pipera Plaza, Carrefour la intrarea în complex o Spa Centre, gym, wellness în apropiere o Restaurante, cafenele și alte facilități urbane o Grădinițe și școli private o Pădurea Băneasa - 10 min cu mașina o Pădurea Snagov- 25 min cu mașina Avantaje ale complexului Ivory Residence: o Spații verzi generoase și locuri de joacă pentru copii o Locuri de parcare pentru vizitatori o Comunitate liniștită și civilizată o Acces securizat și întreținere profesională o Piste de biciclete *an construcție 2023* *structură de beton* * finisaje premium* *Prețul afișat - prețul net la care se aplică TVA conform prevederilor legii* ***APARTAMENTUL SE VINDE LA CHEIE, COMPLET MOBILAT SI UTILAT*** Pentru mai multe detalii sau pentru a programa o vizionare, nu ezita să ne contactezi!
Citește mai mult Citește mai puțin
Confort lux Semidecomandat Mobilat Lux 1 Balcon / Terasă / Logie Aer condiționat Centrală proprie Încălzire prin pardoseală

Detalii apartament

ID anunț: XFVM10007 Copiat! 266314094 Copiat!
Actualizat în: 23 Martie 2026
Suprafață construită: 88.2 mp
Nr. bucătării: 1
Nr. băi: 1
Structură rezistență: Beton
Tip imobil: Bloc de apartamente
Regim înălțime: P+7E

Utilități

Destinație
Rezidențial
Ușă intrare
Metal
Izolații termice
Exterior
Bucătărie
Mobilată Utilată
Electrocasnice
Frigider Hotă Mașină de spălat TV
Facilități imobil
Interfon Lift
Utilități
Curent Apă Canalizare CATV Gaze Telefon
Internet
Cablu Wireless
Servicii imobil
Pază Supraveghere video
Amenajare străzi
Iluminat stradal Mijloace de transport în comun Asfaltate
Comision
standard

Disponibilitate proprietate:

Imediat

Puncte de interes

Mijloace transport
bus-station
Capat C.F.R Constanta linii : 112,135,445
Stații autobuz aprox. 821 m
tram-station
Rocin
Stații tramvai aprox. 1133 m
metro-station
Pipera (M2)
Stații metrou aprox. 1394 m
airport
Aeroportul Internațional Băneasa (Aurel Vlaicu) - LRBS (BBU)
Aeroporturi aprox. 1823 m
Școală
kindergarten
Gradinita Zece
Gradinițe aprox. 1027 m
school
Scoala Nr.3 Voluntari
Școli aprox. 1292 m
kindergarten
Echilibria 1
Gradinițe aprox. 1621 m
school
Gradinita Happy Univers
Școli aprox. 1643 m
Recreere
restaurant
Q's Inn
Restaurant aprox. 271 m
park
spatiu verde
Parcuri aprox. 299 m
supermarket
Pipera Plaza
Supermarket aprox. 582 m
sports-ground
Teren sportiv
Terenuri sport aprox. 1632 m

Detalii despre preț și costuri

Prețul pe piață

Preț cerut: 170.000 €

Preț min. zonă
Preț max. zonă

65% dintre proprietățile similare ca zonă și nr. camere au prețul cerut mai mare. mai multe...

Bine de știut: prețul unei proprietăți este influențat și de alte caracteristici, cum ar fi: vechime, localizare, vecinătăți, suprafață, compartimentare, amenajări, dotări, etc. mai puțin...

Insight premium disponibil după login

Costuri cu achiziția

Fără credit
Credit ipotecar
Noua casă

i

Costuri adiționale mai puțin știute la achiziție: taxe notariale, comisioane etc.

Insight premium disponibil după login

Proprietăți recomandate

Detalii de contact

CGA Home

Rebeka Biro Manager

CGA Home
PRO

Abonează-te la newsletter să fii primul care primește cele mai noi recomandări de proprietăți și sfaturi de la experți.

CONTACT

Creează alertă

Salvează căutarea ca să primești pe email ultimele anunțuri publicate

Apartamente noi cu 2 camere de vânzare în zona Pipera, Sector 1