22

Pipera Scoala Americana, 3 camere cu terasa de 95mp

262.000 €

Pipera, București

Nr. cam.:
3
Sup. utilă:
105 mp
Etaj:
4 / 10
An constr.:
2009 (Finalizată)
  • • Locație aproximativă

Descriere apartament

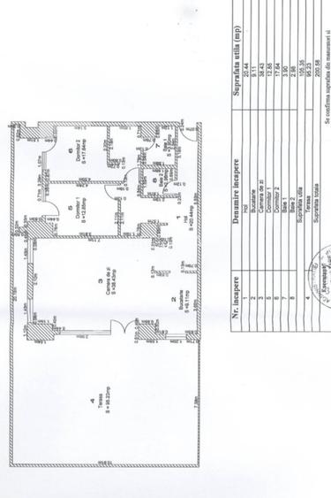
Va oferim spre achizite un apartament elegant cu 3 camere si o terasa generoasa de 95 mp. Apartamentul are o suprafata totala de 200mp din care suprafata utila este de 105 mp si beneficiaza de lumina naturala prin geamurile mari cu tamplarie de aluminiu. Dormitorul principal are un dressing si o baie proprie, iar terasa este amenajata cu gust si poate inlocui cu succes o curte. Finisajele si dotarile sunt de calitate superioara: parchet triplustratificat, bai modernizate, mobilier si electrocasnice lux . Pretul include si un loc de parcare subteran. Va invitam sa vizionati acest apartament deosebit si sa va convingeti de avantajele lui.
Citește mai mult Citește mai puțin
Confort lux Decomandat Mobilat Lux 2 Balcoane / Terase / Logii Curte comună Aer condiționat Centrală imobil 1 Parcare 1 Garaj Renovat

Detalii apartament

ID anunț: X3RN001IP Copiat! 67034811 Copiat!
Actualizat în: 23 Noiembrie 2023
Suprafață utilă totală: 200 mp
Suprafață construită: 230 mp
Nr. băi: 2
Structură rezistență: Beton
Tip imobil: Bloc de apartamente
Regim înălțime: S+P+10E

Utilități

Destinație
Rezidențial
Utilități
Apă Canalizare
Internet
Fibră optică
Bucătărie
Mobilată Utilată
Alte spații utile
Terasă
Facilități imobil
Spații agrement Lift Videointerfon
Podele
Parchet
Ușă intrare
Metal
Uși interior
Celulare
Izolații termice
Exterior
Ferestre cu geam termopan
Aluminiu
Amenajare străzi
Asfaltate Iluminat stradal Mijloace de transport în comun
Servicii imobil
Administrare Supraveghere video
Comision
standard

Vecinătăți:

Scoala Americana, Padurea Baneasa,

Alte detalii:

`
Apartamentul se afla intr-un complex rezidential modern, situat la o distanta mica de Scoala Americana. Complexul ofera locatarilor sai multiple facilitati, precum o parcare subterana spatioasa, zone verzi bine intretinute si un loc de joaca sigur si atractiv pentru copii. Apartamentul este spatios, luminos si confortabil, fiind ideal pentru o familie care isi doreste un camin elegant si functional.

Alte detalii despre preț:

include mobila si locul de parcare

Puncte de interes

Școală
university
School American Bucharest-Voluntari
Universități aprox. 145 m
school
Scoala Americana
Școli aprox. 186 m
school
American International School of Bucharest (en)
Școli aprox. 191 m
kindergarten
Kindergarden
Gradinițe aprox. 1626 m
Recreere
sports-ground
Teren sportiv
Terenuri sport aprox. 218 m
sports-ground
Teren sportiv
Terenuri sport aprox. 283 m
park
Parc
Parcuri aprox. 416 m
supermarket
Mega Image Pipera Liziera
Supermarket aprox. 875 m

Detalii despre preț și costuri

Prețul pe piață

Preț cerut: 262.000 €

Preț min. zonă 159.990 €
Preț max. zonă 395.000 €

68% dintre proprietățile similare ca zonă și nr. camere au prețul cerut mai mare. mai multe...

Bine de știut: prețul unei proprietăți este influențat și de alte caracteristici, cum ar fi: vechime, localizare, vecinătăți, suprafață, compartimentare, amenajări, dotări, etc. mai puțin...

Costuri cu achiziția

Fără credit
11.895 RON
Credit ipotecar
14.120 RON
Noua casă
1.475 RON+ taxe notariale

i

Costuri adiționale mai puțin știute la achiziție: taxe notariale, comisioane etc.

Proprietăți recomandate

Detalii de contact

REGATTA

Camelia Hanu Real Estate Broker Residential

REGATTA
PRO

Abonează-te la newsletter să fii primul care primește cele mai noi recomandări de proprietăți și sfaturi de la experți.

CONTACT

Creează alertă

Salvează căutarea ca să primești pe email ultimele anunțuri publicate

Apartamente cu 3 camere de vânzare în zona Pipera, Sector 1