83

PROPRIETAR Apartamente 3 camere lux -1 apartament /nivel Dorobanti - Polona

375.200 € + TVA

Polonă, București

Nr. cam.:
3
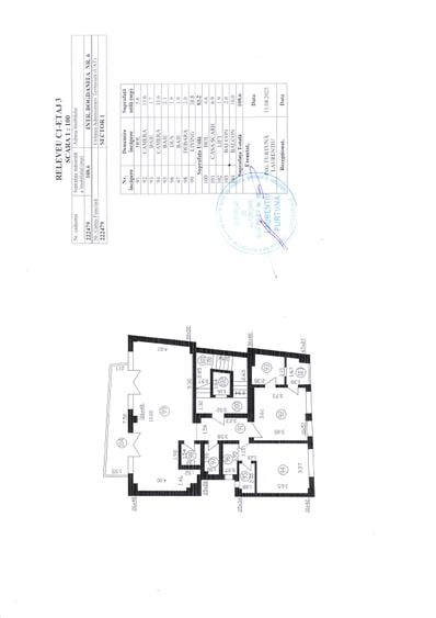
Sup. utilă:
87,8 mp
Etaj:
1 / 4
An constr.:
2024 (Finalizată)
  • • Locație exactă

Descriere apartament

Apartamente de 3 camere intr-un bloc Boutique cu 4 nivele - 1 apartament /nivel ; lift Otis, intre Dorobanti si Polona pe strada Intrarea Bogdanita nr 6. Cele cinci apartamente dispuse cate unul pe fiecare etaj sunt de 3 camere avind ferestere catre sud si vest intr-o zona linistita, au acces din doua strazi : Intrarea Bogdanita - accesul principal si strada Jijia accesul cu masina in parcare. Fiecare apartament este dotat cu geamuri tripan cu tamplarie de aluminiu tip Reyner, , jaluzele exterioare tip rulou ascunse, actionate electric cu telecomanda, parcare- garaj- interioara 3 locuri si parcare exterioara 4 locuri. Apartamentele au doua dormitoare fiecare , cu baie exclusiva ,tip masterbedroom, si o toaleta de servici ce deserveste zona de living. Fiecare apartament are o camera de serviciu echipata pentru instalarea masinilor de spalat si uscat cat si spatiu de depozitare. Atit livingul cat si unul din dormitoare au balcoane , pentru cel de la living accesul la terasa facandu-se si din Bucatarie. Toate baile si bucataria au ventilatie naturala prin geamuri. Accesul in cladire se face si din garaj cu liftul . Incalzirea se face prin pardoseala cu centrala proprie . Fiecare camera este dotata cu aer conditionat tip Daikin, baile fiind dotate si utilate , mobilate complet. Toate spatiile sunt echipate complet cu corpuri de iluminat prize si intrerupatoare. Apartamentele de la etaj 1; etaj 2; etaj 3 sunt la pretul de 375200 plus TVA. Apartamentul de la etajul 4 - ultimul, este gen penthouse avind terasa, este un apartament de 2 camere cu 2 bai avind acceleasi dotari si echipamente. Boutiqul Jijia va ofera " O CASA ACASA". Va asteptam cu drag la vizionare : PROPRIETAR LILIANA CHIRACU ; AMANDA DAVID
Citește mai mult Citește mai puțin
Confort lux Decomandat 2 Balcoane / Terase / Logii Grădină Curte comună Aer condiționat Centrală proprie Încălzire prin pardoseală Beci

Detalii apartament

ID anunț: X4FC0000T Copiat! 207340989 Copiat!
Actualizat în: 28 Februarie 2026
Suprafață utilă totală: 99.8 mp
Suprafață construită: 130 mp
Nr. bucătării: 1
Nr. băi: 3
Structură rezistență: Beton
Tip imobil: Bloc de apartamente
Regim înălțime: D+P+4E

Utilități

Destinație
Rezidențial
Pereți
Faianță Vinarom
Podele
Gresie Marmură Parchet
Rulouri/Obloane
Aluminiu
Ușă intrare
Metal
Uși interior
Lemn
Izolații termice
Exterior
Ferestre cu geam termopan
Aluminiu
Contorizare
Contor căldură Contor gaz Apometre
Diverse
Telecomandă poartă acces auto
Alte spații utile
WC Serviciu Debara
Facilități imobil
Spații agrement Lift Videointerfon
Utilități
Curent Apă Canalizare Gaze CATV
Internet
Fibră optică
Servicii imobil
Administrare Supraveghere video
Amenajare străzi
Asfaltate Betonate Iluminat stradal Mijloace de transport în comun

Certificat energetic:

Clasa energetică: A

Vecinătăți:

strada Polona , Eminescu, Calea Dorobanti, spitalul Floreasca , AMBASADE, Hoteluri,

Alte detalii:

Imobilul Boutique Jijija este ultimul imobil care s-a finalizat in zona . Incepind cu anul 2024 nu se mai emite Autorizatii de construire pentru imobile noi in zona. Apartamentele sunt bransate la curent electric , apa , gaz fiecare avind contoar separat.

Alte detalii despre preț:

Super Apartament cu Pretul cel mai mic din zona

Disponibilitate proprietate:

imediata

Puncte de interes

Mijloace transport
trolleybus-station
Statia Calea Dorobantilor; Liniile:79, 86,
Stații troleibuz aprox. 300 m
bus-station
Statia Soseaua Stefan cel Mare, linia 135, N119, N123
Stații autobuz aprox. 372 m
tram-station
Statie tramvai 1, 46 - Calea Dorobantilor
Stații tramvai aprox. 406 m
metro-station
Metrorex. Stația Ștefan cel Mare (M1)(1989)
Stații metrou aprox. 429 m
Școală
school
Scoala Americana
Școli aprox. 125 m
kindergarten
Gradinita nr. 85
Gradinițe aprox. 183 m
school
Cambridge School
Școli aprox. 202 m
university
CROS - Universitatea Alternativa
Universități aprox. 214 m
Recreere
supermarket
BILLA - Dorobanti
Supermarket aprox. 267 m
park
Parc
Parcuri aprox. 319 m
mall
"METROPLIS CENTER"
Mall aprox. 454 m
public-square
Piața Romană
Piețe publice aprox. 493 m

Detalii despre preț și costuri

Prețul pe piață

Preț cerut: 375.200 €

Preț min. zonă
Preț max. zonă

96% dintre proprietățile similare ca zonă și nr. camere au prețul cerut mai mic. mai multe...

Bine de știut: prețul unei proprietăți este influențat și de alte caracteristici, cum ar fi: vechime, localizare, vecinătăți, suprafață, compartimentare, amenajări, dotări, etc. mai puțin...

Insight premium disponibil după login

Costuri cu achiziția

Fără credit
Credit ipotecar
Noua casă

i

Costuri adiționale mai puțin știute la achiziție: taxe notariale, comisioane etc.

Insight premium disponibil după login

Proprietăți similare

Apartament cu 3 camere decomandat în Polonă
369.600 € + TVA
București, Polonă
3 camere
83 mp
Etaj 1 / 4
Apartament cu 3 camere în Polonă
375.200 € + TVA
București, Polonă
3 camere
83 mp
Etaj 1 / 4
Apartament cu 3 camere în Polonă
359.600 € + TVA
București, Polonă
3 camere
85 mp
Parter / 4

Detalii de contact

Liliana Chiracu

Amanda David

Liliana Chiracu

Abonează-te la newsletter să fii primul care primește cele mai noi recomandări de proprietăți și sfaturi de la experți.

CONTACT

Creează alertă

Salvează căutarea ca să primești pe email ultimele anunțuri publicate

Apartamente noi cu 3 camere de vânzare în zona Polonă, Sector 1