1

Apartament 3 camere Primaverii | loc de parcare si boxa

630.000 € + TVA

Primăverii, București

Nr. cam.:
3
Sup. utilă:
112 mp
Etaj:
2 / 4
An constr.:
2017 (Finalizată)
  • • Comision 0%
  • • Locație aproximativă

Descriere apartament

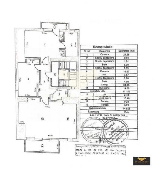
Apartament de Lux - 3 Camere | Zona Primaverii | Imobil 2017 Va prezentam o oportunitate rara de locuire sau investitie intr-una dintre cele mai exclusiviste zone ale Capitalei: Primaverii. Situat la etajul 2 al unui imobil boutique (S+P+4) finalizat in anul 2017, acest apartament redefineste standardele confortului urban prin spatii generoase si finisaje de top. Detalii Suprafata si Compartimentare: • Suprafata Utila Interior: 112 mp • Suprafata Balcoane: 24.72 mp (doua balcoane spatioase, ideale pentru relaxare) • Suprafata Utila Totala: 136.72 mp • Compartimentare: Complet decomandat, oferind o separare ideala intre zona de zi si cea de noapte. Configuratie si Dotari: Apartamentul este ultrafinisat si se vinde complet mobilat si utilat, fiind gata pentru mutare imediata: • Zona de zi: Living luminos cu bucatarie open-space (mobilata si utilata premium). • Zona de noapte: 2 dormitoare spatioase, deservite de 2 bai elegante. • Depozitare: Hol generos cu spatii dedicate pentru dressing. • Eficienta: Clasa energetica A, ferestre cu tamplarie din aluminiu (izolare fonica si termica superioara), climatizare prin aer conditionat. Facilitati Incluse: Proprietatea se vinde impreuna cu: • 1 Loc de parcare subteran/suprateran. • 1 Boxa pentru depozitare suplimentara. • Imobilul dispune de lift modern, interfon si izolatie exterioara de inalta calitate. Locatie de Prestigiu: Situat in inima cartierului Primaverii, apartamentul ofera acces pietonal rapid catre: • Parcul Herastrau si Parcul Bordei. • Restaurante fine-dining, cafenele exclusiviste si zone de shopping premium. • Conexiuni facile catre principalele hub-uri de business si mijloace de transport in comun. Programari Vizionari: Proprietatea a fost verificata si este disponibila pentru promovare. Va invitam sa programati o vizionare in orice zi a saptamanii: • Luni - Vineri: 09:00 - 21:00 • Sambata - Duminica: 10:00 - 20:00
Citește mai mult Citește mai puțin
Confort lux Decomandat Mobilat 2 Balcoane / Terase / Logii Aer condiționat Calorifere Centrală imobil 1 Parcare 1 Parcare / Garaj / Parcare subterană

Detalii apartament

ID anunț: XEK510DU3 Copiat! 275345522 Copiat!
Actualizat în: 24 Martie 2026
Suprafață construită: 160 mp
Nr. bucătării: 1
Nr. băi: 2
Tip imobil: Bloc de apartamente
Regim înălțime: S+P+4E

Utilități

Pereți
Vopsea lavabilă Faianță
Podele
Parchet Gresie
Ușă intrare
Metal
Uși interior
Lemn
Izolații termice
Bloc izolat termic
Ferestre cu geam termopan
Aluminiu
Contorizare
Apometre Contor gaz
Bucătărie
Mobilată Utilată
Electrocasnice
Mașină de spălat Frigider Aragaz TV Hotă
Alte spații utile
WC Serviciu
Facilități imobil
Interfon Lift
Utilități
Curent Apă Canalizare Gaze CATV
Amenajare străzi
Asfaltate Iluminat stradal Mijloace de transport în comun

Certificat energetic:

Clasa energetică: A

Disponibilitate proprietate:

Imediat

Puncte de interes

Mijloace transport
metro-station
Statie metrou Aviatorilor
Stații metrou aprox. 58 m
metro-station
Piata Aviatorilor (M2)
Stații metrou aprox. 183 m
bus-station
Statia Piata Charlles de Gaulle linii : 131,282,301,330,331,335.
Stații autobuz aprox. 207 m
tram-station
Statie Tramvai 41 - Casin
Stații tramvai aprox. 1018 m
Școală
school
Scoala ambasadei Federatiei Ruse
Școli aprox. 516 m
school
Liceul "Jean Monnet"
Școli aprox. 520 m
kindergarten
Gradinita cu program normal ""Ge Ce Pic Englishkinder"
Gradinițe aprox. 539 m
university
Universitatea De Stiinte Agronomice Si Medical Veterinare
Universități aprox. 1362 m
Recreere
park
Piața Charles de Gaulle.
Parcuri aprox. 101 m
sports-ground
Skatepark 1
Terenuri sport aprox. 261 m
supermarket
Mega Image
Supermarket aprox. 291 m
mall
"METROPLIS CENTER"
Mall aprox. 1813 m

Detalii despre preț și costuri

Prețul pe piață

Preț cerut: 630.000 €

Preț min. zonă 142.000 €
Preț max. zonă 530.000 €

i

Proprietate cu prețul cerut în afara intervalului mai multe...

Posibile explicații pentru faptul că prețul proprietății este peste cel maxim: imobil nou cu suprafață mare, are dotări și finisaje de lux.
Bine de știut: prețul unei proprietăți este influențat și de alte caracteristici, cum ar fi: vechime, localizare, vecinătăți, suprafață, compartimentare, amenajări, dotări, etc.

Costuri cu achiziția

Fără credit
29.087 RON
Credit ipotecar
33.438 RON
Noua casă
4.027 RON+ taxe notariale

i

Costuri adiționale mai puțin știute la achiziție: taxe notariale, comisioane etc.

Proprietăți similare

Apartament cu 3 camere decomandat în Primăverii
650.001 € + TVA
București, Primăverii
3 camere
112 mp
Etaj 2 / 6
Apartament cu 3 camere în Primăverii
580.000 €
București, Primăverii
3 camere
98 mp
Etaj 3 / 6
Apartament cu 3 camere decomandat, mobilat în Primăverii
650.000 €
București, Primăverii
3 camere
116 mp
Etaj 3

Detalii de contact

Abonează-te la newsletter să fii primul care primește cele mai noi recomandări de proprietăți și sfaturi de la experți.

CONTACT

Creează alertă

Salvează căutarea ca să primești pe email ultimele anunțuri publicate

Apartamente cu 3 camere de vânzare în zona Primăverii, Sector 1