Apartament spațios cu 3 camere și 2 balcoane - NOU în Sisești

309.595 € + TVA

Sisești, București

Nr. cam.:
3
Sup. utilă:
108,58 mp
Etaj:
3 / 4
An constr.:
2025 (În construcție)
  • • Locație aproximativă

Descriere apartament

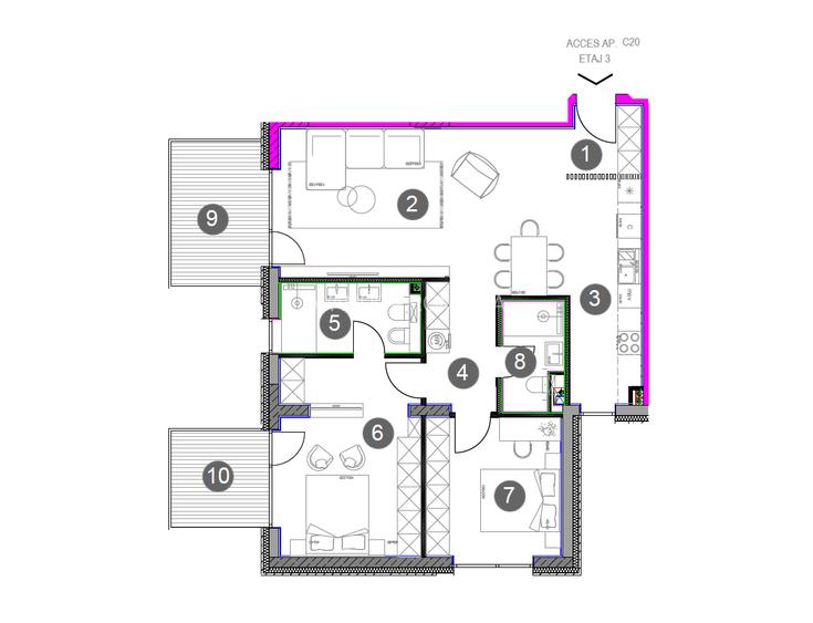
Acest apartament de 3 camere, situat la etajul 3 al proiectului Greenlake din Sectorul 1, București, oferă un design modern și un spațiu generos, ideal pentru confortul locatarilor. Descrierea camerelor: Vestibul (3,10 m²): O intrare primitoare, care oferă un sentiment de căldură și confort. Hol (5,42 m²): Conectează elegant diferitele spații din apartament, facilitând circulația. Living + Dining (29,89 m²): O zonă deschisă și luminoasă, perfectă pentru petrecerea timpului alături de familie și prieteni. Bucătărie (10,44 m²): Spațioasă și bine amenajată, ideală pentru gătit și servirea meselor. Dormitor 1 (18,18 m²): Confortabil și intim, ideal pentru odihnă. Dormitor 2 (12,60 m²): Un spațiu generos, perfect pentru relaxare, cu suficiente soluții de depozitare. Baie 1 (6,38 m²): Amenajată funcțional pentru a asigura confortul locatarilor. Baie 2 (3,96 m²): O a doua baie, amenajată pentru a oferi confort suplimentar. Balcon 1 (8,98 m²): Ideal pentru relaxare și admirarea peisajului. Balcon 2 (6,18 m²): Un spațiu perfect pentru a savura o cafea dimineața. Apartamentul este orientat spre Sud-Est-Vest, ceea ce permite o expunere optimă la lumină naturală pe parcursul zilei. Finisajele de calitate și izolarea termică asigură un ambient plăcut și confortabil. Pentru mai multe informații și detalii, nu ezitați să ne contactați! Suntem aici pentru a vă ajuta să găsiți casa de vis pe care o meritați!
Citește mai mult Citește mai puțin
Confort lux Decomandat Nemobilat 2 Balcoane / Terase / Logii Piscină Curte Centrală imobil

Detalii apartament

ID anunț: XF2A0000O Copiat! 242434748 Copiat!
Actualizat în: 11 Februarie 2026
Suprafață utilă totală: 123.74 mp
Nr. bucătării: 1
Nr. băi: 2
Structură rezistență: Beton
Tip imobil: Bloc de apartamente
Regim înălțime: S+P+4E

Utilități

Destinație
Rezidențial
Pereți
Faianță Vopsea lavabilă
Podele
Gresie Parchet
Ușă intrare
Metal
Uși interior
Celulare
Izolații termice
Exterior
Ferestre cu geam termopan
Aluminiu
Facilități imobil
Spații agrement
Utilități
Curent Apă Canalizare Gaze CATV
Servicii imobil
Pază Supraveghere video
Amenajare străzi
Asfaltate Betonate Iluminat stradal Mijloace de transport în comun
Comision
standard

Vecinătăți:

Kaufland
Lidl
Regina Maria
Carrefour
Sel Gros

Puncte de interes

Mijloace transport
bus-station
statie Pod Baneasa 131, 205, 261, 335, N113, 304
Stații autobuz aprox. 279 m
bus-station
Aeroportul Baneasa / Soseaua Bucuresti-Ploiesti statie 205, 261, 605, 301, 112
Stații autobuz aprox. 486 m
tram-station
Statie RATB 5
Stații tramvai aprox. 528 m
tram-station
Aeroport Baneasa
Stații tramvai aprox. 530 m
Școală
school
Sala de sport Sc. Gen. 7
Școli aprox. 455 m
kindergarten
Gradinita
Gradinițe aprox. 461 m
school
Scoala Nr. 6
Școli aprox. 474 m
university
Școala Superioară de Aviație Civilă - S.S.Av.C.
Universități aprox. 680 m
Recreere
supermarket
Auto Boca
Supermarket aprox. 314 m
park
Loc de Joaca
Parcuri aprox. 393 m
sports-ground
Teren sportiv
Terenuri sport aprox. 618 m
public-square
Piata Montreal
Piețe publice aprox. 1809 m

Detalii despre preț și costuri

Prețul pe piață

Preț cerut: 309.595 €

Preț min. zonă
Preț max. zonă

51% dintre proprietățile similare ca zonă și nr. camere au prețul cerut mai mic. mai multe...

Bine de știut: prețul unei proprietăți este influențat și de alte caracteristici, cum ar fi: vechime, localizare, vecinătăți, suprafață, compartimentare, amenajări, dotări, etc. mai puțin...

Insight premium disponibil după login

Costuri cu achiziția

Fără credit
Credit ipotecar
Noua casă

i

Costuri adiționale mai puțin știute la achiziție: taxe notariale, comisioane etc.

Insight premium disponibil după login

Proprietăți recomandate

Detalii de contact

AVANDOR ROMANIA

Consultant Vanzari Consultand Vanzari

AVANDOR ROMANIA
PRO

Abonează-te la newsletter să fii primul care primește cele mai noi recomandări de proprietăți și sfaturi de la experți.

CONTACT

Creează alertă

Salvează căutarea ca să primești pe email ultimele anunțuri publicate

Apartamente cu 3 camere de vânzare în zona Sisești, Sector 1