Apartament 4 camere mobilat Sisesti parter curte 63 mp comision 0%

375.000 €

Sisești, București

Nr. cam.:
4
Sup. utilă:
83 mp
Etaj:
Parter / 5
An constr.:
2020
  • • Comision 0%
  • • Locație aproximativă
  • • Vizionare prin apel video

Descriere apartament

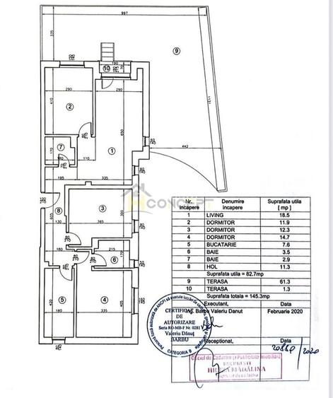
Va propunem spre achizitie un apartament de 4 camere mobilat si utilat ideal pentru familii. Apartamentul este localizat in sector 1, strada Gheorghe Ionescu Sisesti si in pretul afisat sunt incluse doua locuri de parcare subteran. Compartimentarea este una practica si exista spatii ideale pentru depozitare: - open space - 3 dormitoare (1 dormitor matrimonial cu baie) - 2 bai - bucatarie inchisa - curte mare (63 mp). In proximitate se regasesc scoli, hypermarketuri, iar accesul catre marile artere se face foarte usor.
Citește mai mult Citește mai puțin
Confort 1 Decomandat Mobilat Mobilat Curte Aer condiționat Calorifere Centrală proprie 2 Parcări

Detalii apartament

ID anunț: XE99105BF Copiat! 275190541 Copiat!
Actualizat în: 04 Martie 2026
Nr. bucătării: 2
Nr. băi: 1
Tip imobil: Bloc de apartamente
Regim înălțime: D+P+5E

Utilități

Pereți
Faianță Vopsea lavabilă
Podele
Gresie
Ușă intrare
Metal
Ferestre cu geam termopan
PVC
Contorizare
Apometre Contor gaz
Bucătărie
Mobilată
Electrocasnice
Frigider Hotă Mașină de spălat Mașină spălat vase
Facilități imobil
Interfon Lift Videointerfon
Utilități
Curent Apă Canalizare CATV Gaze Telefon
Internet
Cablu Wireless
Amenajare străzi
Iluminat stradal Mijloace de transport în comun Asfaltate
Comision
0%

Disponibilitate proprietate:

Imediat

Puncte de interes

Mijloace transport
bus-station
Statia Drumul Regimentului linii : 205
Stații autobuz aprox. 484 m
bus-station
Statia Piscul Radului, linia 205
Stații autobuz aprox. 566 m
tram-station
Statie Cartier Damaroaia Tv24
Stații tramvai aprox. 1248 m
metro-station
Laminorului (M4)
Stații metrou aprox. 1412 m
Școală
school
International School for Primary Education, Bucharest (en)
Școli aprox. 675 m
school
International School for Primary Education
Școli aprox. 759 m
university
Universitatea Biotera
Universități aprox. 1084 m
kindergarten
Gradinita Ursuletu
Gradinițe aprox. 1345 m
Recreere
park
Parc
Parcuri aprox. 446 m
sports-ground
Teren sportiv
Terenuri sport aprox. 546 m
restaurant
Vatra Noua
Restaurant aprox. 798 m
supermarket
CRIS-TIM
Supermarket aprox. 1381 m

Detalii despre preț și costuri

Prețul pe piață

Preț cerut: 375.000 €

Preț min. zonă 171.000 €
Preț max. zonă 560.000 €

100% dintre proprietățile similare ca zonă și nr. camere au prețul cerut mai mic. mai multe...

Bine de știut: prețul unei proprietăți este influențat și de alte caracteristici, cum ar fi: vechime, localizare, vecinătăți, suprafață, compartimentare, amenajări, dotări, etc. mai puțin...

Costuri cu achiziția

Fără credit
15.782 RON
Credit ipotecar
18.487 RON
Noua casă
2.052 RON+ taxe notariale

i

Costuri adiționale mai puțin știute la achiziție: taxe notariale, comisioane etc.

Proprietăți similare

Apartament cu 3 camere decomandat în Sisești
387.848 € + TVA
București, Sisești
3 camere
105 mp
Etaj 3 / 5
Apartament cu 4 camere decomandat în Sisești
349.500 € + TVA
București, Sisești
4 camere
145 mp
Etaj 3
Apartament cu 3 camere decomandat în Sisești
387.848 € + TVA
București, Sisești
3 camere
105 mp
Etaj 3 / 5

Detalii de contact

HConcept

Marius Vasile Broker Imobiliar

HConcept
PRO

Abonează-te la newsletter să fii primul care primește cele mai noi recomandări de proprietăți și sfaturi de la experți.

CONTACT

Creează alertă

Salvează căutarea ca să primești pe email ultimele anunțuri publicate

Apartamente cu 4+ camere de vânzare în zona Sisești, Sector 1