Apartament 4 camere Șoseaua Nordului | Parcare

490.000 €

Șoseaua Nordului, București

Nr. cam.:
4
Sup. utilă:
120 mp
Etaj:
Parter / 5
An constr.:
2009 (Finalizată)
  • • Locație aproximativă

Descriere apartament

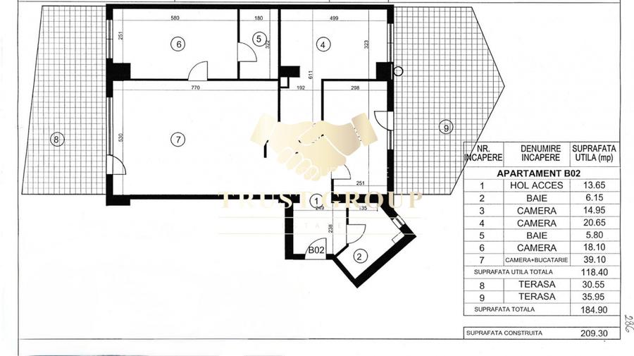
Va propunem un apartament de patru camere in zona Șoseaua Nordului , in apropiere de mijloacele de transport in comun, parc si alte facilitati. Apartamentul este situat la parterul unui imobil finalizat in anul 2009 , izolat termic pe exterior , securizat cu video -interfon si paza . Dispune de o suprafata totala utila de 185 mp + 2 terase 66,55 mp , este decomandat si compartimentat astfel: living, bucatarie, trei dormitoare, doua bai, hol, spatiii de depozitare si doua terase . Apartamentul se preteaza ca si locuinta de familie sau investitie si se vinde liber. -Clasa energetica : A *Proprietatea a fost verificata si este valabila, confirmarea fiind facuta, atat timp cat este la promovare. *Pentru mai multe detalii si pentru programarea unei vizionari, sunati in orice zi intre orele 09:00 si 21:00 inclusiv in week-end incepand cu ora 10:00 pana la 22:00.
Citește mai mult Citește mai puțin
Confort 1 Decomandat Aer condiționat Calorifere Centrală proprie 1 Parcare Bine întreținut (Bună)

Detalii apartament

ID anunț: XC45201CT Copiat! 275337024 Copiat!
Actualizat în: 23 Martie 2026
Suprafață construită: 210 mp
Nr. bucătării: 1
Nr. băi: 2
Tip imobil: Bloc de apartamente
Regim înălțime: P+5E
Nr. terase: 2

Utilități

Pereți
Vopsea lavabilă
Podele
Parchet Gresie
Contorizare
Apometre Contor căldură Contor gaz
Bucătărie
Mobilată Utilată
Diverse
Senzor de fum Sistem de alarmă Telecomandă poartă acces auto
Alte spații utile
Terasă WC Serviciu
Facilități imobil
Videointerfon Lift
Utilități
Curent Apă Canalizare Gaze
Servicii imobil
Supraveghere video
Amenajare străzi
Asfaltate Iluminat stradal Mijloace de transport în comun

Certificat energetic:

Clasa energetică: A

Puncte de interes

Mijloace transport
bus-station
Parcul Herastrau
Stații autobuz aprox. 734 m
bus-station
Parcul Herastrau
Stații autobuz aprox. 746 m
tram-station
Maguricea
Stații tramvai aprox. 1056 m
metro-station
Metrorex. Stația Aurel Vlaicu (M2)(1987)
Stații metrou aprox. 1185 m
Școală
kindergarten
Gradinita
Gradinițe aprox. 328 m
kindergarten
Grădinița Mary Poppins
Gradinițe aprox. 608 m
school
Scoala generala nr.12
Școli aprox. 633 m
university
ICPA Bucuresti
Universități aprox. 1440 m
Recreere
sports-ground
Teren de Tenis
Terenuri sport aprox. 81 m
park
Parc
Parcuri aprox. 160 m
supermarket
Carrefour Market
Supermarket aprox. 530 m
public-square
Piata Montreal
Piețe publice aprox. 1251 m

Detalii despre preț și costuri

Prețul pe piață

Preț cerut: 490.000 €

Preț min. zonă 106.998 €
Preț max. zonă 449.000 €

i

Proprietate cu prețul cerut în afara intervalului mai multe...

Posibile explicații pentru faptul că prețul proprietății este peste cel maxim: imobil nou cu suprafață mare, are dotări și finisaje de lux.
Bine de știut: prețul unei proprietăți este influențat și de alte caracteristici, cum ar fi: vechime, localizare, vecinătăți, suprafață, compartimentare, amenajări, dotări, etc.

Costuri cu achiziția

Fără credit
19.734 RON
Credit ipotecar
22.928 RON
Noua casă
2.639 RON+ taxe notariale

i

Costuri adiționale mai puțin știute la achiziție: taxe notariale, comisioane etc.

Proprietăți similare

Apartament cu 4 camere semidecomandat, mobilat în Șoseaua Nordului
449.000 €
București, Șoseaua Nordului
4 camere
107,27 mp
Etaj 4 / 6
Apartament cu 3 camere decomandat, mobilat în Șoseaua Nordului
450.000 €
București, Șoseaua Nordului
3 camere
71 mp
Etaj 5 / 5
Apartament cu 3 camere decomandat, mobilat în Șoseaua Nordului
469.999 €
București, Șoseaua Nordului
3 camere
110 mp
Etaj 5 / 6

Detalii de contact

TRUST GROUP ESTATE

Madalina Sakamoto Senior Consultant Imobiliar

2.30(10 review-uri)

TRUST GROUP ESTATE
PRO

Abonează-te la newsletter să fii primul care primește cele mai noi recomandări de proprietăți și sfaturi de la experți.

CONTACT

Creează alertă

Salvează căutarea ca să primești pe email ultimele anunțuri publicate

Apartamente cu 4+ camere de vânzare în zona Șoseaua Nordului, Sector 1