4

Vânzare duplex luminos 4 camere cu grădină Bucureștii Noi Străulești

300.000 €

Străulești, București

Nr. cam.:
4
Sup. utilă:
98 mp
Etaj:
Parter
An constr.:
2021
  • • Locație aproximativă

Descriere apartament

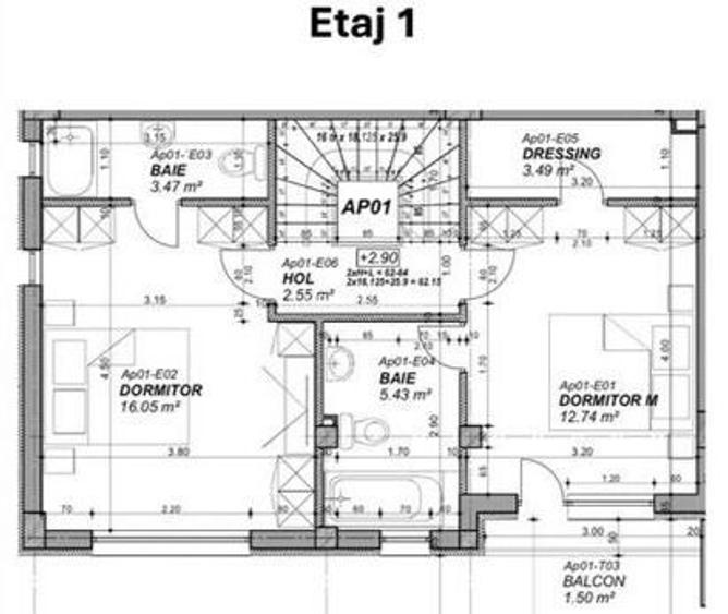
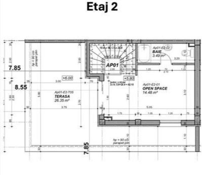
Un spațiu care îmbină confortul zilnic cu intimitatea fiecărui membru al familiei. Lumina sud-vestică inundă casa de la finalul dimineții până la apus, iar terasa rooftop și grădina creează locuri naturale pentru relaxare, lucru sau seri petrecute cu prietenii. Date esențiale Suprafață utilă: 98,5 mp Suprafață teren: 104 mp Suprafață construită: 137,9 mp Terase + grădină: ~65 mp (include rooftop generos) 4 camere | 4 băi 2 locuri de parcare An construcție: 2021 Compartimentare Parter – living, dining și bucătărie open-space, baie, ieșire directă către terasă și grădină amenajată. Etaj 1 – dormitor matrimonial cu dressing și baie proprie + dormitor secundar cu baie proprie. Etaj 2 – birou / open-space (poate deveni dormitor), baie și terasă rooftop ideală pentru lounge sau dining în aer liber. Finisaje & confort Tâmplărie Salamander Termoizolație exterioară (polistiren 10 cm) Centrală termică proprie Suprafețe vitrate mari, spații luminoase Consum mediu gaz iarna: 200–300 mc/lună la ~23°C (istoric disponibil) Curte & exterior Grădină complet amenajată Gazon cu sistem automat de irigare Magazie exterioară pentru depozitare Copaci pentru umbră naturală vara Localizare Situat în Bucureștii Noi – Doi Cocoși / Străulești, la 10–15 minute de mers pe jos de metrou Străulești. Acces rapid către Colosseum, Kaufland, Mega Image, Lidl (~5 min), Băneasa Shopping City (~15 min) și zone verzi precum Mogoșoaia, Bazilescu sau Herăstrău. Opțional pentru cumpărător Sistem smart home Apple Home / HomeKit (control încălzire pe camere, geofencing, Tado, camere Netatmo, yală August) Aer condiționat Daikin – 4 unități Programator irigații Electrocasnice bucătărie Franke / AEG / Samsung Corpuri de iluminat Pentru mai multe informații si vizionari, va stam la dispoziție.
Citește mai mult Citește mai puțin
Confort 1 Decomandat Mobilat 1 Balcon / Terasă / Logie Grădină Aer condiționat Centrală proprie 2 Parcări

Detalii apartament

ID anunț: X9GA101BV Copiat! 275377786 Copiat!
Actualizat în: 01 Aprilie 2026
Suprafață construită: 137 mp
Nr. bucătării: 1
Nr. băi: 4
Structură rezistență: Cărămidă
Tip imobil: Casă/Vilă
Regim înălțime: P+2E
Nr. terase: 1

Utilități

Destinație
Rezidențial
Pereți
Faianță Vopsea lavabilă
Podele
Gresie
Ușă intrare
Metal
Uși interior
Lemn
Izolații termice
Exterior
Ferestre cu geam termopan
PVC
Contorizare
Apometre
Electrocasnice
Frigider Hotă Mașină de spălat TV
Alte spații utile
WC Serviciu Terasă
Utilități
Curent Apă Canalizare CATV
Amenajare străzi
Iluminat stradal Mijloace de transport în comun Asfaltate
Comision
standard

Disponibilitate proprietate:

data_properties.property_availability.Imediat

Puncte de interes

Mijloace transport
bus-station
Statia Doi Cocosi linia 304
Stații autobuz aprox. 117 m
metro-station
Străulești (M4)
Stații metrou aprox. 315 m
bus-station
Straulesti
Stații autobuz aprox. 399 m
tram-station
Laromet
Stații tramvai aprox. 1306 m
Școală
school
Scoala Generala Nr. 13
Școli aprox. 912 m
school
Scoala 13
Școli aprox. 918 m
kindergarten
Gradinita de copii nr.47
Gradinițe aprox. 1649 m
kindergarten
Gradinita Nr. 47
Gradinițe aprox. 1659 m
Recreere
restaurant
La Doi Cocoși - Restaurant, Club
Restaurant aprox. 144 m
sports-ground
Teren sportiv
Terenuri sport aprox. 261 m
park
Parc
Parcuri aprox. 283 m
supermarket
Mega Image
Supermarket aprox. 712 m

Detalii despre preț și costuri

Prețul pe piață

Preț cerut: 300.000 €

Preț min. zonă 185.000 €
Preț max. zonă 385.000 €

70% dintre proprietățile similare ca zonă și nr. camere au prețul cerut mai mic. mai multe...

Bine de știut: prețul unei proprietăți este influențat și de alte caracteristici, cum ar fi: vechime, localizare, vecinătăți, suprafață, compartimentare, amenajări, dotări, etc. mai puțin...

Costuri cu achiziția

Fără credit
13.206 RON
Credit ipotecar
15.593 RON
Noua casă
1.670 RON+ taxe notariale

i

Costuri adiționale mai puțin știute la achiziție: taxe notariale, comisioane etc.

Proprietăți similare

Apartament cu 4 camere în Străulești
300.000 € + TVA
București, Străulești
4 camere
98 mp
Parter
Apartament cu 3 camere decomandat în Străulești
285.000 € + TVA
București, Străulești
3 camere
178 mp
Etaj 5 / 5
Apartament cu 4 camere decomandat în Străulești
291.300 €
București, Străulești
4 camere
92 mp
Parter / 4

Detalii de contact

Kostas Imob

Kostas Parusca Director vanzari

Kostas Imob
PRO

Abonează-te la newsletter să fii primul care primește cele mai noi recomandări de proprietăți și sfaturi de la experți.

CONTACT

Creează alertă

Salvează căutarea ca să primești pe email ultimele anunțuri publicate

Apartamente noi cu 4+ camere de vânzare în zona Străulești, Sector 1