Va prezentam spre vanzare apartament de 3 camere pozitionat in sector 1, pe strada Turda.
Apartamentul este situat la etajul 3 din 10 intr-un bloc construit in 1982 si beneficiaza de loc de parcare propriu in spatele blocului.
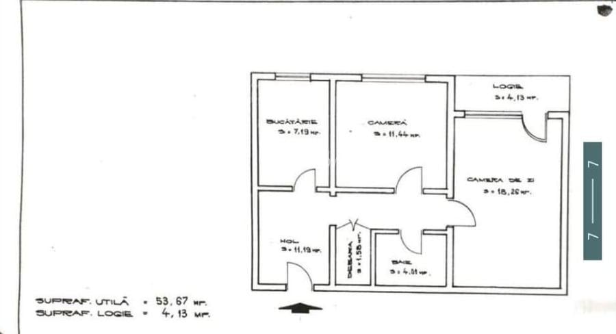
Este renovat in totalitate, in prezent avand 3 camere. Bucataria era destul de generoasă si a fost transformată in dormitor pentru copil.
Se vinde complet mobilat si utilat, beneficiaza de AC si boiler, iar instalatiile sanitare si electrice au fost schimbate.
Se afla la 10 min de stațiiile de metrou Grivița sau Basarab, 1 km pana la Arcul de Triumf, Parcul Herăstrau sau Victoriei.
Acces rapid catre liniile importante de transport in comun catre centrul orasului: linia 41 si 381 la 400 m.
Institutii medicale importante in apropiere: spitalul CFR 2, spitalul Elias, maternitatea Filantropia.
Suprafata verde: Parcul Regina Maria se afla in proximitate, cu spatii de joaca pentru copii si zone destinate animalelor de companie.
57%dintre proprietățile similare ca zonă și nr. camere au prețul cerutmai mic.
mai multe...
Bine de știut: prețul unei proprietăți este influențat și de alte caracteristici, cum ar fi: vechime, localizare, vecinătăți, suprafață, compartimentare, amenajări, dotări, etc.
mai puțin...
Insight premium disponibil după login
Costuri cu achiziția
Fără credit
€
Credit ipotecar
€
Noua casă
€
i
Costuri adiționale mai puțin știute la achiziție: taxe notariale, comisioane etc.
Sediul central - Timișoara
Bulevardul Victor Babeș nr. 2, 300230, Timișoara, România
Tel: +40.374.40.44.98 / Fax: +40.256.401.179
Email: suport@imobiliare.ro
Luni - Vineri 08:00 - 20:00
Punct de lucru - București: Iride Business Park, Bld. Dimitrie
Pompeiu 9-9A, Clădirea B2B,
020335, Sector 2, București, România
CONTACT
Sediul central - Timișoara
Bulevardul Victor Babeș nr. 2, 300230, Timișoara, România
Tel: +40.374.40.44.98 / Fax: +40.256.401.179
Email: suport@imobiliare.ro
Luni - Vineri 08:00 - 20:00
Punct de lucru - București: Iride Business Park, Bld. Dimitrie
Pompeiu 9-9A, Clădirea B2B,
020335, Sector 2, București, România
Vechea "Gara a Targovistei" astazi parte din Gara de Nord
aprox.
1769 m
Gradinita Cami
aprox.
144 m
Gradinita de copii nr.222
aprox.
203 m
Afterschool inGenius
aprox.
207 m
Gradinita de copii nr.97
aprox.
312 m
Liceul Teoretic "Nicolae Iorga"
aprox.
349 m
Liceul Nicolae Iorga
aprox.
362 m
Scoala Gimnaziala Petre Ispirescu, nr.171
aprox.
455 m
Gradinita de copii Nr.42
aprox.
521 m
Lexis School of Languages (en)
aprox.
756 m
Scoala Generala Nr. 17 "Pia Bratianu"
aprox.
757 m
Scoala Generala nr. 17
aprox.
765 m
Gradinita de copii nr.116
aprox.
789 m
Scoala Gimnaziala nr.170 Geo Bogza
aprox.
811 m
Liceul Teoretic Ion Neculce
aprox.
829 m
Gradinita de copii nr.43
aprox.
874 m
Gradinita nr. 222
aprox.
208 m
Gradinita 97
aprox.
299 m
Gradinita Casuta Piticilor
aprox.
410 m
Gradinita Karin's Kids Academy
aprox.
780 m
Gradinita nr. 43
aprox.
874 m
Gradinita de copii nr.281 Steaua
aprox.
971 m
Gradinita nr. 281
aprox.
982 m
Gradinita Nr. 43
aprox.
1014 m
Gradinita de Copii Nr. 52
aprox.
1069 m
Gradinita cu program normal ""Ge Ce Pic Englishkinder"
aprox.
1117 m
Gradinita nr. 248
aprox.
1200 m
Gradinita cu Program Prelungit Nr. 248
aprox.
1209 m
Gradinita nr. 112
aprox.
1348 m
Gradinita nr. 206
aprox.
1391 m
Gradinita nr. 2
aprox.
1396 m
Facultatea de Biotehnologii
aprox.
927 m
Facultatea de Viticultura
aprox.
977 m
Universitatea De Stiinte Agronomice Si Medical Veterinare
aprox.
1018 m
Universitatea de Stiinte Agronomice si Medicina veterinara
aprox.
1051 m
Campus Universitatea de Stiinte Agronomice si Medicina Veterinara Bucuresti
aprox.
1071 m
ICPA Bucuresti
aprox.
1177 m
Universitatea Romano-Americana
aprox.
1284 m
Universitatea Politehnica Bucuresti
aprox.
1705 m
Universitatea Politehnica - Polizu
aprox.
1705 m
Facultatea de Chimie Industriala
aprox.
1740 m
Facultatea de Inginerie Aerospatiala
aprox.
1754 m
Corp A
aprox.
1760 m
Facultatea de Inginerie Medicala
aprox.
1774 m
Institutul Medico-Militar
aprox.
1880 m
CARREFOUR Express Mihalache
aprox.
400 m
Mega Image Domenii Non-Stop
aprox.
417 m
Branza Sibiu
aprox.
468 m
Mega Image
aprox.
533 m
Annabella
aprox.
573 m
Mega Image piata 1Mai Non-Stop
aprox.
877 m
Mega Image
aprox.
884 m
Rom Sep
aprox.
894 m
Mega Image
aprox.
911 m
Best Market 1
aprox.
1087 m
Mega Image Titulescu 2
aprox.
1210 m
Mega Image
aprox.
1228 m
Mega Image Giulesti-Prunaru
aprox.
1334 m
Magazin Alimentar
aprox.
1389 m
Mega Image
aprox.
1393 m
Parcare Str. Turda
aprox.
194 m
Parcare
aprox.
592 m
Parcare
aprox.
690 m
Parcare Strada Clucerului
aprox.
723 m
Parcare
aprox.
797 m
Parcare
aprox.
823 m
Parcare
aprox.
842 m
Parcare
aprox.
884 m
Parcare
aprox.
975 m
Parcare
aprox.
1171 m
Parcare
aprox.
1176 m
Parcare
aprox.
1200 m
Parcare privata
aprox.
1346 m
Parcare privata
aprox.
1357 m
Parcare privata
aprox.
1368 m
Parc
aprox.
330 m
Parc
aprox.
385 m
Parc
aprox.
467 m
Parc
aprox.
477 m
Parcul Regina Maria
aprox.
505 m
Parcul Regina Maria
aprox.
522 m
Parc
aprox.
655 m
Parc
aprox.
655 m
Clubul Copiilor nr. 1, Ciresarii
aprox.
737 m
Parc
aprox.
786 m
Loc de joaca
aprox.
828 m
Arcul de Triumf
aprox.
949 m
Rozariu
aprox.
970 m
Rozariu
aprox.
977 m
Serele de FLORI - catedra de Floricultura - Facultatea Horticultura
aprox.
991 m
Teren sportiv
aprox.
464 m
Teren sportiv
aprox.
608 m
FRR
aprox.
926 m
Teren sportiv
aprox.
967 m
Teren sportiv
aprox.
1027 m
Teren sportiv
aprox.
1075 m
Teren sportiv
aprox.
1087 m
Teren sportiv
aprox.
1091 m
Teren sportiv
aprox.
1110 m
Teren sportiv
aprox.
1111 m
Teren sportiv
aprox.
1125 m
Teren sportiv
aprox.
1127 m
Teren sportiv
aprox.
1134 m
Teren sportiv
aprox.
1134 m
Teren sportiv
aprox.
1139 m
Piața Aviatorilor
aprox.
1395 m
Piata Montreal
aprox.
1491 m
Synevo Analize medicale
aprox.
247 m
Pediatrie
aprox.
574 m
Spitalul de Copii Caraiman
aprox.
618 m
Centrul Medireflex
aprox.
635 m
Genesys Fertility Center
aprox.
661 m
Lotus-Med Clinica de nutritie
aprox.
690 m
INGG "ANA ASLAN"
aprox.
706 m
Spitalul "Agrippa Ionescu"
aprox.
903 m
Institutul de diabet Paulescu (en)
aprox.
903 m
Centrul De Boli Cardiovasculare Angiomedica
aprox.
903 m
Institutul de diabet Paulescu
aprox.
903 m
Spitalul de Urgenta Prof. Dr. Agrippa Ionescu
aprox.
914 m
Neuroptics
aprox.
960 m
Spitalul Sfanta Maria
aprox.
1007 m
Spitalul de Chirurgie Plastica, Reparatorie si Arsi
aprox.
1010 m
Help Net 49
aprox.
266 m
Dona
aprox.
266 m
Farmacia Richter
aprox.
277 m
Catena
aprox.
305 m
Sensiblu
aprox.
337 m
Punkt
aprox.
344 m
Homeofarm
aprox.
350 m
Catena Farmacie
aprox.
374 m
Farmacia Averescu
aprox.
378 m
Help Net Farma
aprox.
421 m
Sorina
aprox.
457 m
Catena
aprox.
467 m
Sensiblu
aprox.
517 m
MC Serv Tour
aprox.
577 m
Farmacie
aprox.
594 m
Jerry's Pizza - 1 Mai
aprox.
287 m
Fabio Pizza
aprox.
447 m
La Placinte Mihalache
aprox.
478 m
PHD by Pizza Hut MIHALACHE 021.210.10.10
aprox.
480 m
La Placinte
aprox.
488 m
La Placinte
aprox.
499 m
Hotel Triumf ***
aprox.
524 m
Chocolateria Reine Astrid si Ceainaria Triangle D'Or (en)
aprox.
551 m
Restaurantul Beirut
aprox.
572 m
Beirut
aprox.
588 m
Jadoo
aprox.
596 m
RESTAURANT "41"
aprox.
607 m
Meat Factory
aprox.
615 m
L'esperance
aprox.
676 m
La Bonne Tarte Brasserie
aprox.
677 m
French Bakery
aprox.
531 m
Seneca AntiCafe
aprox.
884 m
CAFEA - La Haig Keskerian
aprox.
915 m
The King
aprox.
1123 m
Bordo Caffe1
aprox.
1150 m
Starbucks
aprox.
1526 m
Golf&Coffee
aprox.
1545 m
Gloria Jean's
aprox.
1556 m
Cafe Centro
aprox.
1574 m
Cafe Antipa
aprox.
1599 m
Meron Coffee
aprox.
1734 m
Sufrageria cu Jocuri
aprox.
1897 m
Admiral Cafe
aprox.
1923 m
The Place
aprox.
836 m
Casa Mara
aprox.
1134 m
The Dubliner
aprox.
1260 m
Le Cafe Inmedio
aprox.
1855 m
Doncafe Brasserie
aprox.
1941 m
Zodiac
aprox.
866 m
Clubul Taranului
aprox.
1414 m
Bar Adesim
aprox.
1462 m
Banca Transilvania - Ag. Domenii
aprox.
285 m
Marfin Bank
aprox.
320 m
Piraeus Bank
aprox.
320 m
CEC Bank
aprox.
329 m
Raiffeisen Bank
aprox.
334 m
BCR
aprox.
346 m
Volksbank
aprox.
350 m
ING Mihalache
aprox.
352 m
Bancpost
aprox.
360 m
Raiffeisen Bank - Agentia Ion Mihalache
aprox.
414 m
Bankpost
aprox.
457 m
Garanti Bank
aprox.
457 m
BRD
aprox.
458 m
Banca Romaneasca
aprox.
584 m
Alpha Bank
aprox.
595 m
Zona 1 Mai dispune nu doar de o poziție privilegiată față de centrul Capitalei, dar este și conectată cu alte cartiere ale orașului prin diverse mijloace de transport în comun. Poți să iei metroul de la stațiile aflate de-a lungul Căii Grivița, mai exact 1 Mai, Grivița și Basarab. Toate acestea se află pe Magistrala M4 care leagă Gara de Nord de zona Străulești. Astfel, vei ajunge de la stația Basarab la Piața Victoriei chiar și în 5 minute. Iar în zona Eroilor în circa 10 minute. Alte mijloace de transport în comun la care ai putea să apelezi dacă te muți în zona 1 Mai sunt tramvaiul 42, care leagă Piața Presei de Gara de Nord și tramvaiul 41, care ajunge în Drumul Taberei și în Ghencea. Consultă harta pentru a vedea care sunt cele mai apropiate stații de locuința de care ești interesat.
Una dintre principalele unități de învățământ din zona 1 Mai este Colegiul Național "Ion Neculce". Acesta este amplasat în apropierea Cimitirului evreiesc Filantropia. Colegiul poate fi potrivit dacă îți dorești ca încă din clasa a V-a copilul tău să învețe intensiv o limbă străină, având în vedere că acesta dispune de clase cu program intensiv în limba germană și italiană. Găsești pe hartă și alte unități de învățământ aflate în zona 1 Mai și în vecinătatea acesteia.
Ești interesat de o locuință în zona 1 Mai și te gândești unde ai putea să-ți faci cumpărăturile odată ce te muți acolo? Vei avea în zonă Piața Ion Mihalache și în apropiere Piața Domenii. Poți să ajungi destul de ușor la magazinele Kaufland sau Penny de pe Bulevardul Bucureștii Noi, iar cu mașina ajungi în câteva minute la complexul comercial Colosseum Retail Park de pe Șoseaua Chitilei. Cele mai apropiate mall-uri vor fi AFI Cotroceni, Băneasa Shopping City sau Promenada. Distanța pe care va trebui să o parcurgi pentru a ajunge la acestea va fi destul de mare, motiv pentru care vei merge la ele doar cu mașina. Află unde îți vei putea face cumpărăturile dacă te muți în zona 1 Mai consultând harta.
Dacă ai mașină sau te gândești să îți iei carnetul în curând și să nu mai circuli cu mijloacele de transport în comun, atunci trebuie să știi că traficul rutier în zona 1 Mai este concentrat pe marile artere de circulație, precum bulevardele Ion Mihalache și Banu Manta, Calea Grivița și Șoseaua Nicolae Titulescu. La marginea acestei zone se află, totodată, Pasajul Basarab care unește Sectorul 1 de Sectorul 6 și face parte din inelul interior de circulație al Bucureștiului, dar și Podul Grant care leagă Bulevardul Ion Mihalache de cartierul Crângași. La orele de vârf, traficul este de multe ori îngreunat. Îți recomandăm, totodată, să verifici dacă poți închiria un loc de parcare pentru mașina ta în apropierea locuinței de care ești interesat. Pentru a face acest lucru trebuie să te adresezi Serviciului Parcaje din cadrul ADP Sector 1. Consultă harta și află unde sunt localizate principalele parcări din zonă.
Dacă alegi să te muți în zona 1 Mai vei avea relativ aproape Parcul Regele Mihai I al României (fostul Herăstrău). Aici te vei putea plimba alături de familie în weekend-uri sau vei putea petrece câteva ore la terasă cu prietenii. Un alt parc aflat în vecinătatea acestei zone este Kiseleff, iar lângă el găsești trei muzee importante din Capitală - Antipa, Muzeul Țăranului Român și Muzeul de Geologie. Poți face aici o vizită educativă alături de copilul tău. Și Parcul Bazilescu se află în apropiere. Poți să ajungi rapid la el cu troleibuzul 97. Nici Centrul Expozițional Romexpo, unde sunt organizate periodic diferite concerte, expoziții și târguri, nu se va afla departe de noua ta locuință. O plimbare cu bicicleta în zona Parcului Regele Mihai I al României poate fi o altă variantă bună de relaxare în timpul liber. Ajungi destul de repede și pe Calea Victoriei. Și aici ai o pistă specială pentru bicicliști, dar poți să faci un popas și la una dintre cafenelele din zonă. Dacă preferi să-ți petreci ziua la cumpărături, atunci vei ajunge cu mașina în câteva minute la mall-ul Băneasa Shopping City. Consultă harta și află ce alte opțiuni de petrecere a timpului liber vei avea la dispoziție, dacă te muți în zona 1 Mai.
În zona 1 Mai și în apropierea acesteia ai la dispoziție mai multe unități sanitare la care poți apela. Amintim în acest sens Spitalul Clinic Sfânta Maria, de pe Bulevardul Ion Mihalache, spitalele Elias și CF 2 din zona Domenii și MedLife Life Memorial Hospital de pe Calea Griviței. Găsești pe hartă și alte clinici private la care ai acces în împrejurimi.
Găsești câteva restaurante pe Bulevardul Ion Mihalache și în apropierea Parcului Regele Mihai I, în special în Piața Charles de Gaulle. Ajungi destul de repede și în Piața Victoriei unde ai la dispoziție câteva restaurante de tip fast food - McDonald"™s, Subway, Springtime - și două cafenele Starbucks. Dacă pornești apoi pe Calea Victoriei ai la dispoziție numeroase localuri, inclusiv terase. Cu mașina poți să ajungi rapid și la mall-ul Băneasa Shopping CIty unde ai la dispoziție numeroase restaurante, fast food-uri, cafenele și cofetării. Aruncă o privire pe hartă și vezi unde poți lua masa în oraș, dacă te muți în zona 1 Mai.
În zona intersecției dintre Bulevardul Ion Mihalache și Calea Griviței găsești mai multe bancomate - OTP Ban, BRD, BCR. Alte sucursale bancare și ATM-uri sunt disponibile pe Bulevardul Ion Mihalache și în zona Piața Victoriei. Consultă harta. Află ce alte opțiuni ai în apropierea casei.
Înainte să pleci...
Ești sigur că ai văzut și aceste proprietăți?
150.000 €
București, Turda
3 camere
70 mp
Parter
150.000 €
București, Turda
3 camere
66 mp
Parter
158.000 €
București, Turda
2 camere
55 mp
Etaj 2
Creează alertă
Salvează căutarea ca să primești pe email ultimele anunțuri publicate
Apartamente cu 3 camere de vânzare în zona Turda, Sector 1
Cere detalii prin email
*
*
*
*
Detaliile tale de contact vor fi partajate cu Upside Town