Situat în eleganta zonă Armenească, una dintre cele mai rafinate și istorice zone centrale ale Bucureștiului, acest apartament deosebit de 5 camere oferă combinația rară dintre arhitectura interbelică autentică, spații generoase și confortul unei locuințe cu deschidere către exterior.
Proprietatea se află într-un imobil solid construit în perioada 1932–1936, realizat pe structură monolit, cu planșee din beton armat cu armătură de fier – o tehnică modernă pentru acea vreme. Materialele utilizate la construcția clădirii au fost aduse din Europa, ceea ce reflectă standardele ridicate de execuție și durabilitate specifice arhitecturii interbelice.
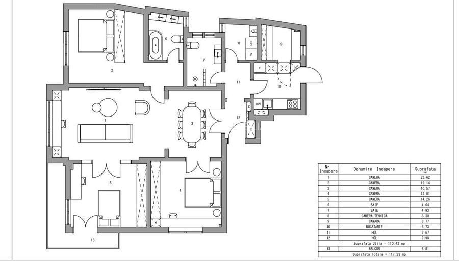
Apartamentul are o suprafață utilă de 117 mp și o suprafață construită de 130 mp, fiind compartimentat armonios cu un living generos, dining separat, dormitor matrimonial cu baie proprie plus o baie pentru celelalte două dormitoare. Spațiile sunt bine proporționate, luminoase și oferă un ambient elegant, specific locuințelor construite în perioada de aur a Bucureștiului, iar renovarea s-a realizat după ultimele standarde, păstrand toate elementele interbelice ale apartamentului. Incălzirea se face prin centrală termică proprie prin pardoseală.
Apartamentul este liber și disponibil imediat, reprezentând o oportunitate excelentă atât pentru rezidență sau birou cât si pentru investiție, într-o zonă centrală apreciată pentru farmecul arhitectural, liniște și proximitatea față de centrul orașului.
O proprietate rară, cu caracter, destinată celor care apreciază autenticitatea arhitecturii interbelice și spațiile generoase într-o locație de prestigiu.
Randarile sunt cu titlu informativ, dar se poate preda cu proiect de mobilare.
Citește mai mult
Citește mai puțin
Confort lux
Semidecomandat
Nemobilat Parțial mobilat
2 Balcoane / Terase / Logii
Aer condiționat
Alte metode electrice
Centrală proprie
Beci
Renovat
Bine întreținut (Bună)
Sediul central - Timișoara
Bulevardul Victor Babeș nr. 2, 300230, Timișoara, România
Tel: +40.374.40.44.98 / Fax: +40.256.401.179
Email: suport@imobiliare.ro
Luni - Vineri 08:00 - 20:00
Punct de lucru - București: Iride Business Park, Bld. Dimitrie
Pompeiu 9-9A, Clădirea B2B,
020335, Sector 2, București, România
CONTACT
Sediul central - Timișoara
Bulevardul Victor Babeș nr. 2, 300230, Timișoara, România
Tel: +40.374.40.44.98 / Fax: +40.256.401.179
Email: suport@imobiliare.ro
Luni - Vineri 08:00 - 20:00
Punct de lucru - București: Iride Business Park, Bld. Dimitrie
Pompeiu 9-9A, Clădirea B2B,
020335, Sector 2, București, România
Statia Foisorul de Foc linia 133, 135, N108,69, 85, 79, 86
aprox.
923 m
Metrorex. Stația Universitate (M2)(1987)
aprox.
666 m
Universitate (M2)
aprox.
680 m
Statia Metrou Piata Universitatii(M2)Metrorex
aprox.
702 m
Statia Metrou Piata Universitatii(M2)Metrorex
aprox.
719 m
Statia Metrou Piata Romana(M2)Metrorex
aprox.
1147 m
Metrorex. Stația Piața Romană (M2)(1988)
aprox.
1186 m
Piata Romana (M2)
aprox.
1186 m
Metrorex. Stația Piața Unirii 2 (M2) (en)
aprox.
1209 m
Statia Metrou Piata Romana(M2)Metrorex
aprox.
1226 m
Piata Unirii 2
aprox.
1310 m
Metrorex. Stația Piața Unirii 2 (M2)(1986)
aprox.
1316 m
Metrorex. Stația Piața Unirii 1 (M1) (en)
aprox.
1385 m
Piata Unirii 1
aprox.
1394 m
Metrorex. Stația Piața Unirii 1 (M1),(M3)(1979)
aprox.
1439 m
Metrorex. Stația Ștefan cel Mare (M1)(1989)
aprox.
1615 m
Statia Foisorul de Foc linii : 79,86
aprox.
915 m
Statia Calea Dorobantilor; Liniile:79, 86,
aprox.
1244 m
Statia Piata Romana linii : 79,86
aprox.
1344 m
Statia Mihai Bravu; Liniile:69, 85,
aprox.
1687 m
Statia Soseaua Mihai Bravu, linia 68,85
aprox.
1727 m
Statia Piata Iancului, linia 55
aprox.
1818 m
Scoala Ajutatoare nr. 1
aprox.
71 m
GRADINITA DE COPII NR. 8 "LICURICI"
aprox.
118 m
Grup Școlar "Dragomir Hurmuzescu"
aprox.
223 m
Cursuri Paleologu
aprox.
257 m
SNSPA - Cladirea CIC
aprox.
277 m
Scoala Generala "Iovan Ducici", Nr 71
aprox.
355 m
Scoala de muzica nr. 4
aprox.
360 m
Colegiul Economic Hermes
aprox.
378 m
Goethe Institut (en)
aprox.
402 m
Amfiteatrul Sahia
aprox.
405 m
Schiller Institut
aprox.
470 m
Scoala Nr. 19 Tudor Arghezi
aprox.
552 m
Grădinița (en)
aprox.
616 m
Grupul Scolar Industrial Unirea
aprox.
617 m
Scoala nr. 23
aprox.
620 m
Gradinita nr.4 "Lizuca"
aprox.
408 m
Gradinita numarul 257
aprox.
486 m
Gradinita nr.203 (fosta Clementa)
aprox.
582 m
Gradinita nr. 203 program prelungit
aprox.
606 m
Gradinita numarul 133
aprox.
784 m
Gradinita numarul 8
aprox.
802 m
Gradinita
aprox.
810 m
Gradinita Magica
aprox.
818 m
Gradinita Ioanid
aprox.
867 m
Ioanid
aprox.
885 m
Gradinita nr. 116
aprox.
1233 m
Gradinita Waldorf
aprox.
1246 m
Amalia's Kindergarten (en)
aprox.
1272 m
Gradinita nr. 85
aprox.
1348 m
Gradinita nr. 138 cu program prelungit
aprox.
1400 m
Facultatea de Farmacie
aprox.
572 m
Facultatea de Farmacie/Pharmacy Faculty
aprox.
580 m
Universitatea din Bucuresti - Facultatea de Stiinte Politice
aprox.
638 m
Facultatea de Stiinte Politice
aprox.
642 m
Rectoratul UMF "Carol Davila"
aprox.
723 m
Facultatea de Chimie
aprox.
740 m
Facultatea de Limbi si Literaturi Straine
aprox.
775 m
Facultatea de litere (en)
aprox.
778 m
University of Bucharest - Faculty of Foreign Languages and Literatures (en)
aprox.
781 m
Centrul de Limbi Straine Ariel
aprox.
788 m
UAUIM -Universitatea de Arhitectura si Urbanism Ion Mincu
aprox.
790 m
Facultatea de Istorie
aprox.
834 m
Facultatea de Matematica-Informatica
aprox.
868 m
Facultatea de Stiinte
aprox.
874 m
Palatul Fundației Universitare "Carol I"
aprox.
956 m
Mega Image Paleologu
aprox.
291 m
OK Non-stop Supermarket (en)
aprox.
438 m
OK Non-Stop
aprox.
438 m
Mega Image - Icoanei
aprox.
553 m
Pravalia Maestrului
aprox.
656 m
Mega Image Concept Store
aprox.
657 m
Mega Image Rosetti Non-Stop
aprox.
766 m
ilanplant
aprox.
854 m
Bacania Coco
aprox.
913 m
Mega Image
aprox.
919 m
Mega Image
aprox.
923 m
Mega Image Magheru
aprox.
1042 m
Cocor
aprox.
1042 m
BILLA - Cocor
aprox.
1049 m
Mega Image - Hala Traian
aprox.
1076 m
"METROPLIS CENTER"
aprox.
1791 m
Parcare
aprox.
285 m
Parcare
aprox.
291 m
Parcare
aprox.
353 m
Parcare cu plata
aprox.
463 m
Parcare
aprox.
510 m
Parcare
aprox.
541 m
Parcare
aprox.
542 m
Parcare
aprox.
580 m
Parcare
aprox.
593 m
Parcare cu plata
aprox.
681 m
Parcare
aprox.
708 m
Parcare privata
aprox.
723 m
Parcare
aprox.
741 m
Parcare
aprox.
763 m
Parcare
aprox.
789 m
Parc
aprox.
194 m
Parc
aprox.
211 m
Spatiu verde
aprox.
382 m
60 Minutes
aprox.
470 m
Parcul Izvorul Rece
aprox.
557 m
Parcul Izvorul Rece
aprox.
557 m
Parc
aprox.
572 m
Parcul Colțea
aprox.
636 m
Small park (en)
aprox.
641 m
Parc
aprox.
641 m
Parc
aprox.
654 m
Parcul Popa Soare
aprox.
661 m
Parcul Izvorul Rece
aprox.
661 m
Rond Piața Universității
aprox.
680 m
Gradina Icoanei
aprox.
684 m
Piata Rosetti
aprox.
391 m
Piata Latina
aprox.
399 m
Piata Universitatii
aprox.
644 m
Piata Roma
aprox.
951 m
Piata Revolutiei
aprox.
952 m
Piata Timpului
aprox.
1014 m
Piața Drapelului (Tricolorului)
aprox.
1033 m
Piața Sfântul Anton
aprox.
1148 m
Piața Romană
aprox.
1360 m
Piata Natiunilor Unite
aprox.
1470 m
Piata Bibescu
aprox.
1632 m
Piata Bucur Obor
aprox.
1729 m
Piata Iancului
aprox.
1906 m
Piața Constituției
aprox.
1927 m
Piata Bucur
aprox.
1956 m
Teren sportiv
aprox.
952 m
Teren sportiv
aprox.
1062 m
Teren sportiv
aprox.
1647 m
Teren sportiv
aprox.
1732 m
Teren sportiv
aprox.
1763 m
Teren sportiv
aprox.
1804 m
Respawn B
aprox.
1851 m
Stadionul Dinamo
aprox.
1875 m
Etaj 1 - Hala CQB
aprox.
1933 m
Parter - Hala mare
aprox.
1937 m
Gradinita
aprox.
1957 m
Respawn A
aprox.
1979 m
INGG Ana Aslan Spatarului nr. 15 (en)
aprox.
233 m
Cabinet stomatologic (en)
aprox.
359 m
ProctoMed
aprox.
373 m
Clinica Reumatologie "Dr. Ion Stoia"
aprox.
404 m
Centrul Medical Batistei
aprox.
451 m
Policlinica (en)
aprox.
469 m
Clinica de 10
aprox.
542 m
Optim Sano
aprox.
619 m
Institutul de Diabet NCPaulescu (en)
aprox.
641 m
Clinica de oftalmologie Ama Optimex
aprox.
645 m
Centrul medical Sanatatea TA
aprox.
659 m
Spitalul Colțea
aprox.
682 m
WORLD CLINIC - O viata fara alergii ! (en)
aprox.
694 m
Spitalul Cantacuzino
aprox.
707 m
Cabinet Gineco
aprox.
772 m
Farmacia Artafarm
aprox.
357 m
Farmacia Tarsis Impex
aprox.
372 m
HelpNet
aprox.
483 m
Reteta
aprox.
520 m
Farmacia Apifarm
aprox.
616 m
Farmacia Carmen
aprox.
628 m
Farmacon CO Impex
aprox.
631 m
Sensiblu
aprox.
641 m
belladona
aprox.
656 m
Sensiblu
aprox.
689 m
Farmacia 2NA
aprox.
706 m
Colvimed
aprox.
731 m
General Smart Farm
aprox.
737 m
Farmacia Artafarm
aprox.
741 m
Farmacia Coltea
aprox.
744 m
Zepelin
aprox.
114 m
Jeunesse Bistro
aprox.
134 m
Piadinerie (en)
aprox.
137 m
Lente Armeneasca (en)
aprox.
142 m
La Dud
aprox.
152 m
edgar trattoria
aprox.
157 m
Christie's
aprox.
236 m
Christie's Restaurant
aprox.
243 m
Naser 2
aprox.
250 m
Orasul Interzis
aprox.
258 m
Restaurant Casa
aprox.
272 m
GINO'S Restaurant & Playground Bar (en)
aprox.
288 m
Shaorma / Falafel Alice
aprox.
308 m
Clasic restaurant , Tequila terrace (en)
aprox.
314 m
Espace Minoux
aprox.
325 m
Lente Arcului
aprox.
150 m
T-zero
aprox.
313 m
T-zone
aprox.
313 m
Carla Caffe
aprox.
334 m
Vesuvio Cafe
aprox.
445 m
The Living Room
aprox.
459 m
Newton Caffe
aprox.
463 m
Hobby Caffe & Shop
aprox.
481 m
Hobby Cafe
aprox.
483 m
Lente Praporgescu
aprox.
517 m
Mi-nut
aprox.
760 m
Bernschutz and Co
aprox.
772 m
Gio Cafe
aprox.
824 m
Hathor Cafe
aprox.
828 m
Art Caffe
aprox.
838 m
Geo Bar
aprox.
250 m
Dianei Patru
aprox.
306 m
Trei Betivi
aprox.
307 m
Que Pasa
aprox.
457 m
Macaz Bar Teatru Coop
aprox.
462 m
Epic
aprox.
531 m
Underworld
aprox.
539 m
MIM Bistro
aprox.
547 m
Galliano Club
aprox.
887 m
Piua Book Bar
aprox.
907 m
Yellow Bar
aprox.
909 m
Chat noir
aprox.
930 m
Voltage Bar
aprox.
932 m
Antic Bar
aprox.
933 m
Fratelli Espresso Bar
aprox.
945 m
Have a Cigar
aprox.
296 m
Smart's Pub & Bistro
aprox.
418 m
Club Surubelnita
aprox.
486 m
Bluzz
aprox.
590 m
Le Boutique Food Concept Store
aprox.
640 m
La Scena
aprox.
714 m
Clock`s
aprox.
774 m
Manasia Hub
aprox.
837 m
Waldo's
aprox.
864 m
Coloseum
aprox.
868 m
Edgar`s Pub
aprox.
892 m
Charlatans Irish Pub
aprox.
923 m
Question Mark Social Club
aprox.
928 m
Hanul cu Tei
aprox.
934 m
Club A
aprox.
937 m
Emporki Bank
aprox.
115 m
Libra Bank Sediul Central
aprox.
240 m
Libra Bank - Sediul Central
aprox.
241 m
ATM - Raiffeisen Bank - Asirom
aprox.
246 m
Piraeus Bank Romania - Sucursala Municipiului Bucuresti
aprox.
249 m
Raiffeisen Bank
aprox.
331 m
BCR
aprox.
352 m
BRD (en)
aprox.
380 m
BRD Calderon-Batistei
aprox.
380 m
BRD Rosetti
aprox.
408 m
Banca Transilvania - Ag. Rosetti
aprox.
431 m
BRD Corbeni
aprox.
470 m
UniCredit Bank - Ag. Rosetti
aprox.
485 m
Ion Tiriac Banc (en)
aprox.
492 m
Piraeus Bank
aprox.
523 m
Zona Ștefan cel Mare - Dacia - Eminescu - Armenească este destul de bine conectată cu alte cartiere din București prin intermediul mijloacelor de transport în comun. Printre acestea amintim autobuzul 605 pe care îl poți lua pentru a ajunge la mall-ul Băneasa Shopping City, tramvaiul 16 care te poate ajuta să ajungi la Piața Sf. Vineri și troleibuzul 86 care oferă o legătură directă cu Gara de Nord. Mai multe stații de metrou sunt și ele disponibile în apropiere. Este vorba despre Ștefan cel Mare și Obor, aflate pe magistrala 1 Dristor - Pantelimon, și despre Piața Romană și Universitate situate pe traseul magistralei 2 Berceni-Pipera. Consultă harta pentru a afla poziționarea exactă a stațiilor mijloacelor de transport în comun.
În zona Ștefan cel Mare - Dacia - Eminescu - Armenească vei găsi mai multe unități de învățământ, de stat și private. Amintim astfel Colegiul Național Școala Centrală de lângă Parcul Grădina Icoanei, Colegiul Național "Spiru Haret" de pe Strada Italiană, Colegiul Național "Cantemir Vodă" și Liceul Economic "Virgil Madgearu", ambele situate pe Bulevardul Dacia. Școala Sanitară Postliceală "Carol Davila" se află și ea în această zonă, iar Academia de Studii Economice din București poate fi găsită în apropiere, la Piața Romană. Consultă harta pentru a vedea care vor fi cele mai apropiate grădinițe, școli și licee de viitoarea ta locuință.
În această zonă vei găsi, în principal, magazine mici și câteva supermarketuri. La intersecția dintre Bulevardul Dacia și Strada Vasile Lascăr vei avea la dispoziție Piața Gemeni și un concept store Mega Image. Cel mai apropiat mall este situat în zona Obor. Este vorba despre Veranda Mall, unul dintre cele mai noi astfel de centre comerciale din București. Tot aici găsești magazinul Bucur Obor și o piață. Cu mașina poți ajunge destul de rapid și la mall-ul Promenada sau la complexul comercial cu magazin Kaufland și Carrefour Market de pe Strada Barbu Văcărescu. Consultă harta și află ce alte opțiuni mai ai aproape de viitoarea ta casă, dar și în împrejurimi.
Îți recomandăm să verifici dacă există posibilitatea închirierii unui loc de parcare în apropierea locuinței de care ești interesat. Poți face acest lucru apelând la Serviciul Parcări din cadrul ADP Sector 2. Atunci îți aducem în atenție faptul că Bulevardul Dacia, Strada Mihai Eminescu și Strada Polonă sunt unele dintre cele mai circulate din această zonă. Trafic intens vei întâlni, totodată, la intersecția dintre Calea Dorobanți, Bulevardul Dacia și Strada Mihai Eminescu. Aglomerație vei găsi și pe Bulevardul Ștefan cel Mare, mai ales la orele de vârf și în zilele în care se organizează evenimente sportive în cadrul stadionului Dinamo. Consultă harta și vezi unde se găsesc principalele parcări din această zonă.
În zona Ștefan cel Mare - Dacia - Eminescu - Armenească se organizează periodic diferite evenimente, de la ateliere, la festivaluri și demonstrații de artă stradală. Dacă te vei muta în această parte a orașului, vei avea la doi pași de casă mai multe ceainării, restaurante, spații unde se organizează jocuri de tip escape room și trei teatre - Țăndărică, Metropolis și Bulandra. Pentru evenimente culturale și seri de film vei putea merge pe Bulevardul Dacia, la Institutul Francez din București. Ajungi repede și în centru, unde poți fi spectatorul unei piese puse în scenă de actorii Teatrului Național București. Parcurile Grădina Icoanei și Ioanid, deși sunt destul de restrânse ca suprafață, sunt unele dintre cele mai frumoase din această parte a orașului. Totodată, în nordul acestei zone, în imediata apropiere a Șoselei Ștefan cel Mare, vei găsi Circul Metropolitan București și parcul acestuia, iar în vecinătatea lor Stadionul Dinamo și complexul său sportiv. Nu uita, totodată, că din această zonă vei ajunge destul de rapid în Centrul Vechi, unde pe lângă terase și restaurante găsești și câteva obiective turistice care merită vizitate măcar o dată. Află ce alte puncte de interes găsești în zona Ștefan cel Mare - Dacia - Eminescu - Armenească și din vecinătatea acesteia. Consultă harta.
Dacă te vei muta în această zonă, vei avea la dispoziție mai multe spitale și clinici private. Printre acestea se numără Spitalul Clinic Dr. Ion Cantacuzino din zona Pieței Gemeni și Spitalul Ion Stroia . Alte unități sanitare din vecinătate sunt Spitalul Clinic Colentina, Spitalul Sf. Ștefan, Spitalul Clinic de Urgență București (cunoscut și ca Floreasca) și Spitalul Euroclinic din rețeaua privată de sănătate Regina Maria. Toate acestea sunt concentrate în nordul zonei Ștefan cel Mare - Dacia - Eminescu - Armenească, în vecinătatea Stadionului Dinamo și a Parcului Circului. Vezi pe hartă localizarea exactă a unităților medicale de mai sus.
Presărate pe străzile din această zonă găsești mai multe terase și restaurante mici. Câteva dintre cele mai cochete se află în vechiul cartier Armenesc. De aici ajungi extrem de repede și în Centrul Vechi al orașului, pentru mai multă diversitate. Fiind atât de aproape de centrul orașului, vei avea la dispoziție extrem de multe opțiuni. Restaurantele și cafenelele din Dorobanți sau de pe Calea Floreasca pot fi cu siguranță pe gustul tău. Dacă vrei să faci și o plimbare, să admiri arhitectura frumoasă a vechilor clădiri din București și să te oprești la o cafea sau la o prăjitură, atunci Calea Victoriei poate fi ideală. Pentru o mică gustare sau un meniu fast food ai mai multe variante în zona Obor, iar dacă te grăbești atunci poți încerca drive through-ul McDonald"™s de pe Strada Barbu Văcărescu. Aruncă o privire pe hartă și vezi ce alte restaurante, terase sau cafenele ai în zonă.
Găsești mai multe sucursale bancare și ATM-uri în special pe Șoseaua Ștefan cel Mare. Aruncă o privire pe hartă și vezi ce alte opțiuni găsești în apropierea viitoarei tale locuințe.
Înainte să pleci...
Ești sigur că ai văzut și aceste proprietăți?
260.000 €
București, Armeneasca
4 camere
100 mp
Etaj 1 / 1
279.000 €
București, Armeneasca
6 camere
107 mp
Etaj 1
255.000 €
București, Armeneasca
2 camere
60 mp
Parter / 1
Creează alertă
Salvează căutarea ca să primești pe email ultimele anunțuri publicate
Apartamente cu 4+ camere de vânzare în zona Armeneasca, Sector 2
Cere detalii prin email
*
*
*
*
Detaliile tale de contact vor fi partajate cu Expert Imobiliar
Preț total1.482.173 RON (290.855 €)
Costuri cu achiziția55.321 RON
Preț de achiziție1.426.852 RON
Costuri cu achiziția55.321 RON
Comision agenție 3%42.806 RON
Onorariu notarial10.375 RON
Taxă înscriere OCPI2.140 RON
Preț de achiziție1.426.852 RON
Preț locuință1.426.852 RON
TVA 0%Inclus în prețul cerut
Cost total274.534 RON (53.873 €)
Avans (15%)214.028 RON
Cost achitat în prima lună2.884 RON
Costuri cu achiziția57.622 RON
Cost achitat în prima lună2.884 RON
Comision analiză dosar
400 RON - 900 RON
Taxă evaluare imobil(până la)
575 RON
Rata lunară (variabilă)6.356 RON
Asigurare anuală imobil1.427 RON
Arhivă electronică102 RON
Poliță PAD130 RON
Asigurare de viață/lună Costul este variabil. În funcție de banca aleasă, procentul variază între 0.0259% și 0.035% din soldul creditului.
Costuri cu achiziția57.622 RON
Comision agenție 3%42.806 RON
Onorariu notarial10.375 RON
Taxă întabulare OCPI2.140 RON
Autentificare contract credit2.301 RON
Preț de achiziție1.426.852 RON
Preț locuință1.426.852 RON
TVA 0%Inclus în prețul cerut
Preț de achiziție1.426.852 RON
Preț locuință1.426.852 RON
TVA 0%
Inclus în prețul cerut
Avans minim820.440 RON
Credit pe 30 de ani606.412 RON
Cost achitat în prima lună
Taxa evaluare imobil(până la)
575 RON
Rata lunară (variabilă)4.261 RON
Depozit colateral12.783 RON
Comision de garantare FNGCIMM119 RON
Asigurare anuală imobil1.427 RON
Poliță PAD130 RON
Tarif arhivă electronică102 RON
Costuri adiționale1.567 RON + taxe notariale
Asigurare viață și complexă (opțională)Costul este variabil. În funcție de banca aleasă, procentul variază între 0.0259% și 0.035% din soldul creditului
Onorariu notarialconform tarif notarial
Taxă întabulare OCPI1.567 RON
i
Toate valorile de mai sus sunt estimative și nu reprezintă în mod obligatoriu costurile exacte pe care le veți primi de la companiile/instituțiile prin care veți încheia tranzacția.