2

Apartament nou 2 camere - One High District

187.801 €

Barbu Văcărescu, București

Nr. cam.:
2
Sup. utilă:
50,8 mp
Etaj:
9 / 21
An constr.:
2026 (În construcție)
  • • Comision 0%
  • • Locație aproximativă

Descriere apartament

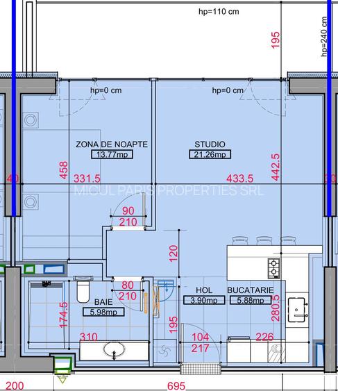
Va propunem spre achizitie un apartament cu 2 camere in suprafata de 50,8 m.p. utili, la interior, situat in complexul rezidential nou One High District. Proprietatea este situata la etajul 9 si dispune de terasa, in suprafata de aproximativ 15 m.p. utili. Apartamentul beneficiaza de incalzire si răcire prin ventiloconvectoare, iar imobilul dispune de centrala de imobil. La pretul afisat se adauga TVA (21%). Optional se poate achiziționa loc de parcare subteran la prețul de 23.000 euro+TVA. Complexul rezidențial este in curs de construire cu termenul de finalizare 2026, având in proximitatea sa restaurante, magazine, autostrada A3, dar si cai de acces către cartierul Floreasca. Complexul va beneficia de 800 de apartamente si 40 de spații comerciale. Sunt disponibile către vânzare apartamente tip studio, apartamente cu 2, 3 sau 4 camere. Pentru mai multe detalii va rugam sa ne contactați la numărul afișat.
Citește mai mult Citește mai puțin
Confort 1 Decomandat Nemobilat 1 Balcon / Terasă / Logie Ventiloconvectoare Centrală imobil Încălzire prin pardoseală

Detalii apartament

ID anunț: XEIS0004H Copiat! 275115076 Copiat!
Actualizat în: 17 Mai 2026
Suprafață utilă totală: 65 mp
Suprafață construită: 80 mp
Nr. bucătării: 1
Nr. băi: 1
Structură rezistență: Beton
Tip imobil: Bloc de apartamente
Tip tranzacție: De vânzare prin agent
Regim înălțime: S+P+21E
Vizionare cu programare: Da
Modalitate de plată: Cash sau Credit

Utilități

Destinație
Rezidențial
Alte spații utile
Terasă
Facilități imobil
Spații agrement Lift Videointerfon
Utilități
Curent Canalizare Apă Gaze
Internet
Fibră optică
Servicii imobil
Administrare Pază Supraveghere video
Amenajare străzi
Asfaltate Iluminat stradal Mijloace de transport în comun
Comision
0%

Certificat energetic:

Clasa energetică: A

Vecinătăți:

Magazine, restaurante, autostrada A3, cartierul Floreasca

Puncte de interes

Mijloace transport
bus-station
Soseaua Fabrica de Glucoza statie 16, 36
Stații autobuz aprox. 105 m
tram-station
Gelcap
Stații tramvai aprox. 464 m
metro-station
Metrorex. Stația Pipera (M2)(1987)
Stații metrou aprox. 678 m
trolleybus-station
Statia Doamna Ghica, linia 66
Stații troleibuz aprox. 1833 m
Școală
school
Colegiul Tehnic Edmond Nicolau, fostul Electronica
Școli aprox. 1312 m
kindergarten
Gradinita nr. 7
Gradinițe aprox. 1331 m
school
Grupul Scolar Industrial Constantin Brancusi (en)
Școli aprox. 1368 m
university
Facultatea de Cai Ferate Drumuri si Poduri, Facultate de Geodezie
Universități aprox. 1576 m
Recreere
restaurant
The Library Restaurant & Bar
Restaurant aprox. 108 m
park
Parcul Petricani
Parcuri aprox. 717 m
supermarket
Carrefour
Supermarket aprox. 733 m
sports-ground
Teren sportiv
Terenuri sport aprox. 1118 m

Istoricul prețurilor

Acces la informații premium după autentificare
Login Gratuit

Detalii despre preț și costuri

Prețul pe piață

Preț cerut: 187.801 €

Preț min. zonă
Preț max. zonă

69% dintre proprietățile similare ca zonă și nr. camere au prețul cerut mai mic. mai multe...

Bine de știut: prețul unei proprietăți este influențat și de alte caracteristici, cum ar fi: vechime, localizare, vecinătăți, suprafață, compartimentare, amenajări, dotări, etc. mai puțin...

Acces la informații premium după autentificare
Login Gratuit

Costuri cu achiziția

Fără credit
Credit ipotecar
Noua casă

i

Costuri adiționale mai puțin știute la achiziție: taxe notariale, comisioane etc.

Acces la informații premium după autentificare
Login Gratuit

Proprietăți similare

Apartament cu 2 camere în Barbu Văcărescu
205.000 €
București, Barbu Văcărescu
2 camere
47 mp
Etaj 5 / 10
Apartament cu 2 camere semidecomandat, mobilat în Barbu Văcărescu
185.000 €
București, Barbu Văcărescu
2 camere
46,88 mp
Etaj 6 / 10
Apartament cu 2 camere semidecomandat în Barbu Văcărescu
176.000 €
București, Barbu Văcărescu
2 camere
49,7 mp
Etaj 2

Detalii de contact

Abonează-te la newsletter să fii primul care primește cele mai noi recomandări de proprietăți și sfaturi de la experți.

CONTACT

Creează alertă

Salvează căutarea ca să primești pe email ultimele anunțuri publicate

Apartamente cu 2 camere de vânzare în zona Barbu Văcărescu, Sector 2