Apartamentul este situat la etajul 15 al unui imobil rezidential cu finalizare in martie 2026 in zona Fabrica de Glucoza, oferind acces rapid catre numeroase puncte de interes.
Regatta va prezinta un apartament cu 3 camere in complexul One High District, cu o suprafata construita de 83,6 mp si terasa de 38,2 mp, situat intr-o zona in plina dezvoltare, aproape de facilitati urbane.
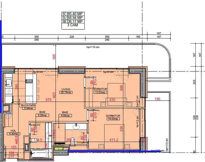
Apartament este compus din living si bucatarie open space, doua dormitoare si doua bai.
Data finalizarii este mai 2026, ceea ce face ca aceasta proprietate sa fie o investitie valoroasa, cu potential de apreciere odata ce complexul va fi dat in folosinta.
71%dintre proprietățile similare ca zonă și nr. camere au prețul cerutmai mic.
mai multe...
Bine de știut: prețul unei proprietăți este influențat și de alte caracteristici, cum ar fi: vechime, localizare, vecinătăți, suprafață, compartimentare, amenajări, dotări, etc.
mai puțin...
Sediul central - Timișoara
Bulevardul Victor Babeș nr. 2, 300230, Timișoara, România
Tel: +40.374.40.44.98 / Fax: +40.256.401.179
Email: suport@imobiliare.ro
Luni - Vineri 08:00 - 20:00
Punct de lucru - București: Iride Business Park, Bld. Dimitrie
Pompeiu 9-9A, Clădirea B2B,
020335, Sector 2, București, România
CONTACT
Sediul central - Timișoara
Bulevardul Victor Babeș nr. 2, 300230, Timișoara, România
Tel: +40.374.40.44.98 / Fax: +40.256.401.179
Email: suport@imobiliare.ro
Luni - Vineri 08:00 - 20:00
Punct de lucru - București: Iride Business Park, Bld. Dimitrie
Pompeiu 9-9A, Clădirea B2B,
020335, Sector 2, București, România
Dacă te vei muta în zona Tei, vei avea la dispoziție mai multe mijloace de transport în comun. Printre acestea se numără tramvaiele 16 și 36. Primul oferă o conexiune rapidă cu zona Pipera sau te poate ajuta să ajungi la doi pași de Piața Unirii. Cel de-al doilea merge până în cartierul Titan. Cu autobuzul 182 poți să te deplasezi până în zona Gării de Nord, iar cu autobuzul 282 până la Gara Basarab. Cele mai apropiate stații de metrou pe care le vei alea la dispoziție, dacă te vei muta în Tei, sunt Ștefan cel Mare și Obor, ambele aflate pe traseul magistralei 1 Dristor - Pantelimon. Este important de menționat și faptul că în zona Fabrica de Glucoză - Petricani de la marginea cartierului există autostrada urbană. Practic, ai o legătură directă cu A3 București-Ploiești. Consultă harta pentru a afla unde sunt poziționate stațiile mijloacelor de transport în comun.
În zona Tei găsești mai multe grădinițe și școli. Printre unitățile de învățământ din cartier se numără Școala Gimnazială nr. 28 din zona Parcului Circului și Școala Gimnazială nr. 31 de pe Bulevardul Lacul Tei. Tot aici se află și Liceul Teoretic Traian și Universitatea Tehnică de Construcții din București, una dintre cele mai importante instituții de învățământ superior din Capitală. Consultă harta pentru mai multe opțiuni.
Dacă te muți în cartierul Tei, cel mai ușor îți poi face cumpărăturile în zona Obor. Ai acolo atât magazinul Bucur Obor, cât și halele și piața Obor. Imediat lângă acestea se află mall-ul Veranda care include un hipermarket Carrefour. La doi pași găsești și magazinul Kaufland Colentina. O altă zonă comercială, care include un magazin Kaufland cu o mică galerie comercială și un Carrefour Market, este localizată pe Strada Barbu Văcărescu. De aici ajungi foarte repede și la mall-ul Promenada. Centrul comercial Pipera Plaza poate fi, de asemenea, o opțiune bună pentru tine, mai ales dacă lucrezi în zona Pipera. Cuprinde mai mulți retaileri, câteva restaurante și cafenele. Consultă harta și vezi unde poți să-ți faci cumpărăturile, dacă te muți în cartierul Tei.
Îți recomandăm să te interesezi dacă poți închiria un loc de parcare în apropierea locuinței dorite. Trebuie să apelezi în acest sens la Biroul Parcări din cadrul ADP Sector 2. Este important, totodată, să știi că dacă te deplasezi cu mașina vei întâlni aglomerație în trafic în zona Străzii Doamna Ghica, în special la intersecția dintre aceasta, Bulevardul Lacul Tei și Strada Petricani. Intersecția se află pe ruta directă spre polul de business Pipera. De menționat este și faptul că în zona Fabrica de Glucoză - Petricani de la marginea cartierului există autostrada urbană. Practic, ai o legătură directă cu A3 București - Ploiești. Trafic îngreunat apare și la intersecția dintre Șoseaua Ștefan cel Mare și Strada Lizeanu, iar în zona intersecției Doamna Ghica există un proiect extensiv în lucru pentru realizarea unui pasaj rutier suprateran.
Dacă te vei muta în zona Tei, vei avea în apropierea casei tale mai multe parcuri și locuri de joacă. Parcul Lacul Tei cuprinde numeroase atracții pentru cei mici și o roată mare de unde te poți bucura de priveliști frumoase ale orașului. În zona Parcului Studențesc Tei vei găsi săli de fitness, cluburi de lux, terenuri sportive și Stadionul Studențesc, iar în partea de sud a cartierului Parcul Circului și Circul Metropolitan București (fostul Globus). În vecinătatea lor se află Stadionul Dinamo. Parcul Plumbuita poate fi o altă opțiune pentru a petrece o după-amiază liniștită în aer liber. Cel mai apropiat mall la care vei avea acces este Veranda. Aici vei putea merge la un cinema VR sau îți vei putea duce copilul la un loc de joacă indoor. Ajungi destul de rapid și la mall-ul Promenada. Dacă nu te deranjează să mergi câteva minute cu mașina, atunci trebuie să știi că ajungi destul de rapid la mall-ul Promenda, dar și în Piața Victoriei unde găsești mai multe muzee. Îți poți lăsa mașina în parcarea publică aflată aici și poți face o mică plimbare pe Calea Victoriei. Găsești destul de multe obiective de vizitat în zonă și ai și unde să faci un popas la o cafea. Pentru o experiență inedită îți recomandăm o scurtă plimbare cu mașina până în cartierul Primăverii. Aici vei putea să vizitezi Palatul Primăverii, fosta reședință grandioasă a lui Nicolae Ceaușescu. Atenție, însă, ai nevoie de rezervare în avans. Află ce alte puncte de interes găsești în zona Tei și în împrejurimi de pe hartă.
Printre cele mai apropiate unități medicale la care vei putea apela, dacă te vei muta în zona Tei, se numără Spitalul Clinic Colentina și Institutul Național de Boli Infecțioase Prof. Dr. Matei Balș, ambele situate în vecinătatea Parcului Circului. La intersecția dintre Strada Barbu Văcărescu și Șoseaua Ștefan cel Mare vei găsi, totodată, Spitalul Sf. Ștefan. În imediata apropiere a acestuia se află și Spitalul Clinic de Urgență București și Spitalul Euroclinic din rețeaua privată Regina Maria. Consultă harta pentru a vedea unde sunt localizate clinicile private din cartier și din împrejurimi.
Găsești o serie de restaurante și baruri în zona Parcului Verdi și pe malul Lacului Tei. De altfel, există și mai multe săli de evenimente cu ieșire la lac sau situate în imediata sa vecinătate. Din zona Tei ajungi foarte rapid și la numeroasele terase, cafenele și restaurante aflate pe Calea Floreasca sau în Dorobanți. Restaurante de tip fast food găsești în zona Obor din apropiere. Ai câteva opțiuni pentru o gustare și în incinta Veranda Mall. Iar dacă îți dorești mai multă diversitate, poți oricând să mergi cu mașina până la Promenada Mall. Ajungi în doar câteva minute. Consultă harta. Află care este cel mai apropiat local de viitoarea ta locuință din zona Tei.
Găsești mai multe sucursale bancare în zona intersecției Doamna Ghica, lângă intrarea în Parcul Plumbuita. Altele pe Bulevardul Lacul Tei care traversează cartierul. Consultă harta și află unde găsești cel mai apropiat bancomat.
Înainte să pleci...
Ești sigur că ai văzut și aceste proprietăți?
210.540 €
174.000 € +TVA
București, Barbu Văcărescu
2 camere
56 mp
Parter / 10
219.000 €
București, Barbu Văcărescu
2 camere
75 mp
Etaj 3
219.000 €
București, Barbu Văcărescu
2 camere
66 mp
Etaj 3
Creează alertă
Salvează căutarea ca să primești pe email ultimele anunțuri publicate
Apartamente noi cu 3 camere de vânzare în zona Barbu Văcărescu, Sector 2
Cere detalii prin email
*
*
*
*
Detaliile tale de contact vor fi partajate cu Regatta