Căutați un spațiu generos pe care să îl modelați după propriul gust? Vă prezentăm un apartament cu un potențial extraordinar, situat pe Bulevardul Chișinău nr. 15, într-o zonă vibrantă și excelent conectată a Capitalei.
✨ De ce să alegi această proprietate?
Libertate totală de amenajare: Apartamentul se află în stare originală, ceea ce reprezintă avantajul suprem: nu plătești pentru finisajele altcuiva. Ai ocazia să refaci totul de la zero, exact așa cum îți dorești, de la instalații până la designul interior.
Construcție solidă (1982): Imobilul face parte din generația de blocuri construite după standarde seismice riguroase, oferind siguranță și confort termic.
Eficiență energetică: Blocul este deja anvelopat (reabilitat termic), ceea ce înseamnă facturi de întreținere reduse și un aspect exterior îngrijit și modern.
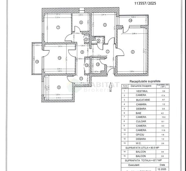
Spațiu pentru întreaga familie: Cele 4 camere oferă compartimentarea ideală pentru o familie numeroasă, pentru cei care lucrează de acasă sau pentru o investiție sigură în vederea închirierii.
📍 Locație și Facilități
Situat pe Bulevardul Chișinău, apartamentul te pune în centrul tuturor facilităților urbane:
Transport: Acces facil la linii de STB și conexiune rapidă către stațiile de metrou (Piața Iancului sau Costin Georgian).
Recreere: În proximitate se află Parcul IOR și Parcul Național, ideale pentru relaxare.
Shopping: Mega Mall este la doar câteva minute distanță, alături de piețe și supermarketuri.
Educație: Școli și grădinițe de renume în imediata apropiere.
Pentru vizionare și mai multe informatii, va recomandam sa ne contactati telefonic.
___________________________________________________________________________
ℹ️Buget insuficient? La HABITAT Brokers ai serviciu de finanțare inclus:
Identificăm tipul de credit ideal.
Simulăm rata. Comparăm ofertele actuale din piață.
Depunem dosarul și stăm în legătură cu banca până la aprobare.
Totul cu ZERO costuri suplimentare.
Contactează-ne azi pentru o analiză gratuită!
68%dintre proprietățile similare ca zonă și nr. camere au prețul cerutmai mare.
mai multe...
Bine de știut: prețul unei proprietăți este influențat și de alte caracteristici, cum ar fi: vechime, localizare, vecinătăți, suprafață, compartimentare, amenajări, dotări, etc.
mai puțin...
Insight premium disponibil după login
Costuri cu achiziția
Fără credit
€
Credit ipotecar
€
Noua casă
€
i
Costuri adiționale mai puțin știute la achiziție: taxe notariale, comisioane etc.
Sediul central - Timișoara
Bulevardul Victor Babeș nr. 2, 300230, Timișoara, România
Tel: +40.374.40.44.98 / Fax: +40.256.401.179
Email: suport@imobiliare.ro
Luni - Vineri 08:00 - 20:00
Punct de lucru - București: Iride Business Park, Bld. Dimitrie
Pompeiu 9-9A, Clădirea B2B,
020335, Sector 2, București, România
CONTACT
Sediul central - Timișoara
Bulevardul Victor Babeș nr. 2, 300230, Timișoara, România
Tel: +40.374.40.44.98 / Fax: +40.256.401.179
Email: suport@imobiliare.ro
Luni - Vineri 08:00 - 20:00
Punct de lucru - București: Iride Business Park, Bld. Dimitrie
Pompeiu 9-9A, Clădirea B2B,
020335, Sector 2, București, România
Spitalul Judetean Ilfov - Sfintii Constantin si Elena
aprox.
597 m
Centrul medical Diaverum
aprox.
682 m
Regina Maria laborator
aprox.
682 m
SPITAL DE URGENTA PARTICULAR (en)
aprox.
817 m
Spitalul Monza
aprox.
826 m
Dispensar
aprox.
857 m
Farmacie Catena
aprox.
951 m
Dispensar
aprox.
1063 m
Pravalia 7
aprox.
137 m
Terasa Fericirii
aprox.
178 m
Friends
aprox.
1331 m
La Pierde Tren
aprox.
1738 m
La Donna
aprox.
1870 m
Shaorma Socului Kebap Non-Stop
aprox.
302 m
Dristor Kebap Pantelimon
aprox.
448 m
Ivan's bar&grill
aprox.
571 m
Shaorma Diham
aprox.
584 m
Pizzeria GE&DI
aprox.
610 m
Fast Food
aprox.
615 m
Terase Diham
aprox.
639 m
Casa Diham
aprox.
639 m
Restaurante
aprox.
650 m
Casa Diham
aprox.
651 m
Restaurant
aprox.
652 m
Restaurant Mignon Bistro
aprox.
661 m
Restaurant La Monica
aprox.
684 m
Restaurant Pizzerie Carmen
aprox.
685 m
La Monica
aprox.
696 m
Vineri cafe
aprox.
447 m
Cafe
aprox.
629 m
No Name Cafe
aprox.
662 m
Riviera cafe
aprox.
1374 m
Da'Mask Caffe
aprox.
1474 m
Terasa Sandrino
aprox.
950 m
Bar
aprox.
1750 m
Essenza Club
aprox.
1797 m
Shisha Lounge Bar
aprox.
1813 m
Gnome Bar
aprox.
1892 m
CEC Bank
aprox.
187 m
BRD
aprox.
250 m
ProCredit Bank Sucursala Pantelimon
aprox.
266 m
BRD Delfinului
aprox.
290 m
Banca Romaneasca
aprox.
311 m
Credit Europe Bank
aprox.
320 m
ING
aprox.
325 m
Credit Europe Bank
aprox.
366 m
Alpha Bank - Ag. Delfinului
aprox.
370 m
Bancpost
aprox.
372 m
Raiffeisen Bank
aprox.
396 m
Emporki bank
aprox.
405 m
Piraeus Bank
aprox.
412 m
Libra Bank
aprox.
417 m
Banca Raiffeisen - Ag Delfinului
aprox.
421 m
Transportul în comun este asigurat prin zona Pantelimon de mai multe tramvaie și autobuze. Printre acestea amintim tramvaiul 55, util dacă vrei să ajungi la Piața Iancului sau în centru și autobuzul 104 ce oferă o legătură directă cu Piața Unirii. Din parcarea Complexului Comercial Esplanada (Cora Pantelimon) vei putea lua autobuzele 243 și 246 pentru a ajunge pe Strada Doamna Ghica, respectiv pe Bulevardul Theodor Pallady. Locuitorii au, totodată, acces la stația de metrou Pantelimon, capătul magistralei 1. În apropierea acestei zone se află și stația Costin Georgian. În următorii ani se vor crea noi legături rapide cu centrul orașului și cu zona de sud-vest a Bucureștiului, odată cu extinderea rețelei de transport prin subteran cu noua magistrală M5. Consultă harta și află unde găsești cele mai apropiate stații.
Aici găsești mai multe grădinițe și școli, de stat și private. Printre acestea amintim grădinițele nr. 23 și nr. 189 și Școala Gimnazială nr. 77 din vecinătatea Parcului Florilor. Tot în cartier funcționează Liceul Teoretic "Lucian Blaga" și Liceul Teoretic Waldorf, care urmează metoda pedagogică alternativă cu același nume, alături de una dintre cele mai cunoscute școli internaționale private din Capitală: Bucharest - Beirut International School. Lângă Parcul Morarilor se află Facultatea de Pompieri din cadrul Academiei de Poliție "Alexandru Ioan Cuza". Verifică harta și află care vor fi cele mai apropiate unități de învățământ de viitoarea ta casă.
În zona Pantelimon vei găsi mai multe magazine și supermarketuri. Principalul complex comercial din această parte a orașului, Esplanada, este situat pe locul fostei fabrici Granitul. Acesta cuprinde un hipermarket Cora. Pe Șoseaua Fundeni vei avea la dispoziție un magazin Penny Market, iar la intersecția dintre Șoseaua Morarilor și Șoseaua Vergului vei găsi un Lidl și un Mega Image. Piața agroalimentară Delfinului poate fi o altă alternativă, în apropierea acesteia găsindu-se și complexul comercial Mega Mall și un magazin Kaufland. O altă opțiune pentru tine poate fi și o sesiune de shopping în zona Obor. Aici găsești magazinul Bucur Obor, o piață, mall-ul Veranda și un magazin Kaufland. Află de pe hartă care va fi cel mai apropiat magazin de locuința ta.
O parcare de tip park&ride, cu 500 de locuri, dar și cu terminal pentru tramvai și autobuz, poate fi găsită la doi pași de Complexul Comercial Esplanada. Îți amintim că poți verifica situația locurilor de parcare din apropierea noii tale locuințe apelând la Biroul Parcări din cadrul ADP Sector 2. Este bine de știut și că principala arteră de circulație din zonă, Șoseaua Pantelimon, asigură ieșirea din București spre orașul Pantelimon. În acest context, dar și pentru că orașul de la periferia Capitalei s-a dezvoltat semnificativ în ultimii, traficul rutier ajunge să fie uneori îngreunat în zonă. Verifică harta pentru a afla unde sunt poziționate principalele parcări din cartier.
Ca locuitor al zonei Pantelimon, vei avea în apropierea casei mai multe spații verzi. Chiar dacă au suprafețe destul de restrânse, ele sunt bine îngrijite. Printre acestea se numără Parcul Florilor, curat, cu alei pavate, pe care poți să îl recunoști ușor după statuia dedicată Răscoalei din 1908 amplasată aici, Parcul Morarilor, mai mare, situat în jurul Lacului Morarilor, cu locuri de joacă pentru copii și aparate de sport și Parcul Cosmos aflat vis-a-vis de Centrul Comercial Esplanada. O altă zonă verde din această parte a orașului este comparată cu Parcul Natural Văcărești. Este vorba despre Parcul Sticlăriei, localizat lângă fosta fabrică de sticlă Pantelimon, abandonat cu decenii în urmă, unde natura și-a urmat cursul și l-a transformat într-o oază sălbatică. Pe marginea Lacului Pantelimon vei găsi, totodată, Parcul Pantelimon, amenajat cu locuri de joacă pentru copii și chiar și cu un spațiu special dedicat celor pasionați de skateboarding. Vrei să faci sport? Lângă Parcul Cosmos vei găsi Complexul Sportiv Ion Țiriac care cuprinde terenuri de tenis, fotbal și baschet. Pentru mai multe opțiuni, vei avea în vecinătatea zonei Pantelimon Arena Națională și Complexul Sportiv Național Lia Manoliu. Cel mai apropiat mall la care vei avea acces, dacă te vei muta în această parte a Sectorului 2, va fi Mega Mall, unul dintre cele mai mari centre comerciale de acest tip din Capitală. Pentru o activitate mai deosebită în timpul liber, poți încerca să participi la un atelier în cadrul fabricii de ciocolată Heidi din orașul Pantelimon, aflat la marginea Capitalei. În weekend poți să mergi cu mașina și până la Pădurea Cernica. Află de pe hartă ce alte opțiuni de petrecere a timpului liber vei avea dacă te muți în zona Pantelimon.
Principalele unități sanitare din această zonă a orașului sunt Spitalul Clinic de Urgență "Sf. Pantelimon" și Spitalul Clinic "Nicolae Malaxa". Poți apela, totodată, la Spitalul Clinic Județean de Urgență Ilfov sau la Spitalul Monza aflat în apropiere de Mega Mall. Ajungi destul de repede la nevoie și la Spitalul Clinic de Copii "Dr. Victor Gomoiu". Vezi ce alte opțiuni ai consultând harta.
Dacă te muți în zona Pantelimon, vei avea în cartier mai multe restaurante și baruri. Pentru cei comozi, care au poftă de fast food, opțiunile sunt destul de variate. În primul rând, poți încerca restaurantele din incinta complexului comercial Esplanada. O altă variantă poate fi dată de food court-ul și de terasele din Mega Mall. Sunt atât de variate restaurantele de aici încât sigur găsești ceva pe gustul tău. Te grăbești? Atunci la intersecția dintre Șoseaua Morarilor și Bulevardul Basarabia găsești un drive through McDonald"™s. Câteva terase sunt deschise în zona Parcului Național pe care îl vei avea la doi pași de casă, iar alte restaurante ai la dispoziție în Piața Muncii. Aruncă o privire pe hartă. Vezi ce localuri vei avea în apropierea viitoarei tale case.
Găsești câteva bancomate în centrul comercial Esplanada și în Mega Mall. Verifică harta și află unde sunt poziționate sucursalele bancare din zona Pantelimon.
Înainte să pleci...
Ești sigur că ai văzut și aceste proprietăți?
145.000 €
București, Chișinau
3 camere
65 mp
Etaj 7
160.000 €
București, Chișinau
4 camere
85 mp
Etaj 9
145.000 €
București, Chișinau
3 camere
69 mp
Etaj 7
Creează alertă
Salvează căutarea ca să primești pe email ultimele anunțuri publicate
Apartamente cu 4+ camere de vânzare în zona Chișinau, Sector 2
Cere detalii prin email
*
*
*
*
Detaliile tale de contact vor fi partajate cu Habitat Brokers