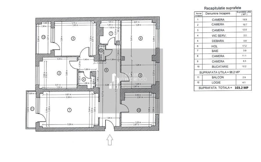
Vă propunem spre vânzare un apartament de 4 camere, modificat din 5 camere, cu o suprafata utila de 104 mp, situat langa intersectia Bd Chisinau cu Bd. Basarabia, langa Arena Nationala.
- suprafata utila 104 mp, 4 camere, 1 balcon si 1 logie, 2 bai
- etaj -5/10 , bloc 1985- reabilitat termic
- usor de renovat
- instalații electrice și sanitare in stare buna
- nu sunt probleme cu umezeala, infiltratii
- scara curata, supraveghere video, vecini civilizati fara datorii
- scoli, gradinite in apropiere
- in apropiere Piata Delfinului, Lacul Fundeni, Stadionul National Arena. Mega Mall Pantelimon, Parcul National
- acces rapid catre toate zonele din oras
Apartamentul este situat într-o zona centrala, moderna, bine dezvoltata, cu toate facilitatile la îndemana.
O oferta excelenta, un apartament intr-o zona deosebita la un pret bun, potrivit si pentru uz comercial - spatiu birouri, sediu firma, inchiriere in regim hotelier.
Pentru mai multe detalii - Cornel --
Se acceptă si achiziția prin credit bancar.
Agentia Imobiliara – Ramiro Imob
Comision Standard
Oferim suport în relația cu banca, cu acces la cele mai bune oferte de finanțare, precum și asistență in relatia cu notariatul.
59%dintre proprietățile similare ca zonă și nr. camere au prețul cerutmai mare.
mai multe...
Bine de știut: prețul unei proprietăți este influențat și de alte caracteristici, cum ar fi: vechime, localizare, vecinătăți, suprafață, compartimentare, amenajări, dotări, etc.
mai puțin...
Costuri cu achiziția
Fără credit
9.322 RON
Credit ipotecar
11.228 RON
Noua casă
1.093 RON+ taxe notariale
i
Costuri adiționale mai puțin știute la achiziție: taxe notariale, comisioane etc.
Calculul ipotecarului
Proprietăți similare
199.900 €
București, Chișinau
4 camere
87,8 mp
Etaj 12
190.000 €
București, Chișinau
5 camere
96 mp
Etaj 5 / 10
187.000 €
București, Chișinau
4 camere
97 mp
Etaj 5 / 10
Detalii de contact
Acestă agenție te poate ajuta să obții o soluție de finanțare potrivită nevoilor tale. Solicită-i informații suplimentare.
Sediul central - Timișoara
Bulevardul Victor Babeș nr. 2, 300230, Timișoara, România
Tel: +40.374.40.44.98 / Fax: +40.256.401.179
Email: suport@imobiliare.ro
Luni - Vineri 08:00 - 20:00
Punct de lucru - București: Iride Business Park, Bld. Dimitrie
Pompeiu 9-9A, Clădirea B2B,
020335, Sector 2, București, România
CONTACT
Sediul central - Timișoara
Bulevardul Victor Babeș nr. 2, 300230, Timișoara, România
Tel: +40.374.40.44.98 / Fax: +40.256.401.179
Email: suport@imobiliare.ro
Luni - Vineri 08:00 - 20:00
Punct de lucru - București: Iride Business Park, Bld. Dimitrie
Pompeiu 9-9A, Clădirea B2B,
020335, Sector 2, București, România
Spitalul Judetean Ilfov - Sfintii Constantin si Elena
aprox.
596 m
Policlinica Pescarus
aprox.
636 m
Regina Maria laborator
aprox.
664 m
Cabinet stomatologic No Pain
aprox.
664 m
Anima Delfinului
aprox.
669 m
Optica Medicinala
aprox.
929 m
Master Dent
aprox.
929 m
Spitalul Clinic de Copii “Dr. Victor Gomoiuâ€
aprox.
1022 m
Dispensar
aprox.
1064 m
Dispensar
aprox.
1077 m
Rosan Farm
aprox.
451 m
Helpnet Romania
aprox.
486 m
Farmacia Belladona
aprox.
498 m
Farmacia Centrofarm 33
aprox.
504 m
Farmacia Richter
aprox.
550 m
Farmacia Amalia
aprox.
569 m
Farmacia Iancului 57
aprox.
571 m
Farmacia Centrofarm 48
aprox.
574 m
Catena Farmacie
aprox.
577 m
Farmacia Remedio
aprox.
579 m
Farmacia Belladona
aprox.
623 m
Faro 13 - Amalia
aprox.
636 m
Farmacia Dona 143
aprox.
650 m
Farmacia Dona
aprox.
699 m
Farmacia Flora
aprox.
700 m
Restaurante
aprox.
442 m
Fast Food
aprox.
444 m
McDonald's
aprox.
473 m
McDonald's Electroaparataj (en)
aprox.
486 m
Shaorma Socului Kebap Non-Stop
aprox.
541 m
Casa Iancului Restaurant (en)
aprox.
542 m
Casa Iancului
aprox.
542 m
Bistro 37-39
aprox.
561 m
Socului kebap
aprox.
572 m
Restaurant Arena
aprox.
573 m
Casa Diham
aprox.
576 m
Dristor Kebap Pantelimon
aprox.
587 m
Terasa "La Copaci"
aprox.
594 m
Restaurant Z (en)
aprox.
607 m
Beraria Park
aprox.
607 m
Cafe
aprox.
443 m
Vineri cafe
aprox.
538 m
Riviera cafe
aprox.
853 m
No Name Cafe
aprox.
868 m
Da'Mask Caffe
aprox.
897 m
Loka
aprox.
1648 m
Snap
aprox.
1674 m
Lolly Pop
aprox.
1700 m
Cafe Pink
aprox.
1726 m
Caffe Tabiet
aprox.
1808 m
Pravalia 7
aprox.
457 m
Terasa Fericirii
aprox.
477 m
Friends
aprox.
1107 m
La Pierde Tren
aprox.
1399 m
La Donna
aprox.
1430 m
Dristor Pub
aprox.
1918 m
Zvon
aprox.
1920 m
Terasa Sandrino
aprox.
682 m
Essenza Club
aprox.
1208 m
Shisha Lounge Bar
aprox.
1244 m
Bar
aprox.
1286 m
MODELiER
aprox.
1902 m
Banca Transilvania
aprox.
321 m
CEC Bank
aprox.
474 m
ING Pantelimon
aprox.
519 m
Raiffeisen Bank
aprox.
531 m
Banca Romaneasca
aprox.
549 m
ING
aprox.
552 m
Credit Europe Bank
aprox.
557 m
Banca Raiffeisen - Ag Delfinului
aprox.
559 m
Piraeus Bank
aprox.
568 m
ProCredit Bank Sucursala Pantelimon
aprox.
570 m
Credit Europe Bank
aprox.
579 m
Banca Transilvania - Ag. Delfinului
aprox.
580 m
BCR Bank
aprox.
591 m
Banc Post
aprox.
607 m
BCR Asigurari
aprox.
613 m
Transportul în comun este asigurat prin zona Pantelimon de mai multe tramvaie și autobuze. Printre acestea amintim tramvaiul 55, util dacă vrei să ajungi la Piața Iancului sau în centru și autobuzul 104 ce oferă o legătură directă cu Piața Unirii. Din parcarea Complexului Comercial Esplanada (Cora Pantelimon) vei putea lua autobuzele 243 și 246 pentru a ajunge pe Strada Doamna Ghica, respectiv pe Bulevardul Theodor Pallady. Locuitorii au, totodată, acces la stația de metrou Pantelimon, capătul magistralei 1. În apropierea acestei zone se află și stația Costin Georgian. În următorii ani se vor crea noi legături rapide cu centrul orașului și cu zona de sud-vest a Bucureștiului, odată cu extinderea rețelei de transport prin subteran cu noua magistrală M5. Consultă harta și află unde găsești cele mai apropiate stații.
Aici găsești mai multe grădinițe și școli, de stat și private. Printre acestea amintim grădinițele nr. 23 și nr. 189 și Școala Gimnazială nr. 77 din vecinătatea Parcului Florilor. Tot în cartier funcționează Liceul Teoretic "Lucian Blaga" și Liceul Teoretic Waldorf, care urmează metoda pedagogică alternativă cu același nume, alături de una dintre cele mai cunoscute școli internaționale private din Capitală: Bucharest - Beirut International School. Lângă Parcul Morarilor se află Facultatea de Pompieri din cadrul Academiei de Poliție "Alexandru Ioan Cuza". Verifică harta și află care vor fi cele mai apropiate unități de învățământ de viitoarea ta casă.
În zona Pantelimon vei găsi mai multe magazine și supermarketuri. Principalul complex comercial din această parte a orașului, Esplanada, este situat pe locul fostei fabrici Granitul. Acesta cuprinde un hipermarket Cora. Pe Șoseaua Fundeni vei avea la dispoziție un magazin Penny Market, iar la intersecția dintre Șoseaua Morarilor și Șoseaua Vergului vei găsi un Lidl și un Mega Image. Piața agroalimentară Delfinului poate fi o altă alternativă, în apropierea acesteia găsindu-se și complexul comercial Mega Mall și un magazin Kaufland. O altă opțiune pentru tine poate fi și o sesiune de shopping în zona Obor. Aici găsești magazinul Bucur Obor, o piață, mall-ul Veranda și un magazin Kaufland. Află de pe hartă care va fi cel mai apropiat magazin de locuința ta.
O parcare de tip park&ride, cu 500 de locuri, dar și cu terminal pentru tramvai și autobuz, poate fi găsită la doi pași de Complexul Comercial Esplanada. Îți amintim că poți verifica situația locurilor de parcare din apropierea noii tale locuințe apelând la Biroul Parcări din cadrul ADP Sector 2. Este bine de știut și că principala arteră de circulație din zonă, Șoseaua Pantelimon, asigură ieșirea din București spre orașul Pantelimon. În acest context, dar și pentru că orașul de la periferia Capitalei s-a dezvoltat semnificativ în ultimii, traficul rutier ajunge să fie uneori îngreunat în zonă. Verifică harta pentru a afla unde sunt poziționate principalele parcări din cartier.
Ca locuitor al zonei Pantelimon, vei avea în apropierea casei mai multe spații verzi. Chiar dacă au suprafețe destul de restrânse, ele sunt bine îngrijite. Printre acestea se numără Parcul Florilor, curat, cu alei pavate, pe care poți să îl recunoști ușor după statuia dedicată Răscoalei din 1908 amplasată aici, Parcul Morarilor, mai mare, situat în jurul Lacului Morarilor, cu locuri de joacă pentru copii și aparate de sport și Parcul Cosmos aflat vis-a-vis de Centrul Comercial Esplanada. O altă zonă verde din această parte a orașului este comparată cu Parcul Natural Văcărești. Este vorba despre Parcul Sticlăriei, localizat lângă fosta fabrică de sticlă Pantelimon, abandonat cu decenii în urmă, unde natura și-a urmat cursul și l-a transformat într-o oază sălbatică. Pe marginea Lacului Pantelimon vei găsi, totodată, Parcul Pantelimon, amenajat cu locuri de joacă pentru copii și chiar și cu un spațiu special dedicat celor pasionați de skateboarding. Vrei să faci sport? Lângă Parcul Cosmos vei găsi Complexul Sportiv Ion Țiriac care cuprinde terenuri de tenis, fotbal și baschet. Pentru mai multe opțiuni, vei avea în vecinătatea zonei Pantelimon Arena Națională și Complexul Sportiv Național Lia Manoliu. Cel mai apropiat mall la care vei avea acces, dacă te vei muta în această parte a Sectorului 2, va fi Mega Mall, unul dintre cele mai mari centre comerciale de acest tip din Capitală. Pentru o activitate mai deosebită în timpul liber, poți încerca să participi la un atelier în cadrul fabricii de ciocolată Heidi din orașul Pantelimon, aflat la marginea Capitalei. În weekend poți să mergi cu mașina și până la Pădurea Cernica. Află de pe hartă ce alte opțiuni de petrecere a timpului liber vei avea dacă te muți în zona Pantelimon.
Principalele unități sanitare din această zonă a orașului sunt Spitalul Clinic de Urgență "Sf. Pantelimon" și Spitalul Clinic "Nicolae Malaxa". Poți apela, totodată, la Spitalul Clinic Județean de Urgență Ilfov sau la Spitalul Monza aflat în apropiere de Mega Mall. Ajungi destul de repede la nevoie și la Spitalul Clinic de Copii "Dr. Victor Gomoiu". Vezi ce alte opțiuni ai consultând harta.
Dacă te muți în zona Pantelimon, vei avea în cartier mai multe restaurante și baruri. Pentru cei comozi, care au poftă de fast food, opțiunile sunt destul de variate. În primul rând, poți încerca restaurantele din incinta complexului comercial Esplanada. O altă variantă poate fi dată de food court-ul și de terasele din Mega Mall. Sunt atât de variate restaurantele de aici încât sigur găsești ceva pe gustul tău. Te grăbești? Atunci la intersecția dintre Șoseaua Morarilor și Bulevardul Basarabia găsești un drive through McDonald"™s. Câteva terase sunt deschise în zona Parcului Național pe care îl vei avea la doi pași de casă, iar alte restaurante ai la dispoziție în Piața Muncii. Aruncă o privire pe hartă. Vezi ce localuri vei avea în apropierea viitoarei tale case.
Găsești câteva bancomate în centrul comercial Esplanada și în Mega Mall. Verifică harta și află unde sunt poziționate sucursalele bancare din zona Pantelimon.
Înainte să pleci...
Ești sigur că ai văzut și aceste proprietăți?
199.900 €
București, Chișinau
4 camere
87,8 mp
Etaj 12
190.000 €
București, Chișinau
5 camere
96 mp
Etaj 5 / 10
187.000 €
București, Chișinau
4 camere
97 mp
Etaj 5 / 10
Creează alertă
Salvează căutarea ca să primești pe email ultimele anunțuri publicate
Apartamente cu 4+ camere de vânzare în zona Chișinau, Sector 2
Cere detalii prin email
*
*
*
*
Detaliile tale de contact vor fi partajate cu Ramiro Imob
Statistici proprietate
Apartamente 4 camere de vânzare
- București
- Zona Chișinau
Asigurare de viață/lună Costul este variabil. În funcție de banca aleasă, procentul variază între 0.0259% și 0.035% din soldul creditului.
Costuri cu achiziția11.228 RON
Comision agenție Întreabă agenţia
Onorariu notarial7.893 RON
Taxă întabulare OCPI1.429 RON
Autentificare contract credit1.906 RON
Preț de achiziție952.965 RON
Preț locuință952.965 RON
TVA 0%Inclus în prețul cerut
Preț de achiziție952.965 RON
Preț locuință952.965 RON
TVA 0%
Inclus în prețul cerut
Avans minim346.209 RON
Credit pe 30 de ani606.757 RON
Cost achitat în prima lună
Taxa evaluare imobil(până la)
575 RON
Rata lunară (variabilă)4.263 RON
Depozit colateral12.789 RON
Comision de garantare FNGCIMM79 RON
Asigurare anuală imobil953 RON
Poliță PAD130 RON
Tarif arhivă electronică102 RON
Costuri adiționale1.093 RON + taxe notariale
Asigurare viață și complexă (opțională)Costul este variabil. În funcție de banca aleasă, procentul variază între 0.0259% și 0.035% din soldul creditului
Onorariu notarialconform tarif notarial
Taxă întabulare OCPI1.093 RON
i
Toate valorile de mai sus sunt estimative și nu reprezintă în mod obligatoriu costurile exacte pe care le veți primi de la companiile/instituțiile prin care veți încheia tranzacția.