73

QUARTIER AZUGA - APARTAMENT PREMIUM, 3 CAMERE CU DUBLA ORIENTARE, VEDERI LIBERE

283.140 €

Doamna Ghica, București

Nr. cam.:
3
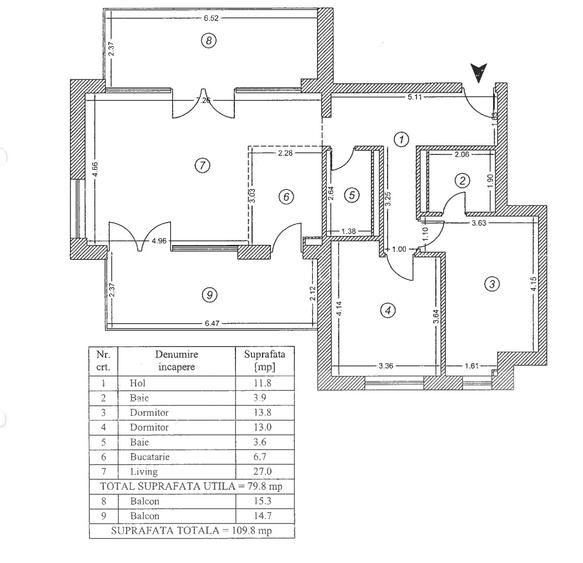
Sup. utilă:
79,8 mp
Etaj:
6 / 6
An constr.:
2024 (Finalizată)
  • • Comision 0%
  • • Locație exactă

Descriere apartament

- apartament cu 3 camere la etajul 6 - 80 mp utili + 2 terase de 15.3 si respectiv 14.7 mp, - dubla orientare, sud-nord, foarte luminos datorita spatiilor vitrate foarte mari - incalzire in pardoseala si sistem de recirculare a aerului - fatada ventilata cu 15 cm de vata bazaltica pentru o izolare termica foarte eficienta Quartier Azuga a fost gândit să reprezinte un mod de viață, nu doar locul în care dormi, mănânci sau lucrezi. Este căminul ce-ți transmite emoții pozitive, mulțumire și o bucurie intensă încă de la început, din momentul în care te vei muta. Fiecare detaliu a fost bine analizat și luat în considerare în dezvoltarea conceptului Quartier Azuga, pentru a asigura experiența optimă comunității viitoare. Proiectul este creat ca un mini-cartier, consolidat cu știință, rafinament și multă pasiune. Quartier Azuga este unul dintre cele mai de succes proiecte rezidentiale din industria imobiliara din Romania, reusind sa obtina diverse premii in acest sens: * Proiectul Rezidential al Anului 2023 la Gala Premiilor Real Estate 2023 * Dezvoltare Rezidentiala Sustenabila la Gala Romanian Property Awards 2023 Pe website-ul nostru, , regasiti toate tipurile de apartamente impreuna cu planurile si de asemenea brosura proiectului, unde puteti sa gasiti mai multe informatii despre toate beneficiile acestuia. Accesati canalul nostru de YouTube (@quartierazuga) pentru a vizualiza clipul de prezentare pentru apartamentul showroom si ultimul stadiu al lucrarilor de constructie. De asemenea ne gasiti pe canalele de social media Instagram, Facebook si TikTok. Avem biroul de vanzari in cadrul santierului si de asemenea apartamentul showroom de prezentare, asa incat va asteptam la o intalnire sa va putem prezenta mai multe despre proiect. Intrati pe si cereti o oferta!
Citește mai mult Citește mai puțin
Confort lux Decomandat Nemobilat 2 Balcoane / Terase / Logii Grădină Curte comună Aer condiționat Alte metode electrice Centrală imobil Încălzire prin pardoseală Beci

Detalii apartament

ID anunț: XDTS00006 Copiat! 1106011 Copiat!
Actualizat în: 12 Februarie 2026
Suprafață utilă totală: 109.8 mp
Suprafață construită: 122 mp
Nr. bucătării: 1
Nr. băi: 2
Structură rezistență: Beton
Tip imobil: Bloc de apartamente
Tip tranzacție: De vânzare prin agent
Regim înălțime: S+P+6E
Modalitate de plată: Cash sau Credit

Utilități

Destinație
Rezidențial
Pereți
Faianță Vopsea lavabilă
Podele
Gresie Parchet
Rulouri/Obloane
PVC
Ușă intrare
Metal
Uși interior
Celulare Lemn
Izolații termice
Exterior
Ferestre cu geam termopan
PVC
Contorizare
Contor căldură Apometre
Diverse
Senzor de fum Telecomandă poartă garaj Telecomandă poartă acces auto
Alte spații utile
Terasă Debara
Facilități imobil
Spații agrement Lift Acoperiș Videointerfon
Utilități
Curent Apă Canalizare CATV
Internet
Fibră optică Wireless
Servicii imobil
Administrare Supraveghere video
Amenajare străzi
Asfaltate Iluminat stradal Mijloace de transport în comun
Comision
0%

Certificat energetic:

Clasa energetică: A

Vecinătăți:

Parcul Plumbuita, Parcul Tei
Soseaua Colentina
Str. Doamna Ghica
Kaufland, LIDL, Mega Image
Veranda Mall

Alte detalii:

* Pompe de caldura
* Panouri fotovoltaice
* Clubhouse (spatiu dedicat comunitatii)
* Promenada si iesire la lac
* Finisaje premium
* Loc de joaca pentru copii
* Sistem de recirculare a aerului

Puncte de interes

Mijloace transport
bus-station
Maior Bacila
Stații autobuz aprox. 311 m
trolleybus-station
Statia Doamna Ghica, linia 66
Stații troleibuz aprox. 790 m
tram-station
Statia Doamna Ghica, linia 21
Stații tramvai aprox. 793 m
train-station
Gara Obor Bucuresti-EST
Stații tren aprox. 1164 m
Școală
school
Scoala Generala nr.145
Școli aprox. 475 m
school
Scoala Generala Nr. 145
Școli aprox. 482 m
kindergarten
Gradinita numarul 276
Gradinițe aprox. 620 m
university
Universitatea Lumina
Universități aprox. 937 m
Recreere
supermarket
Mega Image Doamna Ghica 2
Supermarket aprox. 352 m
park
Parc
Parcuri aprox. 559 m
sports-ground
Teren de Fotbal
Terenuri sport aprox. 582 m
public-square
Piata Bucur Obor
Piețe publice aprox. 1711 m

Istoricul prețurilor

Acces la informații premium după autentificare
Login Gratuit

Detalii despre preț și costuri

Prețul pe piață

Preț cerut: 342.599 €

Preț min. zonă
Preț max. zonă

i

Proprietate cu prețul cerut în afara intervalului mai multe...

Posibile explicații pentru faptul că prețul proprietății este peste cel maxim: imobil nou cu suprafață mare, are dotări și finisaje de lux.
Bine de știut: prețul unei proprietăți este influențat și de alte caracteristici, cum ar fi: vechime, localizare, vecinătăți, suprafață, compartimentare, amenajări, dotări, etc.
Acces la informații premium după autentificare
Login Gratuit

Costuri cu achiziția

Fără credit
Credit ipotecar
Noua casă

i

Costuri adiționale mai puțin știute la achiziție: taxe notariale, comisioane etc.

Acces la informații premium după autentificare
Login Gratuit

Proprietăți similare

Apartament cu 3 camere decomandat, mobilat în Doamna Ghica
248.000 €
București, Doamna Ghica
3 camere
71 mp
Etaj 1
Apartament cu 4 camere decomandat în Obor
234.900 €
București, Obor
4 camere
82 mp
Etaj 4
Apartament cu 3 camere semidecomandat în Doamna Ghica
215.985 €
București, Doamna Ghica
3 camere
73,32 mp
Etaj 4 / 4

Detalii de contact

Abonează-te la newsletter să fii primul care primește cele mai noi recomandări de proprietăți și sfaturi de la experți.

CONTACT

Creează alertă

Salvează căutarea ca să primești pe email ultimele anunțuri publicate

Apartamente noi cu 3 camere de vânzare în zona Doamna Ghica, Sector 2