2 camere - BLOC ANVELOPAT - Tei/Doamna Ghica - Risc 2

77.000 €

Doamna Ghica, București

Nr. cam.:
2
Sup. utilă:
48 mp
Etaj:
10 / 10
An constr.:
1970 (Finalizată)
  • • Locație aproximativă

Descriere apartament

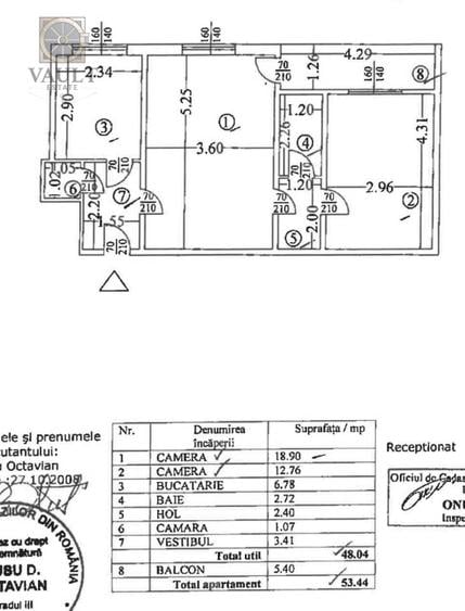
COD PROPRIETATE: P39906 Agentia VAULT ESTATE vă prezintă un apartament cu 2 camere, de vanzare, tip compartimentare semidecomandat, situat în zona Doamna Ghica din Bucuresti. Proprietatea este amplasată într-un imobil de tip bloc mixt, construit în anul 1970, la etajul 10/10. Dispune de o suprafata totala de 53 mp. Utilitati generale: curent electric, apa, canalizare, gaz Sistem de incalzire: termoficare, calorifere Dacă zona și caracteristicile acestui apartament se aliniază nevoilor dumneavoastră, vă invităm să ne contactați pentru mai multe detalii și pentru a programa o vizionare. Beneficiile colaborării cu Vault Estate: • Succesul începe cu alegerile inteligente. Doar pentru că ne-ați contactat, aveți acces GRATUIT la sprijinul unui expert financiar, indiferent dacă achiziționați prin noi, prin altă agenție sau pe cont propriu. • Vă oferim acces la cele mai bune soluții de credite ipotecare și credite de nevoi personale, pentru ca timpul, banii și liniștea dumneavoastră să fie protejate. • Suntem alături de dumneavoastră la fiecare pas, pentru ca visele să devină realitate. Clarificări adiționale: • Informatiile tehnice au caracter orientativ, ele fiind preluate de la proprietari. • Se percepe comision.
Citește mai mult Citește mai puțin
Confort 1 Semidecomandat Mobilat 1 Balcon / Terasă / Logie Aer condiționat Calorifere Termoficare Bine întreținut (Bună)

Detalii apartament

ID anunț: XDTA10T89 Copiat! 275363511 Copiat!
Actualizat în: 27 Martie 2026
Suprafață construită: 53 mp
Nr. bucătării: 1
Nr. băi: 1
Structură rezistență: Beton
Tip imobil: Clădire mixtă
Regim înălțime: P+10E

Utilități

Pereți
Vopsea lavabilă Faianță
Podele
Parchet Gresie
Ușă intrare
Metal
Uși interior
Lemn
Ferestre cu geam termopan
PVC
Contorizare
Apometre Contor gaz
Bucătărie
Parțial mobilată Parțial utilată
Facilități imobil
Interfon Lift
Utilități
Curent Apă Canalizare Gaze
Servicii imobil
Supraveghere video
Amenajare străzi
Asfaltate Betonate Iluminat stradal Mijloace de transport în comun

Puncte de interes

Mijloace transport
tram-station
Teiul Doamnei
Stații tramvai aprox. 65 m
bus-station
Statia Suveica, linia 143, 182, 682, 254, 101,66
Stații autobuz aprox. 197 m
trolleybus-station
Statia Teiul Doamnei, linia 66
Stații troleibuz aprox. 292 m
metro-station
Statia Metrou Piata Obor(M1)Metrorex
Stații metrou aprox. 1008 m
Școală
kindergarten
Coccinelle
Gradinițe aprox. 112 m
school
Gradinita particulara
Școli aprox. 116 m
kindergarten
Gradinita nr. 233
Gradinițe aprox. 225 m
university
Universitatea Spiru Haret - Facultatea de Medicina veterinara
Universități aprox. 567 m
Recreere
park
Parc
Parcuri aprox. 119 m
supermarket
Carrefour Express
Supermarket aprox. 164 m
sports-ground
Teren sportiv
Terenuri sport aprox. 538 m
public-square
Piata Bucur Obor
Piețe publice aprox. 1016 m

Detalii despre preț și costuri

Prețul pe piață

Preț cerut: 77.000 €

Preț min. zonă 64.000 €
Preț max. zonă 169.000 €

73% dintre proprietățile similare ca zonă și nr. camere au prețul cerut mai mare. mai multe...

Bine de știut: prețul unei proprietăți este influențat și de alte caracteristici, cum ar fi: vechime, localizare, vecinătăți, suprafață, compartimentare, amenajări, dotări, etc. mai puțin...

Costuri cu achiziția

Fără credit
5.030 RON
Credit ipotecar
6.393 RON
Noua casă
533 RON+ taxe notariale

i

Costuri adiționale mai puțin știute la achiziție: taxe notariale, comisioane etc.

Proprietăți similare

Apartament cu 2 camere semidecomandat în Doamna Ghica
79.900 €
București, Doamna Ghica
2 camere
39 mp
Etaj 1
Apartament cu 2 camere decomandat, mobilat în Doamna Ghica
76.500 €
București, Doamna Ghica
2 camere
49,16 mp
Etaj 10
Apartament cu 2 camere, mobilat în Doamna Ghica
79.900 €
București, Doamna Ghica
2 camere
41 mp
Etaj 10

Detalii de contact

VAULT ESTATE

Marius Crismariu

4.35(9 review-uri)

VAULT ESTATE
PRO

Abonează-te la newsletter să fii primul care primește cele mai noi recomandări de proprietăți și sfaturi de la experți.

CONTACT

Creează alertă

Salvează căutarea ca să primești pe email ultimele anunțuri publicate

Apartamente cu 2 camere de vânzare în zona Doamna Ghica, Sector 2