Apartament 3 camere Iancului

360.000 €

Iancului, București

Nr. cam.:
3
Sup. utilă:
106 mp
Etaj:
5 / 5
An constr.:
2019 (Finalizată)
  • • Locație aproximativă
  • • Vizionare prin apel video

Descriere apartament

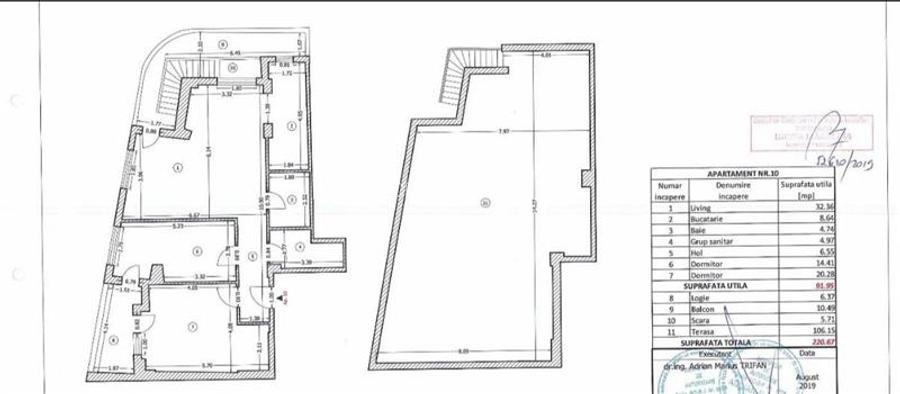
ID intern: 366935 Va propunem spre vanzare un apartament cu 3 camere, decomandat, confort lux, situat in zona Iancului, reper Iancului, intr-un imobil construit in anul 2019, disponibil la etajul 5 din 5, cu o suprafata de 220 mp, baie, balcon, bucatarie. Imobilul este situat in apropiere de piata, statie STB, scoli, gradinita. Vizionarea acestui imobil se face doar in baza semnării unui acord de vizionare conform codului civil, art 2.096-2.102 . Acordam indrumare in vederea acordarii unui credit bancar (BRD, FIRST BANK, ALPHA BANK, PATRIA BANK, BANCA TRANSILVANIA) Se percepe comision 2%. Politica agentiei este de a optimiza negocierea pretului in raport cu comisionul.
Citește mai mult Citește mai puțin
Confort lux Decomandat Lux Mobilat 3 Balcoane / Terase / Logii Aer condiționat Centrală proprie Încălzire prin pardoseală

Detalii apartament

ID anunț: X9I62029V Copiat! 275375608 Copiat!
Actualizat în: 30 Martie 2026
Suprafață utilă totală: 106 mp
Suprafață construită: 220 mp
Nr. bucătării: 1
Nr. băi: 2
Structură rezistență: Altele
Tip imobil: Bloc de apartamente
Regim înălțime: P+5E

Utilități

Destinație
Rezidențial
Jaluzele
Orizontale
Podele
Parchet Gresie
Rulouri/Obloane
Lemn
Ușă intrare
Metal
Izolații termice
Exterior Interior
Ferestre cu geam termopan
PVC
Bucătărie
Utilată Mobilată
Electrocasnice
Aragaz Hotă Frigider Cuptor microunde TV Hotă Mașină de spălat
Diverse
Senzor de fum
Alte spații utile
WC Serviciu
Facilități imobil
Lift
Utilități
Curent Gaze Canalizare
Internet
Cablu Fibră optică
Servicii imobil
Menaj Administrare Pază
Amenajare străzi
Asfaltate Neamenajate
Comision
3%

Puncte de interes

Mijloace transport
bus-station
Statia Mecet linia 90,86
Stații autobuz aprox. 130 m
tram-station
Matasari
Stații tramvai aprox. 307 m
trolleybus-station
Statia Piata Iancului, linia 55
Stații troleibuz aprox. 468 m
metro-station
Statia Soseaua Mihai Bravu, linia 14
Stații metrou aprox. 734 m
Școală
university
Universitatea Nationala de Arta Teatrala si Cinematografica
Universități aprox. 132 m
kindergarten
Montessori Kindergarden of Bucharest
Gradinițe aprox. 217 m
school
Asociatia Culturala Bravissimo
Școli aprox. 253 m
university
Facultatea de Instalatii (en)
Universități aprox. 311 m
Recreere
sports-ground
Teren sportiv
Terenuri sport aprox. 248 m
park
Parc
Parcuri aprox. 258 m
supermarket
InterMacedonia
Supermarket aprox. 569 m
mall
Bucharest, Calea Vitan nr. 8, Bl V51, near VITAN Mall
Mall aprox. 1784 m

Detalii despre preț și costuri

Prețul pe piață

Preț cerut: 360.000 €

Preț min. zonă 98.000 €
Preț max. zonă 330.000 €

i

Proprietate cu prețul cerut în afara intervalului mai multe...

Posibile explicații pentru faptul că prețul proprietății este peste cel maxim: imobil nou cu suprafață mare, are dotări și finisaje de lux.
Bine de știut: prețul unei proprietăți este influențat și de alte caracteristici, cum ar fi: vechime, localizare, vecinătăți, suprafață, compartimentare, amenajări, dotări, etc.

Costuri cu achiziția

Fără credit
70.331 RON
Credit ipotecar
72.973 RON
Noua casă
1.975 RON+ taxe notariale

i

Costuri adiționale mai puțin știute la achiziție: taxe notariale, comisioane etc.

Proprietăți similare

Apartament cu 4 camere decomandat în Iancului
380.000 € + TVA
București, Iancului
4 camere
105,15 mp
Etaj 4
Apartament cu 3 camere decomandat, mobilat în Iancului
360.000 €
București, Iancului
3 camere
92 mp
Etaj 5
Apartament cu 4 camere decomandat în Iancului
385.000 € + TVA
București, Iancului
4 camere
118 mp
Etaj 4 / 4

Detalii de contact

CR Imobiliare

Daniela Rogoz Broker imobiliar

4.70(9 review-uri)

CR Imobiliare
PRO

Abonează-te la newsletter să fii primul care primește cele mai noi recomandări de proprietăți și sfaturi de la experți.

CONTACT

Creează alertă

Salvează căutarea ca să primești pe email ultimele anunțuri publicate

Apartamente cu 3 camere de vânzare în zona Iancului, Sector 2