6

2 camere cu vedere superba Ultracentral - Mosilor

190.000 € + TVA

Moșilor, București

Nr. cam.:
2
Sup. utilă:
55 mp
Etaj:
3
An constr.:
2026
  • • Comision 0%
  • • Locație aproximativă

Descriere apartament

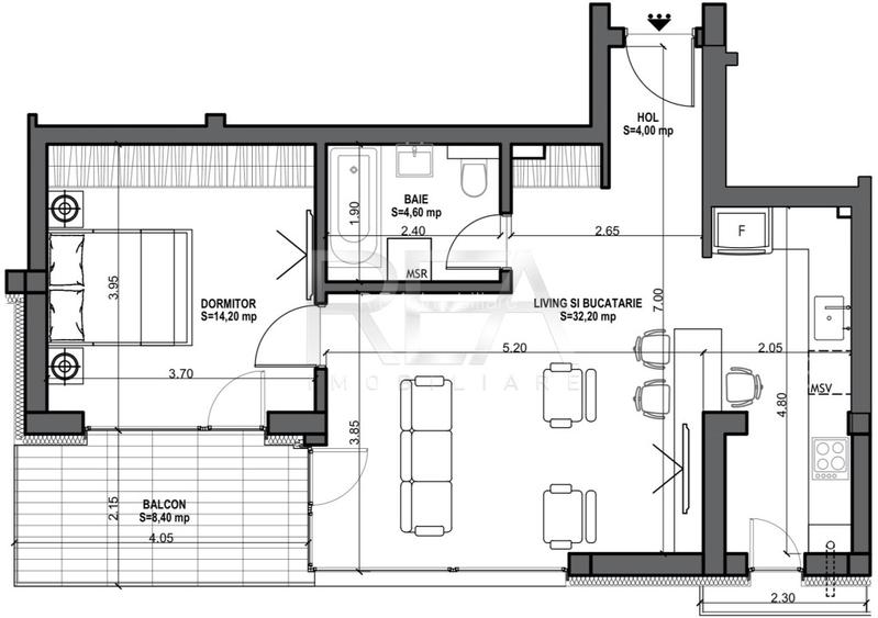
R.E.A. Imobiliare Apartament 2 camere, semidecomandat, orientat SUD - VEST, cu FINISAJE LA ALEGERE, la etajul 3 al unui imobil format din parter + 5 etaje + 2 etaje retrase, in zona Mosilor, la doar cativa pasi de strada Mihai Eminescu si Bulevardul Dacia, cu acces rapid atat catre Obor, cat si catre Universitate. Acces rapid la transport public: 3 minute pana la statiile STB, 8 minute pana la metrou Obor. Termen de finalizare 31 Mai 2026 - Suprafata totala de 63,4 mp: 55 mp utili+ 8,4 mp balcon. - Configuratie: dormitor, living, bucatarie, hol, baie si balcon. - Incalzire prin pardoseala Tecce Germania, centrala proprie. - Parcare subterana tip Klaus independent 30.000 EUR+TVA / loc. Informatii suplimentare: - Parchet din lemn stratificat; - Ceramica perete / pardoseala in bai si parti comune, fabricatie Italia; - Obiectele sanitare gama moderna Rocca, accesorii HansGrohe; - Accesorii electrice Bticino prize / intrerupatoare, gama Premium; - Usi interior MDF pantografate, cu toc plan si pervaz drept, cu broasca magnetica, Pinum fabricatie Italia; - Usa intrare apartament metalica, blindata cu inchideri multipunct si balamale ascunse, Pinum fabricatie Italia; - Tamplarie PVC cu sticla termoizolanta tripan Salamander Blue Edition; - Inchiderile perimetrale si compartimentarile dintre apartamente din caramida Wienerberger de 36cm, iar compartimentarile interioare tot din caramida Wienerberger de 15cm; - Fatada ventilata: vata bazaltica 15cm, alucobond plus fibrociment; - Acces securizat in cladire, videointerfon si supaveghere video perimetrala si spatii comune. Pentru detalii si vizionari, contactati-ne specificand codul de identificare P5031.
Citește mai mult Citește mai puțin
Confort lux Semidecomandat Nemobilat 1 Balcon / Terasă / Logie Curte comună Aer condiționat Centrală proprie Încălzire prin pardoseală 1 Parcare 1 Parcare / Garaj / Parcare subterană

Detalii apartament

ID anunț: XDKS104LP Copiat! 242837240 Copiat!
Actualizat în: 23 Februarie 2026
Suprafață construită: 74.6 mp
Nr. bucătării: 1
Nr. băi: 1
Structură rezistență: Beton
Tip imobil: Bloc de apartamente
Regim înălțime: S+P+7E

Utilități

Pereți
Vopsea lavabilă Faianță
Podele
Parchet Gresie
Ușă intrare
Metal
Uși interior
Lemn
Izolații termice
Exterior Bloc izolat termic
Contorizare
Apometre Contor căldură Contor gaz
Alte spații utile
Terasă
Facilități imobil
Videointerfon Lift Spații agrement
Utilități
Curent Apă Canalizare Gaze CATV Telefon
Amenajare străzi
Asfaltate Iluminat stradal Mijloace de transport în comun

Certificat energetic:

Clasa energetică: A

Vecinătăți:

Liceul Dr. Mioara Mincu, Scoala 26, Scoala Gimnaziala 307, Scoala Gimnaziala Maica Domnului, Gradinita Magnolia, Serviciul de Ambulanta, Piata Obor, Veranda Mall

Disponibilitate proprietate:

imediat

Puncte de interes

Mijloace transport
tram-station
Statie Bd. Carol I / Calea Mosilor linii : 21
Stații tramvai aprox. 335 m
bus-station
Bulevardul Carol I
Stații autobuz aprox. 343 m
trolleybus-station
Statia Foisorul de Foc linii : 79,86
Stații troleibuz aprox. 554 m
metro-station
Metrorex. Stația Universitate (M2)(1987)
Stații metrou aprox. 1100 m
Școală
school
Grădinița (en)
Școli aprox. 176 m
school
Scoala nr. 23
Școli aprox. 176 m
kindergarten
Gradinita numarul 8
Gradinițe aprox. 372 m
university
Universitatea din Bucuresti - Facultatea de Stiinte Politice
Universități aprox. 537 m
Recreere
park
Parc
Parcuri aprox. 384 m
public-square
Piata Latina
Piețe publice aprox. 386 m
supermarket
Mega Image Concept Store
Supermarket aprox. 426 m
mall
"METROPLIS CENTER"
Mall aprox. 1814 m

Detalii despre preț și costuri

Prețul pe piață

Preț cerut: 190.000 €

Preț min. zonă 69.900 €
Preț max. zonă 220.000 €

92% dintre proprietățile similare ca zonă și nr. camere au prețul cerut mai mic. mai multe...

Bine de știut: prețul unei proprietăți este influențat și de alte caracteristici, cum ar fi: vechime, localizare, vecinătăți, suprafață, compartimentare, amenajări, dotări, etc. mai puțin...

Costuri cu achiziția

Fără credit
10.798 RON
Credit ipotecar
12.887 RON
Noua casă
1.312 RON+ taxe notariale

i

Costuri adiționale mai puțin știute la achiziție: taxe notariale, comisioane etc.

Proprietăți recomandate

Detalii de contact

R.E.A. Imobiliare

Vladislav Chirev Broker

4.93(5 review-uri)

R.E.A. Imobiliare
PRO

Abonează-te la newsletter să fii primul care primește cele mai noi recomandări de proprietăți și sfaturi de la experți.

CONTACT

Creează alertă

Salvează căutarea ca să primești pe email ultimele anunțuri publicate

Apartamente cu 2 camere de vânzare în zona Moșilor, Sector 2