7

Mosilor, duplex, bloc nou de 3 etaje. Comision 0.

199.000 €

Moșilor, București

Nr. cam.:
2
Sup. utilă:
68 mp
Etaj:
2 / 3
An constr.:
2007 (Finalizată)
  • • Comision 0%
  • • Exclusivitate
  • • Locație exactă

Descriere apartament

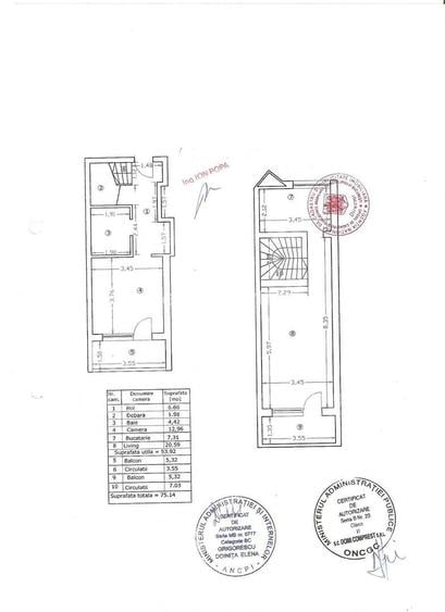
Va prezentam un apartament de 2 camere - duplex - situat la etajele 2 si 3 ale unui bloc elegant construit in 2007, imobil de mici dimensiuni. Imobilul are doar 20 de apartamente si se evidentiaza atat prin design, prin finisajele interioare de exceptie, cat si prin comunitatea frumoasa. Apartamentul se desfasoara pe 2 niveluri: la primul nivel se gasesc dormitorul, baia si o debara, iar la nivelul urmator - living-ul si bucataria. La fiecare dintre etaje se afla cate o terasa spatioasa cu vedere libera. Are spatii echilibrate, impartire ingenioasa, ferestre mari si spatii de depozitare. Imobilul beneficiaza de centrala termica proprie si izolatie cu polistiren expandat de 10 cm. Cheltuieli reduse intretinere. Blocul are lift Schindler de 8 persoane. Garajul subteran si boxa pot fi achizitionate separat, pretul este de 20000 EUR. Proprietar - persoana fizica.
Citește mai mult Citește mai puțin
Confort 1 Decomandat 2 Balcoane / Terase / Logii Aer condiționat Calorifere Centrală imobil 1 Parcare Bine întreținut (Bună)

Detalii apartament

ID anunț: XCCC1004M Copiat! 256429008 Copiat!
Actualizat în: 06 Aprilie 2026
Suprafață construită: 80 mp
Nr. bucătării: 1
Nr. băi: 1
Structură rezistență: Beton
Tip imobil: Bloc de apartamente
Regim înălțime: S+P+3E

Utilități

Destinație
Rezidențial
Pereți
Faianță Vopsea lavabilă
Podele
Gresie Parchet
Rulouri/Obloane
PVC
Ușă intrare
Metal
Uși interior
Lemn
Izolații termice
Exterior
Contorizare
Apometre Contor căldură
Facilități imobil
Interfon Lift
Utilități
Curent Apă Canalizare CATV Gaze Telefon
Internet
Cablu
Servicii imobil
Supraveghere video
Amenajare străzi
Iluminat stradal Mijloace de transport în comun Asfaltate
Comision
0%

Disponibilitate proprietate:

Imediat

Puncte de interes

Mijloace transport
bus-station
Statia Fainari; Liniile:N101, 66
Stații autobuz aprox. 295 m
tram-station
Statia Horei; Linia:14
Stații tramvai aprox. 333 m
trolleybus-station
Statia Mihai Bravu; Liniile:69, 85,
Stații troleibuz aprox. 475 m
metro-station
Statia Soseaua Mihai Bravu, linia 14
Stații metrou aprox. 489 m
Școală
school
Scoala Nr. 50
Școli aprox. 135 m
school
LICEUL TEORETIC "ADY ENDRE"
Școli aprox. 266 m
university
Facultatea de Instalatii (en)
Universități aprox. 591 m
kindergarten
Gradinita numarul 8
Gradinițe aprox. 595 m
Recreere
supermarket
Spectrum
Supermarket aprox. 260 m
park
Parc
Parcuri aprox. 306 m
public-square
Piata Bucur Obor
Piețe publice aprox. 552 m
sports-ground
Teren sportiv
Terenuri sport aprox. 865 m

Detalii despre preț și costuri

Prețul pe piață

Preț cerut: 199.000 €

Preț min. zonă
Preț max. zonă

72% dintre proprietățile similare ca zonă și nr. camere au prețul cerut mai mic. mai multe...

Bine de știut: prețul unei proprietăți este influențat și de alte caracteristici, cum ar fi: vechime, localizare, vecinătăți, suprafață, compartimentare, amenajări, dotări, etc. mai puțin...

Insight premium disponibil după login

Costuri cu achiziția

Fără credit
Credit ipotecar
Noua casă

i

Costuri adiționale mai puțin știute la achiziție: taxe notariale, comisioane etc.

Insight premium disponibil după login

Proprietăți recomandate

Detalii de contact

Key Properties

Key Properties

5.00(3 review-uri)

Key Properties

Abonează-te la newsletter să fii primul care primește cele mai noi recomandări de proprietăți și sfaturi de la experți.

CONTACT

Creează alertă

Salvează căutarea ca să primești pe email ultimele anunțuri publicate

Apartamente cu 2 camere de vânzare în zona Moșilor, Sector 2