11

Direct dezvoltator 3 camere, etaj 1 - Mosilor

260.000 €

Moșilor, București

Nr. cam.:
3
Sup. utilă:
81,4 mp
Etaj:
1 / 2
An constr.:
2025
  • • Locație aproximativă

Descriere apartament

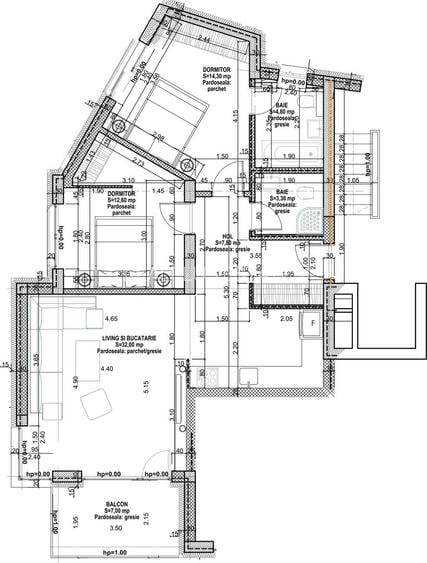
Va oferim spre vanzare apartament de trei camere, situat intr-un imobil nou construit din zona Mosilor. Imobilul dispune de lift si curte, finisaje premium, structura de rezistenta este realizata la grad seismic ridicat, izolatii rezistente la foc, zgomot si schimb de temperatura, instalatii sanitare si electrice standard UE, terase hidroizolate, parcare subterana. Printre avantajele acestui imobil mentionam numeroasele mijloace de transport in comun, printre care si metrou Piata Obor la o distanta de 400m., institutii de invatamant, gradinite, supermarketuri, farmacii, banci, magazine, restaurante, cafenele Regim de inaltime: S + P + 2 + 3R / 3 camere/etaj 1 Apartamentul este compus din doua dormitoare, bucatarie, doua bai, balcon, hol Suprafata utila -81.4 mp / Suprafata construita - 90 mp / Suprafata balcon - 7.4 mp Apartamentul dispune de centrala proprie, incalzire in pardoseala, ferestre termopan, paza, interfon, wireless, izolatie, telecomanda poarta auto, etc. ID: CP2098767 PRET: 260.000 Euro + TVA comision 0% TEL:
Citește mai mult Citește mai puțin
Decomandat 1 Balcon / Terasă / Logie Curte Aer condiționat Centrală proprie Încălzire prin pardoseală

Detalii apartament

ID anunț: XBKM100CC Copiat! 275395291 Copiat!
Actualizat în: 18 Mai 2026
Suprafață construită: 90 mp
Nr. bucătării: 1
Nr. băi: 2
Tip imobil: Bloc de apartamente
Tip tranzacție: De vânzare prin agent
Regim înălțime: S+P+2E
Modalitate de plată: Cash sau Credit

Utilități

Pereți
Faianță Vopsea lavabilă
Podele
Gresie Parchet
Ușă intrare
Metal
Uși interior
Celulare
Izolații termice
Exterior Interior
Ferestre cu geam termopan
PVC
Diverse
Telecomandă poartă acces auto
Facilități imobil
Interfon Lift Videointerfon
Utilități
Curent Apă Canalizare CATV Gaze Telefon
Internet
Cablu Wireless
Servicii imobil
Supraveghere video
Amenajare străzi
Iluminat stradal Mijloace de transport în comun Asfaltate
Comision
standard

Disponibilitate proprietate:

Imediat

Puncte de interes

Mijloace transport
trolleybus-station
Statia Foisorul de Foc linii : 79,86
Stații troleibuz aprox. 105 m
bus-station
Statia Foisorul de Foc linia 133, 135, N108,69, 85, 79, 86
Stații autobuz aprox. 143 m
tram-station
Bd. Pache Protopopescu
Stații tramvai aprox. 202 m
metro-station
Statia Soseaua Mihai Bravu, linia 14
Stații metrou aprox. 896 m
Școală
kindergarten
Gradinita
Gradinițe aprox. 114 m
school
Gradinita Montessori
Școli aprox. 158 m
kindergarten
Gradinita numarul 8
Gradinițe aprox. 445 m
university
Universitatea din Bucuresti - Facultatea de Stiinte Politice
Universități aprox. 471 m
Recreere
supermarket
Mega Image
Supermarket aprox. 219 m
park
Parcul Izvorul Rece
Parcuri aprox. 405 m
public-square
Piata Latina
Piețe publice aprox. 540 m
sports-ground
Teren sportiv
Terenuri sport aprox. 954 m

Istoricul prețurilor

Acces la informații premium după autentificare
Login Gratuit

Detalii despre preț și costuri

Prețul pe piață

Preț cerut: 260.000 €

Preț min. zonă
Preț max. zonă

80% dintre proprietățile similare ca zonă și nr. camere au prețul cerut mai mic. mai multe...

Bine de știut: prețul unei proprietăți este influențat și de alte caracteristici, cum ar fi: vechime, localizare, vecinătăți, suprafață, compartimentare, amenajări, dotări, etc. mai puțin...

Acces la informații premium după autentificare
Login Gratuit

Costuri cu achiziția

Fără credit
Credit ipotecar
Noua casă

i

Costuri adiționale mai puțin știute la achiziție: taxe notariale, comisioane etc.

Acces la informații premium după autentificare
Login Gratuit

Proprietăți similare

Apartament cu 2 camere semidecomandat în Moșilor
240.790 €
București, Moșilor
2 camere
55 mp
Etaj 3 / 7
Apartament cu 2 camere decomandat în Moșilor
278.784 €
București, Moșilor
2 camere
48 mp
Parter / 4
Apartament cu 2 camere decomandat în Moșilor
256.278 €
București, Moșilor
2 camere
47 mp
Parter / 4

Detalii de contact

REALPLUS ESTATES

Neoland RealPlus Estates Manager

4.08(4 review-uri)

REALPLUS ESTATES
PRO

Abonează-te la newsletter să fii primul care primește cele mai noi recomandări de proprietăți și sfaturi de la experți.

CONTACT

Creează alertă

Salvează căutarea ca să primești pe email ultimele anunțuri publicate

Apartamente noi cu 3 camere de vânzare în zona Moșilor, Sector 2