Apartament 4 | Obor | 5 minute metrou | 103 mp total | Mobilat - Utilat |

240.000 €

Obor, București

Nr. cam.:
4
Sup. utilă:
84 mp
Etaj:
8 / 10
An constr.:
1977
  • • Locație exactă

Descriere apartament

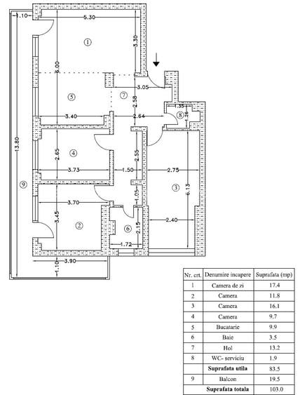
Vă propunem spre vânzare un apartament de 4 camere, situat în zona Obor, la doar 5 minute de stația de metrou Obor, într-un bloc construit în anul 1977. Locuința este amplasată la etajul 8 din 10, are compartimentare decomandată și o suprafață utilă de 83,5 mp, la care se adaugă 19,5 mp de balcon, rezultând o suprafață totală de 103 mp. Apartamentul este renovat, mobilat și utilat, fiind gata pentru mutare imediată. Se predă exact cum se vede în poze, ceea ce îl face potrivit atât pentru locuit, cât și ca investiție. Compartimentarea este practică și bine organizată, iar apartamentul dispune de: • living generos • 3 dormitoare • bucătărie • 2 grupuri sanitare: baie și WC de serviciu • balcon spațios Poziționarea oferă acces rapid către metrou, mijloace de transport, centre comerciale, piețe, școli, grădinițe și toate facilitățile necesare unui stil de viață confortabil. Un apartament potrivit pentru o familie care își dorește spațiu, accesibilitate și o locație foarte bine conectată la oraș.
Citește mai mult Citește mai puțin
Confort 1 Decomandat Mobilat 1 Balcon / Terasă / Logie

Detalii apartament

ID anunț: XECN00088 Copiat! 275470093 Copiat!
Actualizat în: 24 Aprilie 2026
Suprafață utilă totală: 103 mp
Nr. bucătării: 1
Nr. băi: 2
Tip imobil: Bloc de apartamente
Regim înălțime: P+10E

Utilități

Bucătărie
Mobilată
Electrocasnice
Mașină de spălat Frigider Cuptor microunde Aragaz Hotă
Facilități imobil
Lift

Vecinătăți:

Metrou Obor 4 Min

Puncte de interes

Mijloace transport
tram-station
Ziduri Mosi
Stații tramvai aprox. 49 m
bus-station
Statia Soseaua Colentina / Ziduri Mosi, linia 143, 682, 254, N101, 101, 21, 36,66
Stații autobuz aprox. 63 m
trolleybus-station
Statia Teiul Doamnei, linia 66
Stații troleibuz aprox. 164 m
metro-station
Statia Metrou Piata Obor(M1)Metrorex
Stații metrou aprox. 574 m
Școală
kindergarten
Gradinita nr. 135
Gradinițe aprox. 262 m
kindergarten
Gradinita numarul 135
Gradinițe aprox. 266 m
university
Universitatea Spiru Haret - Facultatea de Medicina veterinara
Universități aprox. 273 m
school
Scoala generala nr. 27
Școli aprox. 319 m
Recreere
supermarket
Kaufland
Supermarket aprox. 98 m
park
parculet
Parcuri aprox. 117 m
sports-ground
Parter - Hala mare
Terenuri sport aprox. 422 m
public-square
Piata Bucur Obor
Piețe publice aprox. 565 m

Detalii despre preț și costuri

Prețul pe piață

Preț cerut: 240.000 €

Preț min. zonă
Preț max. zonă

i

Proprietate cu prețul cerut în afara intervalului mai multe...

Posibile explicații pentru faptul că prețul proprietății este peste cel maxim: imobil nou cu suprafață mare, are dotări și finisaje de lux.
Bine de știut: prețul unei proprietăți este influențat și de alte caracteristici, cum ar fi: vechime, localizare, vecinătăți, suprafață, compartimentare, amenajări, dotări, etc.
Insight premium disponibil după login

Costuri cu achiziția

Fără credit
Credit ipotecar
Noua casă

i

Costuri adiționale mai puțin știute la achiziție: taxe notariale, comisioane etc.

Insight premium disponibil după login

Proprietăți similare

Apartament cu 3 camere în Obor
233.000 € + TVA
București, Obor
3 camere
104 mp
Etaj 4
Apartament cu 3 camere în Obor
260.300 € + TVA
București, Obor
3 camere
85,35 mp
Etaj 11
Apartament cu 4 camere decomandat în Obor
234.900 €
București, Obor
4 camere
82 mp
Etaj 4

Detalii de contact

Dream Home Property Investments

Bica Fabian Agent Imobiliar

Dream Home Property Investments

Abonează-te la newsletter să fii primul care primește cele mai noi recomandări de proprietăți și sfaturi de la experți.

CONTACT

Creează alertă

Salvează căutarea ca să primești pe email ultimele anunțuri publicate

Apartamente cu 4+ camere de vânzare în zona Obor, Sector 2