Apartament situat la etajul 6 al unui imobil nou, recepționat și livrat la începutul anului 2011, conceput ca un proiect rezidențial exclusivist, amplasat într-o zonă centrală a Bucureștiului. Proprietatea beneficiază de acces facil către principalele mijloace de transport în comun, dar în același timp oferă liniște, intimitate și priveliști ample către Parcul Circului și zona de Nord a orașului.
Poziționarea excelentă asigură deschideri generoase către Floreasca, Herăstrău și Casa Presei Libere, zona fiind completată de toate facilitățile și punctele de interes necesare unui stil de viață modern și confortabil.
Imobilul dispune de 3 niveluri de subsol, proiectate pentru a asigura suficiente locuri de parcare pentru toate apartamentele. Structura de rezistență este realizată cu incintă de piloți forați secanți, cu excavație până la adâncimea de -11 m, sub nivelul pânzei freatice, oferind un grad ridicat de siguranță și stabilitate.
Dotările clădirii includ lift Schindler, centrală termică Buderus cu arzător Weishaupt, panouri solare Buderus Logasol (40 mp), pază umană și supraveghere video 24/7, sistem automat de detectare și stingere a incendiilor, sistem de detectare și evacuare a noxelor din subsol, precum și sistem de degivrare pentru rampa de acces către parcarea subterană.
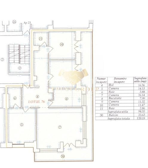
Apartamentul are o suprafață utilă de 94,55 mp, completată de o terasă generoasă de 25,63 mp, ideală pentru relaxare și pentru a profita de priveliștile deschise oferite de poziționarea la etaj superior.
Proprietate cu prețul cerut în afara intervalului mai multe...
Posibile explicații pentru faptul că prețul proprietății este peste cel maxim: imobil nou cu suprafață mare, are dotări și finisaje de lux.
Bine de știut: prețul unei proprietăți este influențat și de alte caracteristici, cum ar fi: vechime, localizare, vecinătăți, suprafață, compartimentare, amenajări, dotări, etc.
Costuri cu achiziția
Fără credit
22.482 RON
Credit ipotecar
26.016 RON
Noua casă
3.046 RON+ taxe notariale
i
Costuri adiționale mai puțin știute la achiziție: taxe notariale, comisioane etc.
Sediul central - Timișoara
Bulevardul Victor Babeș nr. 2, 300230, Timișoara, România
Tel: +40.374.40.44.98 / Fax: +40.256.401.179
Email: suport@imobiliare.ro
Luni - Vineri 08:00 - 20:00
Punct de lucru - București: Iride Business Park, Bld. Dimitrie
Pompeiu 9-9A, Clădirea B2B,
020335, Sector 2, București, România
CONTACT
Sediul central - Timișoara
Bulevardul Victor Babeș nr. 2, 300230, Timișoara, România
Tel: +40.374.40.44.98 / Fax: +40.256.401.179
Email: suport@imobiliare.ro
Luni - Vineri 08:00 - 20:00
Punct de lucru - București: Iride Business Park, Bld. Dimitrie
Pompeiu 9-9A, Clădirea B2B,
020335, Sector 2, București, România
Statia Soseaua Stefan cel Mare / Stadion Dinamo, linia 1, 5, 46, N123
aprox.
809 m
Stefan cel Mare
aprox.
847 m
Statia Soseaua Stefan cel Mare, linia 135, N119, N123
aprox.
949 m
Statia Lizeanu / Soseaua Stefan cel Mare, linia 330, 335, 1, 16, 46
aprox.
1009 m
Statia Calea Floreasca / Ceaikovski / Mircea Eliade, linia 135, 182, 282, N119, N123
aprox.
1010 m
Bulevardul Lacul Tei
aprox.
377 m
Bulevardul Lacul Tei
aprox.
423 m
Vasile Lascar
aprox.
645 m
Ceaikovski
aprox.
658 m
Vasile Lascar
aprox.
659 m
Stadion Dinamo
aprox.
712 m
Soseaua Stefan cel Mare
aprox.
716 m
Dr. Grozovici
aprox.
746 m
Alexandru cel Bun
aprox.
761 m
Ceaikovski
aprox.
761 m
Bulevardul Lacul Tei
aprox.
767 m
Statia Alexandru cel Bun; Linia: 16, 36
aprox.
775 m
Stadion Dinamo
aprox.
793 m
Grigore Moisil
aprox.
796 m
Dr. Grozovici
aprox.
799 m
Metrorex. Stația Ștefan cel Mare (M1)(1989)
aprox.
784 m
Statia Metrou Piata Obor(M1)Metrorex
aprox.
1457 m
Metrorex. Stația Obor (M1)(1989)(Fosta statie de tramvai subterana)
aprox.
1537 m
Statia Metrou Piata Romana(M2)Metrorex
aprox.
1744 m
Metrorex. Stația Piața Romană (M2)(1988)
aprox.
1785 m
Piata Romana (M2)
aprox.
1785 m
Statia Metrou Piata Romana(M2)Metrorex
aprox.
1800 m
Metrorex. Piata Victoriei 1/2 (M1) , (M2)
aprox.
1961 m
Metrou Victoriei - iesire Aviatorilor
aprox.
1987 m
Piata Victoriei 1
aprox.
1993 m
Statia Calea Dorobantilor; Liniile:79, 86,
aprox.
1512 m
Statia Teiul Doamnei, linia 66
aprox.
1515 m
Statia Piata Romana linii : 79,86
aprox.
1662 m
Statia Doamna Ghica, linia 66
aprox.
1781 m
Statia Doamna Ghica, linia 66
aprox.
1871 m
Colegiul Tehnic "Traian"
aprox.
406 m
Liceul Tehnic Traian
aprox.
411 m
Scoala Generala nr.28
aprox.
488 m
Scoala Generala nr. 28
aprox.
488 m
Scoala de muzica si arte plastice nr. 4
aprox.
720 m
Scoala Gimnaziala de Arte nr. 4
aprox.
739 m
ȘCOALA CU CLASELE I-VIII NR. 10
aprox.
760 m
Maria Rosetti
aprox.
760 m
Clubul Sportiv Dinamo Bucuresti
aprox.
777 m
Gradinita Floreasca Rahmaninov
aprox.
789 m
Scoala generala nr. 24
aprox.
881 m
Scoala nr. 24
aprox.
894 m
gradinitza "zori de zi"
aprox.
945 m
Liceul Tehnologic Special nr. 3
aprox.
1005 m
Scoala Pentru Hipoacuzici
aprox.
1015 m
Athenaeum University (en)
aprox.
514 m
Universitatea Atenaeum
aprox.
521 m
Facultatea de Hidrotehnica
aprox.
1176 m
UTCB-Laborator de Hidraulica si Protectia Mediului
aprox.
1179 m
CROS - Universitatea Alternativa
aprox.
1212 m
Universitatea Technică de Construcții (UTCB)
aprox.
1238 m
Universitatea Tehnica de Constructii Bucuresti
aprox.
1257 m
Facultatea de Constructii Civile, Industriale si Agricole
aprox.
1262 m
Facultatea de Constructii Civile
aprox.
1264 m
Universitatea Spiru Haret - Facultatea de Medicina veterinara
aprox.
1276 m
UTCB - Facultatea de Geodezie
aprox.
1326 m
Facultatea de Cai Ferate Drumuri si Poduri, Facultate de Geodezie
aprox.
1343 m
ASE - Cibernetica
aprox.
1503 m
ASE Cibernetica (en)
aprox.
1536 m
ASE - Sala de sport
aprox.
1567 m
Gradinita Numarul 7
aprox.
715 m
Gradinita nr. 7
aprox.
723 m
Gradinita numarul 12 Albinuta
aprox.
728 m
Gradinita nr. 12 Albinuta
aprox.
742 m
Paradisul Copiilor
aprox.
777 m
Gradinita cu program normal si prelungit Happy Kids
aprox.
814 m
Gradinita nr. 138 cu program prelungit
aprox.
884 m
Gradinita Nr. 234 - Zori de zi
aprox.
921 m
Gradinita nr. 7
aprox.
1104 m
Gradinita nr. 252 cu program prelungit
aprox.
1230 m
Gradinita numarul 233
aprox.
1231 m
Gradinita numarul 135
aprox.
1332 m
Gradinita nr. 135
aprox.
1340 m
Gradinita nr. 85
aprox.
1386 m
Gradinita numarul 133
aprox.
1471 m
Mega Image
aprox.
304 m
Kaufland Barbu Vacarescu
aprox.
581 m
BILLA - B. Vacarescu
aprox.
636 m
Domino Plaza
aprox.
734 m
Issa Supermarket
aprox.
825 m
Mega Image Maica Domnului Non-Stop
aprox.
922 m
Stock Market
aprox.
1055 m
Mega Image Lizeanu Non-Stop
aprox.
1110 m
Mega Image Supermarket
aprox.
1126 m
Mega Image
aprox.
1186 m
Mario Plaza
aprox.
1194 m
Mega Image - IANCU DE HUNEDOARA
aprox.
1223 m
Nic Dorobanti Non-Stop
aprox.
1288 m
Ethos supermarket
aprox.
1334 m
Best Supermarket
aprox.
1336 m
"METROPLIS CENTER"
aprox.
1255 m
Parcare
aprox.
303 m
Parcare privata
aprox.
377 m
Parcare
aprox.
425 m
Parcare
aprox.
533 m
Parcare
aprox.
540 m
Parcare
aprox.
540 m
Parcare
aprox.
557 m
Parcare
aprox.
601 m
Parcare
aprox.
615 m
Parcare
aprox.
759 m
Parcare
aprox.
781 m
Parcare
aprox.
790 m
Parcare
aprox.
809 m
Parcare spital
aprox.
852 m
Parcare
aprox.
852 m
Parc
aprox.
68 m
Parcul Circului
aprox.
166 m
Parcul Circului(1961)
aprox.
254 m
Parc
aprox.
614 m
Parcul Floreasca Cinema
aprox.
620 m
Parc
aprox.
867 m
Automatica Park (en)
aprox.
873 m
Parc
aprox.
899 m
Spatii verzi
aprox.
968 m
Parc
aprox.
1048 m
Perla park
aprox.
1048 m
Parc
aprox.
1078 m
Parc
aprox.
1159 m
Parc
aprox.
1173 m
Parcul Floreasca(1963)
aprox.
1185 m
Teren sportiv
aprox.
466 m
Teren sportiv
aprox.
528 m
Teren sportiv
aprox.
545 m
Teren sportiv
aprox.
642 m
Teren sportiv
aprox.
646 m
Teren sportiv
aprox.
698 m
Stadionul Dinamo
aprox.
752 m
ICSIM
aprox.
770 m
Gradinita
aprox.
1147 m
Teren sportiv
aprox.
1153 m
Respawn A
aprox.
1163 m
Respawn B
aprox.
1166 m
Teren sportiv
aprox.
1176 m
Etaj 1 - Hala CQB
aprox.
1190 m
Teren sportiv
aprox.
1193 m
Piata Bucur Obor
aprox.
1597 m
Piața Romană
aprox.
1691 m
Piața Aviatorilor
aprox.
1928 m
Farmacia Tei
aprox.
10 m
Farmacia Richter
aprox.
89 m
Sensiblu
aprox.
275 m
Sante
aprox.
292 m
Catena Farmacie
aprox.
310 m
Farmacia Tei
aprox.
316 m
Bebe Tei
aprox.
354 m
Sensiblu Spitalul Colentina
aprox.
676 m
Help Net Farma
aprox.
676 m
Panaceea
aprox.
696 m
Farmaciile Reteta
aprox.
700 m
Pharma Life
aprox.
713 m
Farmacia Dona
aprox.
736 m
Sensiblu
aprox.
745 m
Catena Farmacie
aprox.
753 m
PROVITA
aprox.
466 m
Pavilonul J
aprox.
525 m
Clinica de Boli Profesionale
aprox.
550 m
PAVILIONUL I
aprox.
556 m
Syromed+
aprox.
568 m
PAVILIONUL D
aprox.
580 m
PAVILIONUL H
aprox.
582 m
Centrul Medical Hiperdia
aprox.
591 m
Sectia Cardiologie
aprox.
592 m
Pavilion D - Policlinica Grozovici
aprox.
594 m
PAVILIONUL G
aprox.
595 m
PAVILIONUL E
aprox.
602 m
Pavilonul C
aprox.
602 m
PAVILIONUL F
aprox.
632 m
PAVILIONUL B
aprox.
648 m
Circus Pub
aprox.
89 m
Restaurant Balbek
aprox.
244 m
Ganesha Garden
aprox.
418 m
Don Carlos
aprox.
421 m
Restaurant BUGATTI 2000
aprox.
497 m
McDonald's
aprox.
586 m
La Placinte
aprox.
665 m
Spring Time
aprox.
680 m
Spring Time (en)
aprox.
690 m
Restaurant La Mama (en)
aprox.
731 m
Li-WU
aprox.
742 m
La Mama
aprox.
743 m
Bun si Tot
aprox.
773 m
Vivo Fusion Food Bar
aprox.
777 m
Restaurant chinezesc "Templul soarelui"
aprox.
781 m
Restaurant-pizzerie BONA DA ELENA
aprox.
115 m
Open Pub
aprox.
893 m
Studio Martin
aprox.
1154 m
Doncafe Brasserie
aprox.
1379 m
Waldo's
aprox.
1436 m
Panik & Pub
aprox.
1445 m
Barletto
aprox.
1507 m
OLD NICK PUB
aprox.
1689 m
Smart's Pub & Bistro
aprox.
1778 m
Cup & Cake
aprox.
377 m
La Baraca
aprox.
520 m
Sky Bar
aprox.
1157 m
Alan Dala
aprox.
1267 m
ACAB Pub
aprox.
1294 m
Lokal
aprox.
1297 m
Zappa Rock & More
aprox.
1463 m
Happy Pub
aprox.
1486 m
E... Varza
aprox.
1576 m
MIM Bistro
aprox.
1655 m
Frame
aprox.
1740 m
Piua Book Bar
aprox.
1749 m
Trei Betivi
aprox.
1889 m
Ganesha Cafe
aprox.
418 m
Fitto Cafe
aprox.
759 m
Randez Vous
aprox.
1150 m
Smart Change
aprox.
1154 m
Shiva
aprox.
1222 m
High Heels
aprox.
1256 m
Reader's Cafe
aprox.
1262 m
The Eatery
aprox.
1275 m
Nuba Cafe
aprox.
1292 m
Ambiance Caffe
aprox.
1300 m
Tucano Coffee - Dorobanti
aprox.
1458 m
Tucano Coffee
aprox.
1471 m
Mon Amour
aprox.
1544 m
Music Rooms Cafe
aprox.
1573 m
Slot Cafe
aprox.
1595 m
CEC BANK
aprox.
161 m
Banca Romaneasca
aprox.
344 m
Raiffeisen Bank
aprox.
383 m
ING Kaufland Barbu Vacarescu
aprox.
547 m
Centrul de perfectionare BRD
aprox.
626 m
Banca Comerciala Carpatica
aprox.
653 m
ProCredit Bank
aprox.
666 m
BRD Stefan Cel Mare
aprox.
693 m
Banca Transilvania - Ag. Lacul Tei
aprox.
741 m
Raiffeisen Bank
aprox.
749 m
Raiffeisen Bank
aprox.
778 m
Garanti Bank
aprox.
789 m
Raiffeisen Bank - Agentia Lizeanu
aprox.
818 m
Banca Romaneasca
aprox.
818 m
Raiffaisen Bank
aprox.
823 m
Dacă te vei muta în zona Tei, vei avea la dispoziție mai multe mijloace de transport în comun. Printre acestea se numără tramvaiele 16 și 36. Primul oferă o conexiune rapidă cu zona Pipera sau te poate ajuta să ajungi la doi pași de Piața Unirii. Cel de-al doilea merge până în cartierul Titan. Cu autobuzul 182 poți să te deplasezi până în zona Gării de Nord, iar cu autobuzul 282 până la Gara Basarab. Cele mai apropiate stații de metrou pe care le vei alea la dispoziție, dacă te vei muta în Tei, sunt Ștefan cel Mare și Obor, ambele aflate pe traseul magistralei 1 Dristor - Pantelimon. Este important de menționat și faptul că în zona Fabrica de Glucoză - Petricani de la marginea cartierului există autostrada urbană. Practic, ai o legătură directă cu A3 București-Ploiești. Consultă harta pentru a afla unde sunt poziționate stațiile mijloacelor de transport în comun.
În zona Tei găsești mai multe grădinițe și școli. Printre unitățile de învățământ din cartier se numără Școala Gimnazială nr. 28 din zona Parcului Circului și Școala Gimnazială nr. 31 de pe Bulevardul Lacul Tei. Tot aici se află și Liceul Teoretic Traian și Universitatea Tehnică de Construcții din București, una dintre cele mai importante instituții de învățământ superior din Capitală. Consultă harta pentru mai multe opțiuni.
Dacă te muți în cartierul Tei, cel mai ușor îți poi face cumpărăturile în zona Obor. Ai acolo atât magazinul Bucur Obor, cât și halele și piața Obor. Imediat lângă acestea se află mall-ul Veranda care include un hipermarket Carrefour. La doi pași găsești și magazinul Kaufland Colentina. O altă zonă comercială, care include un magazin Kaufland cu o mică galerie comercială și un Carrefour Market, este localizată pe Strada Barbu Văcărescu. De aici ajungi foarte repede și la mall-ul Promenada. Centrul comercial Pipera Plaza poate fi, de asemenea, o opțiune bună pentru tine, mai ales dacă lucrezi în zona Pipera. Cuprinde mai mulți retaileri, câteva restaurante și cafenele. Consultă harta și vezi unde poți să-ți faci cumpărăturile, dacă te muți în cartierul Tei.
Îți recomandăm să te interesezi dacă poți închiria un loc de parcare în apropierea locuinței dorite. Trebuie să apelezi în acest sens la Biroul Parcări din cadrul ADP Sector 2. Este important, totodată, să știi că dacă te deplasezi cu mașina vei întâlni aglomerație în trafic în zona Străzii Doamna Ghica, în special la intersecția dintre aceasta, Bulevardul Lacul Tei și Strada Petricani. Intersecția se află pe ruta directă spre polul de business Pipera. De menționat este și faptul că în zona Fabrica de Glucoză - Petricani de la marginea cartierului există autostrada urbană. Practic, ai o legătură directă cu A3 București - Ploiești. Trafic îngreunat apare și la intersecția dintre Șoseaua Ștefan cel Mare și Strada Lizeanu, iar în zona intersecției Doamna Ghica există un proiect extensiv în lucru pentru realizarea unui pasaj rutier suprateran.
Dacă te vei muta în zona Tei, vei avea în apropierea casei tale mai multe parcuri și locuri de joacă. Parcul Lacul Tei cuprinde numeroase atracții pentru cei mici și o roată mare de unde te poți bucura de priveliști frumoase ale orașului. În zona Parcului Studențesc Tei vei găsi săli de fitness, cluburi de lux, terenuri sportive și Stadionul Studențesc, iar în partea de sud a cartierului Parcul Circului și Circul Metropolitan București (fostul Globus). În vecinătatea lor se află Stadionul Dinamo. Parcul Plumbuita poate fi o altă opțiune pentru a petrece o după-amiază liniștită în aer liber. Cel mai apropiat mall la care vei avea acces este Veranda. Aici vei putea merge la un cinema VR sau îți vei putea duce copilul la un loc de joacă indoor. Ajungi destul de rapid și la mall-ul Promenada. Dacă nu te deranjează să mergi câteva minute cu mașina, atunci trebuie să știi că ajungi destul de rapid la mall-ul Promenda, dar și în Piața Victoriei unde găsești mai multe muzee. Îți poți lăsa mașina în parcarea publică aflată aici și poți face o mică plimbare pe Calea Victoriei. Găsești destul de multe obiective de vizitat în zonă și ai și unde să faci un popas la o cafea. Pentru o experiență inedită îți recomandăm o scurtă plimbare cu mașina până în cartierul Primăverii. Aici vei putea să vizitezi Palatul Primăverii, fosta reședință grandioasă a lui Nicolae Ceaușescu. Atenție, însă, ai nevoie de rezervare în avans. Află ce alte puncte de interes găsești în zona Tei și în împrejurimi de pe hartă.
Printre cele mai apropiate unități medicale la care vei putea apela, dacă te vei muta în zona Tei, se numără Spitalul Clinic Colentina și Institutul Național de Boli Infecțioase Prof. Dr. Matei Balș, ambele situate în vecinătatea Parcului Circului. La intersecția dintre Strada Barbu Văcărescu și Șoseaua Ștefan cel Mare vei găsi, totodată, Spitalul Sf. Ștefan. În imediata apropiere a acestuia se află și Spitalul Clinic de Urgență București și Spitalul Euroclinic din rețeaua privată Regina Maria. Consultă harta pentru a vedea unde sunt localizate clinicile private din cartier și din împrejurimi.
Găsești o serie de restaurante și baruri în zona Parcului Verdi și pe malul Lacului Tei. De altfel, există și mai multe săli de evenimente cu ieșire la lac sau situate în imediata sa vecinătate. Din zona Tei ajungi foarte rapid și la numeroasele terase, cafenele și restaurante aflate pe Calea Floreasca sau în Dorobanți. Restaurante de tip fast food găsești în zona Obor din apropiere. Ai câteva opțiuni pentru o gustare și în incinta Veranda Mall. Iar dacă îți dorești mai multă diversitate, poți oricând să mergi cu mașina până la Promenada Mall. Ajungi în doar câteva minute. Consultă harta. Află care este cel mai apropiat local de viitoarea ta locuință din zona Tei.
Găsești mai multe sucursale bancare în zona intersecției Doamna Ghica, lângă intrarea în Parcul Plumbuita. Altele pe Bulevardul Lacul Tei care traversează cartierul. Consultă harta și află unde găsești cel mai apropiat bancomat.
Înainte să pleci...
Ești sigur că ai văzut și aceste proprietăți?
549.990 €
București, Parcul Circului
3 camere
70 mp
Etaj 7 / 10
595.000 € + TVA
București, Petricani
4 camere
142 mp
Etaj 1 / 4
570.000 €
București, Barbu Văcărescu
4 camere
121 mp
Etaj 6 / 8
Creează alertă
Salvează căutarea ca să primești pe email ultimele anunțuri publicate
Apartamente cu 4+ camere de vânzare în zona Parcul Circului, Sector 2
Cere detalii prin email
*
*
*
*
Detaliile tale de contact vor fi partajate cu Trust Group Estate
Asigurare de viață/lună Costul este variabil. În funcție de banca aleasă, procentul variază între 0.0259% și 0.035% din soldul creditului.
Costuri cu achiziția26.016 RON
Comision agenție Întreabă agenţia
Onorariu notarial18.122 RON
Taxă întabulare OCPI4.360 RON
Autentificare contract credit3.534 RON
Preț de achiziție2.906.487 RON
Preț locuință2.906.487 RON
TVA 0%Inclus în prețul cerut
Preț de achiziție2.906.487 RON
Preț locuință2.906.487 RON
TVA 0%
Inclus în prețul cerut
Avans minim2.299.694 RON
Credit pe 30 de ani606.793 RON
Cost achitat în prima lună
Taxa evaluare imobil(până la)
575 RON
Rata lunară (variabilă)4.264 RON
Depozit colateral12.792 RON
Comision de garantare FNGCIMM242 RON
Asigurare anuală imobil2.906 RON
Poliță PAD130 RON
Tarif arhivă electronică102 RON
Costuri adiționale3.046 RON + taxe notariale
Asigurare viață și complexă (opțională)Costul este variabil. În funcție de banca aleasă, procentul variază între 0.0259% și 0.035% din soldul creditului
Onorariu notarialconform tarif notarial
Taxă întabulare OCPI3.046 RON
i
Toate valorile de mai sus sunt estimative și nu reprezintă în mod obligatoriu costurile exacte pe care le veți primi de la companiile/instituțiile prin care veți încheia tranzacția.