APARTAMENT LUMINOS, 2 CAMERE CU GRADINA MARE, QUARTIER AZUGA - ANSAMBLU PREMIUM

151.500 € + TVA

Tei, București

Nr. cam.:
2
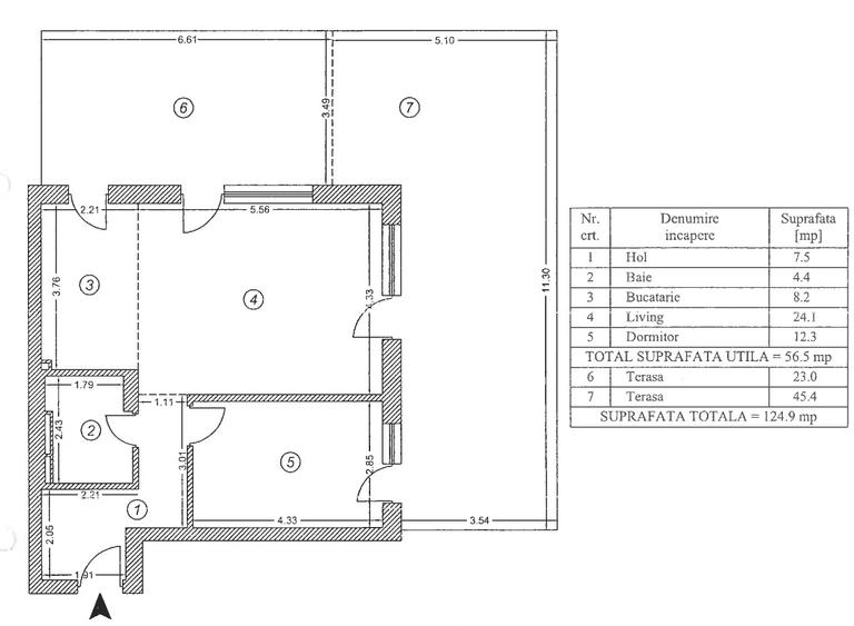
Sup. utilă:
56,5 mp
Etaj:
Parter / 6
An constr.:
2024 (Finalizată)
  • • Comision 0%
  • • Locație aproximativă

Descriere apartament

- apartament cu terasa si gradina - 56.6 mp utili + terasa de 23 mp si gradina de 45.4 mp - orientare nord si est, cu spatii vitrate foarte mari - incalzire prin pardoseala si sistem de recirculare a aerului cu recuperare de caldura - gazon cu sistem de irigatie si gard viu plantat de-a lungul gradinii Quartier Azuga a fost gândit să reprezinte un mod de viață, nu doar locul în care dormi, mănânci sau lucrezi. Este căminul ce-ți transmite emoții pozitive, mulțumire și o bucurie intensă încă de la început, din momentul în care te vei muta. Fiecare detaliu a fost bine analizat și luat în considerare în dezvoltarea conceptului Quartier Azuga, pentru a asigura experiența optimă comunității viitoare. Proiectul este creat ca un mini-cartier, consolidat cu știință, rafinament și multă pasiune. Quartier Azuga este unul dintre cele mai de succes proiecte rezidentiale din industria imobiliara din Romania, reusind sa obtina diverse premii in acest sens: * Proiectul Rezidential al Anului 2023 la Gala Premiilor Real Estate 2023 * Dezvoltare Rezidentiala Sustenabila la Gala Romanian Property Awards 2023 Pe website-ul nostru, , regasiti toate tipurile de apartamente impreuna cu planurile si de asemenea brosura proiectului, unde puteti sa gasiti mai multe informatii despre toate beneficiile acestuia. Accesati canalul nostru de YouTube (@quartierazuga) pentru a vizualiza clipul de prezentare pentru apartamentul showroom si ultimul stadiu al lucrarilor de constructie. De asemenea ne gasiti pe canalele de social media Instagram, Facebook si TikTok. Avem biroul de vanzari in cadrul santierului si de asemenea apartamentul showroom de prezentare, asa incat va asteptam la o intalnire sa va putem prezenta mai multe despre proiect. Intrati pe si cereti o oferta!
Citește mai mult Citește mai puțin
Confort lux Decomandat Nemobilat Grădină Curte comună Aer condiționat Alte metode electrice Centrală imobil Încălzire prin pardoseală Bine întreținut (Bună)

Detalii apartament

ID anunț: XDTS00004 Copiat! 1106010 Copiat!
Actualizat în: 01 Octombrie 2025
Suprafață utilă totală: 124.9 mp
Suprafață construită: 135 mp
Nr. bucătării: 1
Nr. băi: 1
Structură rezistență: Beton
Tip imobil: Bloc de apartamente
Regim înălțime: S+P+6E

Utilități

Destinație
Rezidențial
Pereți
Faianță Vopsea lavabilă
Podele
Gresie Parchet
Rulouri/Obloane
PVC
Ușă intrare
Metal
Uși interior
Celulare Lemn
Izolații termice
Exterior
Ferestre cu geam termopan
PVC
Contorizare
Contor căldură Apometre
Alte spații utile
Terasă
Facilități imobil
Spații agrement Lift Acoperiș Videointerfon
Utilități
Curent Apă Canalizare CATV
Internet
Fibră optică Wireless
Servicii imobil
Administrare Supraveghere video
Amenajare străzi
Asfaltate Iluminat stradal Mijloace de transport în comun
Comision
0%

Certificat energetic:

Clasa energetică: A

Vecinătăți:

Parcul Plumbuita, Parcul Tei
Soseaua Colentina
Str. Doamna Ghica
Kaufland, LIDL, Mega Image
Veranda Mall

Alte detalii:

* Pompe de caldura
* Panouri fotovoltaice
* Clubhouse
* Promenada si iesire la lac
* Finisaje premium
* Loc de joaca pentru copii
* Sistem de recirculare a aerului

Puncte de interes

Mijloace transport
bus-station
Statia Heliade intre Vii
Stații autobuz aprox. 454 m
trolleybus-station
Statia Baicului, linia 69,85
Stații troleibuz aprox. 680 m
train-station
Gara Obor Bucuresti-EST
Stații tren aprox. 704 m
tram-station
Baicului
Stații tramvai aprox. 996 m
Școală
school
Curtea scolii 145
Școli aprox. 336 m
school
Scoala Generala Nr. 145
Școli aprox. 389 m
kindergarten
Gradinita numarul 280
Gradinițe aprox. 1112 m
university
Universitatea Lumina
Universități aprox. 1708 m
Recreere
park
Parculet Baicului
Parcuri aprox. 136 m
supermarket
Complex Comercial
Supermarket aprox. 143 m
sports-ground
Teren de Baschet
Terenuri sport aprox. 176 m
public-square
Intersectia Socului
Piețe publice aprox. 1323 m

Detalii despre preț și costuri

Prețul pe piață

Preț cerut: 151.500 €

Preț min. zonă
Preț max. zonă

80% dintre proprietățile similare ca zonă și nr. camere au prețul cerut mai mic. mai multe...

Bine de știut: prețul unei proprietăți este influențat și de alte caracteristici, cum ar fi: vechime, localizare, vecinătăți, suprafață, compartimentare, amenajări, dotări, etc. mai puțin...

Insight premium disponibil după login

Costuri cu achiziția

Fără credit
Credit ipotecar
Noua casă

i

Costuri adiționale mai puțin știute la achiziție: taxe notariale, comisioane etc.

Insight premium disponibil după login

Proprietăți recomandate

Detalii de contact

Abonează-te la newsletter să fii primul care primește cele mai noi recomandări de proprietăți și sfaturi de la experți.

CONTACT

Creează alertă

Salvează căutarea ca să primești pe email ultimele anunțuri publicate

Apartamente noi cu 2 camere de vânzare în zona Tei, Sector 2