10

Titan, Ozana, 1 Decembrie, bloc 2020, cu parcare subterana inclusa

129.000 €

1 Decembrie 1918, București

Nr. cam.:
2
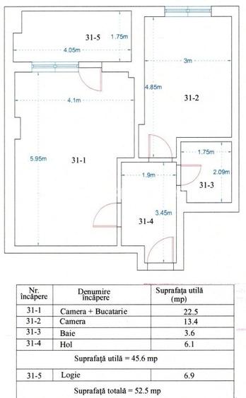
Sup. utilă:
53 mp
Etaj:
3 / 6
An constr.:
2020 (Finalizată)
  • • Exclusivitate
  • • Locație exactă

Descriere apartament

Apartament deosebit de curat si intretinut, amenajat si mobilat cu designer. Pentru cresterea confortului si eficientizarea spatiului arhitectii au apelat la o serie de solutii ingenioase. Tot ce s-a folosit in apartament este din zona premium si medium plus. Se vinde mobilat si utilat. Sistem inteligent de gestionare a iluminatului Centrala proprie de apartament. Bloc foarte bine constuit si izolat, avand clasa energetica A, prevazut cu LIFT. Parcarea de la demisolul imobilului este securizata. Locul de parcare are o suprafata de 15.8 mp. Blocul se afla intr-o zona linistita, aerisita, nefiind inconjurat de cladiri mai inalte
Citește mai mult Citește mai puțin
Confort 1 Semidecomandat 1 Balcon / Terasă / Logie Aer condiționat Centrală proprie 1 Garaj Renovat

Detalii apartament

ID anunț: X62G0007L Copiat! 274976555 Copiat!
Actualizat în: 11 Mai 2026
Suprafață utilă totală: 53 mp
Suprafață construită: 67 mp
Nr. bucătării: 1
Nr. băi: 1
Structură rezistență: Beton
Tip imobil: Bloc de apartamente
Tip tranzacție: De vânzare prin agent
Regim înălțime: D+P+6E
Modalitate de plată: Cash sau Credit

Utilități

Destinație
Rezidențial
Pereți
Faianță Vopsea lavabilă
Podele
Gresie Parchet
Ușă intrare
Metal
Uși interior
Lemn
Izolații termice
Exterior
Ferestre cu geam termopan
PVC
Bucătărie
Mobilată Utilată
Internet
Wireless
Amenajare străzi
Asfaltate Iluminat stradal
Comision
2.5%

Certificat energetic:

Clasa energetică: A

Puncte de interes

Mijloace transport
tram-station
statie tramvai -23, 27 si 40 - I.O.R
Stații tramvai aprox. 464 m
tram-station
I.O.R. 2
Stații tramvai aprox. 468 m
bus-station
statie tramvai STIROM :23- 27 - 40
Stații autobuz aprox. 545 m
metro-station
Metrorex.Stația Nicolae Teclu (M3)(2008)
Stații metrou aprox. 903 m
Școală
kindergarten
Gradinita nr. 68
Gradinițe aprox. 326 m
kindergarten
Gradinita Nr. 160 - "soarelui"
Gradinițe aprox. 438 m
school
Scoala Nr. 149
Școli aprox. 490 m
school
Școala Nr. 82
Școli aprox. 686 m
Recreere
sports-ground
Teren de fotbal
Terenuri sport aprox. 358 m
supermarket
Penny
Supermarket aprox. 467 m
park
Parculet LPG (en)
Parcuri aprox. 525 m
hypermarket
Decathlon
Hipermarket aprox. 1232 m

Istoricul prețurilor

Acces la informații premium după autentificare
Login Gratuit

Detalii despre preț și costuri

Prețul pe piață

Preț cerut: 129.000 €

Preț min. zonă
Preț max. zonă

91% dintre proprietățile similare ca zonă și nr. camere au prețul cerut mai mic. mai multe...

Bine de știut: prețul unei proprietăți este influențat și de alte caracteristici, cum ar fi: vechime, localizare, vecinătăți, suprafață, compartimentare, amenajări, dotări, etc. mai puțin...

Acces la informații premium după autentificare
Login Gratuit

Costuri cu achiziția

Fără credit
Credit ipotecar
Noua casă

i

Costuri adiționale mai puțin știute la achiziție: taxe notariale, comisioane etc.

Acces la informații premium după autentificare
Login Gratuit

Proprietăți similare

Apartament cu 2 camere decomandat, mobilat în 1 Decembrie 1918
120.000 €
București, 1 Decembrie 1918
2 camere
51,54 mp
Parter / 4
Apartament cu 2 camere decomandat în 1 Decembrie 1918
131.250 €
București, 1 Decembrie 1918
2 camere
65 mp
Etaj 1 / 5
Apartament cu 2 camere decomandat, mobilat în 1 Decembrie 1918
132.000 €
București, 1 Decembrie 1918
2 camere
56 mp
Parter

Detalii de contact

ACCORD REAL ESTATE

Victor Mihalache administrator

ACCORD REAL ESTATE
PRO

Abonează-te la newsletter să fii primul care primește cele mai noi recomandări de proprietăți și sfaturi de la experți.

CONTACT

Creează alertă

Salvează căutarea ca să primești pe email ultimele anunțuri publicate

Apartamente cu 2 camere de vânzare în zona 1 Decembrie 1918, Sector 3