1

Apartament /casa 150m utili -an1990 Corneliu Coposu-Calarasilor Unirii

272.960 €

Calea Călărașilor, București

Nr. cam.:
7
Sup. utilă:
150 mp
Etaj:
Parter / 1
An constr.:
1990 (Finalizată)
  • • Locație aproximativă

Descriere apartament

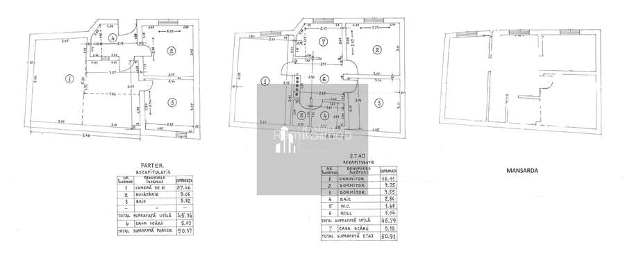
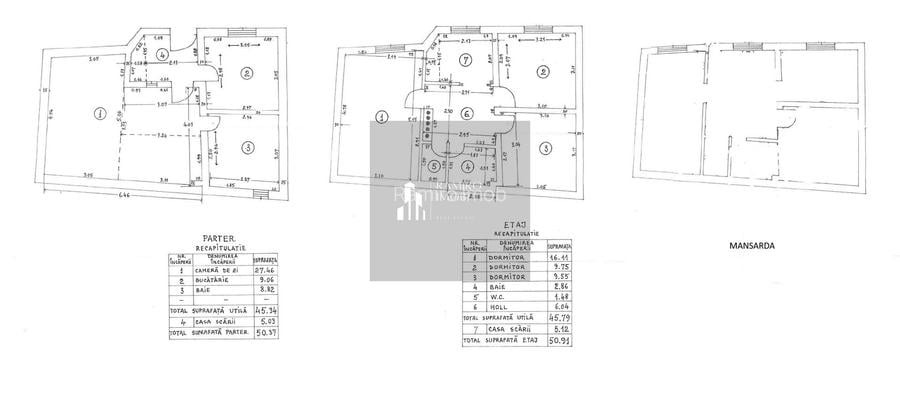
Vă propunem spre vanzare o parte a unei case cu intrare separata, o curte mica in fata usii pe unde se face accesul in casa. Casa este situata ultracentral pe Bulevardul Corneliu Coposu - Calea Calarasilor– zona Mântuleasa (cartierul evreiesc). Detalii proprietate : • Suprafață utilă: 150 mp • Suprafață teren: 160 mp • Regim de înălțime: Parter + Etaj 1 + Mansardă • An construcție: 1990 • Renovare completă: 2023 • Centrala proprie Compartimentare: • Parter: bucatarie (20mp), living (18mp), baie cu cabina de dus • Etaj 1: 1 dormitor de 25mp, 2 dormitoare mai mici, baie cu cada mare si cabina dubla de dus • Mansardă: 3 camere + baie cu cabina de dus O oferta excelenta, o casa intr-o zona deosebita la un pret bun, potrivita si pentru utilizare comerciala - sediu birou, servicii, inchiriere in regim hotelier. Pentru mai multe detalii - Cornel - - Se acceptă si achiziția prin credit bancar. Agentia Imobiliara – Ramiro Imob Comision Standard Oferim suport în relația cu banca, cu acces la cele mai bune oferte de finanțare, precum și asistență in relatia cu notariatul.
Citește mai mult Citește mai puțin
Confort 1 Decomandat Parțial mobilat 1 Balcon / Terasă / Logie Curte Aer condiționat Calorifere Centrală proprie

Detalii apartament

ID anunț: XCRN104O8 Copiat! 275441810 Copiat!
Actualizat în: 16 Aprilie 2026
Suprafață construită: 170 mp
Nr. bucătării: 1
Nr. băi: 3
Structură rezistență: Beton
Tip imobil: Casă/Vilă
Regim înălțime: P+1E+M

Utilități

Destinație
Birouri Rezidențial Comercial
Pereți
Faianță Vopsea lavabilă
Podele
Gresie Parchet
Ușă intrare
Metal
Uși interior
Lemn
Izolații termice
Exterior
Ferestre cu geam termopan
Aluminiu
Contorizare
Apometre Contor gaz
Bucătărie
Parțial mobilată Parțial utilată
Facilități imobil
Interfon
Utilități
Curent Apă Canalizare CATV Gaze Telefon
Internet
Cablu
Amenajare străzi
Iluminat stradal Mijloace de transport în comun Asfaltate
Comision
standard

Vecinătăți:

Metrou Piata Unirii Universitate Calea Calarasilor Mantuleasa Bulevardul Corneliu Coposu Piata Sfanta Vineri Armeneasca Matei Basarab Mantuleasa Calea Mosilor Cartierul Evreiesc Lipscani

Disponibilitate proprietate:

Imediat

Puncte de interes

Mijloace transport
tram-station
Alexandru Sihleanu
Stații tramvai aprox. 74 m
bus-station
Bd. Carol I
Stații autobuz aprox. 454 m
metro-station
Universitate (M2)
Stații metrou aprox. 931 m
trolleybus-station
Statia Foisorul de Foc linii : 79,86
Stații troleibuz aprox. 940 m
Școală
school
Grupul Scolar Industrial Unirea
Școli aprox. 226 m
school
Grupul Scolar Industrial Unirea (en)
Școli aprox. 228 m
university
Facultatea de Stiinte Politice
Universități aprox. 453 m
kindergarten
Gradinita Magica
Gradinițe aprox. 530 m
Recreere
park
Parcul Sf. Stefan
Parcuri aprox. 194 m
sports-ground
Teren sportiv
Terenuri sport aprox. 397 m
supermarket
Mega Image Paleologu
Supermarket aprox. 398 m
mall
Bucharest, Calea Vitan nr. 8, Bl V51, near VITAN Mall
Mall aprox. 1498 m

Detalii despre preț și costuri

Costuri cu achiziția

Fără credit
Credit ipotecar
Noua casă

i

Costuri adiționale mai puțin știute la achiziție: taxe notariale, comisioane etc.

Insight premium disponibil după login

Proprietăți similare

Apartament cu 3 camere decomandat, mobilat în Calea Călărașilor
259.999 €
București, Calea Călărașilor
3 camere
85 mp
Etaj 7
Apartament cu 2 camere decomandat în Calea Călărașilor
265.000 €
București, Calea Călărașilor
2 camere
65 mp
Etaj 1 / 5
Apartament cu 3 camere în Calea Călărașilor
300.000 €
București, Calea Călărașilor
3 camere
94 mp
Etaj 8 / 8

Detalii de contact

Ramiro Imob

Cornel Ion Agent Imobiliar

4.00(3 review-uri)

Ramiro Imob
PRO

Abonează-te la newsletter să fii primul care primește cele mai noi recomandări de proprietăți și sfaturi de la experți.

CONTACT

Creează alertă

Salvează căutarea ca să primești pe email ultimele anunțuri publicate

Apartamente cu 4+ camere de vânzare în zona Calea Călărașilor, Sector 3