5

De Vanzare Apartament lux 4 camere, Decebal, ULTRACENTRAL, sector 3

345.000 €

Decebal, București

Nr. cam.:
4
Sup. utilă:
105 mp
Etaj:
2 / 8
An constr.:
1997 (Finalizată)
  • • Locație aproximativă

Descriere apartament

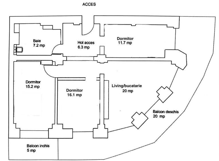
AFY Imobiliare vă propune spre vânzare un apartament de lux cu 4 camere și terasă, situat pe Bulevardul Decebal, una dintre cele mai exclusiviste zone din București. Localizat la etajul 2/8 al unui imobil construit în 1997, apartamentul are o suprafață utilă de 105 m², cuprinzând: 80 m² spațiu interior, o terasă generoasă de 20 m² și un balcon închis de 5 m². Detalii apartament: Suprafață utilă: 105 m² Compartimentare: Decomandat Etaj: 2 / 8 An construcție: 1997 3 dormitoare, living cu bucătărie open-space Baie mare complet utilată Finisaje și dotări premium: Apartament complet mobilat și utilat – gata de locuit Bucătărie pe comandă, cu electrocasnice Bosch (aragaz, hotă, frigider, cuptor, filtru de apă Hyundai cu apă rece/fierbinte) 2 televizoare Smart TV de mari dimensiuni Dressing spațios și spații de depozitare optim organizate Zonă de birou dedicată – ideal pentru work from home Geamuri tripan Salamander (7 camere), de la pardoseală până în tavan Mobilier la comandă, materiale Egger, feronerie Blum, blat de granit Parchet Egger, plintă NMC vopsită Baie spațioasă cu cadă, wc și bideu Villeroy & Boch, baterii Grohe, boiler Velis Ariston Instalație electrică modernă, cablată prin tuburi, cu prize și întrerupătoare Gewiss Confort & design: Spații vitrate mari → apartament extrem de luminos Terasă generoasă de 20 m² pentru relaxare Balcon închis de 5 m², util pentru depozitare sau zonă suplimentară Materiale și finisaje atent selecționate, de calitate superioară Localizare: Bulevardul Decebal – una dintre cele mai căutate zone din București Doar 3 minute de mers pe jos până la metrou Muncii Vizavi de restaurantul Duman Acces rapid către Piața Alba Iulia, Piața Unirii și Calea Călărași Acte la zi – proprietate liberă de sarcini Comisionul agenției este de 3%. Oferim consultanță imobiliară până la finalizarea tranzacției. Agenția noastră vă poate oferi consultanță bancară gratuită pentru obținerea unui credit ipotecar sau alte informații bancare. Pentru mai multe detalii și vizionări, nu ezitați să ne contactați!
Citește mai mult Citește mai puțin
Confort lux Lux 1 Balcon / Terasă / Logie Aer condiționat Calorifere Termoficare

Detalii apartament

ID anunț: XE9U103AK Copiat! 275419445 Copiat!
Actualizat în: 19 Mai 2026
Suprafață construită: 120 mp
Nr. bucătării: 1
Nr. băi: 1
Structură rezistență: Beton
Tip imobil: Bloc de apartamente
Tip tranzacție: De vânzare prin agent
Regim înălțime: P+8E
Nr. terase: 1
Modalitate de plată: Cash sau Credit

Utilități

Pereți
Faianță Vopsea lavabilă
Podele
Gresie Parchet
Ușă intrare
Lemn
Uși interior
Lemn
Izolații termice
Exterior Interior
Ferestre cu geam termopan
PVC
Bucătărie
Mobilată Parțial utilată
Electrocasnice
Aragaz Frigider Hotă Mașină de spălat Mașină spălat vase TV
Diverse
Sistem de alarmă
Alte spații utile
Terasă
Facilități imobil
Acoperiș Interfon Lift
Utilități
Curent Apă Canalizare CATV Gaze Telefon
Internet
Cablu
Amenajare străzi
Iluminat stradal Mijloace de transport în comun Asfaltate
Comision
standard

Disponibilitate proprietate:

Imediat

Puncte de interes

Mijloace transport
tram-station
Piata Hurmuzachi
Stații tramvai aprox. 24 m
metro-station
Metrorex. Stația Piața Muncii (M1)(1989)(Fosta statie de tramvai subterana)
Stații metrou aprox. 55 m
bus-station
Piata Muncii
Stații autobuz aprox. 59 m
trolleybus-station
Statia Piata Iancului, linia 55
Stații troleibuz aprox. 1149 m
Școală
kindergarten
Gradinita catolica "Sfanta Cruce"
Gradinițe aprox. 355 m
school
Scoala nr. 70
Școli aprox. 375 m
kindergarten
Gradinita ARLECHINO
Gradinițe aprox. 411 m
university
Universitatea Nationala de Arta Teatrala si Cinematografica
Universități aprox. 964 m
Recreere
public-square
Piata Hurmuzachi / Piata Muncii (fosta Bariera Vergului)
Piețe publice aprox. 66 m
park
Spatiu verde
Parcuri aprox. 103 m
supermarket
Mega Image Piata Muncii
Supermarket aprox. 153 m
mall
Bucharest, Calea Vitan nr. 8, Bl V51, near VITAN Mall
Mall aprox. 1687 m

Istoricul prețurilor

Acces la informații premium după autentificare
Login Gratuit

Detalii despre preț și costuri

Prețul pe piață

Preț cerut: 345.000 €

Preț min. zonă
Preț max. zonă

89% dintre proprietățile similare ca zonă și nr. camere au prețul cerut mai mic. mai multe...

Bine de știut: prețul unei proprietăți este influențat și de alte caracteristici, cum ar fi: vechime, localizare, vecinătăți, suprafață, compartimentare, amenajări, dotări, etc. mai puțin...

Acces la informații premium după autentificare
Login Gratuit

Costuri cu achiziția

Fără credit
Credit ipotecar
Noua casă

i

Costuri adiționale mai puțin știute la achiziție: taxe notariale, comisioane etc.

Acces la informații premium după autentificare
Login Gratuit

Proprietăți similare

Apartament cu 3 camere decomandat, mobilat în Decebal
359.900 €
București, Decebal
3 camere
122 mp
Etaj 2 / 2
Apartament cu 4 camere decomandat în Decebal
349.000 €
București, Decebal
4 camere
123 mp
Etaj 6
Apartament cu 3 camere, mobilat în Decebal
355.000 €
București, Decebal
3 camere
74,8 mp
Etaj 2

Detalii de contact

AFY IMOBILIARE

Teodor Ursachi Agent

AFY IMOBILIARE
PRO

Abonează-te la newsletter să fii primul care primește cele mai noi recomandări de proprietăți și sfaturi de la experți.

CONTACT

Creează alertă

Salvează căutarea ca să primești pe email ultimele anunțuri publicate

Apartamente cu 4+ camere de vânzare în zona Decebal, Sector 3