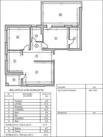
Vă propunem spre vânzare un apartament spațios cu 3 camere, decomandat, având o suprafață utilă totală de 118,3 mp, din care 31,9 mp sunt repartizați pe cele 3 terase generoase. Apartamentul este situat la etajul 3 al unui imobil nou, cu regim de înălțime P+3, echipat cu lift modern.Bloc boutique in centrul orasului, care in momentul de fata este unicat pe piata in inima vibrantă a Bucureștiului, acest complex rezidențial se distinge prin poziționarea sa strategică și oferă o varietate de apartamente cu compartimentări inteligente și finisaje de lux, redefinind standardul vieții urbane moderne.
Dezvoltat direct de către constructor, imobilul P+3E impresionează prin atenția sa la detalii și designul inovator. Locurile de parcare sunt o parte acoperite si o parte neacoperite, toate beneficiaza de incarcare pentru masini electrice.
Imobilul este deja finalizat și face parte dintr-un ansamblu rezidențial Boutique, cu doar 14 apartamente, oferind un grad ridicat de intimitate și confort. Este amplasat la doar 5 minute de mers pe jos de stația de metrou Unirii, cu acces rapid la transportul public, instituții educaționale, spitale, și centrul istoric.
Construcția este solidă, cu structură din cadre de beton armat și compartimentări din cărămidă Porotherm de 30 cm pentru pereții exteriori și 15 cm pentru pereții interiori. Este necesar un avans minim de 30%.
Pentru mai multe detalii si vizionari va rog sa ma contactati
VAUNT ID: 107077
Proprietate cu prețul cerut în afara intervalului mai multe...
Posibile explicații pentru faptul că prețul proprietății este peste cel maxim: imobil nou cu suprafață mare, are dotări și finisaje de lux.
Bine de știut: prețul unei proprietăți este influențat și de alte caracteristici, cum ar fi: vechime, localizare, vecinătăți, suprafață, compartimentare, amenajări, dotări, etc.
Insight premium disponibil după login
Costuri cu achiziția
Fără credit
€
Credit ipotecar
€
Noua casă
€
i
Costuri adiționale mai puțin știute la achiziție: taxe notariale, comisioane etc.
Insight premium disponibil după login
Insight premium disponibil după login
Calculul ipotecarului
Proprietăți similare
399.000 € + TVA
București, P-ța Unirii
3 camere
117 mp
Etaj 3 / 3
380.000 €
București, P-ța Unirii
5 camere
108 mp
Etaj 5 / 10
378.730 €
București, P-ța Unirii
3 camere
64,3 mp
Parter
Detalii de contact
Acestă agenție te poate ajuta să obții o soluție de finanțare potrivită nevoilor tale. Solicită-i informații suplimentare.
Sediul central - Timișoara
Bulevardul Victor Babeș nr. 2, 300230, Timișoara, România
Tel: +40.374.40.44.98 / Fax: +40.256.401.179
Email: suport@imobiliare.ro
Luni - Vineri 08:00 - 20:00
Punct de lucru - București: Iride Business Park, Bld. Dimitrie
Pompeiu 9-9A, Clădirea B2B,
020335, Sector 2, București, România
CONTACT
Sediul central - Timișoara
Bulevardul Victor Babeș nr. 2, 300230, Timișoara, România
Tel: +40.374.40.44.98 / Fax: +40.256.401.179
Email: suport@imobiliare.ro
Luni - Vineri 08:00 - 20:00
Punct de lucru - București: Iride Business Park, Bld. Dimitrie
Pompeiu 9-9A, Clădirea B2B,
020335, Sector 2, București, România
Scoala cu clasele I-VIII, Nr. 73 Barbu Stefanescu Delavrancea
aprox.
772 m
Gradinita Barba Cot
aprox.
212 m
Cresa Micii Poznasi
aprox.
292 m
Gradinita de Copii nr.30 "Copiii soarelui
aprox.
612 m
Gradinita Prikindel
aprox.
650 m
Gradinita "Scufita Rosie"
aprox.
729 m
Gradinita nr.192, "Pisicile Aristocrate"
aprox.
737 m
Gradinita nr. 192 (Pisicile aristocrate)
aprox.
744 m
Gradinita nr.224, "Vestitorii Primaverii"
aprox.
1057 m
Gradinita nr. 224
aprox.
1061 m
Gradinita cu program prelungit Copiii Soarelui
aprox.
1133 m
Gradinita (progr. prelungit) Aleea Borcea - Str. Ruginoasa
aprox.
1152 m
Gradinita Plusica
aprox.
1426 m
Gradinita nr.4 "Lizuca"
aprox.
1524 m
Gradinita Magica
aprox.
1667 m
Gradinita de copii nr.161
aprox.
1700 m
Academia de Studii Economice
aprox.
295 m
Academia de Studii Economice: Facultatea de Management - Administratie Publica
aprox.
303 m
Facultatea de Teologie Ortodoxa
aprox.
355 m
Institutul Bancar Român
aprox.
356 m
Facultatea de Chimie
aprox.
1251 m
Facultatea de Istorie
aprox.
1262 m
Facultatea de Stiinte
aprox.
1267 m
Facultatea de litere (en)
aprox.
1290 m
Universitatea Nicolae Titulescu
aprox.
1293 m
Facultatea de Limbi si Literaturi Straine
aprox.
1314 m
Facultatea de Matematica-Informatica
aprox.
1314 m
Universitatea Crestina "Dimitrie Cantemir"
aprox.
1329 m
Universitatea "Nicolae Titulescu" - Bucuresti
aprox.
1335 m
UAUIM -Universitatea de Arhitectura si Urbanism Ion Mincu
aprox.
1356 m
Universitatea Titu Maiorescu - Corp M
aprox.
1372 m
ClicMarket
aprox.
328 m
Mega Image
aprox.
448 m
Carrefour Unirii
aprox.
451 m
Carrefour Unirii Non-Stop
aprox.
452 m
MGV Supermarket Zeno
aprox.
473 m
Km 0
aprox.
473 m
Mega Image (en)
aprox.
541 m
BILLA - Cocor
aprox.
620 m
Cocor
aprox.
633 m
dm
aprox.
636 m
Mega Image
aprox.
707 m
Carrefour Express
aprox.
775 m
Mega Image - Apahida
aprox.
786 m
Giulio Pantofi la comanda
aprox.
841 m
Supermarket Sinbad
aprox.
884 m
Bucharest, Calea Vitan nr. 8, Bl V51, near VITAN Mall
aprox.
1395 m
Parcare
aprox.
174 m
Parcare
aprox.
186 m
Parcare
aprox.
266 m
Parcare
aprox.
370 m
Parcare
aprox.
387 m
Parcare
aprox.
390 m
Parcare
aprox.
403 m
Parcarea Bibliotecii Nationale
aprox.
411 m
Parcare
aprox.
432 m
Parcare
aprox.
470 m
Parcare
aprox.
500 m
Parcare
aprox.
504 m
Parcare
aprox.
514 m
Parcare
aprox.
566 m
Parcare
aprox.
584 m
Parc
aprox.
235 m
Parc
aprox.
239 m
Parc
aprox.
253 m
Parc
aprox.
263 m
Parc
aprox.
270 m
Parc
aprox.
289 m
Parcul Unirii
aprox.
347 m
Parc
aprox.
347 m
Parc
aprox.
356 m
Parc
aprox.
362 m
Parc
aprox.
386 m
Parc
aprox.
403 m
Parc
aprox.
405 m
Parc
aprox.
408 m
Parc
aprox.
421 m
Piata Bucur
aprox.
390 m
Piata Bibescu
aprox.
428 m
Piața Sfântul Anton
aprox.
642 m
Piata Timpului
aprox.
684 m
Piata Roma
aprox.
810 m
Piata Natiunilor Unite
aprox.
977 m
Piața Constituției
aprox.
1198 m
Piata Rosetti
aprox.
1273 m
Piata Universitatii
aprox.
1284 m
Piața Regina Maria
aprox.
1318 m
Piața Drapelului (Tricolorului)
aprox.
1323 m
Piata Latina
aprox.
1599 m
Piata Revolutiei
aprox.
1738 m
Teren sportiv
aprox.
767 m
Teren sportiv
aprox.
834 m
Teren sportiv
aprox.
1092 m
Teren sportiv
aprox.
1097 m
Teren sportiv
aprox.
1115 m
Teren sportiv
aprox.
1462 m
Teren sportiv
aprox.
1494 m
Teren sportiv
aprox.
1613 m
Teren sportiv
aprox.
1625 m
Teren sportiv
aprox.
1630 m
Teren sportiv
aprox.
1677 m
Teren sportiv
aprox.
1696 m
Teren sportiv
aprox.
1739 m
Teren sportiv
aprox.
1877 m
Teren sportiv
aprox.
1891 m
Clinica Audionova
aprox.
226 m
Medlife Unirii
aprox.
246 m
Clinica Polisano
aprox.
283 m
Maternitatea Bucur
aprox.
372 m
Medicover (en)
aprox.
376 m
Clinica de Stomatologie
aprox.
611 m
Spectrum Clinique - Clinica de Oftalmologie
aprox.
620 m
Spitalul Prof. Dr. C. Angelescu
aprox.
659 m
Spitalul Prof. Dr. C-Tin Angelescu
aprox.
678 m
Europe EYE Hospital (en)
aprox.
700 m
Europe Eye
aprox.
700 m
MediDent
aprox.
728 m
Medident Dental X-ray
aprox.
734 m
Art Implant
aprox.
778 m
Centru medical MEDSANA
aprox.
849 m
Alma Farm Com 95
aprox.
343 m
Farmacia 20
aprox.
440 m
Farmacia Farmadex
aprox.
504 m
Farmacia Dona 19
aprox.
566 m
Farmacia Belladonna 54
aprox.
572 m
Farmacia Dona
aprox.
573 m
Sensiblu
aprox.
592 m
Farmacia 48
aprox.
621 m
Tinos-Farm
aprox.
731 m
Simidon
aprox.
820 m
Pharma Vic
aprox.
824 m
Homeofarm
aprox.
859 m
Farmacia 2NA
aprox.
925 m
Help Net
aprox.
932 m
Plafar
aprox.
942 m
Pe baricade
aprox.
92 m
Nargila Grill&Bar
aprox.
298 m
Bar
aprox.
312 m
BarFly
aprox.
563 m
Network Lounge
aprox.
657 m
Vecchio
aprox.
682 m
City Grill Covaci
aprox.
689 m
True Social Club
aprox.
723 m
Pure
aprox.
728 m
Up Club
aprox.
733 m
B Bar
aprox.
742 m
The Glam Club
aprox.
747 m
1974 Niste Domni si Fiii
aprox.
757 m
Beraria Bavareza Fritz
aprox.
764 m
Big Mamou
aprox.
766 m
Restaurantul Horoscop
aprox.
205 m
Pizzerie si Restaurant Classic
aprox.
261 m
Fabrica De Mancare
aprox.
263 m
Restaurant Classic
aprox.
273 m
Hotel Horoscop ***
aprox.
282 m
Thang Long
aprox.
377 m
Mc'Donalds
aprox.
377 m
KFC
aprox.
377 m
McDonald's
aprox.
445 m
Restaurant
aprox.
456 m
KFC
aprox.
464 m
Pitta Fan
aprox.
530 m
Fast Food
aprox.
555 m
noul Barfly
aprox.
559 m
Subway
aprox.
565 m
The Harp
aprox.
261 m
Pizzeria Classic
aprox.
274 m
The Temple
aprox.
549 m
Beraria Berestoika
aprox.
639 m
Atelierul Mecanic
aprox.
713 m
Kulturhaus
aprox.
742 m
The Bankers
aprox.
751 m
100 de beri
aprox.
754 m
Curtea Berarilor
aprox.
773 m
Manasia Hub
aprox.
774 m
Mojo
aprox.
774 m
Elephant Pub
aprox.
777 m
Oktoberfest
aprox.
777 m
The Vintage Pub
aprox.
777 m
Goblin Club
aprox.
778 m
Bistro 33 Cafe
aprox.
272 m
Angel Cafe
aprox.
576 m
Dalidana
aprox.
590 m
Cafe Torino
aprox.
605 m
Starbucks
aprox.
622 m
Zebra Caffe
aprox.
628 m
The Urbanist
aprox.
641 m
Cofetaria Raisa
aprox.
650 m
Testa Rossa Caffebar
aprox.
653 m
Double Deuce's
aprox.
742 m
Gelato Mio
aprox.
755 m
Buen Humor
aprox.
774 m
Art Caffe
aprox.
780 m
Crepes & Gelato artigianale
aprox.
783 m
La delicii
aprox.
788 m
Banca Italo Romena
aprox.
124 m
UniCredit Bank - Ag. Unirii
aprox.
268 m
Raiffeisen Bank
aprox.
303 m
Piraeus Bank Romania - Agentia Unirea Splai
aprox.
316 m
Banca Romaneasca
aprox.
323 m
BCR
aprox.
424 m
Raiffeisen
aprox.
453 m
Banca Comerciala Feroviara
aprox.
457 m
Banca Raiffeisen
aprox.
474 m
Raiffeisen Bank
aprox.
474 m
Magazin Intersport
aprox.
517 m
Sucursala Raiffeisen Bank
aprox.
517 m
Raiffeisen Bank
aprox.
519 m
Bank Leumi
aprox.
525 m
BCR
aprox.
534 m
Stațiile de metrou aflate chiar în "inima" acestei zone, în Piața Unirii, îți oferă posibilitatea de a călători rapid, evitând aglomerația din trafic. Stația Piața Unirii 1 oferă conexiuni la magistrala M1 Dristor - Pantelimon și la magistrala M3 Preciziei - Anghel Saligny. Aceasta este conectată de stația Piața Unirii 2, aflată pe magistrala M2 Berceni - Pipera printr-un pasaj. Astfel, poți ajunge chiar și în mai puțin de 10 minute în zona Politehnică sau la Piața Victoriei și în circa 15 minute în Pipera, unul dintre principalii poli de business ai orașului. Cu autobuzul 104 poți ajunge în cartierul Pantelimon, iar cu tramvaiul 47 în cartierul Rahova. Consultă harta pentru a localiza stațiile mijloacelor de transport în comun.
Printre unitățile de învățământ din această zonă se numără Colegiul Național "Mihai Eminescu", Colegiul Național "Ion Creangă", Colegiul Național de Arte "Dinu Lipatti" și Facultatea de Teologie Ortodoxă "Justinian Patriarhul". Tot aici își are sediul și Institutul Bancar Român care ajută la specializarea personalului din sectorul financiar-bancar. Ajungi foarte repede din Piața Unirii, chiar și pe jos, la Palatul Universității care găzduiește sediile mai multor facultăți. Găsește pe hartă și cele mai apropiate grădinițe, școli și licee de viitoarea ta locuință.
Dacă te vei muta în această zonă, vei avea la doi pași de casă centrul comercial Unirea Shopping Center, care găzduiește, printre altele, magazinele mai multor branduri de modă. În spatele acestuia vei găsi un hipermarket Carrefour. Diverse magazine pot fi găsite și în Centrul Vechi. Pe Strada Lipscani poți să vizitezi una dintre cele mai frumoase librării din Capitală, Cărturești Carusel. Magazin Cocor, care a fost modernizat recent, poate fi și el o alternativă. În imediata sa vecinătate se află și noul magazin București. Pentru mai multe opțiuni, poți merge la București Mall, cel mai apropiat centru comercial de acest tip. Consultă harta pentru a vedea ce alte opțiuni ai în zona Unirii și în împrejurimi.
Lângă Centrul Comercial Unirea Shopping Center vei găsi o parcare supraterană unde îți poți lăsa mașina contra-cost. Dacă te gândești să te muți în zona Piața Unirii îți amintim, de asemenea, că traficul pe Bulevardul Unirii este destul de îngreunat la orele de vârf. Nu uita, totodată, că traficul rutier este închis uneori în Piața Constituției pentru organizarea unor evenimente și concerte. Pentru închirierea unui loc de parcare în apropierea locuinței de care ești interesat va trebui să apelezi la reprezentanții autorităților locale de pe sectorului în care se află aceasta (Direcția Generală Impozite și Taxe Locale Sector 3, Direcția Mobilitate Urbană Sector 4, Serviciul Parcaje Scop Reședință Sector 5). Consultă harta pentru a localiza mai ușor principalele parcări din zona Unirii.
Dacă decizi să te muți într-o locuință în zona Unirii, atunci vei avea la dispoziție numeroase opțiuni de petrecere a timpului liber. Chiar în Piața Unirii vei găsi unul dintre binecunoscutele obiective ale orașului, Hanul lui Manuc. Construit în 1808 acesta a fost renovat în urmă cu câțiva ani și găzduiește, în prezent, mai multe cafenele, restaurante și mici magazine. Acesta se află chiar la marginea Centrului Vechi al Capitalei, principalul punct de atracție pentru iubitorii vieții de noapte. Tot aici găsești și câteva obiective turistice importante - Palatul Voievodal Curtea Veche, Palatul BNR, Muzeul Național de Istorie a României și Muzeul Municipal București. Parcurile Izvor și Unirii sunt principalele spații verzi din această zonă. Nu trebuie să uiți însă că nu va trebui să mergi mult pentru a ajunge și la Grădina Cișmigiu sau în Parcul Tineretului. Poți merge, totodată, la un spectacol la Teatrul Evreiesc de Stat sau poți participa la evenimentele și la concertele care se organizează periodic în Piața Constituției de lângă Palatul Parlamentului. Poți lua parte la diverse evenimente și vizitând Biblioteca Națională a României, o altă clădire reprezentativă din această zonă. Ajungi foarte ușor, pe jos sau cu metroul, la Teatrul Național București în fața căruia găsești și un mic parc. Iar dacă toate acestea nu sunt de ajuns, atunci o plimbare pe Calea Victoriei și o vizită la numeroasele obiective de interes aflate de-a lungul ei cu siguranță te vor satisface. Cea mai bună parte este că această arteră de circulație se închide circulației rutiere uneori și devine strict pietonală. În plus, aici ai la dispoziție una dintre puținele piste dedicate bicicliștilor din oraș. Consultă harta pentru a vedea ce alte opțiuni de petrecere a timpului liber vei avea odată ce te vei muta în zona Unirii.
Dacă te vei muta în această zonă, vei putea apela în caz de nevoie la câteva clinici private. Printre acestea amintim Hiperclinica MedLife Unirii, clinica de stomatologie DentaLife și Medas Unirea. Unele dintre cele mai apropiate spitale la care vei avea acces vor fi Spitalul Cinic Colțea din Piața Universității și Spitalul Clinic Prof. Dr. Theodor Burghele, aflat în apropierea Palatului Parlamentului. Vezi pe hartă ce alte unități medicale se află în zona Unirii și în vecinătatea sa.
Centrul Vechi îți oferă numeroase opțiuni la acest capitol, iar câteva fast food-uri ai la dispoziție la parterul centrului comercial Unirea Shopping Center, situat chiar în Piața Unirii. Găsești câteva terase și pe malul Dâmboviței, lângă Biblioteca Națională a României. Dacă vrei să schimbi peisajul, poți să ajungi destul de repede cu mașina sau cu mijloacele de transport în comun la București Mall sau poți încerca una dintre numeroasele terase din Piața Alba Iulia sau de pe Bulevardul Decebal. Mai mult, ai relativ aproape și Calea Victoriei, perfectă pentru promenadă, dar și pentru un popas la restaurant. Consultă harta și află care sunt cele mai apropiate localuri de viitoarea ta locuință.
Găsești mai multe ATM-uri și sucursale bancare în Piața Unirii, unele dintre ele chiar în incinta complexului comercial Unirea Shopping Center. Vezi care este cel mai potrivit pentru tine de pe hartă.
Înainte să pleci...
Ești sigur că ai văzut și aceste proprietăți?
399.000 € + TVA
București, P-ța Unirii
3 camere
117 mp
Etaj 3 / 3
380.000 €
București, P-ța Unirii
5 camere
108 mp
Etaj 5 / 10
378.730 €
București, P-ța Unirii
3 camere
64,3 mp
Parter
Creează alertă
Salvează căutarea ca să primești pe email ultimele anunțuri publicate
Apartamente noi cu 3 camere de vânzare în zona P-ța Unirii, Sector 3
Cere detalii prin email
*
*
*
*
Detaliile tale de contact vor fi partajate cu R&d Advisers