2 camere Bloc Nou finalizat - Timpuri Noi Metrou

140.495 € + TVA

Splaiul Unirii, București

Nr. cam.:
2
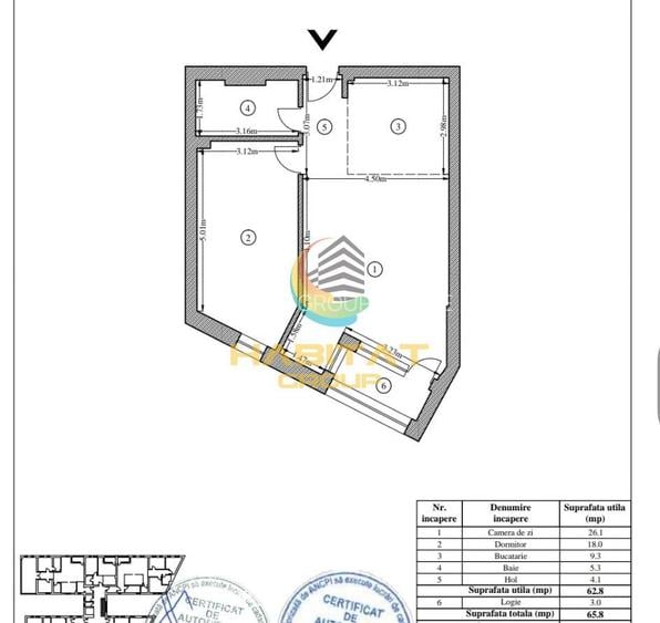
Sup. utilă:
65,8 mp
Etaj:
1 / 5
An constr.:
2025 (Finalizată)
  • • Comision 0%
  • • Locație aproximativă

Descriere apartament

Apartament de 2 camere intr-un bloc nou, finalizat, in imediata apropiere a metroului Timpuri Noi. Locatie: Ion Minulescu Constructie finalizata, acte gata, se accepta credit.. ****Pret promotional!**** Apartamentul este finisat la cheie, are centrala termica proprie (a apartamentului), incalzire prin pardoseala, ferestre Salamander tripan, instalatii de AC - preinstalate., baie echipata complet cu obiecte sanitare. Pentru detalii si vizionari, va rog sa sunati. Zero comision. Pretul afisat nu contine tva.
Citește mai mult Citește mai puțin
Confort 1 Decomandat Centrală proprie Încălzire prin pardoseală

Detalii apartament

ID anunț: XCIQ20AIH Copiat! 275412480 Copiat!
Actualizat în: 07 Aprilie 2026
Tip imobil: Bloc de apartamente
Regim înălțime: P+5E

Utilități

Pereți
Faianță Vopsea lavabilă
Ușă intrare
Metal
Uși interior
Lemn
Utilități
Curent Apă Canalizare CATV Gaze Telefon
Internet
Cablu
Amenajare străzi
Iluminat stradal Mijloace de transport în comun Asfaltate
Comision
0%

Vecinătăți:

Metrou
Piata
Scoli
Gradinite
Restaurante/cafenele

Disponibilitate proprietate:

Imediat

Puncte de interes

Mijloace transport
metro-station
Metrorex. Stația Universitate (M2)(1987)
Stații metrou aprox. 29 m
bus-station
Statia Piata Universitatii linii : 122,137,138,268,381,783.
Stații autobuz aprox. 41 m
tram-station
Piata Sf. Gheorghe
Stații tramvai aprox. 498 m
trolleybus-station
Statia Piata Romana linii : 79,86
Stații troleibuz aprox. 1205 m
Școală
university
UAUIM -Universitatea de Arhitectura si Urbanism Ion Mincu
Universități aprox. 100 m
university
Facultatea de Limbi si Literaturi Straine
Universități aprox. 104 m
school
Schiller Institut
Școli aprox. 268 m
kindergarten
Gradinita nr.4 "Lizuca"
Gradinițe aprox. 307 m
Recreere
public-square
Piata Universitatii
Piețe publice aprox. 122 m
supermarket
Pravalia Maestrului
Supermarket aprox. 154 m
park
Rond Piața Universității
Parcuri aprox. 160 m
mall
"METROPLIS CENTER"
Mall aprox. 1776 m

Detalii despre preț și costuri

Prețul pe piață

Preț cerut: 140.495 €

Preț min. zonă
Preț max. zonă

83% dintre proprietățile similare ca zonă și nr. camere au prețul cerut mai mare. mai multe...

Bine de știut: prețul unei proprietăți este influențat și de alte caracteristici, cum ar fi: vechime, localizare, vecinătăți, suprafață, compartimentare, amenajări, dotări, etc. mai puțin...

Insight premium disponibil după login

Costuri cu achiziția

Fără credit
Credit ipotecar
Noua casă

i

Costuri adiționale mai puțin știute la achiziție: taxe notariale, comisioane etc.

Insight premium disponibil după login

Proprietăți similare

Apartament cu 2 camere semidecomandat în Splaiul Unirii
147.600 € + TVA
București, Splaiul Unirii
2 camere
75 mp
Etaj 11 / 12
Apartament cu 2 camere decomandat în Splaiul Unirii
132.231 € + TVA
București, Splaiul Unirii
2 camere
50,9 mp
Etaj 1 / 5
Apartament cu 2 camere decomandat în Splaiul Unirii
145.345 € + TVA
București, Splaiul Unirii
2 camere
71 mp
Etaj 1 / 12

Detalii de contact

HABITAT GROUP ESTATE

Andrei Vatavu Reprezentant Dezvoltator

4.73(15 review-uri)

HABITAT GROUP ESTATE
PRO

Abonează-te la newsletter să fii primul care primește cele mai noi recomandări de proprietăți și sfaturi de la experți.

CONTACT

Creează alertă

Salvează căutarea ca să primești pe email ultimele anunțuri publicate

Apartamente noi cu 2 camere de vânzare în zona Splaiul Unirii, Sector 3