Locuință modernă 2 camere – intimitate, spațiu și confort

89.810 € + TVA

Theodor Pallady, București

Nr. cam.:
2
Sup. utilă:
52,36 mp
Etaj:
3 / 3
An constr.:
2026 (În construcție)
  • • Comision 0%
  • • Exclusivitate
  • • Locație exactă

Descriere apartament

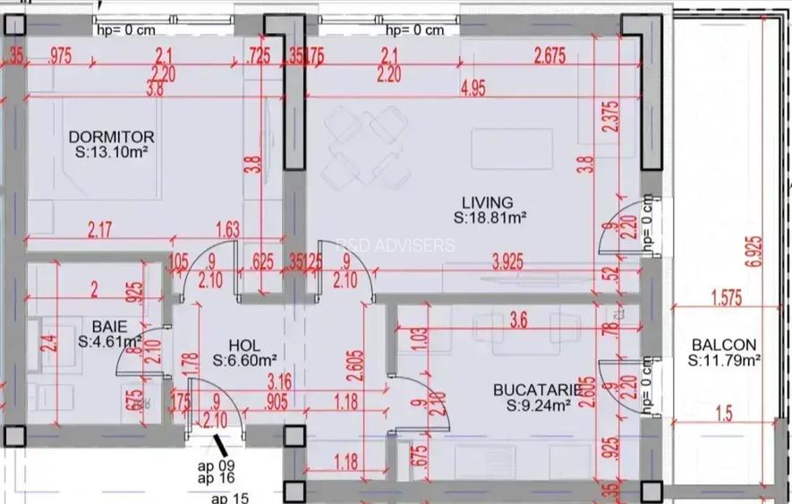
Descoperă un apartament de 2 camere bine compartimentat, aflat la etaj, într-un imobil nou cu regim redus de înălțime, situat într-o zonă liniștită și bine conectată la facilitățile orașului. Este alegerea ideală pentru cei care își doresc confort, intimitate și un spațiu modern, gata să devină „acasă”.  Detalii apartament Suprafață utilă: 52,36 mp Balcon: 11,79 mp Suprafață totală: 64,15 mp Compartimentare: living spațios, dormitor, bucătărie închisă, baie, hol și balcon cu acces din două camere  Particularități Bucătărie închisă, separată de zona de zi Living de aproape 19 mp cu acces direct pe balcon Balcon foarte mare (11,79 mp), ce extinde spațiul util și permite amenajarea unui colț de relaxare Compartimentare practică, cu hol generos și intimitate între camere  Finisaje și dotări Încălzire prin pardoseală cu centrală proprie Tâmplărie PVC și izolație termică exterioară Parchet, gresie, faianță și vopsea lavabilă – finisaje moderne Ușă metalică la intrare și uși interioare celulare Apometre, contor gaz, senzor de fum, interfon și lift  Avantaje imobil Bloc modern cu regim mic de înălțime (D+P+3) Structură solidă din beton armat Clasa energetică 1 – eficiență și costuri reduse Spații comune moderne și bine întreținute  Locație Strada Gura Căliței, la câteva minute de stațiile STB (253, 330, N111) și cu acces rapid la metroul din zona Theodor Pallady În apropiere de Ikea, Auchan, Metro, Leroy Merlin, Decathlon și alte centre comerciale Acces ușor la școli, grădinițe, farmacii și facilități sportive  Prețuri în funcție de avans 89.810 € + TVA (avans 90%) 93.018 € + TVA (avans 50%) 96.225 € + TVA (avans 20%) Programează o vizionare și descoperă apartamentul care îmbină compartimentarea practică cu un balcon generos, ideal pentru relaxare sau socializare. Andrei Badea -
+403 ........ Vezi tot numărul
Direct Dezvoltator | Zero Comision Imaginile au caracter informativ. VAUNT ID: 101924
Citește mai mult Citește mai puțin
Confort 1 Decomandat 1 Balcon / Terasă / Logie Centrală proprie Încălzire prin pardoseală Bine întreținut (Bună)

Detalii apartament

ID anunț: X7QH10U67 Copiat! 270104190 Copiat!
Actualizat în: 22 Ianuarie 2026
Suprafață utilă totală: 52.36 mp
Nr. bucătării: 1
Nr. băi: 1
Structură rezistență: Beton
Tip imobil: Bloc de apartamente
Regim înălțime: P+3E

Utilități

Destinație
Rezidențial
Pereți
Vopsea lavabilă Faianță
Podele
Gresie
Ușă intrare
Parchet Metal
Uși interior
Celulare
Izolații termice
Interior Exterior
Ferestre cu geam termopan
PVC
Contorizare
Apometre Contor gaz
Diverse
Senzor de fum
Facilități imobil
Interfon Lift
Utilități
Gaze CATV Curent Apă Canalizare
Internet
Fibră optică Cablu Wireless
Amenajare străzi
Iluminat stradal Mijloace de transport în comun Asfaltate

Certificat energetic:

Clasa energetică: A

Alte detalii despre preț:

89,810 € + TVA avans 90%
93,018€ + TVA avans 50%
96,225 € + TVA avans 20%

Disponibilitate proprietate:

Disponibil

Puncte de interes

Mijloace transport
bus-station
Statia Scoala Generala 65, Linia 103
Stații autobuz aprox. 1205 m
bus-station
Scoala Generala nr. 55
Stații autobuz aprox. 1206 m
tram-station
Statia Nicolae Teclu, Linia M3
Stații tramvai aprox. 1377 m
metro-station
Metrorex.Stația Nicolae Teclu (M3)(2008)
Stații metrou aprox. 1382 m
Școală
school
Scoala Generala nr. 55
Școli aprox. 1135 m
school
Scoala cu clasele I-VIII, nr.55
Școli aprox. 1147 m
kindergarten
Gradinita nr. 68
Gradinițe aprox. 1163 m
kindergarten
Gradinita nr. 187
Gradinițe aprox. 1539 m
Recreere
park
Parc
Parcuri aprox. 777 m
hypermarket
Metro
Hipermarket aprox. 1150 m
supermarket
Metro Pallady
Supermarket aprox. 1150 m
sports-ground
Teren sportiv
Terenuri sport aprox. 1494 m

Detalii despre preț și costuri

Prețul pe piață

Preț cerut: 89.810 €

Preț min. zonă 69.900 €
Preț max. zonă 140.000 €

60% dintre proprietățile similare ca zonă și nr. camere au prețul cerut mai mare. mai multe...

Bine de știut: prețul unei proprietăți este influențat și de alte caracteristici, cum ar fi: vechime, localizare, vecinătăți, suprafață, compartimentare, amenajări, dotări, etc. mai puțin...

Costuri cu achiziția

Fără credit
6.516 RON
Credit ipotecar
8.090 RON
Noua casă
694 RON+ taxe notariale

i

Costuri adiționale mai puțin știute la achiziție: taxe notariale, comisioane etc.

Proprietăți recomandate

Detalii de contact

R&D ADVISERS

Andrei Badea

R&D ADVISERS
PRO

Abonează-te la newsletter să fii primul care primește cele mai noi recomandări de proprietăți și sfaturi de la experți.

CONTACT

Creează alertă

Salvează căutarea ca să primești pe email ultimele anunțuri publicate

Apartamente cu 2 camere de vânzare în zona Theodor Pallady, Sector 3