Apartament 2 camere modern Theodor Pallady| predare aprilie

79.475 € + TVA

Theodor Pallady, București

Nr. cam.:
2
Sup. utilă:
54,81 mp
Etaj:
Parter / 3
An constr.:
2026 (În construcție)
  • • Locație exactă

Descriere apartament

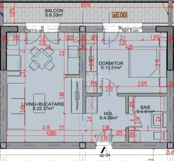
Îți propun spre vânzare un studio modern, situat la parter înalt, într-un ansamblu rezidențial nou din zona Theodor Pallady, foarte aproape de magazine și Parcul Teilor. Apartamentul are o suprafață totală de aproximativ 55 mp, cu o compartimentare eficientă și lumină naturală foarte bună. Imobilul are un regim mic de înălțime, finisaje personalizabile, încălzire în pardoseală și parcări disponibile, oferind confort și siguranță. Este ideal atât pentru locuit, cât și pentru investiție. Prețurile pentru achiziție (fara TVA ) : 79.475 € pentru avans 50% și 82.215 € pentru avans 15% Termen de predare: aprilie 2026. VAUNT ID: 110404
Citește mai mult Citește mai puțin
Confort lux Decomandat Nemobilat 1 Balcon / Terasă / Logie Curte comună Centrală proprie Încălzire prin pardoseală 1 Parcare Bine întreținut (Bună)

Detalii apartament

ID anunț: X7QH201U0 Copiat! 275323925 Copiat!
Actualizat în: 20 Martie 2026
Suprafață utilă totală: 54.81 mp
Suprafață construită: 68 mp
Nr. bucătării: 1
Nr. băi: 1
Structură rezistență: Beton
Tip imobil: Bloc de apartamente
Regim înălțime: P+3E

Utilități

Destinație
Rezidențial
Pereți
Vopsea lavabilă Faianță
Podele
Gresie
Ușă intrare
Parchet Metal
Uși interior
Celulare
Izolații termice
Interior Exterior
Ferestre cu geam termopan
PVC
Contorizare
Apometre Contor gaz
Diverse
Senzor de fum Telecomandă poartă acces auto
Facilități imobil
Spații agrement Interfon Lift
Utilități
Gaze CATV Telefon Curent Apă Canalizare
Internet
Fibră optică Cablu Wireless
Servicii imobil
Administrare Supraveghere video
Amenajare străzi
Iluminat stradal Mijloace de transport în comun Asfaltate Betonate

Certificat energetic:

Clasa energetică: A

Puncte de interes

Mijloace transport
bus-station
Statia Scoala Generala 65, Linia 103
Stații autobuz aprox. 1137 m
bus-station
Scoala Generala nr. 55
Stații autobuz aprox. 1138 m
tram-station
Statia Nicolae Teclu, Linia M3
Stații tramvai aprox. 1445 m
metro-station
Metrorex.Stația Nicolae Teclu (M3)(2008)
Stații metrou aprox. 1450 m
Școală
school
Scoala Generala nr. 55
Școli aprox. 1067 m
school
Scoala cu clasele I-VIII, nr.55
Școli aprox. 1079 m
kindergarten
Gradinita nr. 68
Gradinițe aprox. 1203 m
kindergarten
Gradinita nr. 187
Gradinițe aprox. 1482 m
Recreere
park
Parc
Parcuri aprox. 844 m
supermarket
Mega Image
Supermarket aprox. 1117 m
hypermarket
Metro
Hipermarket aprox. 1214 m
sports-ground
Teren sportiv
Terenuri sport aprox. 1435 m

Detalii despre preț și costuri

Prețul pe piață

Preț cerut: 79.475 €

Preț min. zonă
Preț max. zonă

80% dintre proprietățile similare ca zonă și nr. camere au prețul cerut mai mare. mai multe...

Bine de știut: prețul unei proprietăți este influențat și de alte caracteristici, cum ar fi: vechime, localizare, vecinătăți, suprafață, compartimentare, amenajări, dotări, etc. mai puțin...

Insight premium disponibil după login

Costuri cu achiziția

Fără credit
Credit ipotecar
Noua casă

i

Costuri adiționale mai puțin știute la achiziție: taxe notariale, comisioane etc.

Insight premium disponibil după login

Proprietăți similare

Apartament cu 2 camere semidecomandat în Theodor Pallady
85.200 € + TVA
București, Theodor Pallady
2 camere
51,6 mp
Etaj 3 / 4
Apartament cu 2 camere semidecomandat în Theodor Pallady
76.472 € + TVA
București, Theodor Pallady
2 camere
47,17 mp
Etaj 1 / 3
Apartament cu 2 camere decomandat în Theodor Pallady
80.500 € + TVA
București, Theodor Pallady
2 camere
57,5 mp
Etaj 4 / 4

Detalii de contact

R&D ADVISERS

Andreia Corpaci Project Manager

4.59(9 review-uri)

R&D ADVISERS
PRO

Abonează-te la newsletter să fii primul care primește cele mai noi recomandări de proprietăți și sfaturi de la experți.

CONTACT

Creează alertă

Salvează căutarea ca să primești pe email ultimele anunțuri publicate

Apartamente cu 2 camere de vânzare în zona Theodor Pallady, Sector 3