24

FINALIZAT | 3 camere, incalzire in pardoseala, Pallady - metrou

137.040 € + TVA

Theodor Pallady, București

Nr. cam.:
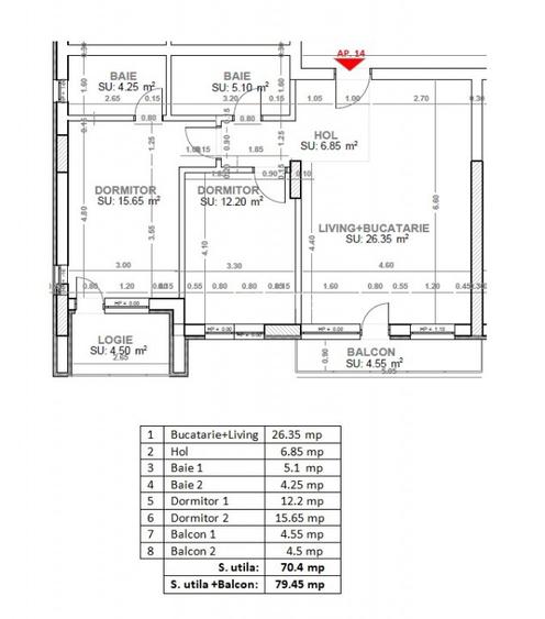
3
Sup. utilă:
85,65 mp
Etaj:
1 / 5
An constr.:
2024 (Finalizată)
  • • Comision 0%
  • • Locație aproximativă

Descriere apartament

COMISION 0% *Pentru aceasta proprietate nu se percepe comision din partea cumparatorului. Acest ansamblu rezidential este finalizat si gata pentru a va muta. Preturi: 1700 eur/mp +TVA (21%) * La pretul afisat se adauga 5.000 euro - mobilier de bucatarie, mobilier pentru centrala proprie, mobilier de hol si mobilier de baie (totul din MDF) *La pretul afisat in prezenta oferta se mai adauga TVA (21%) Loc parcare subteran: 10.000 eur +TVA (21%) Descriere: Va prezentam pentru vanzare un apartament de 3 camere, situat la etajul 1, intr-un ansamblu rezidential foarte atractiv si bine planificat, oferind o gama variata de locuinte pentru diferite nevoi si preferinte. Proiectul ofera o gama variata de tipuri de locuinte, inclusiv apartamente cu 3 camere, 2 camere, 1 camera. Numarul de Unitati: Cele 2 blocuri ale proiectului insumneaza 88 de unitati locative - 44 apartamente pe bloc, cu fiind 8 apartamente pe fiecare etaj, doar etajul retras avand 4 apartamente cu terase ce dispun de suprafete generoase. Regim de inaltime: S+P+4+5Er Locuri de parcare: Locurile de parcare sunt atat terane cat si subterane - la subteranul blocurilor. Termen de Finalizare: FINALIZAT Dotari: -incalzire in pardoseala; -termopane Salamander 5 camere; -toaleta incastrata , sistem Grohe; -hidroizolatie terase - Ceresit EPS; -casa scarii placata cu marmura si balustrada de inox; -balcoanele prevazute cu sticla securizata; -bloc prevazut cu lifturi Schindler; -beton folosit: C30/37 B 350; -caramida Soceram si Porotherm; -fatada - sistem Ceresit 80F.; - gazona cu sistem de aspersoare; - parcare cu izolatie cu vata bazaltica. Ansamblul se afla intr-o zona usor accesibila si dezvoltata a Capitalei cu parcuri si zone de joaca si transport in comun dar si scoli, sectiei de politie, benzinarii, posta, farmacii, biserica si alte servicii esentiale. Magazine: Kaufland | Lidl | Leroy Merlin | Dedeman | Ikea | Metro | Auchan | Penny | Mega Image | ProfiGo (langa complex) | Fast food: McDonald’s | KFC | Ava Grill | saormerii, patiserii, brutarii, pizzerii | Servicii: Farmacii | PetShop | Barber Shop | Saloane de infrumusetare | Complex sportiv | Scoli de soferi | Banci | ATM-uri | Spatii verzi: Parcul Teilor | Spatii de joaca pentru copii | Scoli si gradinite: Gradinitele 160 si 68 | Scolile gimnaziale 82 si 116 | Colegiul Costin Nenitescu | Liceul International de Informatica | Gradinita Spectrum | Transport public: Metrou 1 Decembrie 1918 | Metrou Nicolae Teclu | Tramvaiele 40, 23, 27, 19 | *Imaginile si schitele sunt cu titlu de prezentare
Citește mai mult Citește mai puțin
Confort 1 Decomandat 2 Balcoane / Terase / Logii Centrală proprie Încălzire prin pardoseală

Detalii apartament

ID anunț: X86P10002 Copiat! 239056016 Copiat!
Actualizat în: 24 Ianuarie 2026
Nr. bucătării: 1
Nr. băi: 2
Structură rezistență: Beton
Tip imobil: Bloc de apartamente
Regim înălțime: D+P+5E

Utilități

Destinație
Rezidențial
Pereți
Faianță Vopsea lavabilă
Podele
Gresie Parchet
Ușă intrare
Metal
Uși interior
Lemn
Ferestre cu geam termopan
PVC Aluminiu
Utilități
Curent Apă Canalizare Gaze
Amenajare străzi
Asfaltate Iluminat stradal Mijloace de transport în comun
Facilități imobil
Lift Interfon

Certificat energetic:

Clasa energetică: A

Disponibilitate proprietate:

imediat

Puncte de interes

Mijloace transport
tram-station
STIROM
Stații tramvai aprox. 656 m
bus-station
statie tramvai STIROM :23- 27 - 40
Stații autobuz aprox. 663 m
tram-station
statie tramvai -23, 27 si 40 - I.O.R
Stații tramvai aprox. 747 m
metro-station
Metrorex.Stația Nicolae Teclu (M3)(2008)
Stații metrou aprox. 856 m
Școală
school
Scoala Nr. 149
Școli aprox. 1021 m
kindergarten
Gradinita Nr. 160
Gradinițe aprox. 1059 m
school
Colegiul tehnic de chimie "Costin Nenitescu"
Școli aprox. 1060 m
kindergarten
Gradinita Nr. 160 - "soarelui"
Gradinițe aprox. 1069 m
Recreere
park
* LA COCLAU - MOTOCROSS - TRASEU
Parcuri aprox. 485 m
supermarket
Lidl
Supermarket aprox. 823 m
sports-ground
Teren de fotbal
Terenuri sport aprox. 993 m
hypermarket
Decathlon
Hipermarket aprox. 1277 m

Detalii despre preț și costuri

Prețul pe piață

Preț cerut: 137.040 €

Preț min. zonă 93.000 €
Preț max. zonă 199.000 €

65% dintre proprietățile similare ca zonă și nr. camere au prețul cerut mai mare. mai multe...

Bine de știut: prețul unei proprietăți este influențat și de alte caracteristici, cum ar fi: vechime, localizare, vecinătăți, suprafață, compartimentare, amenajări, dotări, etc. mai puțin...

Costuri cu achiziția

Fără credit
8.593 RON
Credit ipotecar
10.409 RON
Noua casă
985 RON+ taxe notariale

i

Costuri adiționale mai puțin știute la achiziție: taxe notariale, comisioane etc.

Proprietăți recomandate

Detalii de contact

1ESTATE

Cristi Sima Agent imobiliar

1ESTATE

Abonează-te la newsletter să fii primul care primește cele mai noi recomandări de proprietăți și sfaturi de la experți.

CONTACT

Creează alertă

Salvează căutarea ca să primești pe email ultimele anunțuri publicate

Apartamente noi cu 3 camere de vânzare în zona Theodor Pallady, Sector 3