1

3 Camere Direct Dezvoltator Ideal Familie/Credit Ipotecar 15%

105.663 € + TVA

Theodor Pallady, București

Nr. cam.:
3
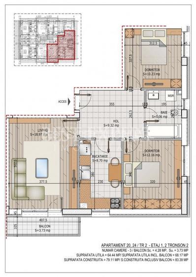
Sup. utilă:
68,17 mp
Etaj:
1 / 3
An constr.:
2026 (În construcție)
  • • Comision 0%
  • • Locație aproximativă

Descriere apartament

Oferta noastra completa o gasiti pe site-ul Best Expert Imobiliare Birou vanzari dezvoltator Titan-Pallady Comision 0% Sediu: Drumul Gura Crivatului, nr. 4-22, Sector 3 Waze: Best Expert Imobiliare Telefon Programari: Program vizionari: L-V 10:00-18:00 / S: 10:00-14:00 Facebook: Best Expert Imobiliare - 105.663 Euro + TVA pentru un avans de 15% la antecontract Descopera noile apartamente situate intr-un ansamblu rezidential modern, construit de unul dintre cei mai experimentati dezvoltatori din zona, cu peste 14 blocuri finalizate cu succes in Sectorul 3. Imobilul este amplasat intr-o zona rezidentiala linistita, ideala pentru cei care cauta confort si intimitate, dar in acelasi timp doresc sa ramana aproape de oras. Locatia ofera acces rapid catre centrul Bucurestiului si autostrada A2, fiind la doar 12–14 minute de mers pe jos pana la statia de metrou Nicolae Teclu. In apropiere se regasesc cele mai importante puncte de interes din partea de est a orasului: IKEA, Auchan, Lidl, Metro, Decathlon, JYSK, Mega Image, Dedeman, Leroy Merlin, Jumbo si multe altele. Caracteristici ale apartamentelor: Se predau la cheie, complet racordate la toate utilitatile publice: apa, gaz, electricitate si canalizare; Dispun de centrala termica proprie in condensare, pentru eficienta energetica si controlul temperaturii; Finisaje incluse, la alegere: parchet, usi de interior, gresie si faianta; Usa metalica de acces si bai complet utilate, gata de folosire; Complexul beneficiaza de acces privat, cu poarta electrica actionata prin telecomanda, oferind un plus de siguranta si intimitate. Ansamblul este situat intr-un cartier 100% rezidential, ideal pentru familii, tineri profesionisti sau oricine isi doreste un camin modern intr-o zona verde si linistita, dar bine conectata la viata urbana. Contacteaza-ne pentru mai multe detalii sau pentru a programa o vizionare!
Citește mai mult Citește mai puțin
Decomandat 1 Balcon / Terasă / Logie Calorifere Centrală proprie

Detalii apartament

ID anunț: XAHS104KO Copiat! 274902395 Copiat!
Actualizat în: 03 Aprilie 2026
Suprafață construită: 75 mp
Nr. bucătării: 1
Nr. băi: 2
Structură rezistență: Beton
Tip imobil: Bloc de apartamente
Regim înălțime: P+3E

Utilități

Destinație
Rezidențial
Pereți
Vopsea lavabilă Faianță
Podele
Parchet Gresie
Ușă intrare
Metal
Uși interior
Lemn
Izolații termice
Exterior Bloc izolat termic
Contorizare
Apometre Contor gaz
Facilități imobil
Interfon
Utilități
Curent Apă Canalizare Gaze CATV
Amenajare străzi
Asfaltate Betonate Iluminat stradal Mijloace de transport în comun

Vecinătăți:

TITAN, PALLADY, Nicolae Teclu, IKEA Auchan JUMBO Lidl Metro Decathlon JYSK Mega Image

Disponibilitate proprietate:

imediat

Puncte de interes

Mijloace transport
tram-station
Statia Nicolae Teclu, Linia M3
Stații tramvai aprox. 210 m
metro-station
Metrorex.Stația Nicolae Teclu (M3)(2008)
Stații metrou aprox. 211 m
tram-station
Policolor
Stații tramvai aprox. 263 m
bus-station
Statia Policolor, Linia N111, 23, 27, 40
Stații autobuz aprox. 302 m
Școală
kindergarten
Gradinita nr. 68
Gradinițe aprox. 1016 m
kindergarten
Gradinita Nr. 160
Gradinițe aprox. 1142 m
school
Scoala Nr. 149
Școli aprox. 1161 m
school
Spectrum Liceul Teoretic International de Informatica
Școli aprox. 1309 m
Recreere
hypermarket
Decathlon
Hipermarket aprox. 443 m
park
Parc
Parcuri aprox. 480 m
supermarket
Metro Pallady
Supermarket aprox. 519 m
sports-ground
Teren de fotbal
Terenuri sport aprox. 1034 m

Detalii despre preț și costuri

Prețul pe piață

Preț cerut: 105.663 €

Preț min. zonă 93.000 €
Preț max. zonă 199.000 €

70% dintre proprietățile similare ca zonă și nr. camere au prețul cerut mai mare. mai multe...

Bine de știut: prețul unei proprietăți este influențat și de alte caracteristici, cum ar fi: vechime, localizare, vecinătăți, suprafață, compartimentare, amenajări, dotări, etc. mai puțin...

Costuri cu achiziția

Fără credit
7.294 RON
Credit ipotecar
8.950 RON
Noua casă
792 RON+ taxe notariale

i

Costuri adiționale mai puțin știute la achiziție: taxe notariale, comisioane etc.

Proprietăți recomandate

Detalii de contact

BEST EXPERT IMOBILIARE

Claudiu Marinescu Consilier Imobiliar

BEST EXPERT IMOBILIARE
PRO

Abonează-te la newsletter să fii primul care primește cele mai noi recomandări de proprietăți și sfaturi de la experți.

CONTACT

Creează alertă

Salvează căutarea ca să primești pe email ultimele anunțuri publicate

Apartamente cu 3 camere de vânzare în zona Theodor Pallady, Sector 3