3

AP 3 CAMERE // BLOC P+3 IN CURS DE FINALIZARE// PALLADY // COMISION 0!

141.668 €

Theodor Pallady, București

Nr. cam.:
3
Sup. utilă:
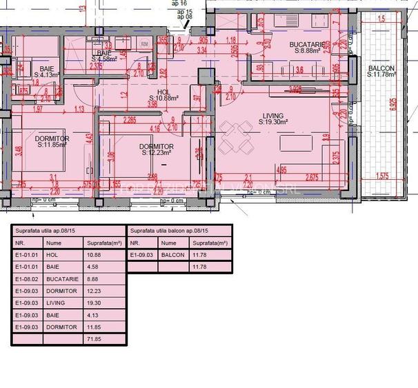
83,63 mp
Etaj:
1 / 3
An constr.:
2026 (În construcție)
  • • Comision 0%
  • • Locație aproximativă

Descriere apartament

Comision 0% Modalitati de achizitie : - avans 90% - 141.669 euro tva inclus - avans 50% - 146.729 euro tva inclus - avans 15% - 151.788 euro tva inclus Complex rezidențial de elită – bloc mic și intim, confort și finisaje de înaltă calitate Vă invităm să descoperiți un ansamblu de apartamente de excepție, situat într-un imobil cu structură solidă, format dintr-un bloc mic, cu doar 3 etaje și o singură scară, dedicat celor care apreciază intimitatea, confortul și un stil de viață modern. Acest complex răspunde celor mai exigente cerințe, oferind soluții de locuire adaptate diverselor nevoi. Caracteristici și beneficii: Design și finisaje de top: Toate apartamentele sunt finisate cu materiale atent selecționate, dintr-o gamă diversificată, pentru a crea un interior elegant, durabil și personalizabil – gresie, faianță, parchet și uși, alese cu grijă pentru a reflecta rafinament și bun gust. Luminozitate naturală maximă: Fiecare apartament dispune de ferestre mari, de sus până jos, pentru o iluminare excelentă, îmbogățind atmosfera cu energie și vitalitate. Confort termic și economic: Încălzire în pardoseală și centrală proprie, pentru control total asupra temperaturii, asigurând un ambient cald și plăcut pe tot parcursul anului. Astfel, locuințele sunt eficiente energetic și economice. Predare la cheie: Apartamentele se predau complet finisate și racordate la toate utilitățile (apă, gaz, canalizare și electricitate), gata pentru mutare, fără eforturi suplimentare sau lucrări de finalizare. Design modern și funcțional: Interiorul este configurat pentru a răspunde celor mai rafinate gusturi: apartamentele tip studio, 2 și 3 camere, precum și garsonierele, sunt proiectate pentru a oferi un confort de excepție într-un mediu sigur și liniștit. Poziție strategică și facilități în apropiere: Localizarea acestui complex asigură acces rapid la principalele puncte de interes ale zonei, într-un mediu sigur și plin de facilități urbane. În vecinătate găsiți centre comerciale, școli, grădinițe, servicii și zone de relaxare, toate la îndemână pentru confortul dumneavoastră zilnic. Această oportunitate reprezintă alegerea ideală pentru familii, tineri profesioniști sau investitori, care doresc o locuință modernă, personalizabilă, gata de mutare și situată într-un ansamblu exclusivist. Contactați-ne pentru mai multe detalii sau pentru a programa o vizionare – investiția în confort și stil de viață de lux începe aici! Poze cu caracter orientativ!
Citește mai mult Citește mai puțin
Confort 1 Decomandat 1 Balcon / Terasă / Logie

Detalii apartament

ID anunț: XDU3106QB Copiat! 275364954 Copiat!
Actualizat în: 27 Martie 2026
Suprafață construită: 95 mp
Nr. bucătării: 1
Nr. băi: 2
Structură rezistență: Beton
Tip imobil: Bloc de apartamente
Tip tranzacție: De vânzare prin agent
Regim înălțime: P+3E
Modalitate de plată: Cash sau Credit

Utilități

Izolații termice
Exterior
Facilități imobil
Lift
Utilități
Curent Apă Canalizare CATV Gaze Telefon
Internet
Cablu
Amenajare străzi
Iluminat stradal Mijloace de transport în comun Asfaltate
Comision
0%

Disponibilitate proprietate:

Imediat

Puncte de interes

Mijloace transport
tram-station
Chimopar
Stații tramvai aprox. 346 m
bus-station
Statia Chimopar, N111, 23, 27, 40
Stații autobuz aprox. 351 m
tram-station
Complex RATB Titan
Stații tramvai aprox. 403 m
metro-station
Metrorex.Stația Nicolae Teclu (M3)(2008)
Stații metrou aprox. 513 m
Școală
school
Spectrum Liceul Teoretic International de Informatica
Școli aprox. 903 m
kindergarten
Gradinita nr. 68
Gradinițe aprox. 1313 m
kindergarten
Gradinita Nr. 160
Gradinițe aprox. 1541 m
school
Scoala Nr. 149
Școli aprox. 1566 m
Recreere
supermarket
Metro Pallady
Supermarket aprox. 134 m
hypermarket
Metro
Hipermarket aprox. 134 m
park
Parc
Parcuri aprox. 289 m
sports-ground
Teren de fotbal
Terenuri sport aprox. 1435 m

Detalii despre preț și costuri

Prețul pe piață

Preț cerut: 141.668 €

Preț min. zonă
Preț max. zonă

56% dintre proprietățile similare ca zonă și nr. camere au prețul cerut mai mare. mai multe...

Bine de știut: prețul unei proprietăți este influențat și de alte caracteristici, cum ar fi: vechime, localizare, vecinătăți, suprafață, compartimentare, amenajări, dotări, etc. mai puțin...

Acces la informații premium după autentificare
Login Gratuit

Costuri cu achiziția

Fără credit
Credit ipotecar
Noua casă

i

Costuri adiționale mai puțin știute la achiziție: taxe notariale, comisioane etc.

Acces la informații premium după autentificare
Login Gratuit

Proprietăți similare

Apartament cu 2 camere decomandat în Theodor Pallady
127.655 €
București, Theodor Pallady
2 camere
63,9 mp
Etaj 1
Apartament cu 2 camere decomandat în Theodor Pallady
119.000 €
București, Theodor Pallady
2 camere
49,24 mp
Etaj 2 / 3
Apartament cu 3 camere decomandat în Theodor Pallady
123.622 €
București, Theodor Pallady
3 camere
68,3 mp
Etaj 1 / 10

Detalii de contact

Abonează-te la newsletter să fii primul care primește cele mai noi recomandări de proprietăți și sfaturi de la experți.

CONTACT

Creează alertă

Salvează căutarea ca să primești pe email ultimele anunțuri publicate

Apartamente cu 3 camere de vânzare în zona Theodor Pallady, Sector 3