AP. 3 CAMERE THEODOR PALLADY, BUCATARIE INCHISA, 70 MP, COMISION 0%

140.000 €

Theodor Pallady, București

Nr. cam.:
3
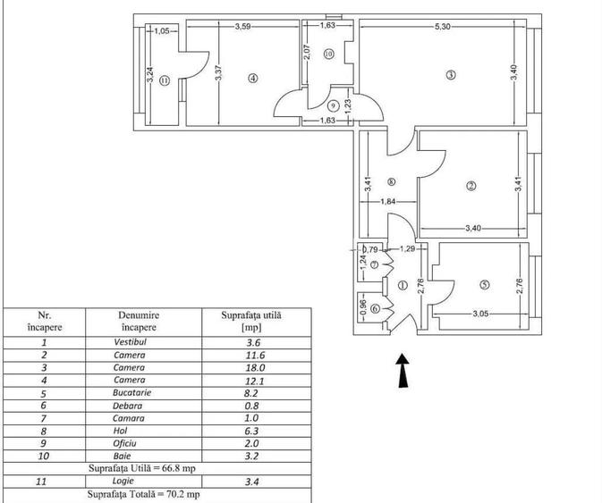
Sup. utilă:
70,2 mp
Etaj:
1 / 10
An constr.:
1974 (Finalizată)
  • • Comision 0%
  • • Locație aproximativă
  • • Vizionare prin apel video

Descriere apartament

AM Imobiliare va prezinta spre vanzare un apartament de 3 camere, semidecomandat, complet mobilat si utilat modern, situat in zona Theodor Pallady, mai exact pe Bulevardul Theodor Pallady. Acesta este amplasat la etajul 1/10, intr-un imobil din anul 1974 si se intinde pe o suprafata utila de 70.2mp, inclusiv 1 balcon de 3.4 mp. Confortul termic este asigurat prin termoficare cu incalzire in calorifere. Bucataria este inchisa. Apartamentul necesita renovare. Pret: 140.000 euro- COMISION 0% Daca doresti mai multe detalii, nu ezita sa ne contactezi, te vom insoti la vizionare si iti vom oferi toate detaliile de care ai nevoie! De asemenea te invit pe site-ul agentiei noastre, , pentru a vedea si alte proprietati pe care le avem in portofoliu.
Citește mai mult Citește mai puțin
Confort 1 Semidecomandat Mobilat 1 Balcon / Terasă / Logie Aer condiționat Calorifere Termoficare Necesită renovare

Detalii apartament

ID anunț: XC2M10G4H Copiat! 275412599 Copiat!
Actualizat în: 12 Aprilie 2026
Suprafață construită: 80.2 mp
Nr. bucătării: 1
Nr. băi: 1
Structură rezistență: Beton
Tip imobil: Bloc de apartamente
Regim înălțime: P+10E

Utilități

Destinație
Rezidențial
Pereți
Faianță Vopsea lavabilă
Podele
Gresie Parchet
Ușă intrare
Metal
Uși interior
Celulare
Izolații termice
Exterior
Ferestre cu geam termopan
PVC
Contorizare
Apometre Contor căldură Contor gaz
Bucătărie
Mobilată Utilată
Electrocasnice
Aragaz Frigider TV
Diverse
Senzor de fum
Facilități imobil
Acoperiș Interfon Lift
Utilități
Curent Apă Canalizare CATV Gaze Telefon
Internet
Cablu Wireless
Servicii imobil
Supraveghere video
Amenajare străzi
Iluminat stradal Mijloace de transport în comun Asfaltate
Comision
0%

Disponibilitate proprietate:

Imediat

Puncte de interes

Mijloace transport
tram-station
Piata Titan
Stații tramvai aprox. 441 m
bus-station
Statia Dumbrava Noua, Liniile N111, N103, 23, 27
Stații autobuz aprox. 443 m
metro-station
Statia Nicolae Grigorescu 2, LiniaM3
Stații metrou aprox. 570 m
trolleybus-station
statie troleu 70,92,79 (en)
Stații troleibuz aprox. 1698 m
Școală
school
Scoala Generala nr 112
Școli aprox. 224 m
kindergarten
Gradinita
Gradinițe aprox. 233 m
kindergarten
Gradinita Nr. 66
Gradinițe aprox. 234 m
school
Scoala generala nr 112 "Titan"
Școli aprox. 248 m
Recreere
park
Parc
Parcuri aprox. 183 m
supermarket
BILLA - Titan
Supermarket aprox. 217 m
restaurant
Terasa Cara
Restaurant aprox. 281 m
sports-ground
Teren Sintetic
Terenuri sport aprox. 319 m

Detalii despre preț și costuri

Prețul pe piață

Preț cerut: 140.000 €

Preț min. zonă
Preț max. zonă

71% dintre proprietățile similare ca zonă și nr. camere au prețul cerut mai mic. mai multe...

Bine de știut: prețul unei proprietăți este influențat și de alte caracteristici, cum ar fi: vechime, localizare, vecinătăți, suprafață, compartimentare, amenajări, dotări, etc. mai puțin...

Insight premium disponibil după login

Costuri cu achiziția

Fără credit
Credit ipotecar
Noua casă

i

Costuri adiționale mai puțin știute la achiziție: taxe notariale, comisioane etc.

Insight premium disponibil după login

Proprietăți similare

Apartament cu 2 camere decomandat în Theodor Pallady
130.000 € + TVA
București, Theodor Pallady
2 camere
71,2 mp
Etaj 8 / 8
Apartament cu 2 camere decomandat, mobilat în Theodor Pallady
140.000 €
București, Theodor Pallady
2 camere
53 mp
Etaj 2 / 3
Apartament cu 2 camere decomandat, mobilat în Theodor Pallady
127.500 €
București, Theodor Pallady
2 camere
53 mp
Etaj 11 / 11

Detalii de contact

AM IMOBILIARE

Mihaela Mariuta Manager

4.55(23 review-uri)

AM IMOBILIARE
PRO

Abonează-te la newsletter să fii primul care primește cele mai noi recomandări de proprietăți și sfaturi de la experți.

CONTACT

Creează alertă

Salvează căutarea ca să primești pe email ultimele anunțuri publicate

Apartamente cu 3 camere de vânzare în zona Theodor Pallady, Sector 3