Apartament 3 camere Titan - langa parc IOR - 3 min

123.000 €

Titan, București

Nr. cam.:
3
Sup. utilă:
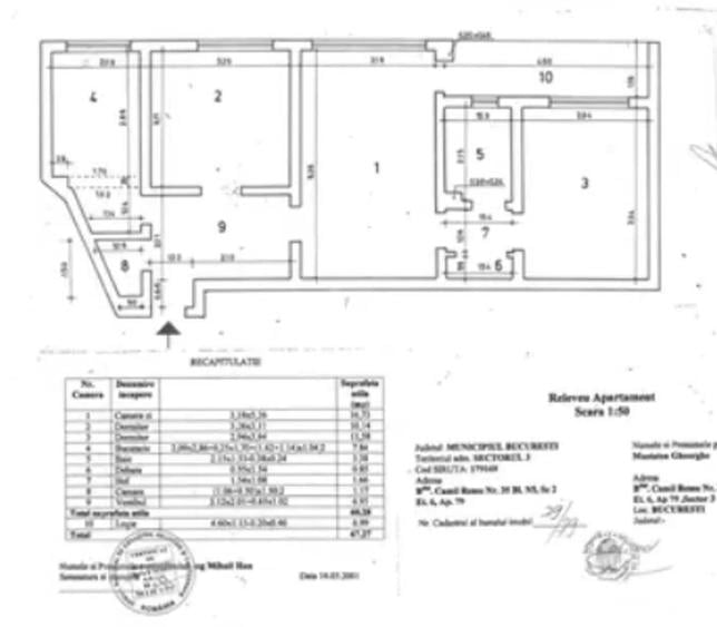
68 mp
Etaj:
6
An constr.:
1967
  • • Comision 0%
  • • Locație aproximativă

Descriere apartament

Construit în 1967, bloc din cărămidă și beton ,la 3 minute de Parcul IOR și Mall Park Lake. Metrou Dristor la 8 minute de mers pe jos Apartamentul se vinde mobilat si utilat , doua aparate de aer condiționat. Dacă nu doriți mobilat se eliberează! Fara Risc Seismic Comision 0%
Citește mai mult Citește mai puțin

Detalii apartament

ID anunț: XE2T0006L Copiat! 275073716 Copiat!
Actualizat în: 23 Februarie 2026
Tip imobil: Bloc de apartamente
Regim înălțime: P+10E

Utilități

Comision
0%

Puncte de interes

Mijloace transport
tram-station
statia de tramvai voluntarilor
Stații tramvai aprox. 127 m
bus-station
statia Fizicienilor, linia 330, N103, 23, 27.
Stații autobuz aprox. 327 m
metro-station
Metrorex.Stația Dristor 1 (M1) , (M3)(1981)
Stații metrou aprox. 850 m
trolleybus-station
statie troleu 70,92,79 (en)
Stații troleibuz aprox. 1389 m
Școală
school
Scoala 88
Școli aprox. 171 m
school
Gradinita Nr. 38
Școli aprox. 230 m
kindergarten
Gradinita nr.3
Gradinițe aprox. 287 m
university
Universitatea "Gheorghe Cristea"
Universități aprox. 1121 m
Recreere
park
Parc
Parcuri aprox. 270 m
supermarket
Supermarket
Supermarket aprox. 284 m
sports-ground
Teren sportiv
Terenuri sport aprox. 296 m
public-square
Piata Hurmuzachi / Piata Muncii (fosta Bariera Vergului)
Piețe publice aprox. 1943 m

Detalii despre preț și costuri

Prețul pe piață

Preț cerut: 123.000 €

Preț min. zonă 93.000 €
Preț max. zonă 199.000 €

53% dintre proprietățile similare ca zonă și nr. camere au prețul cerut mai mic. mai multe...

Bine de știut: prețul unei proprietăți este influențat și de alte caracteristici, cum ar fi: vechime, localizare, vecinătăți, suprafață, compartimentare, amenajări, dotări, etc. mai puțin...

Costuri cu achiziția

Fără credit
7.125 RON
Credit ipotecar
8.760 RON
Noua casă
767 RON+ taxe notariale

i

Costuri adiționale mai puțin știute la achiziție: taxe notariale, comisioane etc.

Proprietăți recomandate

Detalii de contact

NOVOLAR

David Tudorache Consultant

NOVOLAR

Abonează-te la newsletter să fii primul care primește cele mai noi recomandări de proprietăți și sfaturi de la experți.

CONTACT

Creează alertă

Salvează căutarea ca să primești pe email ultimele anunțuri publicate

Apartamente cu 3 camere de vânzare în zona Titan, Sector 3