1

Apartament de 3 camere Titan Parc Scoala 88 Camil Ressu

123.900 €

Titan, București

Nr. cam.:
3
Sup. utilă:
67 mp
Etaj:
6
An constr.:
1966
  • • Locație aproximativă
  • • Vizionare prin apel video

Descriere apartament

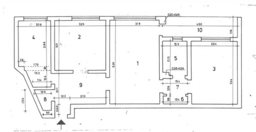
ID intern: 366157 Va propunem spre vanzare un apartament cu 3 camere, semidecomandat, confort 1 sporit, situat in zona Titan, reper Parc IOR, Scoala 88, Piata Matei Ambrozie, intr-un imobil construit in anul 1966, disponibil la etajul 6 din 10, cu o suprafata de 67 mp, baie, balcon, bucatarie. Imobilul este situat in apropiere de piata, statie STB, scoli, gradinita. Vizionarea acestui imobil se face doar în baza semnării unui acord de vizionare conform codului civil, art 2.096-2.102 . Acordam indrumare in vederea acordarii unui credit bancar (BRD, FIRST BANK, ALPHA BANK, PATRIA BANK, BANCA TRANSILVANIA) Se percepe comision 2%. Politica agentiei este de a optimiza negocierea pretului in raport cu comisionul.
Citește mai mult Citește mai puțin
Confort 1 Semidecomandat 1 Balcon / Terasă / Logie Aer condiționat Termoficare

Detalii apartament

ID anunț: X9I6201IL Copiat! 275253226 Copiat!
Actualizat în: 11 Martie 2026
Suprafață utilă totală: 67 mp
Suprafață construită: 80 mp
Nr. băi: 1
Structură rezistență: Beton
Tip imobil: Bloc de apartamente
Regim înălțime: P+10E

Utilități

Destinație
Rezidențial
Pereți
Faianță Vopsea lavabilă
Podele
Parchet Gresie
Ușă intrare
Metal
Izolații termice
Exterior
Ferestre cu geam termopan
PVC
Bucătărie
Utilată Mobilată
Electrocasnice
Aragaz Hotă Frigider TV Hotă Mașină de spălat
Diverse
Senzor de fum
Facilități imobil
Lift
Utilități
Apă Curent Gaze Canalizare CATV
Internet
Cablu Fibră optică Wireless
Servicii imobil
Menaj Administrare
Amenajare străzi
Asfaltate
Comision
2%

Certificat energetic:

Clasa energetică: B

Vecinătăți:

Scoala/gradinita, Centru universitar, Restaurant/pub, Mall, Parc, Hotel, Piata, Benzinarie, Trafic Pietonal, Fastfood, Cinema, Supermarket, Banca, Zona comerciala, Autobuz, Metrou

Puncte de interes

Mijloace transport
tram-station
statia de tramvai voluntarilor
Stații tramvai aprox. 176 m
bus-station
statia Fizicienilor, linia 330, N103, 23, 27.
Stații autobuz aprox. 398 m
metro-station
Metrorex.Stația Dristor 1 (M1) , (M3)(1981)
Stații metrou aprox. 826 m
trolleybus-station
statie troleu 70,92,79 (en)
Stații troleibuz aprox. 1306 m
Școală
school
Scoala 88
Școli aprox. 88 m
school
Gradinita Nr. 38
Școli aprox. 165 m
kindergarten
Gradinita nr.3
Gradinițe aprox. 362 m
university
Universitatea "Gheorghe Cristea"
Universități aprox. 1196 m
Recreere
park
Parc
Parcuri aprox. 195 m
sports-ground
Teren sportiv
Terenuri sport aprox. 272 m
supermarket
Supermarket
Supermarket aprox. 336 m
public-square
Piata Hurmuzachi / Piata Muncii (fosta Bariera Vergului)
Piețe publice aprox. 1869 m

Detalii despre preț și costuri

Prețul pe piață

Preț cerut: 123.900 €

Preț min. zonă 93.000 €
Preț max. zonă 199.000 €

57% dintre proprietățile similare ca zonă și nr. camere au prețul cerut mai mic. mai multe...

Bine de știut: prețul unei proprietăți este influențat și de alte caracteristici, cum ar fi: vechime, localizare, vecinătăți, suprafață, compartimentare, amenajări, dotări, etc. mai puțin...

Costuri cu achiziția

Fără credit
19.781 RON
Credit ipotecar
21.419 RON
Noua casă
771 RON+ taxe notariale

i

Costuri adiționale mai puțin știute la achiziție: taxe notariale, comisioane etc.

Proprietăți similare

Apartament cu 3 camere semidecomandat în Titan
117.000 €
București, Titan
3 camere
69 mp
Etaj 6 / 9
Apartament cu 3 camere circular în Titan
126.000 €
București, Titan
3 camere
60,5 mp
Etaj 7 / 10
Apartament cu 2 camere semidecomandat în Titan
119.900 €
București, Titan
2 camere
47,24 mp
Etaj 10

Detalii de contact

CR Imobiliare

Marius Mandica Broker imobiliar

5.00(3 review-uri)

CR Imobiliare
PRO

Abonează-te la newsletter să fii primul care primește cele mai noi recomandări de proprietăți și sfaturi de la experți.

CONTACT

Creează alertă

Salvează căutarea ca să primești pe email ultimele anunțuri publicate

Apartamente cu 3 camere de vânzare în zona Titan, Sector 3