2

Tribunal Bulevardul Unirii 2 camere 147 mp 60 utili terasa 6 mp curte 81 mp 2025

387.200 €

Unirii, București

Nr. cam.:
2
Sup. utilă:
66 mp
Etaj:
Parter / 3
An constr.:
2025 (Finalizată)
  • • Comision 0%
  • • Exclusivitate
  • • Locație exactă

Descriere apartament

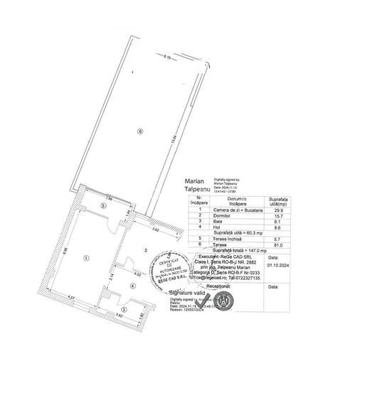
Va propunem spre vanzare un apartament de 2 camere, pozitionat in proximitatea Bulevardului Unirii. Imobilul a fost receptionat in 2025, are un regim de inaltime de S+P+3 etaje + 4 retras, compus dintr-un corp de constructie cu 3 scari de acces si 40 apartamente. Acesta dispune de parcare subterana, adapost ala si o curte generoasa pentru locatari. Apartamentul de 2 camere este pozitional la parter, are o suprafata desfasurata de 147 mp distribuiti astfel: suprafata utila apartament 60 mp, terasa inchisa 6 mp si curte de 81 mp. Acesta dispune de finisaje premium, incalzire in pardoseala, centrala termica Buderus, video interfon, usi Nusco, sanitare si robinarie Roca. Disponibilitate loc de parcare in subteran. Pentru detalii sau programarea unei vizionari va stau la dispozitie.
Citește mai mult Citește mai puțin
Confort 1 Decomandat 1 Balcon / Terasă / Logie 1 Parcare 1 Garaj

Detalii apartament

ID anunț: XCRT100P7 Copiat! 275032923 Copiat!
Actualizat în: 16 Martie 2026
Suprafață construită: 170 mp
Nr. bucătării: 1
Nr. băi: 1
Structură rezistență: Beton
Tip imobil: Bloc de apartamente
Tip tranzacție: De vânzare prin agent
Regim înălțime: S+P+3E
Nr. terase: 1
Modalitate de plată: Cash sau Credit

Utilități

Alte spații utile
Terasă
Utilități
Curent Apă Canalizare CATV Gaze Telefon
Internet
Cablu
Amenajare străzi
Iluminat stradal Mijloace de transport în comun Asfaltate
Comision
0%

Vecinătăți:

Tribunalul Bucuresti
Bulevardul Unirii
Cartierul Evreiesc

Disponibilitate proprietate:

Imediat

Puncte de interes

Mijloace transport
tram-station
Nerva Traian
Stații tramvai aprox. 497 m
bus-station
Sf. Vineri, terminal linii:40, 55, 56, 385
Stații autobuz aprox. 577 m
metro-station
Piata Unirii 2
Stații metrou aprox. 793 m
trolleybus-station
Statia Foisorul de Foc linii : 79,86
Stații troleibuz aprox. 1547 m
Școală
school
Colegiul National "Matei Basarab"
Școli aprox. 289 m
school
Scoala cu clasele I-VIII, Nr. 73 Barbu Stefanescu Delavrancea
Școli aprox. 358 m
university
Institutul Bancar Român
Universități aprox. 467 m
kindergarten
Gradinita Barba Cot
Gradinițe aprox. 848 m
Recreere
park
Parc
Parcuri aprox. 95 m
sports-ground
Teren sportiv
Terenuri sport aprox. 274 m
supermarket
Magazin Mixt
Supermarket aprox. 378 m
mall
Bucharest, Calea Vitan nr. 8, Bl V51, near VITAN Mall
Mall aprox. 950 m

Detalii despre preț și costuri

Prețul pe piață

Preț cerut: 387.200 €

Preț min. zonă
Preț max. zonă

i

Proprietate cu prețul cerut în afara intervalului mai multe...

Posibile explicații pentru faptul că prețul proprietății este peste cel maxim: imobil nou cu suprafață mare, are dotări și finisaje de lux.
Bine de știut: prețul unei proprietăți este influențat și de alte caracteristici, cum ar fi: vechime, localizare, vecinătăți, suprafață, compartimentare, amenajări, dotări, etc.
Acces la informații premium după autentificare
Login Gratuit

Costuri cu achiziția

Fără credit
Credit ipotecar
Noua casă

i

Costuri adiționale mai puțin știute la achiziție: taxe notariale, comisioane etc.

Acces la informații premium după autentificare
Login Gratuit

Proprietăți similare

Apartament cu 3 camere decomandat în Unirii
289.000 €
București, Unirii
3 camere
74 mp
Etaj 1 / 8
Apartament cu 3 camere decomandat în Unirii
302.887 €
București, Unirii
3 camere
74,5 mp
Etaj 2
Apartament cu 2 camere semidecomandat în Unirii
308.550 €
București, Unirii
2 camere
69,5 mp
Etaj 2 / 11

Detalii de contact

GOPO REAL ESTATE

Paul Gaitan Sales Manager

GOPO REAL ESTATE
PRO

Abonează-te la newsletter să fii primul care primește cele mai noi recomandări de proprietăți și sfaturi de la experți.

CONTACT

Creează alertă

Salvează căutarea ca să primești pe email ultimele anunțuri publicate

Apartamente noi cu 2 camere de vânzare în zona Unirii, Sector 3