ZECE este un complex modern de apartamente situat pe Strada Anton Pann nr. 33, in apropiere de Bulevardul Unirii, Bdul Micea Voda, Bdul Nerva Traian, Piata Alba Iulia, Piata Unirii, Tribunalul Bucuresti si Biblioteca Nationala.
Conceptul ZECE are in spate o echipa cu experienta in zona imobiliara orientata dupa un singur criteriu: excelenta. Lucram cu materiale de cea mai buna calitate si cele mai noi tehnologii de constructie astfel incat sa livram rezultate peste asteptari.
Proiectul a fost finalizat in Iunie 2025, iar ca dotari dispune de:
- structura solida din beton armat,
- compartimentari interioare din caramida tip Porotherm,
- ferestre aluminiu Schuco Germany cu stricla tripan,
- usi interior Filomuro, usi intrare metalice Dierre Italy,
- incalzire in pardoseala Uponor Finland,
- centrala de apartament Viessmann Germany cu termostat de ambient,
- aer conditionat Dainkin Japan cu thermostat de ambient,
- parchet triplustratificat Barlinek Germany,
- ceramica Refin Italy,
- electrice Schneider French,
- recuperatoare de caldura Noving Air,
- lift Schindler Switzerland
- panouri fotovoltaice pentru spatiile commune, running water LED strip light si cele mai noi tehnologii.
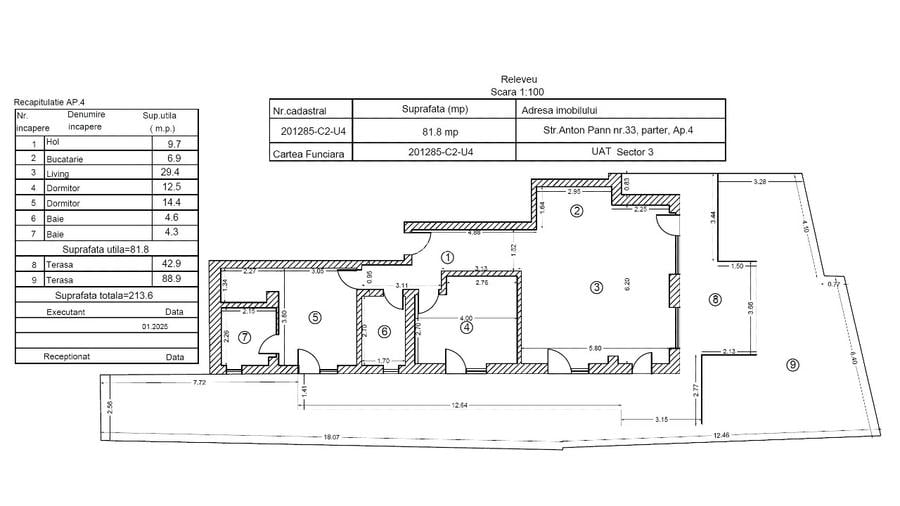
Apartamentul propus are o suprafata utila de 71 mp + terase de 143 mp. Suprafata construita a apartamentului este de 261.85 mp.
La pretul afisat se adauga TVA.
Complexul dispune de locuri de parcare subterane ce nu sunt incluse in pretul apartamentului.
Proiectul nostru ofera acces usor la toate facilitatile si atractiile orasului , facandu-l ideal atat pentru rezidenta , cat si pentru investitii cu randament foarte bun.
Va asteptam la vizionare!
Proprietate cu prețul cerut în afara intervalului mai multe...
Posibile explicații pentru faptul că prețul proprietății este peste cel maxim: imobil nou cu suprafață mare, are dotări și finisaje de lux.
Bine de știut: prețul unei proprietăți este influențat și de alte caracteristici, cum ar fi: vechime, localizare, vecinătăți, suprafață, compartimentare, amenajări, dotări, etc.
Costuri cu achiziția
Fără credit
18.321 RON
Credit ipotecar
21.340 RON
Noua casă
2.429 RON+ taxe notariale
i
Costuri adiționale mai puțin știute la achiziție: taxe notariale, comisioane etc.
Calculul ipotecarului
Proprietăți recomandate
Pornind de la căutarea ta îți recomandăm următoarele anunțuri
Sediul central - Timișoara
Bulevardul Victor Babeș nr. 2, 300230, Timișoara, România
Tel: +40.374.40.44.98 / Fax: +40.256.401.179
Email: suport@imobiliare.ro
Luni - Vineri 08:00 - 20:00
Punct de lucru - București: Iride Business Park, Bld. Dimitrie
Pompeiu 9-9A, Clădirea B2B,
020335, Sector 2, București, România
CONTACT
Sediul central - Timișoara
Bulevardul Victor Babeș nr. 2, 300230, Timișoara, România
Tel: +40.374.40.44.98 / Fax: +40.256.401.179
Email: suport@imobiliare.ro
Luni - Vineri 08:00 - 20:00
Punct de lucru - București: Iride Business Park, Bld. Dimitrie
Pompeiu 9-9A, Clădirea B2B,
020335, Sector 2, București, România
Academia de Studii Economice: Facultatea de Management - Administratie Publica
aprox.
722 m
Facultatea de Teologie Ortodoxa
aprox.
752 m
Facultatea de Chimie
aprox.
1239 m
Facultatea de Stiinte Politice
aprox.
1256 m
Universitatea din Bucuresti - Facultatea de Stiinte Politice
aprox.
1266 m
Facultatea de Istorie
aprox.
1282 m
Facultatea de litere (en)
aprox.
1291 m
Facultatea de Stiinte
aprox.
1300 m
Facultatea de Limbi si Literaturi Straine
aprox.
1313 m
Universitatea Hyperion (en)
aprox.
1329 m
Universitatea Hyperion
aprox.
1336 m
Facultatea de Matematica-Informatica
aprox.
1343 m
UAUIM -Universitatea de Arhitectura si Urbanism Ion Mincu
aprox.
1359 m
Liceul Lauder-Reut
aprox.
366 m
Lauder Reut School Complex (en)
aprox.
367 m
Scoala cu clasele I-VIII, Nr. 73 Barbu Stefanescu Delavrancea
aprox.
420 m
Colegiul National "Matei Basarab"
aprox.
426 m
Liceul Teoretic "Ion Creanga" (en)
aprox.
514 m
Scoala Nr. 79 (en)
aprox.
540 m
Scoala nr. 79
aprox.
540 m
institutul Irecson
aprox.
726 m
Grupul Scolar Industrial Unirea (en)
aprox.
755 m
Scoala Superioara Comerciala Nicolae Kretzulescu
aprox.
756 m
Scoala generala nr. 81
aprox.
765 m
Scoala Generala nr.81
aprox.
765 m
Grupul Scolar Industrial Unirea
aprox.
767 m
Școala 81
aprox.
770 m
Centrul Educational IBSEN
aprox.
859 m
Gradinita Barba Cot
aprox.
595 m
Cresa Micii Poznasi
aprox.
716 m
Gradinita de Copii nr.30 "Copiii soarelui
aprox.
987 m
Gradinita "Scufita Rosie"
aprox.
995 m
Gradinita Prikindel
aprox.
1010 m
Gradinita nr.192, "Pisicile Aristocrate"
aprox.
1123 m
Gradinita nr. 192 (Pisicile aristocrate)
aprox.
1132 m
Gradinita Plusica
aprox.
1156 m
Gradinita Magica
aprox.
1282 m
Gradinita (progr. prelungit) Aleea Borcea - Str. Ruginoasa
aprox.
1343 m
Gradinita nr.4 "Lizuca"
aprox.
1409 m
Gradinita nr.224, "Vestitorii Primaverii"
aprox.
1483 m
Gradinita nr. 224
aprox.
1488 m
Gradinita cu program prelungit Copiii Soarelui
aprox.
1495 m
Gradinita
aprox.
1534 m
Km 0
aprox.
445 m
MGV Supermarket Zeno
aprox.
447 m
Carrefour Unirii
aprox.
459 m
ClicMarket
aprox.
470 m
Carrefour Unirii Non-Stop
aprox.
479 m
Mega Image
aprox.
579 m
Magazin Mixt
aprox.
645 m
BILLA - Cocor
aprox.
646 m
Cocor
aprox.
660 m
Supermarket Sinbad
aprox.
749 m
Shop & Go
aprox.
754 m
Mega Image - Apahida
aprox.
763 m
MGV Green Expres
aprox.
789 m
Supermarket Fonzi
aprox.
807 m
dm
aprox.
808 m
Bucharest, Calea Vitan nr. 8, Bl V51, near VITAN Mall
aprox.
1110 m
Parcare
aprox.
39 m
Parcare
aprox.
56 m
Parcare
aprox.
128 m
Parcare
aprox.
158 m
Parcarea Bibliotecii Nationale
aprox.
160 m
Parcare
aprox.
192 m
Parcare
aprox.
228 m
Parcare
aprox.
263 m
Parcare
aprox.
291 m
Parcare
aprox.
319 m
Parcare
aprox.
337 m
Parcare
aprox.
337 m
Parcare
aprox.
353 m
Parcare
aprox.
359 m
Parcare
aprox.
364 m
Parc
aprox.
19 m
Parc
aprox.
34 m
Parc
aprox.
55 m
Parc
aprox.
65 m
Parc
aprox.
105 m
Parc
aprox.
122 m
Parc
aprox.
128 m
Parc
aprox.
155 m
Parc
aprox.
162 m
Parc
aprox.
191 m
Parc
aprox.
200 m
Parc
aprox.
238 m
Parc
aprox.
266 m
Parc
aprox.
296 m
Parc
aprox.
303 m
Teren sportiv
aprox.
433 m
Teren sportiv
aprox.
436 m
Teren sportiv
aprox.
1178 m
Teren sportiv
aprox.
1185 m
Teren sportiv
aprox.
1217 m
Teren sportiv
aprox.
1725 m
Teren sportiv
aprox.
1841 m
Teren sportiv
aprox.
1903 m
Teren sportiv
aprox.
1916 m
Teren sportiv
aprox.
1919 m
Teren sportiv
aprox.
1987 m
Piata Bucur
aprox.
635 m
Piata Timpului
aprox.
712 m
Piața Sfântul Anton
aprox.
761 m
Piata Bibescu
aprox.
802 m
Piata Roma
aprox.
839 m
Piata Rosetti
aprox.
1125 m
Piata Natiunilor Unite
aprox.
1228 m
Piata Universitatii
aprox.
1239 m
Piata Latina
aprox.
1284 m
Piața Drapelului (Tricolorului)
aprox.
1403 m
Piața Constituției
aprox.
1542 m
Piața Regina Maria
aprox.
1739 m
Piata Revolutiei
aprox.
1750 m
Spectrum Clinique - Clinica de Oftalmologie
aprox.
197 m
Spitalul Prof. Dr. C. Angelescu
aprox.
234 m
Spitalul Prof. Dr. C-Tin Angelescu
aprox.
253 m
Clinica de Stomatologie
aprox.
256 m
Clinica Sentisan. .sentisan.ro (en)
aprox.
434 m
Medident Dental X-ray
aprox.
529 m
MediDent
aprox.
538 m
Art Implant
aprox.
550 m
Maternitatea Bucur
aprox.
589 m
Spitalul Caritas (en)
aprox.
600 m
Clinica Polisano
aprox.
616 m
Clinica Audionova
aprox.
641 m
Medlife Unirii
aprox.
666 m
WORLD CLINIC - O viata fara alergii ! (en)
aprox.
688 m
Medicover (en)
aprox.
720 m
Sensiblu
aprox.
469 m
Farmacia Farmadex
aprox.
481 m
Farmacia Kaiser
aprox.
535 m
Farmacia Dona
aprox.
540 m
2NA Farm
aprox.
620 m
Farmacia Dona 19
aprox.
641 m
Farmacia 2NA
aprox.
670 m
Farmacie
aprox.
728 m
Alma Farm Com 95
aprox.
729 m
Simidon
aprox.
751 m
Help Net
aprox.
762 m
Farmacia Belladonna 54
aprox.
827 m
Farmacia 20
aprox.
851 m
Farmacia 48
aprox.
855 m
Farmacia Denis
aprox.
958 m
Bar
aprox.
195 m
BarFly
aprox.
291 m
Pe baricade
aprox.
343 m
Nargila Grill&Bar
aprox.
668 m
City Grill Covaci
aprox.
782 m
Vecchio
aprox.
783 m
Network Lounge
aprox.
789 m
Sankt Petersburg Pub
aprox.
834 m
Up Club
aprox.
841 m
1974 Niste Domni si Fiii
aprox.
860 m
Pure
aprox.
866 m
Beraria Bavareza Fritz
aprox.
873 m
The Glam Club
aprox.
877 m
The Elbow Room
aprox.
880 m
Harley
aprox.
881 m
Beraria Berestoika
aprox.
210 m
Pizzeria Classic
aprox.
410 m
The Harp
aprox.
629 m
Manasia Hub
aprox.
661 m
La Scena
aprox.
695 m
Kulturhaus
aprox.
734 m
Atelierul Mecanic
aprox.
815 m
Mojo
aprox.
840 m
Elephant Pub
aprox.
846 m
Offside Pub
aprox.
853 m
Half Time
aprox.
866 m
100 de beri
aprox.
867 m
Fire Club
aprox.
878 m
Mike`s Pub
aprox.
899 m
Geobar
aprox.
899 m
Monna Lisa
aprox.
257 m
Restaurant Sole
aprox.
270 m
noul Barfly
aprox.
293 m
Pizzerie si Restaurant Classic
aprox.
385 m
Restaurant Classic
aprox.
387 m
Fabrica De Mancare
aprox.
409 m
Mc'Donalds
aprox.
508 m
KFC
aprox.
508 m
McDonald's
aprox.
572 m
KFC
aprox.
573 m
Restaurant "Eden" (en)
aprox.
576 m
Corner
aprox.
578 m
Pitta Fan
aprox.
582 m
Restaurantul Horoscop
aprox.
590 m
Lunch Time
aprox.
615 m
Bistro 33 Cafe
aprox.
273 m
Zebra Caffe
aprox.
411 m
Art Caffe
aprox.
548 m
Adior Cafe lounge
aprox.
575 m
gloria jeans coffee
aprox.
700 m
Maroon Caffe
aprox.
737 m
Miau
aprox.
775 m
Testa Rossa Caffebar
aprox.
782 m
Starbucks
aprox.
786 m
ART Cafe
aprox.
795 m
The Urbanist
aprox.
796 m
Tucano Cofee
aprox.
860 m
Quartier
aprox.
890 m
La delicii
aprox.
892 m
Bruno wine and coffe shop
aprox.
899 m
BCR
aprox.
112 m
BRD Unirea
aprox.
123 m
Banca Romaneasca
aprox.
162 m
Banca Comerciala Feroviara
aprox.
284 m
UniCredit Bank - Ag. Unirii
aprox.
440 m
CEC
aprox.
450 m
Banca Italo Romena
aprox.
506 m
Raiffeisen Bank
aprox.
512 m
Banca Romaneasca
aprox.
514 m
Alpha Bank
aprox.
516 m
Bancpost
aprox.
519 m
Piraeus Bank Romania - Agentia Unirea Splai
aprox.
522 m
Bank of Cyprus
aprox.
525 m
OTP Bank
aprox.
525 m
ING Unirii
aprox.
531 m
Stațiile de metrou aflate chiar în "inima" acestei zone, în Piața Unirii, îți oferă posibilitatea de a călători rapid, evitând aglomerația din trafic. Stația Piața Unirii 1 oferă conexiuni la magistrala M1 Dristor - Pantelimon și la magistrala M3 Preciziei - Anghel Saligny. Aceasta este conectată de stația Piața Unirii 2, aflată pe magistrala M2 Berceni - Pipera printr-un pasaj. Astfel, poți ajunge chiar și în mai puțin de 10 minute în zona Politehnică sau la Piața Victoriei și în circa 15 minute în Pipera, unul dintre principalii poli de business ai orașului. Cu autobuzul 104 poți ajunge în cartierul Pantelimon, iar cu tramvaiul 47 în cartierul Rahova. Consultă harta pentru a localiza stațiile mijloacelor de transport în comun.
Printre unitățile de învățământ din această zonă se numără Colegiul Național "Mihai Eminescu", Colegiul Național "Ion Creangă", Colegiul Național de Arte "Dinu Lipatti" și Facultatea de Teologie Ortodoxă "Justinian Patriarhul". Tot aici își are sediul și Institutul Bancar Român care ajută la specializarea personalului din sectorul financiar-bancar. Ajungi foarte repede din Piața Unirii, chiar și pe jos, la Palatul Universității care găzduiește sediile mai multor facultăți. Găsește pe hartă și cele mai apropiate grădinițe, școli și licee de viitoarea ta locuință.
Dacă te vei muta în această zonă, vei avea la doi pași de casă centrul comercial Unirea Shopping Center, care găzduiește, printre altele, magazinele mai multor branduri de modă. În spatele acestuia vei găsi un hipermarket Carrefour. Diverse magazine pot fi găsite și în Centrul Vechi. Pe Strada Lipscani poți să vizitezi una dintre cele mai frumoase librării din Capitală, Cărturești Carusel. Magazin Cocor, care a fost modernizat recent, poate fi și el o alternativă. În imediata sa vecinătate se află și noul magazin București. Pentru mai multe opțiuni, poți merge la București Mall, cel mai apropiat centru comercial de acest tip. Consultă harta pentru a vedea ce alte opțiuni ai în zona Unirii și în împrejurimi.
Lângă Centrul Comercial Unirea Shopping Center vei găsi o parcare supraterană unde îți poți lăsa mașina contra-cost. Dacă te gândești să te muți în zona Piața Unirii îți amintim, de asemenea, că traficul pe Bulevardul Unirii este destul de îngreunat la orele de vârf. Nu uita, totodată, că traficul rutier este închis uneori în Piața Constituției pentru organizarea unor evenimente și concerte. Pentru închirierea unui loc de parcare în apropierea locuinței de care ești interesat va trebui să apelezi la reprezentanții autorităților locale de pe sectorului în care se află aceasta (Direcția Generală Impozite și Taxe Locale Sector 3, Direcția Mobilitate Urbană Sector 4, Serviciul Parcaje Scop Reședință Sector 5). Consultă harta pentru a localiza mai ușor principalele parcări din zona Unirii.
Dacă decizi să te muți într-o locuință în zona Unirii, atunci vei avea la dispoziție numeroase opțiuni de petrecere a timpului liber. Chiar în Piața Unirii vei găsi unul dintre binecunoscutele obiective ale orașului, Hanul lui Manuc. Construit în 1808 acesta a fost renovat în urmă cu câțiva ani și găzduiește, în prezent, mai multe cafenele, restaurante și mici magazine. Acesta se află chiar la marginea Centrului Vechi al Capitalei, principalul punct de atracție pentru iubitorii vieții de noapte. Tot aici găsești și câteva obiective turistice importante - Palatul Voievodal Curtea Veche, Palatul BNR, Muzeul Național de Istorie a României și Muzeul Municipal București. Parcurile Izvor și Unirii sunt principalele spații verzi din această zonă. Nu trebuie să uiți însă că nu va trebui să mergi mult pentru a ajunge și la Grădina Cișmigiu sau în Parcul Tineretului. Poți merge, totodată, la un spectacol la Teatrul Evreiesc de Stat sau poți participa la evenimentele și la concertele care se organizează periodic în Piața Constituției de lângă Palatul Parlamentului. Poți lua parte la diverse evenimente și vizitând Biblioteca Națională a României, o altă clădire reprezentativă din această zonă. Ajungi foarte ușor, pe jos sau cu metroul, la Teatrul Național București în fața căruia găsești și un mic parc. Iar dacă toate acestea nu sunt de ajuns, atunci o plimbare pe Calea Victoriei și o vizită la numeroasele obiective de interes aflate de-a lungul ei cu siguranță te vor satisface. Cea mai bună parte este că această arteră de circulație se închide circulației rutiere uneori și devine strict pietonală. În plus, aici ai la dispoziție una dintre puținele piste dedicate bicicliștilor din oraș. Consultă harta pentru a vedea ce alte opțiuni de petrecere a timpului liber vei avea odată ce te vei muta în zona Unirii.
Dacă te vei muta în această zonă, vei putea apela în caz de nevoie la câteva clinici private. Printre acestea amintim Hiperclinica MedLife Unirii, clinica de stomatologie DentaLife și Medas Unirea. Unele dintre cele mai apropiate spitale la care vei avea acces vor fi Spitalul Cinic Colțea din Piața Universității și Spitalul Clinic Prof. Dr. Theodor Burghele, aflat în apropierea Palatului Parlamentului. Vezi pe hartă ce alte unități medicale se află în zona Unirii și în vecinătatea sa.
Centrul Vechi îți oferă numeroase opțiuni la acest capitol, iar câteva fast food-uri ai la dispoziție la parterul centrului comercial Unirea Shopping Center, situat chiar în Piața Unirii. Găsești câteva terase și pe malul Dâmboviței, lângă Biblioteca Națională a României. Dacă vrei să schimbi peisajul, poți să ajungi destul de repede cu mașina sau cu mijloacele de transport în comun la București Mall sau poți încerca una dintre numeroasele terase din Piața Alba Iulia sau de pe Bulevardul Decebal. Mai mult, ai relativ aproape și Calea Victoriei, perfectă pentru promenadă, dar și pentru un popas la restaurant. Consultă harta și află care sunt cele mai apropiate localuri de viitoarea ta locuință.
Găsești mai multe ATM-uri și sucursale bancare în Piața Unirii, unele dintre ele chiar în incinta complexului comercial Unirea Shopping Center. Vezi care este cel mai potrivit pentru tine de pe hartă.
Înainte să pleci...
Ești sigur că ai văzut și aceste proprietăți?
367.000 €
București, Unirii
3 camere
84 mp
Etaj 5
449.214 €
București, Unirii
3 camere
88 mp
Etaj 4
413.506 € + TVA
București, Unirii
3 camere
162 mp
Etaj 1 / 11
449.850 €
București, Unirii
3 camere
84 mp
Etaj 2
343.805 € + TVA
București, Unirii
3 camere
130 mp
Etaj 1 / 11
390.000 €
București, Unirii
3 camere
149 mp
Etaj 2
Creează alertă
Salvează căutarea ca să primești pe email ultimele anunțuri publicate
Apartamente noi cu 3 camere de vânzare în zona Unirii, Sector 3
Cere detalii prin email
*
*
*
*
Detaliile tale de contact vor fi partajate cu Zece
Statistici proprietate
Apartamente 3 camere de vânzare
- București
- Zona Unirii
Asigurare de viață/lună Costul este variabil. În funcție de banca aleasă, procentul variază între 0.0259% și 0.035% din soldul creditului.
Costuri cu achiziția21.340 RON
Comision agenție Întreabă agenţia
Onorariu notarial14.888 RON
Taxă întabulare OCPI3.433 RON
Autentificare contract credit3.019 RON
Preț de achiziție2.288.769 RON
Preț locuință2.288.769 RON
TVA 0%Inclus în prețul cerut
Preț de achiziție2.288.769 RON
Preț locuință2.288.769 RON
TVA 0%
Inclus în prețul cerut
Avans minim1.682.453 RON
Credit pe 30 de ani606.317 RON
Cost achitat în prima lună
Taxa evaluare imobil(până la)
575 RON
Rata lunară (variabilă)4.260 RON
Depozit colateral12.780 RON
Comision de garantare FNGCIMM191 RON
Asigurare anuală imobil2.289 RON
Poliță PAD130 RON
Tarif arhivă electronică102 RON
Costuri adiționale2.429 RON + taxe notariale
Asigurare viață și complexă (opțională)Costul este variabil. În funcție de banca aleasă, procentul variază între 0.0259% și 0.035% din soldul creditului
Onorariu notarialconform tarif notarial
Taxă întabulare OCPI2.429 RON
i
Toate valorile de mai sus sunt estimative și nu reprezintă în mod obligatoriu costurile exacte pe care le veți primi de la companiile/instituțiile prin care veți încheia tranzacția.