1

Apartament 3 camere - 3 minute de metrou - Unirii - U3

170.000 €

Unirii, București

Nr. cam.:
3
Sup. utilă:
68,4 mp
Etaj:
1 / 5
An constr.:
1935 (Finalizată)
  • • Locație aproximativă

Descriere apartament

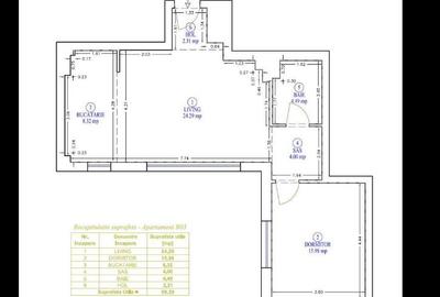
COD PROPRIETATE: P38230 Agentia VAULT ESTATE va prezinta un apartament cu 3 camere, de vanzare, tip compartimentare semidecomandat, situat in zona Unirii din Bucuresti. Proprietatea este amplasata intr-un imobil de tip bloc, construit in anul 1935, la etajul 1/5. Dispune de o suprafata totala de . Utilitati generale: curent electric, apa, canalizare, gaz, catv, telefon, acces internet, fibra optica Sistem de incalzire: centrala proprie, calorifere Daca zona si caracteristicile acestui apartament se aliniaza nevoilor dumneavoastra, va invitam sa ne contactati pentru mai multe detalii si pentru a programa o vizionare. Beneficiile colaborarii cu Vault Estate: • Succesul incepe cu alegerile inteligente. Doar pentru ca ne-ati contactat, aveti acces GRATUIT la sprijinul unui expert financiar, indiferent daca achizitionati prin noi, prin alta agentie sau pe cont propriu. • Va oferim acces la cele mai bune solutii de credite ipotecare si credite de nevoi personale, pentru ca timpul, banii si linistea dumneavoastra sa fie protejate. • Suntem alaturi de dumneavoastra la fiecare pas, pentru ca visele sa devina realitate. Clarificari aditionale: • Informatiile tehnice au caracter orientativ, ele fiind preluate de la proprietari. • Se percepe comision.
Citește mai mult Citește mai puțin
Confort 1 Semidecomandat Aer condiționat Calorifere Centrală proprie Beci

Detalii apartament

ID anunț: XDTA10S80 Copiat! 274940918 Copiat!
Actualizat în: 13 Februarie 2026
Suprafață construită: 68.4 mp
Nr. bucătării: 1
Nr. băi: 2
Structură rezistență: Cărămidă
Tip imobil: Bloc de apartamente
Regim înălțime: P+5E

Utilități

Destinație
Rezidențial
Pereți
Vopsea lavabilă Faianță
Podele
Parchet Gresie
Ușă intrare
Metal
Uși interior
Lemn
Izolații termice
Exterior Bloc izolat termic
Contorizare
Apometre Contor gaz
Bucătărie
Mobilată Utilată
Electrocasnice
Mașină de spălat rufe Frigider Aragaz TV Hotă
Alte spații utile
Terasă WC Serviciu
Dotări imobil
Interfon Lift
Utilități
Curent Apă Canalizare Gaze CATV Telefon
Amenajare străzi
Asfaltate Betonate Iluminat stradal Mijloace de transport în comun
Comision
2.5%+TVA

Disponibilitate proprietate:

imediat

Puncte de interes

Mijloace transport
tram-station
Gramont
Stații tramvai aprox. 108 m
bus-station
statia Gramont, linia 7, 23, 27, 47
Stații autobuz aprox. 130 m
metro-station
Metrorex. Stația Piața Unirii 1 (M1),(M3)(1979)
Stații metrou aprox. 751 m
trolleybus-station
Statia Facultatea de Drept, linia 61,69,90,91
Stații troleibuz aprox. 1753 m
Școală
school
Liceul de Arte "Dinu Lipatti"
Școli aprox. 68 m
school
Liceu de Coregrafie Floria Capsali
Școli aprox. 86 m
kindergarten
Gradinita nr.224, "Vestitorii Primaverii"
Gradinițe aprox. 196 m
university
Facultatea de Teologie Ortodoxa
Universități aprox. 557 m
Recreere
park
Dealul Mitropoliei
Parcuri aprox. 303 m
supermarket
Mega Image
Supermarket aprox. 380 m
public-square
Piața Regina Maria
Piețe publice aprox. 462 m
sports-ground
Teren sportiv
Terenuri sport aprox. 985 m

Detalii despre preț și costuri

Prețul pe piață

Preț cerut: 170.000 €

Preț min. zonă 135.000 €
Preț max. zonă 350.000 €

79% dintre proprietățile similare ca zonă și nr. camere au prețul cerut mai mare. mai multe...

Bine de știut: prețul unei proprietăți este influențat și de alte caracteristici, cum ar fi: vechime, localizare, vecinătăți, suprafață, compartimentare, amenajări, dotări, etc. mai puțin...

Costuri cu achiziția

Fără credit
8.737 RON
Credit ipotecar
10.571 RON
Noua casă
1.006 RON+ taxe notariale

i

Costuri adiționale mai puțin știute la achiziție: taxe notariale, comisioane etc.

Proprietăți recomandate

Detalii de contact

VAULT ESTATE

Ana Maria Andreescu Manager

VAULT ESTATE
PRO

Abonează-te la newsletter să fii primul care primește cele mai noi recomandări de proprietăți și sfaturi de la experți.

CONTACT

Creează alertă

Salvează căutarea ca să primești pe email ultimele anunțuri publicate

Apartamente cu 3 camere de vânzare în zona Unirii, Sector 3