REA1028400 Apartament 3 camere premium Unirii - PRET PROMOTIONAL - APRILIE

222.700 € + TVA

Unirii, București

Nr. cam.:
3
Sup. utilă:
58 mp
Etaj:
Parter / 2
An constr.:
2025 (În construcție)
  • • Locație aproximativă
  • • Vizionare prin apel video

Descriere apartament

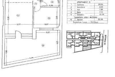
Svn Residentialist Victoriei va propune spre vanzare apartament 3 camere ultramodern in zona Unirii, cu suprafata utila de 58 mp, bine compartimentat, situat la etajul 2 al unei cladiri compacte P+2 - singurul apartament de pe etaj, pentru maxima intimitate si liniste. Imobilul este echipat cu lift si parcare subterana disponibila separat la pretul de 25.000 euro + TVA. Predare in septembrie 2026. Finisaje premium: parchet triplu stratificat, gresie + faianta din Spania, incalzire in pardoseala cu pompa de caldura, tamplarie aluminiu cu geam tripan, usi interioare, aer conditionat. Zona Unirii este ideala pentru investitori si familii: acces rapid la metrou, supermarketuri, scoli, parcuri si centru istoric - totul la 2-5 minute distanta. Pret promotional valabil doar in luna aprilie: 222.700 euro + TVA! Pentru mai multe detalii va stau la dispozitie. ***Vizionarea acestui imobil se face doar în baza semnarii unui acord de vizionare conform codului civil, art 2.096-2.102. ***Toate pozele sunt cu titlu de prezentare.
Citește mai mult Citește mai puțin
Confort 1 Decomandat Aer condiționat Alte metode electrice Încălzire prin pardoseală

Detalii apartament

ID anunț: X65800750 Copiat! 275351278 Copiat!
Actualizat în: 25 Martie 2026
Suprafață utilă totală: 58 mp
Suprafață construită: 76 mp
Nr. bucătării: 1
Nr. băi: 2
Structură rezistență: Beton
Tip imobil: Bloc de apartamente
Regim înălțime: P+2E

Utilități

Destinație
Rezidențial
Pereți
Faianță
Podele
Gresie Parchet
Ferestre cu geam termopan
PVC
Contorizare
Apometre
Facilități imobil
Interfon Lift
Internet
Fibră optică
Comision
Standard

Vicii:

Fără vicii.

Disponibilitate proprietate:

Disponibil din 25/03/2026.

Puncte de interes

Mijloace transport
tram-station
11 Iunie
Stații tramvai aprox. 119 m
bus-station
Statia Calea 13 Septembrie, linia 136, N121
Stații autobuz aprox. 300 m
metro-station
Metrorex. Stația Piața Unirii 1 (M1) (en)
Stații metrou aprox. 640 m
trolleybus-station
Statia Facultatea de Drept, linia 61,69,90,91
Stații troleibuz aprox. 1436 m
Școală
kindergarten
Gradinita nr. 192 (Pisicile aristocrate)
Gradinițe aprox. 203 m
kindergarten
Gradinita nr.192, "Pisicile Aristocrate"
Gradinițe aprox. 212 m
school
Liceul de Arte "Dinu Lipatti"
Școli aprox. 372 m
university
Facultatea de Teologie Ortodoxa
Universități aprox. 590 m
Recreere
park
Parc
Parcuri aprox. 118 m
supermarket
Mega Image
Supermarket aprox. 248 m
public-square
Piața Constituției
Piețe publice aprox. 353 m
sports-ground
Teren sportiv
Terenuri sport aprox. 897 m

Detalii despre preț și costuri

Prețul pe piață

Preț cerut: 222.700 €

Preț min. zonă 135.000 €
Preț max. zonă 350.000 €

85% dintre proprietățile similare ca zonă și nr. camere au prețul cerut mai mic. mai multe...

Bine de știut: prețul unei proprietăți este influențat și de alte caracteristici, cum ar fi: vechime, localizare, vecinătăți, suprafață, compartimentare, amenajări, dotări, etc. mai puțin...

Costuri cu achiziția

Fără credit
12.152 RON
Credit ipotecar
14.408 RON
Noua casă
1.513 RON+ taxe notariale

i

Costuri adiționale mai puțin știute la achiziție: taxe notariale, comisioane etc.

Proprietăți similare

Apartament cu 3 camere decomandat, mobilat în Unirii
215.000 €
București, Unirii
3 camere
82 mp
Parter / 8
Apartament cu 2 camere decomandat în Unirii
205.000 €
București, Unirii
2 camere
59 mp
Etaj 7 / 8
Apartament cu 2 camere semidecomandat, mobilat în Unirii
243.000 €
București, Unirii
2 camere
45 mp
Etaj 1

Detalii de contact

SVN Romania | Residentialist | Victoriei

Andrada Vlad Associated Advisor

SVN Romania | Residentialist | Victoriei
PRO

Abonează-te la newsletter să fii primul care primește cele mai noi recomandări de proprietăți și sfaturi de la experți.

CONTACT

Creează alertă

Salvează căutarea ca să primești pe email ultimele anunțuri publicate

Apartamente cu 3 camere de vânzare în zona Unirii, Sector 3