R.E.A. Imobiliare va propune spre vanzare un apartament decomandat cu 3 camere situat in zona Unirii pe bvd Corneliu Coposu.
Imobilul se afla situat la etajul 1 din 8 al unui bloc de apartamente, construit in 1994, pe structura de beton, fara risc seismic.
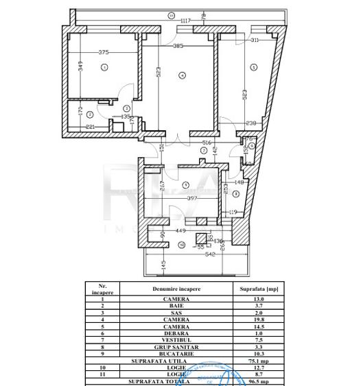
Locuinta este compusa din: dormitor - 13,00mp, baie - 3,70mp, sas - 2,00mp, living - 19,80mp, camera - 14,50mp. debara - 1,0mp, vestibul - 7,50mp, grup sanitar - 3,30mp, bucatar - 10,30mp. Suprafata totala este de 96,50mp din care 21,40mp reprezinta cele 2 balcoane ( 12,70mp + 8,70mp).
Se vinde precum in poze, a fost complet renovat in 2025, au fost schimbate toate instalatiile si toate finisajele.
Confortul termic este realizat prin intermediul RADET.
Potrivit pentru investitie si inchiriere de termen lung, dispune de o crestere de pret constanta in ultimii 10 ani.
La cateva minute distanta de mers pe jos intram in centrul vechi al Bucurestiului, Mall Unirii, metrou Piata Unirii, bancomate, farmacii, si altele;
Pentru alte detalii si vizionari ne puteti contacta mentionand codul proprietatii: P10978.
96%dintre proprietățile similare ca zonă și nr. camere au prețul cerutmai mic.
mai multe...
Bine de știut: prețul unei proprietăți este influențat și de alte caracteristici, cum ar fi: vechime, localizare, vecinătăți, suprafață, compartimentare, amenajări, dotări, etc.
mai puțin...
Insight premium disponibil după login
Costuri cu achiziția
Fără credit
€
Credit ipotecar
€
Noua casă
€
i
Costuri adiționale mai puțin știute la achiziție: taxe notariale, comisioane etc.
Sediul central - Timișoara
Bulevardul Victor Babeș nr. 2, 300230, Timișoara, România
Tel: +40.374.40.44.98 / Fax: +40.256.401.179
Email: suport@imobiliare.ro
Luni - Vineri 08:00 - 20:00
Punct de lucru - București: Iride Business Park, Bld. Dimitrie
Pompeiu 9-9A, Clădirea B2B,
020335, Sector 2, București, România
CONTACT
Sediul central - Timișoara
Bulevardul Victor Babeș nr. 2, 300230, Timișoara, România
Tel: +40.374.40.44.98 / Fax: +40.256.401.179
Email: suport@imobiliare.ro
Luni - Vineri 08:00 - 20:00
Punct de lucru - București: Iride Business Park, Bld. Dimitrie
Pompeiu 9-9A, Clădirea B2B,
020335, Sector 2, București, România
Statia Bulevardul Marasesti linii : 76,312,313,381.
aprox.
1073 m
Metrorex. Stația Piața Unirii 2 (M2) (en)
aprox.
253 m
Piata Unirii 2
aprox.
282 m
Metrorex. Stația Piața Unirii 2 (M2)(1986)
aprox.
301 m
Piata Unirii 1
aprox.
421 m
Metrorex. Stația Piața Unirii 1 (M1),(M3)(1979)
aprox.
428 m
Metrorex. Stația Piața Unirii 1 (M1) (en)
aprox.
451 m
Statia Metrou Piata Universitatii(M2)Metrorex
aprox.
644 m
Universitate (M2)
aprox.
677 m
Statia Metrou Piata Universitatii(M2)Metrorex
aprox.
714 m
Metrorex. Stația Universitate (M2)(1987)
aprox.
822 m
Metrorex. Statia Izvor (M1) , (M3).
aprox.
1315 m
Izvor
aprox.
1318 m
Metrorex. Stația Izvor (M1),(M3)(1979)
aprox.
1359 m
Metrorex. Statia Izvor (M1) , (M3).
aprox.
1377 m
Timpuri Noi
aprox.
1552 m
Statia Foisorul de Foc linii : 79,86
aprox.
1662 m
Statia Vasile Parvan 66,70,92
aprox.
1871 m
Statia Facultatea de Drept, linia 61,69,90,91
aprox.
1944 m
institutul Irecson
aprox.
263 m
Lauder Reut School Complex (en)
aprox.
377 m
Liceul Lauder-Reut
aprox.
385 m
Centrul Educational IBSEN
aprox.
405 m
Scoala Superioara Comerciala Nicolae Kretzulescu
aprox.
452 m
Scoala cu clasele I-VIII, Nr. 73 Barbu Stefanescu Delavrancea
aprox.
482 m
Grupul Scolar Industrial Unirea (en)
aprox.
554 m
Grupul Scolar Industrial Unirea
aprox.
562 m
Colegiul National "Matei Basarab"
aprox.
592 m
Liceul Teoretic "Ion Creanga" (en)
aprox.
719 m
Scoala Nr. 79 (en)
aprox.
763 m
Scoala nr. 79
aprox.
763 m
Elohim Academi
aprox.
806 m
Goethe Institut (en)
aprox.
831 m
Amfiteatrul Sahia
aprox.
889 m
Institutul Bancar Român
aprox.
318 m
Facultatea de Teologie Ortodoxa
aprox.
647 m
Academia de Studii Economice
aprox.
687 m
Academia de Studii Economice: Facultatea de Management - Administratie Publica
aprox.
690 m
Facultatea de Chimie
aprox.
710 m
Facultatea de Istorie
aprox.
744 m
Facultatea de litere (en)
aprox.
758 m
Facultatea de Stiinte
aprox.
760 m
Facultatea de Limbi si Literaturi Straine
aprox.
781 m
Facultatea de Matematica-Informatica
aprox.
804 m
UAUIM -Universitatea de Arhitectura si Urbanism Ion Mincu
aprox.
826 m
Facultatea de Farmacie
aprox.
992 m
Facultatea de Farmacie/Pharmacy Faculty
aprox.
995 m
Facultatea de Stiinte Politice
aprox.
1182 m
Universitatea din Bucuresti - Facultatea de Stiinte Politice
aprox.
1189 m
Cresa Micii Poznasi
aprox.
704 m
Gradinita Prikindel
aprox.
750 m
Gradinita Barba Cot
aprox.
786 m
Gradinita nr.192, "Pisicile Aristocrate"
aprox.
893 m
Gradinita nr. 192 (Pisicile aristocrate)
aprox.
906 m
Gradinita nr.4 "Lizuca"
aprox.
946 m
Gradinita de Copii nr.30 "Copiii soarelui
aprox.
1163 m
Gradinita nr.203 (fosta Clementa)
aprox.
1263 m
Gradinita Magica
aprox.
1279 m
Gradinita nr. 203 program prelungit
aprox.
1288 m
Gradinita "Scufita Rosie"
aprox.
1309 m
Gradinita nr.224, "Vestitorii Primaverii"
aprox.
1361 m
Gradinita nr. 224
aprox.
1369 m
Gradinita numarul 257
aprox.
1503 m
Gradinita
aprox.
1548 m
Km 0
aprox.
113 m
BILLA - Cocor
aprox.
118 m
Cocor
aprox.
128 m
Carrefour Unirii
aprox.
129 m
Carrefour Unirii Non-Stop
aprox.
131 m
Mega Image
aprox.
219 m
dm
aprox.
359 m
Carrefour Express
aprox.
747 m
Mag.Victoria
aprox.
791 m
Mega Image Paleologu
aprox.
823 m
Mega Image
aprox.
854 m
ClicMarket
aprox.
854 m
MGV Supermarket Zeno
aprox.
923 m
Mega Image
aprox.
954 m
Pravalia Maestrului
aprox.
977 m
Bucharest, Calea Vitan nr. 8, Bl V51, near VITAN Mall
aprox.
1638 m
Parcare privata
aprox.
38 m
Parcare
aprox.
121 m
Parcare
aprox.
121 m
Parcare
aprox.
158 m
Parcare
aprox.
181 m
Parcare cu plata
aprox.
184 m
Parcare
aprox.
187 m
Parcare
aprox.
188 m
Parcare
aprox.
213 m
Parcare cu plata
aprox.
214 m
Parcare
aprox.
227 m
Parcare
aprox.
268 m
Parcare
aprox.
277 m
Parcare
aprox.
290 m
Parcare
aprox.
292 m
Parc
aprox.
122 m
Parc
aprox.
219 m
Parc
aprox.
245 m
Parc
aprox.
247 m
Parc
aprox.
290 m
Parcul Sf. Gheorghe
aprox.
312 m
Parc
aprox.
313 m
Parc
aprox.
320 m
Sfantul Gheorghe
aprox.
323 m
Parc
aprox.
340 m
Parc
aprox.
341 m
Parc
aprox.
355 m
Parcul Unirii
aprox.
369 m
Piata Unirii
aprox.
369 m
Parc
aprox.
380 m
Piata Timpului
aprox.
175 m
Piața Sfântul Anton
aprox.
274 m
Piata Roma
aprox.
297 m
Piata Bibescu
aprox.
629 m
Piata Rosetti
aprox.
694 m
Piata Universitatii
aprox.
725 m
Piata Natiunilor Unite
aprox.
782 m
Piața Drapelului (Tricolorului)
aprox.
862 m
Piata Bucur
aprox.
961 m
Piata Latina
aprox.
1104 m
Piața Constituției
aprox.
1185 m
Piata Revolutiei
aprox.
1217 m
Piața Regina Maria
aprox.
1565 m
Teren sportiv
aprox.
445 m
Teren sportiv
aprox.
624 m
Teren sportiv
aprox.
1235 m
Teren sportiv
aprox.
1431 m
Teren sportiv
aprox.
1635 m
Teren sportiv
aprox.
1635 m
Teren sportiv
aprox.
1662 m
Teren sportiv
aprox.
1828 m
Baza sportiva Universitatea Bucuresti
aprox.
1934 m
Teren sportiv
aprox.
1935 m
Teren sportiv
aprox.
1975 m
Teren sportiv
aprox.
1981 m
Teren sportiv
aprox.
1982 m
teren tenis
aprox.
1991 m
Farmacia Dona
aprox.
8 m
Sensiblu
aprox.
115 m
Farmacia Dona 19
aprox.
160 m
Simidon
aprox.
242 m
Farmacia 2NA
aprox.
435 m
General Smart Farm
aprox.
449 m
Farmacia 48
aprox.
458 m
Farmacia Belladonna 54
aprox.
465 m
Farmacon CO Impex
aprox.
476 m
Sensiblu
aprox.
493 m
Plafar
aprox.
534 m
Centro Farm
aprox.
538 m
Farmacia Coltea
aprox.
560 m
Reteta
aprox.
670 m
HelpNet
aprox.
675 m
MediDent
aprox.
232 m
Medident Dental X-ray
aprox.
253 m
Art Implant
aprox.
304 m
WORLD CLINIC - O viata fara alergii ! (en)
aprox.
410 m
Centru medical MEDSANA
aprox.
431 m
Clinica de Stomatologie
aprox.
434 m
Spitalul Colțea
aprox.
525 m
Spectrum Clinique - Clinica de Oftalmologie
aprox.
576 m
Spitalul Clinic Prof. Dr. Doc Ovidiu Marina
aprox.
599 m
Institutul National de Recuperare
aprox.
605 m
Spitalul Prof. Dr. C. Angelescu
aprox.
608 m
Spitalul Prof. Dr. C-Tin Angelescu
aprox.
620 m
Medlife Unirii
aprox.
659 m
Clinica Audionova
aprox.
772 m
Cabinet stomatologic (en)
aprox.
773 m
Lunch Time
aprox.
85 m
Subway Cocor
aprox.
95 m
Pitta Fan
aprox.
117 m
Fast Food
aprox.
163 m
Restaurant "Eden" (en)
aprox.
166 m
KFC
aprox.
192 m
McDonald's
aprox.
214 m
BORSALINO
aprox.
219 m
Mc'Donalds
aprox.
237 m
KFC
aprox.
237 m
Lacrimi si Sfinti
aprox.
260 m
Art Cafe (en)
aprox.
262 m
Li-Wu Vietnamese Restaurant
aprox.
270 m
The Gang Underground Club
aprox.
286 m
Vecchio 1812
aprox.
292 m
Kulturhaus
aprox.
193 m
Manasia Hub
aprox.
200 m
Atelierul Mecanic
aprox.
303 m
Mojo
aprox.
306 m
Pizzeria Classic
aprox.
307 m
Elephant Pub
aprox.
313 m
Offside Pub
aprox.
321 m
Half Time
aprox.
333 m
Fire Club
aprox.
347 m
100 de beri
aprox.
355 m
Legacy
aprox.
375 m
Mike`s Pub
aprox.
383 m
Geobar
aprox.
383 m
Pebeo
aprox.
388 m
Boulevard Pub
aprox.
394 m
ART Cafe
aprox.
264 m
Testa Rossa Caffebar
aprox.
298 m
Art Caffe
aprox.
311 m
Tucano Cofee
aprox.
318 m
The Urbanist
aprox.
332 m
Starbucks
aprox.
335 m
Bistro 33 Cafe
aprox.
352 m
La delicii
aprox.
371 m
Bruno wine and coffe shop
aprox.
379 m
Iguana Cafe
aprox.
390 m
DDB caffe
aprox.
407 m
Coco Bongo
aprox.
409 m
Gelato Mio
aprox.
433 m
Bistro Latina
aprox.
435 m
Simbio
aprox.
437 m
City Grill Covaci
aprox.
270 m
Vecchio
aprox.
276 m
Sankt Petersburg Pub
aprox.
299 m
Network Lounge
aprox.
306 m
BarFly
aprox.
321 m
Up Club
aprox.
329 m
Harley
aprox.
342 m
The Elbow Room
aprox.
342 m
1974 Niste Domni si Fiii
aprox.
342 m
Beraria Bavareza Fritz
aprox.
357 m
Pure
aprox.
371 m
Absinteria Sixtina
aprox.
373 m
The Glam Club
aprox.
374 m
Roter Heller
aprox.
380 m
Bar
aprox.
387 m
ING Self Bank
aprox.
16 m
Banca Transilvania - Ag. Coposu
aprox.
25 m
ING Unirii
aprox.
51 m
Garanti Bank
aprox.
52 m
BCR
aprox.
77 m
Bancpost
aprox.
84 m
Banca Romaneasca
aprox.
92 m
Banca Romaneasca
aprox.
116 m
CEC
aprox.
131 m
Alpha Bank
aprox.
149 m
Magazin Intersport
aprox.
156 m
Sucursala Raiffeisen Bank
aprox.
156 m
Raiffeisen Bank
aprox.
163 m
BRD Bratianu Unirii
aprox.
227 m
BRD Unirii
aprox.
227 m
Stațiile de metrou aflate chiar în "inima" acestei zone, în Piața Unirii, îți oferă posibilitatea de a călători rapid, evitând aglomerația din trafic. Stația Piața Unirii 1 oferă conexiuni la magistrala M1 Dristor - Pantelimon și la magistrala M3 Preciziei - Anghel Saligny. Aceasta este conectată de stația Piața Unirii 2, aflată pe magistrala M2 Berceni - Pipera printr-un pasaj. Astfel, poți ajunge chiar și în mai puțin de 10 minute în zona Politehnică sau la Piața Victoriei și în circa 15 minute în Pipera, unul dintre principalii poli de business ai orașului. Cu autobuzul 104 poți ajunge în cartierul Pantelimon, iar cu tramvaiul 47 în cartierul Rahova. Consultă harta pentru a localiza stațiile mijloacelor de transport în comun.
Printre unitățile de învățământ din această zonă se numără Colegiul Național "Mihai Eminescu", Colegiul Național "Ion Creangă", Colegiul Național de Arte "Dinu Lipatti" și Facultatea de Teologie Ortodoxă "Justinian Patriarhul". Tot aici își are sediul și Institutul Bancar Român care ajută la specializarea personalului din sectorul financiar-bancar. Ajungi foarte repede din Piața Unirii, chiar și pe jos, la Palatul Universității care găzduiește sediile mai multor facultăți. Găsește pe hartă și cele mai apropiate grădinițe, școli și licee de viitoarea ta locuință.
Dacă te vei muta în această zonă, vei avea la doi pași de casă centrul comercial Unirea Shopping Center, care găzduiește, printre altele, magazinele mai multor branduri de modă. În spatele acestuia vei găsi un hipermarket Carrefour. Diverse magazine pot fi găsite și în Centrul Vechi. Pe Strada Lipscani poți să vizitezi una dintre cele mai frumoase librării din Capitală, Cărturești Carusel. Magazin Cocor, care a fost modernizat recent, poate fi și el o alternativă. În imediata sa vecinătate se află și noul magazin București. Pentru mai multe opțiuni, poți merge la București Mall, cel mai apropiat centru comercial de acest tip. Consultă harta pentru a vedea ce alte opțiuni ai în zona Unirii și în împrejurimi.
Lângă Centrul Comercial Unirea Shopping Center vei găsi o parcare supraterană unde îți poți lăsa mașina contra-cost. Dacă te gândești să te muți în zona Piața Unirii îți amintim, de asemenea, că traficul pe Bulevardul Unirii este destul de îngreunat la orele de vârf. Nu uita, totodată, că traficul rutier este închis uneori în Piața Constituției pentru organizarea unor evenimente și concerte. Pentru închirierea unui loc de parcare în apropierea locuinței de care ești interesat va trebui să apelezi la reprezentanții autorităților locale de pe sectorului în care se află aceasta (Direcția Generală Impozite și Taxe Locale Sector 3, Direcția Mobilitate Urbană Sector 4, Serviciul Parcaje Scop Reședință Sector 5). Consultă harta pentru a localiza mai ușor principalele parcări din zona Unirii.
Dacă decizi să te muți într-o locuință în zona Unirii, atunci vei avea la dispoziție numeroase opțiuni de petrecere a timpului liber. Chiar în Piața Unirii vei găsi unul dintre binecunoscutele obiective ale orașului, Hanul lui Manuc. Construit în 1808 acesta a fost renovat în urmă cu câțiva ani și găzduiește, în prezent, mai multe cafenele, restaurante și mici magazine. Acesta se află chiar la marginea Centrului Vechi al Capitalei, principalul punct de atracție pentru iubitorii vieții de noapte. Tot aici găsești și câteva obiective turistice importante - Palatul Voievodal Curtea Veche, Palatul BNR, Muzeul Național de Istorie a României și Muzeul Municipal București. Parcurile Izvor și Unirii sunt principalele spații verzi din această zonă. Nu trebuie să uiți însă că nu va trebui să mergi mult pentru a ajunge și la Grădina Cișmigiu sau în Parcul Tineretului. Poți merge, totodată, la un spectacol la Teatrul Evreiesc de Stat sau poți participa la evenimentele și la concertele care se organizează periodic în Piața Constituției de lângă Palatul Parlamentului. Poți lua parte la diverse evenimente și vizitând Biblioteca Națională a României, o altă clădire reprezentativă din această zonă. Ajungi foarte ușor, pe jos sau cu metroul, la Teatrul Național București în fața căruia găsești și un mic parc. Iar dacă toate acestea nu sunt de ajuns, atunci o plimbare pe Calea Victoriei și o vizită la numeroasele obiective de interes aflate de-a lungul ei cu siguranță te vor satisface. Cea mai bună parte este că această arteră de circulație se închide circulației rutiere uneori și devine strict pietonală. În plus, aici ai la dispoziție una dintre puținele piste dedicate bicicliștilor din oraș. Consultă harta pentru a vedea ce alte opțiuni de petrecere a timpului liber vei avea odată ce te vei muta în zona Unirii.
Dacă te vei muta în această zonă, vei putea apela în caz de nevoie la câteva clinici private. Printre acestea amintim Hiperclinica MedLife Unirii, clinica de stomatologie DentaLife și Medas Unirea. Unele dintre cele mai apropiate spitale la care vei avea acces vor fi Spitalul Cinic Colțea din Piața Universității și Spitalul Clinic Prof. Dr. Theodor Burghele, aflat în apropierea Palatului Parlamentului. Vezi pe hartă ce alte unități medicale se află în zona Unirii și în vecinătatea sa.
Centrul Vechi îți oferă numeroase opțiuni la acest capitol, iar câteva fast food-uri ai la dispoziție la parterul centrului comercial Unirea Shopping Center, situat chiar în Piața Unirii. Găsești câteva terase și pe malul Dâmboviței, lângă Biblioteca Națională a României. Dacă vrei să schimbi peisajul, poți să ajungi destul de repede cu mașina sau cu mijloacele de transport în comun la București Mall sau poți încerca una dintre numeroasele terase din Piața Alba Iulia sau de pe Bulevardul Decebal. Mai mult, ai relativ aproape și Calea Victoriei, perfectă pentru promenadă, dar și pentru un popas la restaurant. Consultă harta și află care sunt cele mai apropiate localuri de viitoarea ta locuință.
Găsești mai multe ATM-uri și sucursale bancare în Piața Unirii, unele dintre ele chiar în incinta complexului comercial Unirea Shopping Center. Vezi care este cel mai potrivit pentru tine de pe hartă.
Înainte să pleci...
Ești sigur că ai văzut și aceste proprietăți?
332.000 €
București, Unirii
4 camere
98 mp
Etaj 1 / 8
294.900 €
București, Unirii
2 camere
56 mp
Etaj 2
331.075 € + TVA
București, Unirii
2 camere
82,6 mp
Etaj 7
Creează alertă
Salvează căutarea ca să primești pe email ultimele anunțuri publicate
Apartamente cu 3 camere de vânzare în zona Unirii, Sector 3
Cere detalii prin email
*
*
*
*
Detaliile tale de contact vor fi partajate cu R.e.a. Imobiliare