Vanzare apartament 4 camere Piata Unirii fantani, metrou

370.000 €

Unirii, București

Nr. cam.:
4
Sup. utilă:
105 mp
Etaj:
1 / 8
An constr.:
1996 (Finalizată)
  • • Locație aproximativă

Descriere apartament

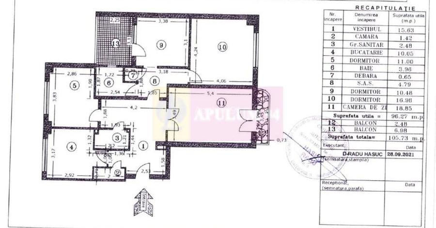
Va oferim spre vanzare un apartament de 4 camere la Piata Unirii stradal, la etajul 1/8, decomandat, renovat, cu 2 grupuri sanitare, si 2 balcoane, cu o bucatarie mare de 11mp. Pentru detalii suplimentare si vizionari va rog sa contactati agentul Dona Camelia
Citește mai mult Citește mai puțin
Confort 1 Decomandat 2 Balcoane / Terase / Logii

Detalii apartament

ID anunț: X3HJ107ED Copiat! 270818418 Copiat!
Actualizat în: 27 Martie 2026
Nr. bucătării: 1
Nr. băi: 2
Tip imobil: Bloc de apartamente
Regim înălțime: P+8E

Utilități

Utilități
Curent Apă Canalizare
Comision
standard

Disponibilitate proprietate:

Imediat

Puncte de interes

Mijloace transport
tram-station
Pasaj Marasesti
Stații tramvai aprox. 65 m
tram-station
Statia Pasaj Marasesti linii 23,27
Stații tramvai aprox. 100 m
bus-station
Bd. Dimitrie Cantemir / Bd. Marasesti, Liniile 312, 313, 381, N105, N106, N112, 116, 23, 27
Stații autobuz aprox. 413 m
metro-station
Piata Unirii 2
Stații metrou aprox. 646 m
Școală
school
Scoala Nr. 79 (en)
Școli aprox. 227 m
school
Scoala nr. 79
Școli aprox. 227 m
kindergarten
Gradinita Barba Cot
Gradinițe aprox. 284 m
university
Institutul Bancar Român
Universități aprox. 495 m
Recreere
supermarket
ClicMarket
Supermarket aprox. 65 m
public-square
Piata Bucur
Piețe publice aprox. 230 m
park
Parc
Parcuri aprox. 268 m
mall
Bucharest, Calea Vitan nr. 8, Bl V51, near VITAN Mall
Mall aprox. 1139 m

Detalii despre preț și costuri

Prețul pe piață

Preț cerut: 370.000 €

Preț min. zonă
Preț max. zonă

64% dintre proprietățile similare ca zonă și nr. camere au prețul cerut mai mic. mai multe...

Bine de știut: prețul unei proprietăți este influențat și de alte caracteristici, cum ar fi: vechime, localizare, vecinătăți, suprafață, compartimentare, amenajări, dotări, etc. mai puțin...

Insight premium disponibil după login

Costuri cu achiziția

Fără credit
Credit ipotecar
Noua casă

i

Costuri adiționale mai puțin știute la achiziție: taxe notariale, comisioane etc.

Insight premium disponibil după login

Proprietăți recomandate

Detalii de contact

Apulum'94

Camelia Dona broker imobiliar

Apulum'94
PRO

Abonează-te la newsletter să fii primul care primește cele mai noi recomandări de proprietăți și sfaturi de la experți.

CONTACT

Creează alertă

Salvează căutarea ca să primești pe email ultimele anunțuri publicate

Apartamente cu 4+ camere de vânzare în zona Unirii, Sector 3