Apartament 2 camere 77 mp -2 grupuri sanitare | Blv Unirii | Bloc Stradal |

239.000 €

Unirii, București

Nr. cam.:
2
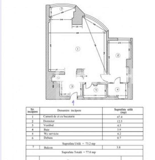
Sup. utilă:
73 mp
Etaj:
6 / 9
An constr.:
1994 (Finalizată)
  • • Locație exactă

Descriere apartament

Carmen Mihaila Zogoreanu ^ Global Home Romania ^ Real Estate ^ Imobiliare Unirii: Apartament doua camere cu doua doua grupuri sanitare, unul dintre cele mai mari apartamente din zona, situat pe Blv Unirii, suprafata utila 73mp, plus balcon, insumand 77mp. Imobilul dispune de suprafete generoase, luminoase, eficient compartimentat, mobilat si utilat complet. A fost renovat in totalitate cu materiale de calitate superioara, inclusiv instalatiile, electrica si sanitara schimbate. Apartamentul este amenajat complet, totul functional, mobilat si utilat modern. Ideeal ca si propria locuinta sau pt. investitie. Beneficiaza de toate avantajele zonei, fiind situat in zona centrala ,ofera acces rapid catre toate zonele de interes. Multiple mijloace in comun, centre comerciale, institutii medicale si de invatamant, zone de relaxare. Aceasta oferta va este prezentata de Agentia Global Home Romania, pt. detalii/vizionare sau alte oferte va rog contactat-ma telefonic.___ Global Home Romania, este o firmă în schimbare de jocuri pe piață imobiliară din România ce se afla intr-o expansiune rapidă. Modelul personalizat avand la baza tehnologia digitala, inteligenta artificala și interacțiune umană alături de colaboratorii firmei, inspiră constant încredere. Având o abordare de marketing profesională și îndrăzneță a ridicat atenția asupra modului în care oamenii se gândesc la imobiliare in Romania. Global Home Romania, companie imobiliara infiintata in 2020 ce continuă să se dezvolte cu succes în domeniu, reușind să atraga constant parteneri și colaboratori de încredere. Cu sediul în București, Global Home Romania, a apărut ca o firmă imobiliară de încredere ce își propune constant să livreze servicii de calitate. Misiunea Global Home Romania în piața imobiliară, este aceea de a stabili un raport solid bazat pe încredere și profesionalism între reprezentantii nostri imobiliari bine informati impreuna cu toti clientii si colaboratorii companiei.
Citește mai mult Citește mai puțin
Confort 1 Semidecomandat Mobilat 1 Balcon / Terasă / Logie Aer condiționat Calorifere Termoficare Renovat

Detalii apartament

ID anunț: XBMO1093M Copiat! 275409060 Copiat!
Actualizat în: 06 Aprilie 2026
Suprafață construită: 92 mp
Nr. bucătării: 1
Nr. băi: 2
Structură rezistență: Beton
Tip imobil: Bloc de apartamente
Regim înălțime: P+9E

Utilități

Pereți
Vopsea lavabilă Faianță
Podele
Parchet Gresie
Ușă intrare
Metal
Uși interior
Lemn
Ferestre cu geam termopan
PVC
Contorizare
Apometre
Bucătărie
Mobilată Utilată
Electrocasnice
Mașină de spălat Frigider Aragaz Mașină spălat vase TV Cafetieră Cuptor microunde Hotă
Alte spații utile
WC Serviciu Debara
Facilități imobil
Interfon Lift
Utilități
Curent Apă Canalizare Gaze
Servicii imobil
Supraveghere video
Amenajare străzi
Asfaltate Betonate Iluminat stradal Mijloace de transport în comun
Comision
Standard

Certificat energetic:

Clasa energetică: B

Puncte de interes

Mijloace transport
tram-station
Nerva Traian
Stații tramvai aprox. 491 m
bus-station
Sf. Vineri, terminal linii:40, 55, 56, 385
Stații autobuz aprox. 550 m
metro-station
Piata Unirii 2
Stații metrou aprox. 718 m
trolleybus-station
Statia Foisorul de Foc linii : 79,86
Stații troleibuz aprox. 1669 m
Școală
school
Colegiul National "Matei Basarab"
Școli aprox. 383 m
university
Institutul Bancar Român
Universități aprox. 396 m
school
Liceul Lauder-Reut
Școli aprox. 409 m
kindergarten
Gradinita Barba Cot
Gradinițe aprox. 720 m
Recreere
park
Parc
Parcuri aprox. 26 m
sports-ground
Teren sportiv
Terenuri sport aprox. 376 m
supermarket
MGV Supermarket Zeno
Supermarket aprox. 461 m
mall
Bucharest, Calea Vitan nr. 8, Bl V51, near VITAN Mall
Mall aprox. 965 m

Detalii despre preț și costuri

Prețul pe piață

Preț cerut: 239.000 €

Preț min. zonă 83.493 €
Preț max. zonă 255.000 €

68% dintre proprietățile similare ca zonă și nr. camere au prețul cerut mai mic. mai multe...

Bine de știut: prețul unei proprietăți este influențat și de alte caracteristici, cum ar fi: vechime, localizare, vecinătăți, suprafață, compartimentare, amenajări, dotări, etc. mai puțin...

Costuri cu achiziția

Fără credit
11.111 RON
Credit ipotecar
13.239 RON
Noua casă
1.358 RON+ taxe notariale

i

Costuri adiționale mai puțin știute la achiziție: taxe notariale, comisioane etc.

Proprietăți similare

Apartament cu 2 camere semidecomandat, mobilat în Unirii
239.000 €
București, Unirii
2 camere
73 mp
Etaj 6 / 9
Apartament cu 2 camere decomandat în Unirii
230.000 €
București, Unirii
2 camere
55 mp
Etaj 2
Apartament cu 2 camere decomandat în Unirii
245.001 €
București, Unirii
2 camere
65 mp
Etaj 5

Detalii de contact

Abonează-te la newsletter să fii primul care primește cele mai noi recomandări de proprietăți și sfaturi de la experți.

CONTACT

Creează alertă

Salvează căutarea ca să primești pe email ultimele anunțuri publicate

Apartamente cu 2 camere de vânzare în zona Unirii, Sector 3