Agenția Cristal Imobiliare vă propune spre vânzare un apartament de 2 camere ce întrunește toate criteriile unei investiții de succes sau ale unei locuințe personale de top. Situat strategic între Mall Vitan și Bulevardul Nerva Traian, acest apartament se distinge prin confort, spațiu și o locație extrem de căutată pe piața imobiliară.
Puncte forte - Confort și Eficiență:
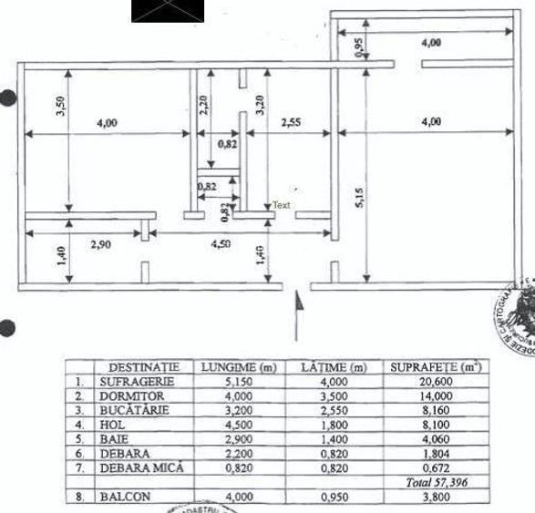
Centrală Proprie: Unul dintre cele mai importante avantaje, asigurând independență totală, confort termic sporit și costuri de întreținere controlate și reduse. Suprafață Generoasă: Apartamentul dispune de 61 mp utili, fiind mult mai spațios decât majoritatea unităților cu 2 camere, oferind o senzație de libertate și multiple opțiuni de amenajare. Bloc de Calitate: Imobilul este construit în anul 1991, este un bloc solid și a fost recent anvelopat, ceea ce îmbunătățește considerabil eficiența energetică.
Compartimentare și Poziționare:
Tip: Complet decomandat, ideal pentru a asigura intimitate locatarilor. Etaj: Situat la etajul 1 din 8, o poziție preferată atât de familii, cât și de segmentul de business sau închiriere.
Potențial de Închiriere:
Datorită locației centrale și a dotărilor (centrală proprie, bloc anvelopat, suprafață mare), acest apartament reprezintă o oportunitate excelentă pentru închiriere. Cererea în zona Vitan - Nerva Traian este constant ridicată, garantând un randament foarte bun și o ocupare rapidă, fiind o proprietate care se poate închiria extrem de ușor.
Localizare Strategică:
Amplasarea între Mall Vitan și Nerva Traian oferă acces imediat la centre comerciale, restaurante, bănci, școli și conexiuni rapide către toate punctele de interes ale capitalei.
Vă invităm să programăm o vizionare pentru a descoperi potențialul acestei proprietăți remarcabile!
Comision agentie 2%
Pentru mai multe oferte imobiliare va rugam accesati site-ul:
93%dintre proprietățile similare ca zonă și nr. camere au prețul cerutmai mic.
mai multe...
Bine de știut: prețul unei proprietăți este influențat și de alte caracteristici, cum ar fi: vechime, localizare, vecinătăți, suprafață, compartimentare, amenajări, dotări, etc.
mai puțin...
Costuri cu achiziția
Fără credit
8.722 RON
Credit ipotecar
10.554 RON
Noua casă
1.004 RON+ taxe notariale
i
Costuri adiționale mai puțin știute la achiziție: taxe notariale, comisioane etc.
Calculul ipotecarului
Proprietăți similare
154.000 €
București, Vitan Mall
2 camere
67 mp
Etaj 10
155.223 € + TVA
București, Vitan Mall
2 camere
57 mp
Etaj 1
155.223 € + TVA
București, Vitan Mall
2 camere
57 mp
Etaj 1
Detalii de contact
Acestă agenție te poate ajuta să obții o soluție de finanțare potrivită nevoilor tale. Solicită-i informații suplimentare.
Sediul central - Timișoara
Bulevardul Victor Babeș nr. 2, 300230, Timișoara, România
Tel: +40.374.40.44.98 / Fax: +40.256.401.179
Email: suport@imobiliare.ro
Luni - Vineri 08:00 - 20:00
Punct de lucru - București: Iride Business Park, Bld. Dimitrie
Pompeiu 9-9A, Clădirea B2B,
020335, Sector 2, București, România
CONTACT
Sediul central - Timișoara
Bulevardul Victor Babeș nr. 2, 300230, Timișoara, România
Tel: +40.374.40.44.98 / Fax: +40.256.401.179
Email: suport@imobiliare.ro
Luni - Vineri 08:00 - 20:00
Punct de lucru - București: Iride Business Park, Bld. Dimitrie
Pompeiu 9-9A, Clădirea B2B,
020335, Sector 2, București, România
Capat Universitatea Crestina Dimitrie Cantemir linii : 323.
aprox.
577 m
Autobuz 323
aprox.
581 m
Statia Universitatea Crestina Dimitrie Cantemir linii:133.
aprox.
616 m
Statia Lucian Blaga linia 124, N111, N103, N104, 104, 123
aprox.
825 m
Mihai Bravu
aprox.
964 m
Statia Depoul Dudesti, Liniile N103, 23, 27
aprox.
990 m
RATB: Penes Curcanul: Autobuz 124
aprox.
994 m
Statia Pod Mihai Bravu, linia 223, 124
aprox.
1102 m
Statia Calea Vitan, linia 135,181
aprox.
1113 m
Statia Calea Vitan, linia 123,124,135,181
aprox.
1126 m
Statia Piata Alba Iulia linia N104, 104
aprox.
1191 m
Statia Laborator 135,181
aprox.
1210 m
Soseaua Mihai Bravu
aprox.
1216 m
Statia Palatul Copiilor linii : 76,313,381.
aprox.
1235 m
Statia Bd. Tineretului / Soseaua Mihai Bravu, linia 133, 223, 312, 313, 381, 634, N105
aprox.
1261 m
Metrorex. StațiaTimpuri Noi (M1),(M3)(1979)
aprox.
584 m
Timpuri Noi
aprox.
590 m
Metrorex. Stația Mihai Bravu (M1) , (M3).
aprox.
950 m
Metrorex. Stația Mihai Bravu (M1) , (M3)(1981)
aprox.
959 m
Metrorex. Stația Mihai Bravu (M1) , (M3).
aprox.
981 m
Metrorex. Stația Tineretului (M2)(1986)
aprox.
1310 m
Statia Metrou Tineretului(M2)Metrorex
aprox.
1316 m
Tineretului (M2)
aprox.
1340 m
Metrorex. Stația Dristor 2 (M1)(1989).
aprox.
1533 m
Piata Unirii 2
aprox.
1609 m
Metrorex.Stația Dristor 1 (M1) , (M3)(1981)
aprox.
1651 m
Metrorex. Stația Piața Unirii 2 (M2)(1986)
aprox.
1654 m
Metrorex. Stația Piața Unirii 1 (M1),(M3)(1979)
aprox.
1662 m
Piata Unirii 1
aprox.
1758 m
Metrorex. Stația Piața Unirii 2 (M2) (en)
aprox.
1768 m
Gradinita Plusica
aprox.
384 m
Gradinita
aprox.
431 m
Gradinita de copii nr.161
aprox.
459 m
Gradinita (progr. prelungit) Aleea Borcea - Str. Ruginoasa
aprox.
999 m
Gradinita "Scufita Rosie"
aprox.
1077 m
Gradinita Barba Cot
aprox.
1242 m
Gradinita de Copii nr.30 "Copiii soarelui
aprox.
1354 m
Gradinita nr. 239
aprox.
1454 m
Gradinita Era
aprox.
1483 m
Cresa Micii Poznasi
aprox.
1505 m
Gradinita cu program prelungit Copiii Soarelui
aprox.
1607 m
Gradinita Kogaion
aprox.
1858 m
Gradinita catolica "Sfanta Cruce"
aprox.
1871 m
Gradinita Prikindel
aprox.
1914 m
Gradinita Magica
aprox.
1954 m
Scoala Nr. 95
aprox.
431 m
Scoala nr 95
aprox.
431 m
Scoala Generala nr. 95
aprox.
431 m
Scoala generala nr. 81
aprox.
476 m
Scoala Generala nr.81
aprox.
476 m
Școala 81
aprox.
488 m
B.C.A. (en)
aprox.
568 m
Liceul Petru Rares
aprox.
738 m
Grupul Școlar Industrial Timpuri Noi
aprox.
843 m
Școala Specială nr. 5
aprox.
930 m
Scoala Speciala nr. 5
aprox.
930 m
Scoala Generala nr. 84
aprox.
1040 m
Scoala Generala nr.84 "Nicolae Balcescu"
aprox.
1047 m
Scoala nr.79 "Academician Nicolae Teodorescu"
aprox.
1090 m
Colegiul National "Ion Creanga"
aprox.
1106 m
Universitatea Crestina "Dimitrie Cantemir"
aprox.
631 m
Universitatea Titu Maiorescu - Corp M
aprox.
679 m
Universitatea Nicolae Titulescu
aprox.
679 m
Universitatea Titu Maiorescu - Rectorat
aprox.
691 m
Universitatea "Nicolae Titulescu" - Bucuresti
aprox.
706 m
Universitatea "Titu Maiorescu"
aprox.
743 m
Universitatea Titu Maiorescu
aprox.
743 m
Institutul Bancar Român
aprox.
1351 m
Academia de Studii Economice
aprox.
1521 m
Academia de Studii Economice: Facultatea de Management - Administratie Publica
aprox.
1528 m
Universitatea Hyperion (en)
aprox.
1585 m
Universitatea Hyperion
aprox.
1587 m
Facultatea de Teologie Ortodoxa
aprox.
1611 m
Vio-Flor Prodservicom
aprox.
269 m
Profi
aprox.
334 m
Supermarket Fonzi
aprox.
343 m
MGV Green Expres
aprox.
355 m
Shop & Go
aprox.
371 m
Nerva Center
aprox.
383 m
Supermarket Sinbad
aprox.
400 m
Mega Image - Apahida
aprox.
539 m
Mega Image
aprox.
543 m
Bucuresti Mall
aprox.
547 m
Shop&Go
aprox.
549 m
Mega Image Bucuresti Mall
aprox.
557 m
Profi Non-Stop Vacaresti
aprox.
663 m
Penny Market
aprox.
783 m
Mega Image
aprox.
796 m
Bucharest, Calea Vitan nr. 8, Bl V51, near VITAN Mall
aprox.
424 m
Parcare
aprox.
119 m
Parcare
aprox.
343 m
Parcare
aprox.
413 m
Parcare
aprox.
515 m
Parcare
aprox.
517 m
Parcare
aprox.
529 m
Parcare
aprox.
531 m
Parcare
aprox.
531 m
Parcare
aprox.
552 m
Parcare
aprox.
564 m
Parcare
aprox.
569 m
Parcare
aprox.
598 m
Parcare
aprox.
627 m
Parcare pentru clienti cu plata
aprox.
664 m
Parcare
aprox.
667 m
parculet
aprox.
77 m
Parculet (en)
aprox.
131 m
Parculet nou
aprox.
137 m
Parculet si teren de joaca
aprox.
230 m
Parc
aprox.
403 m
Parcul Emil Garleanu
aprox.
408 m
Parcul Emil Garleanu
aprox.
418 m
Parc
aprox.
420 m
Parc
aprox.
499 m
Parc
aprox.
523 m
Parc
aprox.
533 m
Parc
aprox.
543 m
Loc de joaca
aprox.
543 m
Park (en)
aprox.
543 m
Parc
aprox.
546 m
Teren sportiv
aprox.
661 m
Teren sportiv
aprox.
695 m
Teren sportiv
aprox.
725 m
Teren sportiv
aprox.
1252 m
Teren sportiv
aprox.
1260 m
Teren sportiv
aprox.
1305 m
Teren sportiv
aprox.
1318 m
Teren sportiv
aprox.
1403 m
Teren sportiv
aprox.
1405 m
Teren sportiv
aprox.
1406 m
Teren sportiv
aprox.
1424 m
Teren sportiv
aprox.
1444 m
Teren sportiv
aprox.
1457 m
Teren sportiv
aprox.
1524 m
Teren sportiv
aprox.
1545 m
Piata Bucur
aprox.
1031 m
Piata Bibescu
aprox.
1697 m
Piata Timpului
aprox.
1830 m
Piața Sfântul Anton
aprox.
1856 m
Piata Roma
aprox.
1960 m
Plastic Surgery Clinic (en)
aprox.
153 m
SYNEVO
aprox.
424 m
Policlinica vitan
aprox.
629 m
Medline
aprox.
633 m
Life Med
aprox.
873 m
Spital Veterinar
aprox.
967 m
Maternitatea Bucur
aprox.
1003 m
Doctor Anghel Medical Center
aprox.
1007 m
Eurodent
aprox.
1013 m
Spitalul Caritas (en)
aprox.
1019 m
Medical GRAL
aprox.
1085 m
Clinica Stomatologica M & M Dental Clinic
aprox.
1108 m
Policlinica Gral Medical
aprox.
1124 m
Clinica Sentisan. .sentisan.ro (en)
aprox.
1133 m
Spitalul Prof. Dr. C. Angelescu
aprox.
1152 m
Help Net
aprox.
365 m
Farmacie
aprox.
417 m
Centrofarm
aprox.
508 m
Sensiblu
aprox.
541 m
Catena
aprox.
543 m
Farmacia Denis
aprox.
568 m
Vitan Farm Impex
aprox.
578 m
Farmacia Bucuresti Tehnoplus Farm
aprox.
656 m
Ifarm
aprox.
742 m
Farmacia Farmadex
aprox.
780 m
Farmacia Belladonna 63
aprox.
854 m
2NA Farm
aprox.
893 m
Leni Farm
aprox.
915 m
Farmacia Kaiser
aprox.
930 m
Terapia Farm
aprox.
985 m
Kaffa Pub
aprox.
171 m
The 1st Pub
aprox.
344 m
Roof
aprox.
500 m
Jukebox
aprox.
975 m
Beraria Berestoika
aprox.
1086 m
Forno d'oro
aprox.
1383 m
The Temple
aprox.
1437 m
Dristor Pub
aprox.
1439 m
Zvon
aprox.
1451 m
Pizzeria Classic
aprox.
1462 m
The Harp
aprox.
1541 m
La Scena
aprox.
1668 m
Manasia Hub
aprox.
1780 m
Kulturhaus
aprox.
1857 m
Carol Cafe
aprox.
1917 m
Cofetaria Opera
aprox.
176 m
Foisorului Restaurant (en)
aprox.
184 m
La Machidoni
aprox.
186 m
Chinese Restaurant (en)
aprox.
257 m
Amicii Restaurant (en)
aprox.
258 m
Efes
aprox.
346 m
Bistro
aprox.
357 m
Pane e Vino
aprox.
364 m
Restaurant Premium Events
aprox.
391 m
Adress
aprox.
399 m
Terasa Brandusa
aprox.
414 m
Manasra
aprox.
461 m
Pizza Hut Delivery
aprox.
506 m
Jerry's Pizza - Vitan
aprox.
531 m
Cofetarie Magic
aprox.
534 m
Maroon Caffe
aprox.
401 m
Sfera caffe
aprox.
439 m
Kahve Dunyasi
aprox.
516 m
Quartier
aprox.
534 m
gloria jeans coffee
aprox.
602 m
Starbucks
aprox.
604 m
Zebra Caffe
aprox.
716 m
La Trenulete
aprox.
914 m
Gio Cafe
aprox.
935 m
Cafe Boulevard
aprox.
938 m
High Class
aprox.
940 m
Miau
aprox.
942 m
Puerto Cafe
aprox.
980 m
Stretto Cofee
aprox.
1084 m
Habana Coffe
aprox.
1091 m
Pe baricade
aprox.
1215 m
Bar
aprox.
1287 m
BarFly
aprox.
1396 m
Nargila Grill&Bar
aprox.
1576 m
Club Guesthouse
aprox.
1714 m
La Pirati
aprox.
1856 m
Network Lounge
aprox.
1880 m
Vecchio
aprox.
1885 m
City Grill Covaci
aprox.
1887 m
Up Club
aprox.
1943 m
Sankt Petersburg Pub
aprox.
1948 m
Pure
aprox.
1957 m
1974 Niste Domni si Fiii
aprox.
1964 m
The Glam Club
aprox.
1972 m
True Social Club
aprox.
1972 m
Piraeus Bank
aprox.
357 m
BCR Nerva Traian
aprox.
357 m
Raiffeisen Bank Nerva Traian
aprox.
367 m
Pireus Bank
aprox.
374 m
BRD Nerva Traian
aprox.
397 m
Raiffeisen Bank
aprox.
436 m
ING Nerva Traian
aprox.
483 m
ING Self Bank
aprox.
493 m
Raiffeisen Bank - Agentia Bucuresti Mall
aprox.
499 m
Vitan Center (en)
aprox.
533 m
Banca Transilvania - Ag. Octavian Goga
aprox.
542 m
Sucursala CEC Bank Timpuri Noi (en)
aprox.
583 m
Oficiul Postal 4; OP4 (en)
aprox.
635 m
UniCredit Tiriac Bank (en)
aprox.
655 m
Banca Carpatica
aprox.
687 m
Dacă te vei muta în această zonă, vei avea la dispoziție mai multe autobuze și tramvaie care te vor ajuta să te deplasezi către centrul orașului și nu numai. Printre acestea amintim tramvaiul 19 care oferă o legătură directă cu sud - estul Bucureștiului, tramvaiul 27 cu care te poți deplasa până la Piața Unirii și autobuzul 124 al cărui traseu ajunge în zona Eroilor. Cu autobuzul 133 ajungi rapid la Parcul Tineretului și la Gara Basarab. Vei avea, totodată, în apropierea viitoarei tale locuințe două stații de metrou - Timpuri Noi și Mihai Bravu. Ambele îți oferă posibilitatea de a lua trenuri care circulă atât pe magistrala 1 Dristor - Pantelimon, cât și pe magistrala 3 Preciziei - Anghel Saligny. Consultă harta și vezi care vor fi cele mai apropiate stații de viitoarea ta locuință.
Dacă te vei muta în zona Vitan Mall - Nerva Traian - Mihai Bravu, vei avea la doi pași de casă mai multe unități de învățământ. Printre acestea amintim Grădinița Brândușa de pe Strada Brândușelor, Școala Gimnazială nr. 84 situată lângă Complexul Comercial Prosper și Școala Gimnazială nr. 81 de pe Strada Nerva Traian. În apropierea stației de metrou Timpuri Noi se află sediile mai multor instituții private de învățământ superior. Este vorba despre Universitatea "Titu Maiorescu", Universitatea "Nicolae Titulescu" și despre Universitatea Creștină "Dimitrie Cantemir". Vezi ce hartă ce alte unități de învățământ există în zona Vitan Mall - Nerva Traian - Mihai Bravu.
Vrei să te muți în zona Vitan Mall - Nerva Traian - Mihai Bravu și te gândești deja unde îți vei putea face cumpărăturile? În primul rând, vei avea la dispoziție numeroase magazine de cartier, având în vedere faptul că multe dintre blocurile din această parte a orașului dispun de spații comerciale la parter. București Mall, primul complex comercial de acest tip din Capitală, poate fi o altă opțiune excelentă. Cu mașina ajungi destul de ușor și la mall-urile ParkLake și Sun Plaza. Vrei să cumperi legume și fructe proaspete? Atunci trebuie să știi că o piață este amplasată pe Strada Foișorului. Un magazin Lidl a fost deschis în zona Pasajului Mihai Bravu. În plus, în apropiere vei avea și Complexul Comercial Prosper și un magazin de bricolaj. În apropiere ai la dispoziție și o serie de magazine cu materiale de construcții sau finisaje. La doi pași de toate acestea găsești și un complex comercial ce include mai mulți retaileri, inclusiv două pet shop-uri. Ajungi destul de rapid și la hipermarketul Auchan Vitan și la Unirea Shopping Center. Află unde sunt localizate toate acestea de pe hartă.
De multe ori, la orele de vârf, vei întâmpina aglomerație în trafic pe Calea Vitan sau pe celelalte artere principale din această zonă, motiv pentru care este posibil să ai unele dificultăți în găsirea unui loc de parcare. Îți recomandăm, totodată, să apelezi la Direcția Generală de Impozite și Taxe Locale Sector 3 pentru a închiria un loc de parcare în apropierea locuinței tale. Dacă optezi pentru un apartament într-un ansamblu rezidențial nou, atunci discută direct cu dezvoltatorul și vezi ce ofertă îți pune la dispoziție. Astfel, te vei asigura că nu mai pierzi timpul seara căutând un loc de parcare. Consultă harta și află ce opțiuni ai în zona Vitan Mall - Nerva Traian - Mihai Bravu.
În zona Vitan Mall - Nerva Traian - Mihai Bravu vei avea la dispoziție câteva spații verzi de mici dimensiuni, amenajate cu locuri de joacă pentru copii, cel mai mare dintre acestea fiind Parcul Emil Gârleanu. Vei ajunge însă destul de rapid de aici la Parcul Alexandru Ioan Cuza (fostul IOR) sau la Parcul Tineretului. O altă variantă bună pentru cei care își doresc să facă o plimbare prin natură este o vizită în Parcul Natural Văcărești la care ajungi foarte ușor. Pe marginea deltei te poți plimba chiar și cu bicicleta. Multe dintre blocurile situate la principalele artere de circulație din această zonă dispun de spații comerciale la parter, într-unele dintre acestea fiind deschise restaurante și baruri. Pentru mai multă diversitate, vei avea la o aruncătură de băț Centrul Vechi al Bucureștiului. În zona Pasajului Mărășești vei putea merge la un spectacol pus în scenă de echipa Teatrului de Operetă și Musical "Ion Dacian". Preferi să te relaxezi la film? Un cinematograf este disponibil în București Mall - primul centru comercial de acest tip din oraș, situat pe Calea Vitan. O altă opțiune poate fi găsită în mall-ul ParkLake din zona Parcului Alexandru Ioan Cuza. Vezi ce alte alternative de petrecere a timpului liber vei avea dacă te muți în zona Vitan Mall - Nerva Traian - Mihai Bravu.
Principalele unități sanitare din această zonă sunt Policlinica Vitan Dudești și spitalul privat de oftalmologie Westeye Hospital. Unul dintre cele mai apropiate spitale de stat la care vei avea acces, dacă te vei muta aici, este Spitalul Clinic "Dr. Victor Babeș". O altă opțiune poate fi și Spitalul Clinic de Urgență "Sfântul Ioan" de la Șoseaua Vitan-Bârzești. O serie de unități medicale sunt disponibile și pe Șoseaua Berceni la care poți să ajungi în doar câteva minute cu mașina. Dacă preferi o clinică privată, atunci printre cele mai apropiate se numără clinica Regina Maria Mărășești sau Monza Metropolitan Hospital. Găsești pe harta de mai jos și farmaciile disponibile în zona Vitan Mall - Nerva Traian - Mihai Bravu.
Câteva restaurante găsești pe Strada Nerva Traian, iar pe Calea Vitan ai la dispoziție mai multe fast food-uri. Un food court cu restaurante destul de diverse găsești, de asemenea, la etaj în București Mall. Pentru pâine caldă, o gustare sau o prăjitură merită să încerci și brutăria Koksal aflată la doi pași de mall. Dacă ești grăbit, poți să mergi repede până la drive through-ul KFC de pe Șoseaua Mihai Bravu sau la restaurantul McDonald"™s din Dristor de unde poți să-ți comanzi, de asemenea, mâncarea direct din mașină. Alte food court-uri ai în apropiere la mall-urile ParkLake și Sun Plaza, dacă nu te deranjează să mergi câteva minute cu mașina. Ajungi extrem de repede din această zonă și în Centrul Vechi al orașului unde găsești restaurante și terase pentru toate gusturile. Vezi ce alte restaurante găsești în zona Vitan Mall - Nerva Traian - Mihai Bravu și în vecinătatea acesteia consultând harta.
Ai nevoie de o bancă sau de un ATM? Pe Strada Nerva Traian găsești un Libra Bank și o sucursală ING. În București Mall ai la dispoziție alte câteva opțiuni. Consultă harta pentru mai multe informații.
Înainte să pleci...
Ești sigur că ai văzut și aceste proprietăți?
154.000 €
București, Vitan Mall
2 camere
67 mp
Etaj 10
155.223 € + TVA
București, Vitan Mall
2 camere
57 mp
Etaj 1
155.223 € + TVA
București, Vitan Mall
2 camere
57 mp
Etaj 1
Creează alertă
Salvează căutarea ca să primești pe email ultimele anunțuri publicate
Apartamente cu 2 camere de vânzare în zona Vitan Mall, Sector 3
Cere detalii prin email
*
*
*
*
Detaliile tale de contact vor fi partajate cu Cristal Imobiliare
Asigurare de viață/lună Costul este variabil. În funcție de banca aleasă, procentul variază între 0.0259% și 0.035% din soldul creditului.
Costuri cu achiziția10.554 RON
Comision agenție Întreabă agenţia
Onorariu notarial7.426 RON
Taxă întabulare OCPI1.296 RON
Autentificare contract credit1.832 RON
Preț de achiziție863.753 RON
Preț locuință863.753 RON
TVA 0%Inclus în prețul cerut
Preț de achiziție863.753 RON
Preț locuință863.753 RON
TVA 0%
Inclus în prețul cerut
Avans minim256.985 RON
Credit pe 30 de ani606.769 RON
Cost achitat în prima lună
Taxa evaluare imobil(până la)
575 RON
Rata lunară (variabilă)4.263 RON
Depozit colateral12.789 RON
Comision de garantare FNGCIMM72 RON
Asigurare anuală imobil864 RON
Poliță PAD130 RON
Tarif arhivă electronică102 RON
Costuri adiționale1.004 RON + taxe notariale
Asigurare viață și complexă (opțională)Costul este variabil. În funcție de banca aleasă, procentul variază între 0.0259% și 0.035% din soldul creditului
Onorariu notarialconform tarif notarial
Taxă întabulare OCPI1.004 RON
i
Toate valorile de mai sus sunt estimative și nu reprezintă în mod obligatoriu costurile exacte pe care le veți primi de la companiile/instituțiile prin care veți încheia tranzacția.