Berceni Metalurgiei - cel mai bun pret pt 2 camere

102.500 €

Berceni, București

Nr. cam.:
2
Sup. utilă:
50 mp
Etaj:
1 / 6
An constr.:
2025 (În construcție)
  • • Locație exactă

Descriere apartament

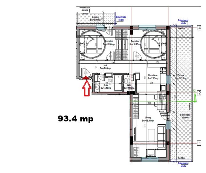
Berceni Metalurgiei - cel mai bun pret pt 2 camere Va oferim spre vanzare garsoniere si apartamente in zona Metalurgiei Carrefour Grand Arena, intr-un proiect nou, demarat in primavara anului 2025. Complexul va cuprinde 2 blocuri P+6, spatii comerciale si locuri de parcare Garsonierele si Studiourile pot fi achizitionate cu un avans de minim 80% Apartamtenele de 2 si 3 camere pot fi achizitionate cu un avans de minim 50% Apartamentele cu suprafete mari se pot achizitiona in rate pe 3 ani, cu un avans minim de 30.000EUR Loc de parcare exterior – 7000EUR tva inclus Loc de parcare acoperit la parterul blocului – 9000EUR tva inclus Toate utilitatiile (apa,gaz,curent) contorizate individual Centrala termica 24kw + calorifere otel Beton + caramida porotherm (inclusiv peretii interiori) + izolatie polistiren expandat 10cm Tva 21% inclus in pretul afisat Asistenta dosar CREDIT gratuita - Andrei
Citește mai mult Citește mai puțin
Confort 1 Decomandat 1 Balcon / Terasă / Logie Calorifere Centrală proprie Renovat

Detalii apartament

ID anunț: X7US001S8 Copiat! 269782333 Copiat!
Actualizat în: 21 Februarie 2026
Nr. bucătării: 1
Nr. băi: 1
Structură rezistență: Beton
Tip imobil: Bloc de apartamente
Regim înălțime: P+6E

Utilități

Pereți
Faianță Vopsea lavabilă
Podele
Gresie Parchet
Ușă intrare
Metal
Uși interior
Celulare
Izolații termice
Exterior
Ferestre cu geam termopan
PVC
Contorizare
Contor gaz Apometre
Facilități imobil
Lift Interfon
Utilități
Curent Apă Canalizare Gaze CATV Telefon
Internet
Wireless
Amenajare străzi
Asfaltate Iluminat stradal Mijloace de transport în comun

Puncte de interes

Mijloace transport
bus-station
Statia Bd. Constantin Brancoveanu / Dorohoi, linia 141, 220, 202
Stații autobuz aprox. 720 m
bus-station
Statia CET Progresul, linia 216
Stații autobuz aprox. 766 m
train-station
Gara CFR Progresul
Stații tren aprox. 1828 m
tram-station
Cap. Raducanu Cristea
Stații tramvai aprox. 1884 m
Școală
kindergarten
Gradinita nr. 149
Gradinițe aprox. 887 m
school
Gradinita 167
Școli aprox. 1077 m
kindergarten
Gradinita
Gradinițe aprox. 1081 m
university
Universitatea Spiru Haret
Universități aprox. 1967 m
Recreere
supermarket
Selgros Berceni
Supermarket aprox. 510 m
hypermarket
Hornbach
Hipermarket aprox. 521 m
park
Sere
Parcuri aprox. 736 m
sports-ground
Sala de sport
Terenuri sport aprox. 1507 m

Detalii despre preț și costuri

Prețul pe piață

Preț cerut: 102.500 €

Preț min. zonă 59.000 €
Preț max. zonă 137.900 €

78% dintre proprietățile similare ca zonă și nr. camere au prețul cerut mai mic. mai multe...

Bine de știut: prețul unei proprietăți este influențat și de alte caracteristici, cum ar fi: vechime, localizare, vecinătăți, suprafață, compartimentare, amenajări, dotări, etc. mai puțin...

Costuri cu achiziția

Fără credit
6.229 RON
Credit ipotecar
7.777 RON
Noua casă
662 RON+ taxe notariale

i

Costuri adiționale mai puțin știute la achiziție: taxe notariale, comisioane etc.

Proprietăți recomandate

Detalii de contact

FAMILY SOLUTIONS

Andrei Gheorghisor agent

4.88(17 review-uri)

FAMILY SOLUTIONS
PRO

Abonează-te la newsletter să fii primul care primește cele mai noi recomandări de proprietăți și sfaturi de la experți.

CONTACT

Creează alertă

Salvează căutarea ca să primești pe email ultimele anunțuri publicate

Apartamente cu 2 camere de vânzare în zona Berceni, Sector 4