Apartament -2 camere - decomandat - Emil Racovita

75.900 €

Berceni, București

Nr. cam.:
2
Sup. utilă:
47 mp
Etaj:
4 / 10
An constr.:
1972 (Finalizată)
  • • Locație aproximativă

Descriere apartament

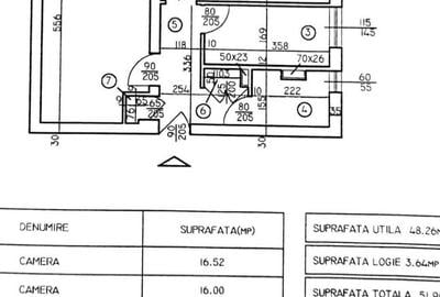
COD PROPRIETATE: P1533 Agentia imobiliara ERezidential va ofera de vanzare, o proprietate tip apartament, cu 2 camere, decomandat, situata in Bucuresti, zona Berceni, intr-un imobil tip bloc, construit in anul 1972, la etajul 4/ 10. Dispune de o suprafata totala de 51 mp. Alcatuit din: camere -2, bucatarie- 1, bai- 1, balcon- 1 Caracteristici: -Pereti: vopsea lavabila, faianta -Podele: linoleum -Ferestre: termopan -Contorizare: apometre, contor curent electric -Imobil: interfon, supraveghere video, lift -Utilitati generale: curent electric, apa, canalizare, gaz -Sistem incalzire: termoficare Vecinatati (puncte de reper): In imediata apropiere intalnim: spatii comerciale, financiare, educationale, medicale, de relaxare etc. Acces facil la mijloacele de transport in comun. Se percepe comision standard!
Citește mai mult Citește mai puțin
Confort 1 Decomandat Nemobilat 1 Balcon Termoficare Necesită renovare

Detalii apartament

ID anunț: XFKB101CC Copiat! 274730251 Copiat!
Actualizat în: 11 Februarie 2026
Suprafață construită: 51 mp
Nr. bucătării: 1
Nr. băi: 1
Structură rezistență: Beton
Tip imobil: Bloc de apartamente
Regim înălțime: P+10E

Utilități

Destinație
Rezidențial
Pereți
Vopsea lavabilă Faianță
Podele
Linoleum
Ușă intrare
Metal
Uși interior
Celulare Lemn
Contorizare
Apometre
Dotări imobil
Interfon Lift
Utilități
Curent Apă Canalizare Gaze
Amenajare străzi
Asfaltate Iluminat stradal Mijloace de transport în comun
Comision
standard

Disponibilitate proprietate:

imediat

Puncte de interes

Mijloace transport
bus-station
Statia Ciceu, linia 125, 232, 312, N106, 202,74
Stații autobuz aprox. 115 m
bus-station
statia ciceu linii:74,202,125,232,312
Stații autobuz aprox. 137 m
metro-station
Aparatorii Patriei (M2)
Stații metrou aprox. 1002 m
tram-station
Stadion
Stații tramvai aprox. 1509 m
Școală
kindergarten
Gradinita nr.264, "101 dalmatieni"
Gradinițe aprox. 434 m
kindergarten
Gradinita nr. 264
Gradinițe aprox. 443 m
school
Scoala nr.189, "Alexandru Odobescu"
Școli aprox. 546 m
university
Universitatea "Spiru Haret" (Fosta Casă de Cultură IMGB).
Universități aprox. 871 m
Recreere
supermarket
Lidl
Supermarket aprox. 95 m
park
Parc
Parcuri aprox. 135 m
hypermarket
Hornbach
Hipermarket aprox. 621 m
sports-ground
Sala de sport
Terenuri sport aprox. 646 m

Detalii despre preț și costuri

Prețul pe piață

Preț cerut: 75.900 €

Preț min. zonă 59.000 €
Preț max. zonă 137.900 €

64% dintre proprietățile similare ca zonă și nr. camere au prețul cerut mai mare. mai multe...

Bine de știut: prețul unei proprietăți este influențat și de alte caracteristici, cum ar fi: vechime, localizare, vecinătăți, suprafață, compartimentare, amenajări, dotări, etc. mai puțin...

Costuri cu achiziția

Fără credit
4.975 RON
Credit ipotecar
6.329 RON
Noua casă
527 RON+ taxe notariale

i

Costuri adiționale mai puțin știute la achiziție: taxe notariale, comisioane etc.

Proprietăți recomandate

Detalii de contact

Abonează-te la newsletter să fii primul care primește cele mai noi recomandări de proprietăți și sfaturi de la experți.

CONTACT

Creează alertă

Salvează căutarea ca să primești pe email ultimele anunțuri publicate

Apartamente cu 2 camere de vânzare în zona Berceni, Sector 4