6

Apartament 4 camere dec | Bd. Constantin Brâncoveanu | Etaj 1 | 84 mp | Boxa

123.000 €

Brâncoveanu, București

Nr. cam.:
4
Sup. utilă:
80 mp
Etaj:
1 / 4
An constr.:
1970
  • • Locație exactă

Descriere apartament

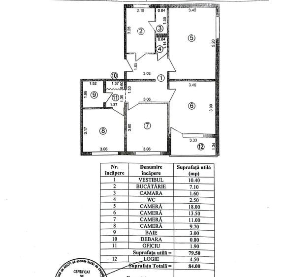
Valacoara Imob vă propune spre vânzare un apartament decomandat cu 4 camere, situat pe Bulevardul Constantin Brâncoveanu, într-un bloc construit în 1970, reabilitat termic, la etajul 1 din 4 — un etaj ideal pentru confort și acces facil. Cu o suprafață utilă totală de 84 mp,si o compartimenatre foarte rara si foarte cautata, apartamentul oferă spațiu generos pentru o familie: ✔ 3 dormitoare ✔ Living luminos ✔ Baie ✔ WC de serviciu ✔ Hol spațios ✔ Spații de depozitare ✔ Balcon Imobilul este amplasat într-o zonă foarte bine conectată, cu acces rapid la mijloace de transport în comun, școli, grădinițe și magazine. Blocul este înconjurat de mult spațiu verde și copaci, oferind un cadru liniștit și plăcut. Proprietatea beneficiază și de boxă la subsol, ideală pentru depozitare suplimentară. Pentru detalii suplimentare sau programarea unei vizionări, vă stau la dispoziție. Comision agenție: 1,5% ( tva inclus)
Citește mai mult Citește mai puțin
Confort 1 Decomandat 1 Balcon / Terasă / Logie

Detalii apartament

ID anunț: XDDI000SG Copiat! 274926302 Copiat!
Actualizat în: 23 Martie 2026
Suprafață utilă totală: 84 mp
Suprafață construită: 102 mp
Nr. bucătării: 1
Nr. băi: 2
Tip imobil: Bloc de apartamente
Tip tranzacție: De vânzare prin agent
Regim înălțime: P+4E
Modalitate de plată: Cash sau Credit

Utilități

Utilități
Canalizare Apă Curent Gaze
Amenajare străzi
Asfaltate Betonate Iluminat stradal
Comision
1.5%

Puncte de interes

Mijloace transport
bus-station
Izvorul Rece
Stații autobuz aprox. 268 m
bus-station
Izcorul Rece
Stații autobuz aprox. 268 m
metro-station
Statia Piata Sudului, linia M2
Stații metrou aprox. 1139 m
tram-station
Piata Sudului
Stații tramvai aprox. 1155 m
Școală
school
Gradinita King George
Școli aprox. 121 m
school
Colegiul National "Octav Onicescu"
Școli aprox. 196 m
kindergarten
Gradinita Lilo
Gradinițe aprox. 244 m
university
Academie de Studii Postuniversitare - Politie
Universități aprox. 1076 m
Recreere
park
Parcul Giosan
Parcuri aprox. 124 m
supermarket
Mega Image - Izvorul Crisului
Supermarket aprox. 222 m
hypermarket
Selgros
Hipermarket aprox. 1283 m
mall
Cora Sun Plaza
Mall aprox. 1528 m

Detalii despre preț și costuri

Prețul pe piață

Preț cerut: 123.000 €

Preț min. zonă
Preț max. zonă

71% dintre proprietățile similare ca zonă și nr. camere au prețul cerut mai mare. mai multe...

Bine de știut: prețul unei proprietăți este influențat și de alte caracteristici, cum ar fi: vechime, localizare, vecinătăți, suprafață, compartimentare, amenajări, dotări, etc. mai puțin...

Acces la informații premium după autentificare
Login Gratuit

Costuri cu achiziția

Fără credit
Credit ipotecar
Noua casă

i

Costuri adiționale mai puțin știute la achiziție: taxe notariale, comisioane etc.

Acces la informații premium după autentificare
Login Gratuit

Proprietăți similare

Apartament cu 3 camere decomandat în Brâncoveanu
127.000 €
București, Brâncoveanu
3 camere
64,72 mp
Etaj 4 / 4
Apartament cu 3 camere decomandat, mobilat în Brâncoveanu
127.000 €
București, Brâncoveanu
3 camere
65 mp
Etaj 4 / 4
Apartament cu 4 camere în Brâncoveanu
113.000 €
București, Brâncoveanu
4 camere
82 mp
Etaj 3

Detalii de contact

VALACORA IMOB

Vatau Cosmin Real Estate Consultant

VALACORA IMOB
PRO

Abonează-te la newsletter să fii primul care primește cele mai noi recomandări de proprietăți și sfaturi de la experți.

CONTACT

Creează alertă

Salvează căutarea ca să primești pe email ultimele anunțuri publicate

Apartamente cu 4+ camere de vânzare în zona Brâncoveanu, Sector 4