1

TINERETULUI- DIMITRIE CANTEMIR , vanzare apart 2 CAMERE

112.000 €

Cantemir, București

Nr. cam.:
2
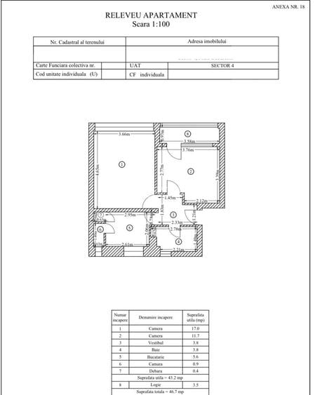
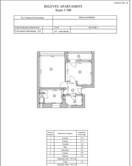
Sup. utilă:
47 mp
Etaj:
1
An constr.:
1965
  • • Locație exactă
  • • Proprietate nelocuită

Descriere apartament

TINERETULUI - Dimitrie CANTEMIR, vanzare apart 2 camere, decomandat, etajul 1 din 7 , imobil construit in anul 1965, NU este incadrata in nici o categorie de urgenta sau risc seismic. VEDERE stradala , luminoasa, balconul pe toata suprafata dormitorului, NECESITA RENOVARE !!! Parcul Tineretului 5 minute COMISION CUMPARATOR 2%
Citește mai mult Citește mai puțin
Confort 1 Decomandat Nemobilat Calorifere Termoficare Necesită renovare

Detalii apartament

ID anunț: X2F20002U Copiat! 275490612 Copiat!
Actualizat în: 29 Aprilie 2026
Suprafață utilă totală: 49 mp
Suprafață construită: 52 mp
Nr. băi: 1
Structură rezistență: Cărămidă
Tip imobil: Bloc de apartamente
Regim înălțime: P+7E

Utilități

Ușă intrare
Metal
Izolații termice
Exterior Interior
Ferestre cu geam termopan
PVC
Contorizare
Apometre
Alte spații utile
Debara
Facilități imobil
Lift Interfon
Utilități
Apă Gaze Curent Canalizare
Amenajare străzi
Mijloace de transport în comun Asfaltate Betonate Iluminat stradal

Puncte de interes

Mijloace transport
tram-station
Statie tramvai 34,46 - Roma
Stații tramvai aprox. 218 m
bus-station
Statia Liceul Ion Luca Caragiale, linia 131, 182, 330, 331, 335, N113, 301
Stații autobuz aprox. 320 m
metro-station
Metrorex. Piata Victoriei 1/2 (M1) , (M2)
Stații metrou aprox. 676 m
trolleybus-station
Statia Piata Romana linii : 79,86
Stații troleibuz aprox. 864 m
Școală
school
Liceul Nicolae Tonitza
Școli aprox. 300 m
school
Badulescu Aurelia (en)
Școli aprox. 323 m
university
SNSPA
Universități aprox. 516 m
kindergarten
Gradinita nr. 252 cu program prelungit
Gradinițe aprox. 530 m
Recreere
park
Parc
Parcuri aprox. 207 m
sports-ground
Teren sportiv
Terenuri sport aprox. 275 m
mall
"METROPLIS CENTER"
Mall aprox. 310 m
supermarket
Mega Image - IANCU DE HUNEDOARA
Supermarket aprox. 320 m

Detalii despre preț și costuri

Prețul pe piață

Preț cerut: 112.000 €

Preț min. zonă
Preț max. zonă

52% dintre proprietățile similare ca zonă și nr. camere au prețul cerut mai mare. mai multe...

Bine de știut: prețul unei proprietăți este influențat și de alte caracteristici, cum ar fi: vechime, localizare, vecinătăți, suprafață, compartimentare, amenajări, dotări, etc. mai puțin...

Insight premium disponibil după login

Costuri cu achiziția

Fără credit
Credit ipotecar
Noua casă

i

Costuri adiționale mai puțin știute la achiziție: taxe notariale, comisioane etc.

Insight premium disponibil după login

Proprietăți similare

Apartament cu 2 camere decomandat, mobilat în Apărătorii Patriei
102.000 €
București, Apărătorii Patriei
2 camere
58 mp
Etaj 1 / 2
Apartament cu 2 camere decomandat în Berceni
113.100 €
București, Berceni
2 camere
58 mp
Etaj 3
Apartament cu 2 camere semidecomandat, mobilat în Cantemir
109.800 €
București, Cantemir
2 camere
60,3 mp
Etaj 2 / 3

Detalii de contact

REGAL SERVICE

Dragan Georgeta Agent imobiliar

4.83(4 review-uri)

REGAL SERVICE
PRO

Abonează-te la newsletter să fii primul care primește cele mai noi recomandări de proprietăți și sfaturi de la experți.

CONTACT

Creează alertă

Salvează căutarea ca să primești pe email ultimele anunțuri publicate

Apartamente cu 2 camere de vânzare în zona Cantemir, Sector 4